ᐅ Grundrissvorentwurf für Einfamilienhaus
Erstellt am: 17.12.15 10:50
*
*Hausbau*17.12.15 10:50Hallo Freunde,
wir planen, wie der Threatname schon verraten soll, in 2016 mit dem Hausbau zu beginnen und fangen Mitte/Ende Januar zusammen mit den Architekt zum planen an.
Grundstück bereits gekauft.
Bebauungsplan/Einschränkungen: kein Bebauungsplan
- Größe des Grundstücks: 30m * 32m / 960qm, Zufahrt von Süden oder Westen möglich da Eckgrundstück, Im Osten 10m breiter Ausgleichsstreifen mit Wiese dahinter. Im Norden nächstes Grundstück
- Hang: Kein Hang
- Grundflächenzahl: 0,3
- Geschossigkeit: 2 Vollgeschosse, Kein Keller
- Dachform: "modernes" Satteldach (17°-20° Neigung *Wunsch*)
- Stilrichtung: modern, weißes Haus, anthrazitfarbene Fenster mit Raffstore im EG.
- Ausrichtung: First O/W
- weitere Vorgaben: Zisterne mind. 3000L als Auflage wegen Überwasser
- Anzahl der Personen: Derzeit 2 Pers. (29/27); Kinder in Planung: 1-2
- Raumbedarf im EG,OG: Großzügiger Wohn-Essbereich im EG mit "abtrennbarer" Küche.
- Büro: Büro/Fitness/Gästezimmer
- Schlafgäste pro Jahr: derzeit 4 evtl. zukünftig mehr
- offene Architektur: hohes EG mit Deckenhöhe 2,65-2,75m.
- offene Küche, Kochinsel: Kücheninsel ist gewünscht
- Anzahl Essplätze: 8 Pers., großer Esszimmertisch
- Kamin: als "Raumteiler" zwischen Essen und Wohnzimmerbereich
- Musik/Stereowand: "Heimkinotaugliches Wohnzimmer", Tension-Motorleinwand (breite 3,4m) + Beamer, 7.1 dolby Surround (soll später auf Dolby atmos mit Deckenlautsprecher umgebaut werden).
- Balkon, Dachterrasse: Keine Balkone, dafür Terrasse im Süden,
- Garage, Carport: Doppelgarage mit Staufläche
Hausentwurf
Von wem stammt die Planung:
- Architekt: erst ab Januar
- Do-it-Yourself mit SH3D
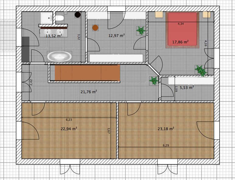
Was gefällt nicht: Lange Gänge, ich weiß nicht wie lange die Treppe sein muss bei einer Deckenhöhe von 2,65/2,75m, hab jetzt mal worst case 4,6m Länge angenommen.
Preisschätzung lt Architekt/Planer: Gibt noch keine. Meine: mit Eigenleistung (Bad/Fließen/Böden/Pflaster/Maler) 310.000€
Persönliches Preislimit fürs Haus, inkl Ausstattung:350.000€
favorisierte Heiztechnik: Gastherme mit Solar
Wenn Ihr verzichten müsst, auf welche Details/Ausbauten
-könnt Ihr verzichten: Obergeschoss kann kleiner sein, Ki-Zimmer mit 17qm würden reichen. Ich weiß nur nicht was günstiger ist: 1) Erker im EG um auf den großen Wohn-Essbereich zu kommen oder 2) wie in aktueller Skizze.
Doppelgarage kann auch "normale" Garage mit Carport werden.
-könnt Ihr nicht verzichten: Großes Wohnzimmer mit mind. 4,2m breiter Wand gegenüber der Couch. Wollte die Heiztechnik zwischen Haus und Garage in Westen packen.
Ich würde mich über Eure Kritik freuen.
Vielen DANK! Gruß aus Bayern


wir planen, wie der Threatname schon verraten soll, in 2016 mit dem Hausbau zu beginnen und fangen Mitte/Ende Januar zusammen mit den Architekt zum planen an.
Grundstück bereits gekauft.
Bebauungsplan/Einschränkungen: kein Bebauungsplan
- Größe des Grundstücks: 30m * 32m / 960qm, Zufahrt von Süden oder Westen möglich da Eckgrundstück, Im Osten 10m breiter Ausgleichsstreifen mit Wiese dahinter. Im Norden nächstes Grundstück
- Hang: Kein Hang
- Grundflächenzahl: 0,3
- Geschossigkeit: 2 Vollgeschosse, Kein Keller
- Dachform: "modernes" Satteldach (17°-20° Neigung *Wunsch*)
- Stilrichtung: modern, weißes Haus, anthrazitfarbene Fenster mit Raffstore im EG.
- Ausrichtung: First O/W
- weitere Vorgaben: Zisterne mind. 3000L als Auflage wegen Überwasser
- Anzahl der Personen: Derzeit 2 Pers. (29/27); Kinder in Planung: 1-2
- Raumbedarf im EG,OG: Großzügiger Wohn-Essbereich im EG mit "abtrennbarer" Küche.
- Büro: Büro/Fitness/Gästezimmer
- Schlafgäste pro Jahr: derzeit 4 evtl. zukünftig mehr
- offene Architektur: hohes EG mit Deckenhöhe 2,65-2,75m.
- offene Küche, Kochinsel: Kücheninsel ist gewünscht
- Anzahl Essplätze: 8 Pers., großer Esszimmertisch
- Kamin: als "Raumteiler" zwischen Essen und Wohnzimmerbereich
- Musik/Stereowand: "Heimkinotaugliches Wohnzimmer", Tension-Motorleinwand (breite 3,4m) + Beamer, 7.1 dolby Surround (soll später auf Dolby atmos mit Deckenlautsprecher umgebaut werden).
- Balkon, Dachterrasse: Keine Balkone, dafür Terrasse im Süden,
- Garage, Carport: Doppelgarage mit Staufläche
Hausentwurf
Von wem stammt die Planung:
- Architekt: erst ab Januar
- Do-it-Yourself mit SH3D
Was gefällt nicht: Lange Gänge, ich weiß nicht wie lange die Treppe sein muss bei einer Deckenhöhe von 2,65/2,75m, hab jetzt mal worst case 4,6m Länge angenommen.
Preisschätzung lt Architekt/Planer: Gibt noch keine. Meine: mit Eigenleistung (Bad/Fließen/Böden/Pflaster/Maler) 310.000€
Persönliches Preislimit fürs Haus, inkl Ausstattung:350.000€
favorisierte Heiztechnik: Gastherme mit Solar
Wenn Ihr verzichten müsst, auf welche Details/Ausbauten
-könnt Ihr verzichten: Obergeschoss kann kleiner sein, Ki-Zimmer mit 17qm würden reichen. Ich weiß nur nicht was günstiger ist: 1) Erker im EG um auf den großen Wohn-Essbereich zu kommen oder 2) wie in aktueller Skizze.
Doppelgarage kann auch "normale" Garage mit Carport werden.
-könnt Ihr nicht verzichten: Großes Wohnzimmer mit mind. 4,2m breiter Wand gegenüber der Couch. Wollte die Heiztechnik zwischen Haus und Garage in Westen packen.
Ich würde mich über Eure Kritik freuen.
Vielen DANK! Gruß aus Bayern
N
nordanney17.12.15 11:12Hausplanung ist nicht meins
Kosten schaue ich mir lieber an, und da muss ich Dir einen Punkt nennen: Bau kleiner oder schraub dein Budget kräftig hoch
Kosten schaue ich mir lieber an, und da muss ich Dir einen Punkt nennen: Bau kleiner oder schraub dein Budget kräftig hoch
*
*Hausbau*17.12.15 11:27Danke für den Tipp, ich glaube du hast damit Recht. Das mit der Hausgröße und den Budget ist beides nicht in Stein gemeißelt. Ein Freund von mir hat in der Nähe 13*10m (181qm) mit Doppelgarage für 310.000€ Schlüsselfertig gebaut. Da er Walmdach hatt war ich der Hoffnung das ich mit dem Satteldach und ähnlicher Ausstattung in den gleichen Bereich komme.
Folgendes hab ich bis jetzt geschätzt (wirklich nur geschätzt, die Augen werden mir erst im Januar geöffnet ):
Rohbau:90.000
Dach: 20.000
Hausinst.: 6000
Ofen: 9500
Heizung: 15.000
Sanitär EG: 3.000
Sanitär OG: 7.000
Elektro: 15.000
Türen: 7000
Schiebetür-Küche:3500
Fenster:21000
Roläden/Raffstore: 13000
Haustür: 3000
Garagentor: 3000
Böden: 6500
Maler: 3500
Pflaster: 7000
Küche:13000
Putz Innen außen: 28.000
Folgendes hab ich bis jetzt geschätzt (wirklich nur geschätzt, die Augen werden mir erst im Januar geöffnet ):
Rohbau:90.000
Dach: 20.000
Hausinst.: 6000
Ofen: 9500
Heizung: 15.000
Sanitär EG: 3.000
Sanitär OG: 7.000
Elektro: 15.000
Türen: 7000
Schiebetür-Küche:3500
Fenster:21000
Roläden/Raffstore: 13000
Haustür: 3000
Garagentor: 3000
Böden: 6500
Maler: 3500
Pflaster: 7000
Küche:13000
Putz Innen außen: 28.000
N
nordanney17.12.15 11:39Ich lese bei Dir allerdings über 230qm Wohnfläche. - zu bauen im teuren Süden.
Einfache Ausstattung 230qm x 1.500 € = T€ 345 + Garage + Garten + Raumteilerkamin + Baunebenkosten ==> da wird in der Größe eine fette 4 vorne stehen, mit ein paar Sonderwünschen und Möbeln (ich lese schon Heimkino, hohe Decken - da kommt bestimmt noch einiges dazu) kannst Du es auch zur 5... schaffen
Ist für Dich eine KFW-Stufe interessant? Dann musst Du auch über die Haustechnik nachdenken.
Einfache Ausstattung 230qm x 1.500 € = T€ 345 + Garage + Garten + Raumteilerkamin + Baunebenkosten ==> da wird in der Größe eine fette 4 vorne stehen, mit ein paar Sonderwünschen und Möbeln (ich lese schon Heimkino, hohe Decken - da kommt bestimmt noch einiges dazu) kannst Du es auch zur 5... schaffen
Ist für Dich eine KFW-Stufe interessant? Dann musst Du auch über die Haustechnik nachdenken.
*
*Hausbau*17.12.15 11:46Du hast Recht, die Größe ist entstanden weil ich selbst zu wenig Ahnung von der Planung habe. Ich wollte durch den Entwurf die prinzipielle Raumanordnung aufzeigen, dass das "Ding" zu groß ist, sagt mir bis jetzt jeder vernünftige Mensch
Heimkino ist jetzt schon vorhanden, ich muss nur damit "umziehen". Als einziges kommen die Deckenlautsprecher dazu.
KfW, muss ich gestehen, hab ich mich noch nicht richtig beschäftigt. Ich war/bin bis jetzt der Meinung, dass es sich nicht rechnet, sich "mehr Geld" für einen "günstigen" Kredit aufzunehmen. Mit 1500€/m2 rechnet der Architekt den wir haben auch... Er muss jetzt nur noch sozusagen das Haus "schrumpfen"
Heimkino ist jetzt schon vorhanden, ich muss nur damit "umziehen". Als einziges kommen die Deckenlautsprecher dazu.
KfW, muss ich gestehen, hab ich mich noch nicht richtig beschäftigt. Ich war/bin bis jetzt der Meinung, dass es sich nicht rechnet, sich "mehr Geld" für einen "günstigen" Kredit aufzunehmen. Mit 1500€/m2 rechnet der Architekt den wir haben auch... Er muss jetzt nur noch sozusagen das Haus "schrumpfen"
N
nordanney17.12.15 12:00Dann empfehle ich Dir, bis Januar zu warten und dann noch einmal ins Forum zu gehen
In Deiner Auflistung fehlen mir übrigens noch Garten/Terrasse inkl. Erdarbeiten, Garage, Trockenbau, sämtliche Baunebenkosten + Architektenleistung (da gehen bei der Größe auch schnell man T€ 20 an den Architekt), Zisterne.
Auch z.B. die Böden mit € 6.500 sind sehr günstig, dass sind keine 40€ je qm inkl. Kleber, Sockelleisten, Silikon/Acryl.
In Deiner Auflistung fehlen mir übrigens noch Garten/Terrasse inkl. Erdarbeiten, Garage, Trockenbau, sämtliche Baunebenkosten + Architektenleistung (da gehen bei der Größe auch schnell man T€ 20 an den Architekt), Zisterne.
Auch z.B. die Böden mit € 6.500 sind sehr günstig, dass sind keine 40€ je qm inkl. Kleber, Sockelleisten, Silikon/Acryl.
Ähnliche Themen