Grundrissvorentwurf für Einfamilienhaus

4,50 Stern(e) 6 Votes
Zuletzt aktualisiert 20.11.2025
Sie befinden sich auf der Seite 10 der Diskussion zum Thema: Grundrissvorentwurf für Einfamilienhaus
>> Zum 1. Beitrag <<

andimann

andimann

Hi Baufie,

ja, klar, die Baunebenkosten kommen natürlich noch on top. Leider...

Kontrollierte-Wohnraumlüftung haben wir nicht, vielleicht kommt noch eine "Bluemartin" Sparversion rein, die liegt dann bei 7-8 k€. Heizung ist Gastherme mit Solarthermie und Fußbodenheizung. Wir bauen mit WU Wanne mit hochwasserdichten Kellerfenstern und haben den Keller und das EG erhöht. Darin und im Kamin stecken zusammen etwa 25-30 k€ an Extrakosten.

Carport wird später gesondert gebaut und ist nun auch bewusst nicht im Bauantrag enthalten. (Baurecht ist einfach bescheuert, wenn ich es nun mit in den Bauantrag packe muss ich mich an das Baufenster halten da es dann "ein notwendiger Stellplatz" ist. Weise ich einfach in meiner Einfahrt zwei Stellplätze aus, kann ich später zusätzliches später hinbauen wo ich will, da es dann als "nicht notwendiger Zusatzstellplatz" gilt. Total bekloppt....)

Viele Grüße,

Andreas
 
andimann

andimann

man sollte nicht während eines Telefonats im Forum antworten:

es muss natürlich heißen:
Weise ich einfach in meiner Einfahrt zwei Stellplätze aus, kann ich später ein zusätzliches Carport hinbauen wo ich will, da es dann als "nicht notwendiger Zusatzstellplatz" gilt.

Ich Mann, ich nichts Multi-Tasking...
 
H

*Hausbau*

Hallo Community,
ich habe jetzt länger nichts mehr gepostet. Derzeit befinde ich mich in der Planungsphase und möchte euch nun meinen Grundriss vorstellen.
Ich hoffe auf eure Kritik! Bitte keine Budget Diskussionen
Garage bekommt Flachdach. Haus bekommt Satteldach 18°.

Folgende Fragen:
  • Eingang Flur zu Küche: Wäre hier eine Schiebetür denkbar? Vorteil wäre, dass ich die Hochschränke der Küche an die Wand schieben könnte und evtl. sogar den Side-by-Side-Kühlschrank, welcher aktuell einfach nur blöd im Raum steht, auch in diese Ecke stellen könnte
  • Küche /Essen: Ich möchte mir die Möglichkeit offen lassen später einen Raumteiler mit Schiebeelemente zu installieren. Gibt es hier etwas zu beachten? Habt ihr Erfahrungen mit Falttüren?
  • Kamin: Im EG passts schon ganz gut, im OG schauts einfach nur komisch aus.. Was meint ihr?.. Wollte mir im EG einen Kamin oder einen Schwedenofen (Cera Faro) stellen.
  • Was haltet ihr von der Türe Garage/Haus. Kann mir nicht vorstellen wenn zwei Autos in der Garage sind noch ordentlich vorbei zu können.
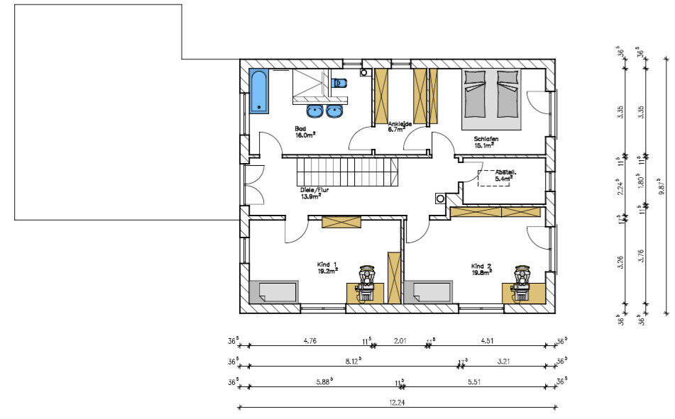
  • Bad OG: ich möchte eine T-Bad. Funktioniert hier die Dusche... bzw. müsste diese nicht länger sein damit das Wasser nicht raus spritzt?
  • Was würdet Ihr für eine Treppe empfehlen. Betontreppe oder Treppe mit Stahlwangen
  • Sind die Flurbreiten ausreichend? Im OG könnte ich noch etwas von den Kinderzimmer. nehmen. Im EG würds schwieriger
  • Reicht die Breite der Ankleide? Zusätzlich hierzu möchte ich in Abstellraum OG einen Schrank für Winterjacken etc. stellen.

Ich bin euch für Anregungen dankbar und nehme keine Kritik übel.
FEUER FREI


Grundriss eines Hauses: Garage mit Auto, Küche/Essen/Wohnen, Büro, Flur, WC, HWR, Treppe.


Grundriss eines Hauses: Flur, Bad, Ankleide, Schlafen, zwei Kinderzimmer, Abstellraum.
 
andimann

andimann

Moin!

*Attacke!*

Muss mich gerade kurz fassen:

Immer noch sehr große und lange Flure, mein Ding ist das nicht, aber es muss ja euch gefallen und nicht mir.
Es fehlen die Maße, daher ist es schwierig abschätzen, aber im EG ist der Flur neben der Treppe schmaler als die Treppe selber. Das würde um einen Meter oder weniger bedeuten, das wird sehr schmal wirken.
Kamin sieht immer komisch aus und steht immer im Weg. Denn kannst du aber auch in die Wand integrieren.
Dein Statiker wird dich hassen und dein GU wird dich lieben. Du hast keine Wände übereinander, das macht es statisch schwierig und bautechnisch teuer.
Dusche funktioniert so nicht. Wenn du keine Tür davor machen willst, brauchst du min. 1,3 besser 1,5 m tiefe um nicht alles zu fluten.
Dusche im EG, wie willst du da die Tür öffnen? Das Klo ist im Weg...

Viele Grüße,

Andreas
 
H

*Hausbau*

@andimann:
  • Das mit den langen Fluren ist auch mein Bedenken. Uns hat halt die Gerade Treppe immer am besten gefallen. Der Flur hat eine Breite von 2,3m --> Treppe 1,0m --> Flur ca. 1,3m. Deswegen auch die Fragen nach der Treppe. Ich denke das eine offene Treppe nicht zu sehr "drückt".
  • Der Kamin ist furchtbar hab heute noch einen Termin mit dem Kaminbauer um zu prüfen ob ich den Kamin im OG aufliegen lassen zu können und im EG nur das Rauchrohr mit Deckendurchführung anschließen zu können
  • Das mit der Dusche hatte ich befürchtet. Muss da unbedingt zum Badplaner.. aber auf den 16qm müsste es schon irgendwie klappen.
  • Das mit der Dusche im EG ist mir selber komisch vorgekommen. Mein Planer hat aber anscheinen sowas schon gemacht. Werd ihn Fragen ob ich mir das Live ansehen kann.
Viel Glück
 
Neige

Neige

Was ich mir jetzt noch überlege ist, macht es Sinn das Kochfeld auf der Halbinsel zu platzieren, wenn die Option offen stehen soll eine Trennwand später zu installieren?



Gruß Sigi
 
Zuletzt aktualisiert 20.11.2025
Im Forum Grundrissplanung / Grundstücksplanung gibt es 2535 Themen mit insgesamt 87978 Beiträgen


Ähnliche Themen zu Grundrissvorentwurf für Einfamilienhaus
Nr.ErgebnisBeiträge
1 2 Vollgeschosse, Durchgang Garage, Hauswirtschaftsraum unter Treppe 25
2Platzierung Stellplätze / Carport auf dem Grundstück - Seite 342
3Grundriss 120 m², Einfamilienhaus 1,5, Carport. Meinungen, Ideen, Vorschläge 42
4Haus ohne Garage und Keller? Ausbau Dachboden? Fresswarze? - Seite 585
5Grundriss Einfamilienhaus mit Garage 18
6Grundriss - was sagt Ihr? - Seite 325
7Haus, Garage / Carport auf dem Grundstück platzieren - Seite 493
8Garage im Haus oder Carport daneben 10
9Garage doch höher als im Bauantrag 28
10Haus und Garage, Carport Platzierung auf Hinterliegergrundstück 12
11Grundriss Einfamilienhaus / Garage im EG? 10
12Grundriss, längliches Einfamilienhaus, integrierte Garage kein Keller 16
13Grundriss Einfamilienhaus (ca. 170 qm) mit Garage - Hanglage 35
14Grundriss EFH 230qm mit Carport quadratisches Eckgrundstück 47
15Grundriss Einfamilienhaus 240 m² mit teilüberbauter Garage - Seite 296
16Grundriss Einfamilienhaus 136m² mit Garage & Keller 17
17Grundstück - Baufenster - Lage von Haus und Garage - Seite 644
18Grundriss Bungalow 150qm mit Garage 79
19Technikraum in Garage einbauen? Ist dies möglich? - Seite 335
20Treppe im Flur, Grundriss steht eigentlich schon :o( - Seite 320

Oben