ᐅ Grundrissplanung Stadthaus mit einem Satteldach
Erstellt am: 11.10.24 19:45
B
Benutzername1211.10.24 19:45Hallo, tolles Forum,
jetzt sind wir auch dabei uns einen kleinen Eigenheimtraum zu erfüllen. Ich bin auf eure Meinung und Erfahrung sehr gespannt.
Aktuell leben wir auf 4 Zimmer, 70qm.
Geplant sind knapp 200qm.
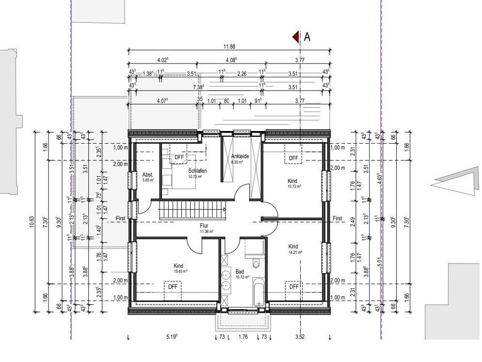
Wir benötigen für jedes unserer drei Kinder ein Zimmer, das Haus soll funktional sein.
Von Außen modern wirken.
Wir hätten gerne zwei Vollgeschosse mit einem kleinen Flach oder Walmdach. Leider ist dies nicht möglich und diese ganzen Einschränkungen lassen wohl nur das zu was jetzt entworfen wurde.
Ich hätte gerne die Gaube vorne und den Anbau vorne größer aus rein optischen Gründen, laut Architekten sei es nicht nötig.
Bebauungsplan/Einschränkungen
Im Anhang ist es das dritte Haus/Grundstück von oben
Größe des Grundstücks: 700qm
- der kleinste Abstand zur Straße ist 7,0 m
- die Bautiefe ist 12,0 m
- Ausrichtung MUSS gem. Bebauungsplan traufseitig zur Straße sein
- die Trauf- und Firsthöhe geht nach §34 Baugesetzbuch s.h.so hoch wie die Nachbarn sind . Wir können dann den Sockel (Keller) für die Geschosshöhen EG/DG mit nutzen
- es wird aber kein 2-geschossiges Gebäude ! Ich schätze den Kniestock/Drempel derzeit auf ca. 1,0 m !!! (für eine genaue Aussage müsste man die Trauf- und Firsthöhen der Nachbarn aufmessen lassen )
- es muss KEINE Putzfassade sein es kann auch komplett verblendet werden
- Dachneigung darf zwischen 45 - 52 liegen
- Kein Keller möglich, da Moorboden und Grundwasserprobleme.
Anforderungen der Bauherren
Stilrichtung, Dachform, Gebäudetyp: Satteldach
Keller, Geschosse: 1 Geschoss + DG
Anzahl der Personen, Alter: 5 Personen zwischen 2 - 35
Raumbedarf im EG, OG
Büro: Familiennutzung oder Homeoffice? Homeoffice
Schlafgäste pro Jahr: 3
offene oder geschlossene Architektur: offene wenn möglich
konservativ oder moderne Bauweise: moderne
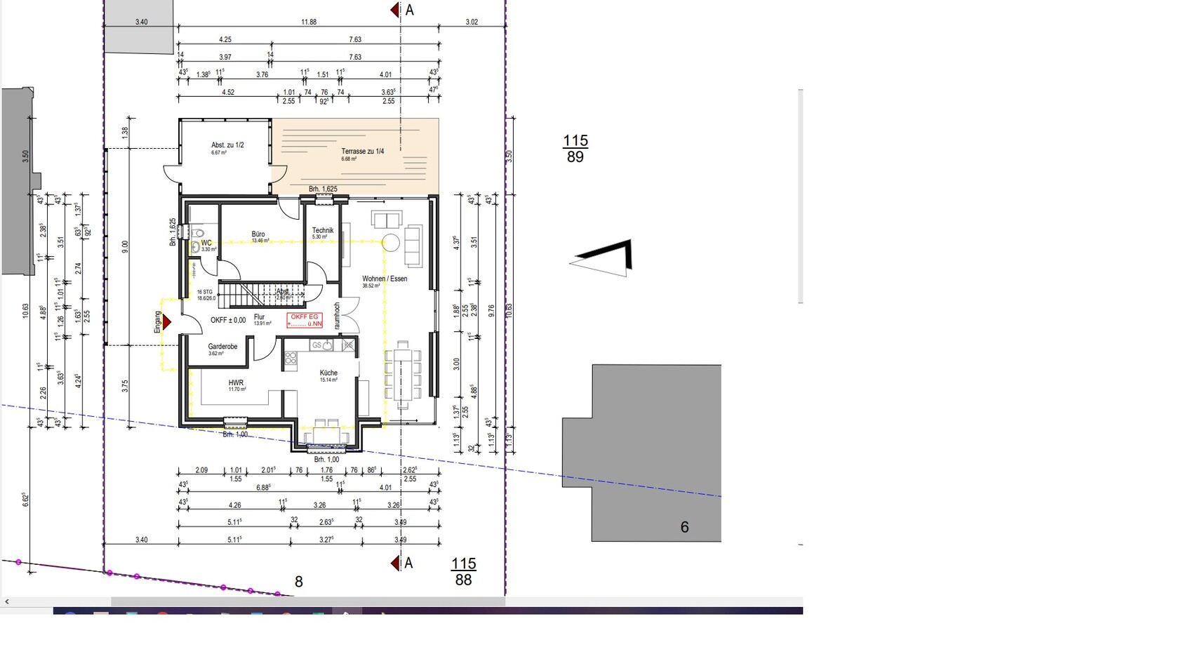
offene Küche, Kochinsel: Geschlossene Küche
Anzahl Essplätze : 8 und in der Küche soll eine Essecke sein
Kamin: Wäre schön
Hausentwurf
Von wem stammt die Planung: Unsere Idee und vom Architekten umgesetzt
Was gefällt besonders? Warum?
Breite des Flures unten und den Eingangsbereich, Blick zum Wohnzimmer vom Eingang.
Durchgang von der Küche in den Hauswirtschaftsraum mit Speisekammer
Was gefällt nicht? Warum?
Wirkt alles sehr eng oder eventuell täuscht es.
Preisschätzung laut Architekt/Planer:
450k
Persönliches Preislimit fürs Haus, inkl. Ausstattung: 550k
favorisierte Heiztechnik: Wärepumpe oder Gasheizung
Wenn Ihr verzichten müsst, auf welche Details/Ausbauten
-könnt Ihr verzichten: aktuell können wir uns nur vorstellen erstmal den Dachboden nicht auszubauen




jetzt sind wir auch dabei uns einen kleinen Eigenheimtraum zu erfüllen. Ich bin auf eure Meinung und Erfahrung sehr gespannt.
Aktuell leben wir auf 4 Zimmer, 70qm.
Geplant sind knapp 200qm.
Wir benötigen für jedes unserer drei Kinder ein Zimmer, das Haus soll funktional sein.
Von Außen modern wirken.
Wir hätten gerne zwei Vollgeschosse mit einem kleinen Flach oder Walmdach. Leider ist dies nicht möglich und diese ganzen Einschränkungen lassen wohl nur das zu was jetzt entworfen wurde.
Ich hätte gerne die Gaube vorne und den Anbau vorne größer aus rein optischen Gründen, laut Architekten sei es nicht nötig.
Bebauungsplan/Einschränkungen
Im Anhang ist es das dritte Haus/Grundstück von oben
Größe des Grundstücks: 700qm
- der kleinste Abstand zur Straße ist 7,0 m
- die Bautiefe ist 12,0 m
- Ausrichtung MUSS gem. Bebauungsplan traufseitig zur Straße sein
- die Trauf- und Firsthöhe geht nach §34 Baugesetzbuch s.h.so hoch wie die Nachbarn sind . Wir können dann den Sockel (Keller) für die Geschosshöhen EG/DG mit nutzen
- es wird aber kein 2-geschossiges Gebäude ! Ich schätze den Kniestock/Drempel derzeit auf ca. 1,0 m !!! (für eine genaue Aussage müsste man die Trauf- und Firsthöhen der Nachbarn aufmessen lassen )
- es muss KEINE Putzfassade sein es kann auch komplett verblendet werden
- Dachneigung darf zwischen 45 - 52 liegen
- Kein Keller möglich, da Moorboden und Grundwasserprobleme.
Anforderungen der Bauherren
Stilrichtung, Dachform, Gebäudetyp: Satteldach
Keller, Geschosse: 1 Geschoss + DG
Anzahl der Personen, Alter: 5 Personen zwischen 2 - 35
Raumbedarf im EG, OG
Büro: Familiennutzung oder Homeoffice? Homeoffice
Schlafgäste pro Jahr: 3
offene oder geschlossene Architektur: offene wenn möglich
konservativ oder moderne Bauweise: moderne
offene Küche, Kochinsel: Geschlossene Küche
Anzahl Essplätze : 8 und in der Küche soll eine Essecke sein
Kamin: Wäre schön
Hausentwurf
Von wem stammt die Planung: Unsere Idee und vom Architekten umgesetzt
Was gefällt besonders? Warum?
Breite des Flures unten und den Eingangsbereich, Blick zum Wohnzimmer vom Eingang.
Durchgang von der Küche in den Hauswirtschaftsraum mit Speisekammer
Was gefällt nicht? Warum?
Wirkt alles sehr eng oder eventuell täuscht es.
Preisschätzung laut Architekt/Planer:
450k
Persönliches Preislimit fürs Haus, inkl. Ausstattung: 550k
favorisierte Heiztechnik: Wärepumpe oder Gasheizung
Wenn Ihr verzichten müsst, auf welche Details/Ausbauten
-könnt Ihr verzichten: aktuell können wir uns nur vorstellen erstmal den Dachboden nicht auszubauen
Ich will kein Spaßverderber sein, aber die Preisschätzung vom Architekten ist schon sehr naiv.
Wenn man mit den typischen 3000€ pro qm rechnet wäre man bei 600.000€.
Je nachdem was du mit Ausstattung meinst kommt da noch was on top.
Ebenso kommen natürlich die Baunebenkosten und die Kosten für die Außenanlage hinzu.
Klar kann man auch günstiger raus kommen, aber damit würde ich nur kalkulieren, wenn man auch ohne Probleme am Ende mehr ausgeben kann. Sonst ist vielleicht zu überlegen das Haus noch etwas kleiner zu planen.
Wenn man mit den typischen 3000€ pro qm rechnet wäre man bei 600.000€.
Je nachdem was du mit Ausstattung meinst kommt da noch was on top.
Ebenso kommen natürlich die Baunebenkosten und die Kosten für die Außenanlage hinzu.
Klar kann man auch günstiger raus kommen, aber damit würde ich nur kalkulieren, wenn man auch ohne Probleme am Ende mehr ausgeben kann. Sonst ist vielleicht zu überlegen das Haus noch etwas kleiner zu planen.
Mal ein paar Sachen die mir auffallen:
- Küche sehr weit von der Terrasse entfernt.
- Was soll in diesen sehr schmalen Technikraum kommen?
- Wo kommen die Hausanschlüsse ins Haus?
- Die nach außen öffnende Tür des Abstellraums in den Carport wir der Kotflügel des Autos wahrscheinlich nicht sehr lieben.
- Das Eingangspodest vor der Haustür wird nicht sehr tief ausfallen, denn sonst kommt man nicht schadenfrei mit dem Auto vorbei.
- Das gebückte ins Bett fallen auf einer Seite im Elternschlafzimmer finde in interessant.
- Küche sehr weit von der Terrasse entfernt.
- Was soll in diesen sehr schmalen Technikraum kommen?
- Wo kommen die Hausanschlüsse ins Haus?
- Die nach außen öffnende Tür des Abstellraums in den Carport wir der Kotflügel des Autos wahrscheinlich nicht sehr lieben.
- Das Eingangspodest vor der Haustür wird nicht sehr tief ausfallen, denn sonst kommt man nicht schadenfrei mit dem Auto vorbei.
- Das gebückte ins Bett fallen auf einer Seite im Elternschlafzimmer finde in interessant.
B
Benutzername1211.10.24 21:22Enrico02 schrieb:
Ich will kein Spaßverderber sein, aber die Preisschätzung vom Architekten ist schon sehr naiv.
Wenn man mit den typischen 3000€ pro qm rechnet wäre man bei 600.000€.
Je nachdem was du mit Ausstattung meinst kommt da noch was on top.
Ebenso kommen natürlich die Baunebenkosten und die Kosten für die Außenanlage hinzu.
Klar kann man auch günstiger raus kommen, aber damit würde ich nur kalkulieren, wenn man auch ohne Probleme am Ende mehr ausgeben kann. Sonst ist vielleicht zu überlegen das Haus noch etwas kleiner zu planen.Ja, das stimmt. Hatte oben vergessen zu erwähnen das wir alles einzeln an Gewerke Vergeben werden.
So erhoffen wir Baukosten bei 2600€ bis 2700€ zu halten.
B
Benutzername1211.10.24 21:28hanse987 schrieb:
Mal ein paar Sachen die mir auffallen:
- Küche sehr weit von der Terrasse entfernt.
- Was soll in diesen sehr schmalen Technikraum kommen?
- Wo kommen die Hausanschlüsse ins Haus?
- Die nach außen öffnende Tür des Abstellraums in den Carport wir der Kotflügel des Autos wahrscheinlich nicht sehr lieben.
- Das Eingangspodest vor der Haustür wird nicht sehr tief ausfallen, denn sonst kommt man nicht schadenfrei mit dem Auto vorbei.
- Das gebückte ins Bett fallen auf einer Seite im Elternschlafzimmer finde in interessant.Bei der Küche/Essbereich kommt auch eine Terrasse. Das ist S/W Ausrichtung.
Technikraum laut Architekten ausreichend. Da soll die Haustechnik kommen...mh
Anschlüsse vom Haus kommen von der Straße wo der Hauswirtschaftsraum ist. Wir überlegen ob wir das Büro vergrößern und Technik in den Hauswirtschaftsraum nehmen und dafür die Garderobe weg lassen, denn der Hauswirtschaftsraum ist aktuell nicht toll entworfen.
Stimmt, das mir den Abstellraum.
Laut Architekt benötigen wir kein Eingangspodest.
Vom Nachbargrundstück bis zur Hauswand/Eingang sind es 3,40 breit. Das sollte doch passen oder für ein Auto zum vorbei fahren?
Oder habt ihr hier eine andere Idee?
Das mit dem Schlafzimmer hast du Recht.
Was wäre da für eine sinnvolle Lösung?
Ebenfalls wird es sicher in Sommer sehr warm oben im DG sein oder?
B
Benutzername1211.10.24 21:34Eine Anmerkung und euer Erfahrunge.
Für die Erstellung der Pläne bzw Phase 1-4 will der Architekt knapp 15k haben. Ist dies gerechtfertigt?
Ein anderer Architekt hatte 6700€ verlangt für 1-4 aber der saß nicht vor Ort.
Das war uns dann zu heikel denn wir haben aktuell viel Austausch mit dem Architekten.
Für die Erstellung der Pläne bzw Phase 1-4 will der Architekt knapp 15k haben. Ist dies gerechtfertigt?
Ein anderer Architekt hatte 6700€ verlangt für 1-4 aber der saß nicht vor Ort.
Das war uns dann zu heikel denn wir haben aktuell viel Austausch mit dem Architekten.
Ähnliche Themen