K
knalltüte05.03.20 19:18Hallo,
nachdem meine Badezimmerplanung ja ziemlich gescheitert ist versuche ich mal die
gesamte Planung auf den Prüfstand zu stellen. Heute waren wir bei unserem bevorzugten
Bauunternehmen mit denen wir aller Voraussicht bauen wollen und haben die Pläne wie
hier zu sehen als Planungsgrundlage (Preis für Hülle inkl. Doppelflügelfenster, Dach, Ziegel, Dämmung)
vorgestellt.
Das BU hat keinen eigenen Architekten, unser Cousin (Architekt) ist leider ausgelastet
und könnte erst nächstet Jahr..., anderen Architekten sprechen wir erst nächste Woche.
Eventuell findet sich aber bis dahin hier eine Lösung für einen "schnuckeligen"
Grundriss der nicht so verwinkelt ist. Weniger Wände / Ecken, Trotzdem sollte alles
unterkommen. Ich hoffe ich habe alle notwendigen Infos dazu unten eingetragen?
Bebauungsplan/Einschränkungen
Größe der Grundstücke - 308m² + 338m²
Hang - nein (leicht Richtung Norden ansteigend, Max. 1m auf 28m Tiefe)
Grundflächenzahl - 0,4
Geschossflächenzahl - 0,8
Baufenster, Baulinie und -grenze - eingezeichnet bzw. im Bebauungsplan zu sehen
Randbebauung - ja, Grenzabstand nach Norden 4m
Anzahl Stellplatz - 2 (je Grundstück)
Geschossigkeit
Dachform - Satteldach mit ca. 50cm Dachüberstand
Stilrichtung
Ausrichtung - First von West - Ost
Maximale Höhen/Begrenzungen - Traufhöhe: 4.5m, Firsthöhe 9.0m
weitere Vorgaben - Gaube Max. 50% Trauflänge und 1.5m unter First
Anforderungen der Bauherren
Stilrichtung, Dachform, Gebäudetyp
Keller, Geschosse ohne Kelle - 2 Geschosse
Anzahl der Personen, Alter - links: je 2, rechts: je 1
Raumbedarf im EG, OG
Büro: Familiennutzung oder Homeoffice? - keines
Schlafgäste pro Jahr - 15 (Kleinkinder => Schlafcouch)
offene oder geschlossene Architektur - möglichst offen
konservativ oder moderne Bauweise - modern
offene Küche, Kochinsel - offene Wohnküchen
Anzahl Essplätze - links ca. 3-4, rechts ca. 2-3
Kamin - nein
Musik/Stereowand - ja
Balkon, Dachterrasse - unten Terrassen, oben Gaube (links 4m, rechts 3.5m) mit vorgesetztem Balkon
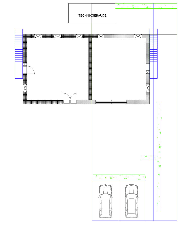
Garage, Carport - nein (Technikgebäude extern / Pultdach)
Nutzgarten, Treibhaus -
weitere Wünsche/Besonderheiten/Tagesablauf, gern auch Begründungen, warum dieses oder das nicht sein soll
Hausentwurf
Von wem stammt die Planung - Zur Zeit: „Do-it-Yourself“, eventuell macht es doch ein Architekt wenn es gar nicht passend zu bekommen ist.
Was gefällt besonders? Warum? - ich kann es mir gut vorstellen darin zu wohnen …
Was gefällt nicht? Warum? viel zu verwinkelt im Bereich Hauswirtschaftsraum / Badezimmer, auch oben die Treppe zum DG ist schwierig
Preisschätzung lt. Architekt/Planer: - für die Hülle inkl. Doppelflügelfenster kommt ein Angebot bis Ende März (anhand der hier gezeigten Pläne)
Persönliches Preislimit fürs Haus: bin mir da noch nicht sicher (für fast alles offen .
favorisierte Heiztechnik - Wärmepumpe, Photovoltaik + Batterie, Kontrollierte-Wohnraumlüftung, Fußbodenheizung, Eventuell Kühlung durch Fußbodenheizung (GRK möglich?)
Wenn Ihr verzichten müsst, auf welche Details/Ausbauten
-könnt Ihr verzichten -
• Großes Glasschiebetürelement im EG rechts (Eigennutzung) entfällt eventuell wg. KfW40
• Statt sehr hochwertiger Ausstattung mit Inventar (Küche,
Bad, Wohnzimmer) darf es auch recht einfach (aber gut) sein.
• eventuell der Ausbau des DG (der darf sowieso nicht „offiziell“ vermietet werden)
-könnt Ihr nicht verzichten:
• Badewanne
• Waschmaschine darf nicht im Bad sein
• In den Hauswirtschaftsraum kommt auch ein Teil der Kontrollierte-Wohnraumlüftung deswegen Hauswirtschaftsraum im EG unverzichtbar, Kontrollierte-Wohnraumlüftung Anlage OG kommt in den
Dremper des DG
Warum ist der Entwurf so geworden, wie er jetzt ist?
Verschiedene Entwürfe im Verwandtschaftskreis (einige bauen gerade selber, einige sind Haustechnikplaner)
durchgesprochen, verworfen und wieder neu geplant bis er technisch passte und uns gefiel - bis auf die u.g.
„Kleinigkeiten“
Da Badezimmer und Küche der beiden Doppelhaushälfte an der mittigen Wand (Brandschutzwand) sind wäre es schön
wenn sich die grundsätzliche Position auch nicht komplett ändern müsste.
Was ist die wichtigste/grundlegende Frage zum Grundriss in 130 Zeichen zusammengefasst?
• Alternative zu der doch sehr verwinkelten Hauswirtschaftsraum / Badezimmerlösung (teuer, eng) wobei die Wohnküche „grob“
so bleiben soll wie sie ist. Die gefällt mir nämlich gut (wg. Terrasse Richtung Süden vor Küche und Wohnzimmer.
• bessere Treppenlösung
• Stauraum OG fehlt
Pläne folgen gleich ...
nachdem meine Badezimmerplanung ja ziemlich gescheitert ist versuche ich mal die
gesamte Planung auf den Prüfstand zu stellen. Heute waren wir bei unserem bevorzugten
Bauunternehmen mit denen wir aller Voraussicht bauen wollen und haben die Pläne wie
hier zu sehen als Planungsgrundlage (Preis für Hülle inkl. Doppelflügelfenster, Dach, Ziegel, Dämmung)
vorgestellt.
Das BU hat keinen eigenen Architekten, unser Cousin (Architekt) ist leider ausgelastet
und könnte erst nächstet Jahr..., anderen Architekten sprechen wir erst nächste Woche.
Eventuell findet sich aber bis dahin hier eine Lösung für einen "schnuckeligen"
Grundriss der nicht so verwinkelt ist. Weniger Wände / Ecken, Trotzdem sollte alles
unterkommen. Ich hoffe ich habe alle notwendigen Infos dazu unten eingetragen?
Bebauungsplan/Einschränkungen
Größe der Grundstücke - 308m² + 338m²
Hang - nein (leicht Richtung Norden ansteigend, Max. 1m auf 28m Tiefe)
Grundflächenzahl - 0,4
Geschossflächenzahl - 0,8
Baufenster, Baulinie und -grenze - eingezeichnet bzw. im Bebauungsplan zu sehen
Randbebauung - ja, Grenzabstand nach Norden 4m
Anzahl Stellplatz - 2 (je Grundstück)
Geschossigkeit
Dachform - Satteldach mit ca. 50cm Dachüberstand
Stilrichtung
Ausrichtung - First von West - Ost
Maximale Höhen/Begrenzungen - Traufhöhe: 4.5m, Firsthöhe 9.0m
weitere Vorgaben - Gaube Max. 50% Trauflänge und 1.5m unter First
Anforderungen der Bauherren
Stilrichtung, Dachform, Gebäudetyp
Keller, Geschosse ohne Kelle - 2 Geschosse
Anzahl der Personen, Alter - links: je 2, rechts: je 1
Raumbedarf im EG, OG
Büro: Familiennutzung oder Homeoffice? - keines
Schlafgäste pro Jahr - 15 (Kleinkinder => Schlafcouch)
offene oder geschlossene Architektur - möglichst offen
konservativ oder moderne Bauweise - modern
offene Küche, Kochinsel - offene Wohnküchen
Anzahl Essplätze - links ca. 3-4, rechts ca. 2-3
Kamin - nein
Musik/Stereowand - ja
Balkon, Dachterrasse - unten Terrassen, oben Gaube (links 4m, rechts 3.5m) mit vorgesetztem Balkon
Garage, Carport - nein (Technikgebäude extern / Pultdach)
Nutzgarten, Treibhaus -
weitere Wünsche/Besonderheiten/Tagesablauf, gern auch Begründungen, warum dieses oder das nicht sein soll
Hausentwurf
Von wem stammt die Planung - Zur Zeit: „Do-it-Yourself“, eventuell macht es doch ein Architekt wenn es gar nicht passend zu bekommen ist.
Was gefällt besonders? Warum? - ich kann es mir gut vorstellen darin zu wohnen …
Was gefällt nicht? Warum? viel zu verwinkelt im Bereich Hauswirtschaftsraum / Badezimmer, auch oben die Treppe zum DG ist schwierig
Preisschätzung lt. Architekt/Planer: - für die Hülle inkl. Doppelflügelfenster kommt ein Angebot bis Ende März (anhand der hier gezeigten Pläne)
Persönliches Preislimit fürs Haus: bin mir da noch nicht sicher (für fast alles offen .
favorisierte Heiztechnik - Wärmepumpe, Photovoltaik + Batterie, Kontrollierte-Wohnraumlüftung, Fußbodenheizung, Eventuell Kühlung durch Fußbodenheizung (GRK möglich?)
Wenn Ihr verzichten müsst, auf welche Details/Ausbauten
-könnt Ihr verzichten -
• Großes Glasschiebetürelement im EG rechts (Eigennutzung) entfällt eventuell wg. KfW40
• Statt sehr hochwertiger Ausstattung mit Inventar (Küche,
Bad, Wohnzimmer) darf es auch recht einfach (aber gut) sein.
• eventuell der Ausbau des DG (der darf sowieso nicht „offiziell“ vermietet werden)
-könnt Ihr nicht verzichten:
• Badewanne
• Waschmaschine darf nicht im Bad sein
• In den Hauswirtschaftsraum kommt auch ein Teil der Kontrollierte-Wohnraumlüftung deswegen Hauswirtschaftsraum im EG unverzichtbar, Kontrollierte-Wohnraumlüftung Anlage OG kommt in den
Dremper des DG
Warum ist der Entwurf so geworden, wie er jetzt ist?
Verschiedene Entwürfe im Verwandtschaftskreis (einige bauen gerade selber, einige sind Haustechnikplaner)
durchgesprochen, verworfen und wieder neu geplant bis er technisch passte und uns gefiel - bis auf die u.g.
„Kleinigkeiten“
Da Badezimmer und Küche der beiden Doppelhaushälfte an der mittigen Wand (Brandschutzwand) sind wäre es schön
wenn sich die grundsätzliche Position auch nicht komplett ändern müsste.
Was ist die wichtigste/grundlegende Frage zum Grundriss in 130 Zeichen zusammengefasst?
• Alternative zu der doch sehr verwinkelten Hauswirtschaftsraum / Badezimmerlösung (teuer, eng) wobei die Wohnküche „grob“
so bleiben soll wie sie ist. Die gefällt mir nämlich gut (wg. Terrasse Richtung Süden vor Küche und Wohnzimmer.
• bessere Treppenlösung
• Stauraum OG fehlt
Pläne folgen gleich ...
K
knalltüte05.03.20 19:22K
knalltüte05.03.20 19:27K
knalltüte05.03.20 19:30Ich habe mich nach über 30 Jahren mal wieder mit AutoCAD versucht, verzeiht mir daher
bitte technische Fehler beim Zeichnen.
Das wird auch mein erstes selbst gebautes Haus, mein altes Haus habe ich vor über 20 Jahren
meinen Eltern abgekauft (älter als 250 Jahre, Bilder davon sind in einem anderen Thread ...)
Also auch hier: Keine echten Fachkenntnisse vorhanden (Trotz Bauzeichner-Lehre und so ca.
6 Semestern BauIng Wesen :-/ )
K
knalltüte05.03.20 19:40ach so, Terrasse ist noch nicht drin: Richtung Süden raus über die gesamte Breite
mit ca. 3m Tiefe, Material teils Steinplatten, teils Holzplanken.
Garten ist klein, ich nutze gerne die Terrasse oder einen Liegestuhl auf dem kleinen
Rasen und lese im Sommer aber eher nur am Wochenende
Wenn alles gut läuft könnte ich mir auch eine kleine Außensauna (Saunafass) vorstellen
für Max. 2 Personen.
mit ca. 3m Tiefe, Material teils Steinplatten, teils Holzplanken.
Garten ist klein, ich nutze gerne die Terrasse oder einen Liegestuhl auf dem kleinen
Rasen und lese im Sommer aber eher nur am Wochenende
Wenn alles gut läuft könnte ich mir auch eine kleine Außensauna (Saunafass) vorstellen
für Max. 2 Personen.
K
knalltüte05.03.20 19:45... es geht übrigens aktuell nur um den Grundriss rechts. Die linke Seite baut mein Bruder,
der ist auch noch dabei zu optimieren. Wenn es allerdings gute Vorschläge auch dafür
gibt .... sehr gerne
Beide Wohneinheiten links sollen übrigens vermietet werden. Rechts ziehe ich selber (allein) ins EG,
das OG soll auch hier vermietet werden.
Mir ist auch durchaus bewusst das kleine und hochwertig (KfW40+ = teuer) gebaute
Wohnungen keine "wirtschaftliche" Rendite abwerfen. Das steht bei mir glücklicherweise
auch nicht im Focus.
der ist auch noch dabei zu optimieren. Wenn es allerdings gute Vorschläge auch dafür
gibt .... sehr gerne
Beide Wohneinheiten links sollen übrigens vermietet werden. Rechts ziehe ich selber (allein) ins EG,
das OG soll auch hier vermietet werden.
Mir ist auch durchaus bewusst das kleine und hochwertig (KfW40+ = teuer) gebaute
Wohnungen keine "wirtschaftliche" Rendite abwerfen. Das steht bei mir glücklicherweise
auch nicht im Focus.
Ähnliche Themen