Hausbau - Ratgeber
Bauherrenhilfe
- Bauherrenhilfe vor Vertragsabschluss
-- Warum einen unabhängigen Baubetreuer?
-- Vertragsgrundlagen
-- Bausumme
-- Zahlungsplan zur Kostenkontrolle
-- Pflichten des Bauherren vor Vertragsabschluss
-- Unterlagen beim Hausbau vor Vertragsabschluss
- Bauherrenhilfe nach Vertragsabschluss
-- Bauantrag bei Behörden
-- Bau-Genehmigungsverfahren bei Baubehörden
-- Bauspezifische Versicherungen
-- Bauzeitenplan
-- Baubeginn - die Letzten Pflichten der Bauherrschaft
- Bauherrenhilfe während der Bauzeit
- Gewährleistungsansprüche
- Bauabnahme
Baufinanzierung
- Baufinanzierung - Allgemeine Fragen
- Kreditarten
- Kredit-Konditionen
- Bausparen
- Staatliche Förderungen
- Verkehrswert
- Haushaltsrechnung und Bonität
Hausbau Planung
- Haustypen
- Hausbau Vorbereitungsarbeiten
- Das Baugrundstück
- Baugrund beim Hausbau
- Baurecht
- Gebäudeschutz
- Erdarbeiten und Wasserhaltung
- Stützmauern
- Einfriedung
- Untergeschoss
- Kanalisation
- Tragende Elemente
- Nichttragende Innenwände
- Fundation / Fundament
- Deckenkonstruktionen
- Dächer
- Kaminanlagen
- Treppen Rampen Leitern
- Dachbeläge und Spengler
- Fenster
- Sonnen und Wetterschutz
- Aussenputze
- Einbauten, Küchen, Türen
- Bodenbeläge und Unterlagsböden
- Parkett
- Gips, Wand, Decke
Haustechnik und Energie
- Heiztechnik
- Lüftung und Klimatechnik
- Sanitärtechnik
- Elektrotechnik
- Erneuerbare Energie
Whirlpools / Jacuzzi
Hausbau Magazin
- Baufinanzierung trotz Krise?
- Das Blockhaus
- Moderne Dämmstoffe im Vergleich
- Erker Vor- und Nachteile
- Glasflächen beim Hausbau
- Günstig ein Haus Bauen
- Mediterraner Hausbaustil
- Mehrgenerationenhaus
- Moderne Architektur
- Gartengestaltung leicht gemacht
- Traditioneller Ziegelbau
- Villa als höchster Traum
- Im Eigenheim Ruhestand geniessen
- Altbau sanieren
- Kauf einer Holzgarage
- Immobilienmakler
- Arbeitshandschuhe für den Winter
- Zuhause verschönern
- Outdoor-Plissees
- Schlafzimmer planen
- Terrassenüberdachung
- Wohngebäudeversicherung
- Zaunarten und Eigenschaften
- Hauseingang gestalten
- Der perfekte Grundriss
- Sparsamer heizen im Altbau
- Einfamilienhaus smart finanzieren
- Planung einer PV-Anlage
- Neues Haus
- Immobilienfinanzierung
- Installation einer Photovoltaikanlage
- Asbest erkennen und entfernen
- Gartenpflege im Frühling – worauf achten
- Sauna im Fokus - Wellness zuhause
- Erfolgreich vermieten
- Die perfekte Winterbekleidung
- Das Niedrigenergiehaus
- Der April und seine Stürme
- Architektonische Vielfalt
- Ökologisch und nachhaltig bauen
- Das perfekte Schlafzimmer
- Nachhaltige Energieversorgung
- Zukunftsorientiert bauen
- Nachhaltigkeit beim Hausbau
- Tiny Houses
- Wärmepumpen als nachhaltige Heizvariante
- Maßgeschneiderten Kleiderschrank
- Der richtige Baukredit
- Ratgeber für erfolgreichen Hausbau
- Haus als Altersvorsorge
Do-it-yourself Anleitungen
- Verlegeanleitung für Bodenbeläge und Parkett
- Bodenbeläge und Parkett reinigen und pflegen
- Malerarbeiten am Haus
- Garten Tipps
- Umzug und Reinigung

ᐅ Grundrissplanung - Grundstück mit Straßenzugang Südseite

Erstellt am: 01.02.24 22:06
B
bvh2024
B
bvh2024
01.02.24 22:06
Hallo,

so ich probiers auch mal. Wir haben ein Grundstück mit Zufahrt von der Südseite gekauft, die Auswahl war nicht wirklich vorhanden und wir sind froh zumindest, dass ein Zuhause für unsere Familie zumindest mal in mögliche Nähe rückt. Die Detailplanung gestaltet sich dann doch nicht so einfach. Wie gesagt die Südseite unseres Hauses wäre zur Straße ausgerichtet und von daher sind die meisten Grundrisse der Fertighausanbieter nicht gleich umsetzbar. Wir haben einen Vorschlag vom örtlichen Bauunternehmer und dessen unterstützendem Architekten bekommen. Das hat mich final auch noch nicht überzeugt (wesentliches ist vorhanden außer Eingangsbereich und Treppenhaus) und ich habe mir selbst Gedanken gemacht - vllt auch einfach um bei der Vorstellung klarer zu werden. Da wir mit Keller bauen und auch aus den Erfahrungen unser bisherigen Mietwohnung wäre eine gerade begehbare Treppe wünschenswert. Da unsere Wohnung aktuell komplett offen gestaltet ist, tendieren wir eher zu einem geschlossenem Raumkonzept über die Etagen hinweg.

Im Prinzip bräuchte ich allgemeines Feedback, im Speziellen aber zum Eingangsbereich/ Treppenhaus. Gerne auch Verbesserungsvorschläge zur aktuell Front. Was denkt ihr über den Zugang zur Garage?


Bebauungsplan/Einschränkungen
Größe des Grundstücks: 650m²
Hang: nein
Grundflächenzahl: 0,4
Geschossflächenzahl: n.v.
Baufenster, Baulinie und –grenze: 6m zur Nord und Südseite
Randbebauung
Anzahl Stellplatz: mind 2
Geschossigkeit
Dachform: Alle Dachformen zulässig
Stilrichtung
Ausrichtung: Nord-Süd
Maximale Höhen/Begrenzungen: TH 6,5, FH 9,5


Anforderungen der Bauherren
Stilrichtung, Dachform, Gebäudetyp: 2 Vollgeschosse, Stadtvilla
Keller, Geschosse: Keller, 2 Vollgeschosse
Anzahl der Personen, Alter; 4 Personen, 2 Erwachsene, 2 kleine Kinder
Raumbedarf im EG, OG
Büro: Familiennutzung oder Homeoffice? Homeoffice
Schlafgäste pro Jahr: 4, Bruder mit Familie
offene oder geschlossene Architektur: Aktuell geschlossen
offene Küche, Kochinsel: Offene Küche, zum Esszimmer
Anzahl Essplätze: 4, max 10 (2-3 mal im Jahr)
Kamin: nein
Musik/Stereowand: nein
Balkon, Dachterrasse: nein
Garage, Carport: Garage
Nutzgarten, Treibhaus
weitere Wünsche/Besonderheiten/Tagesablauf, gern auch Begründungen, warum dieses oder das nicht sein soll

Vielen Dank an Euch!

Andi


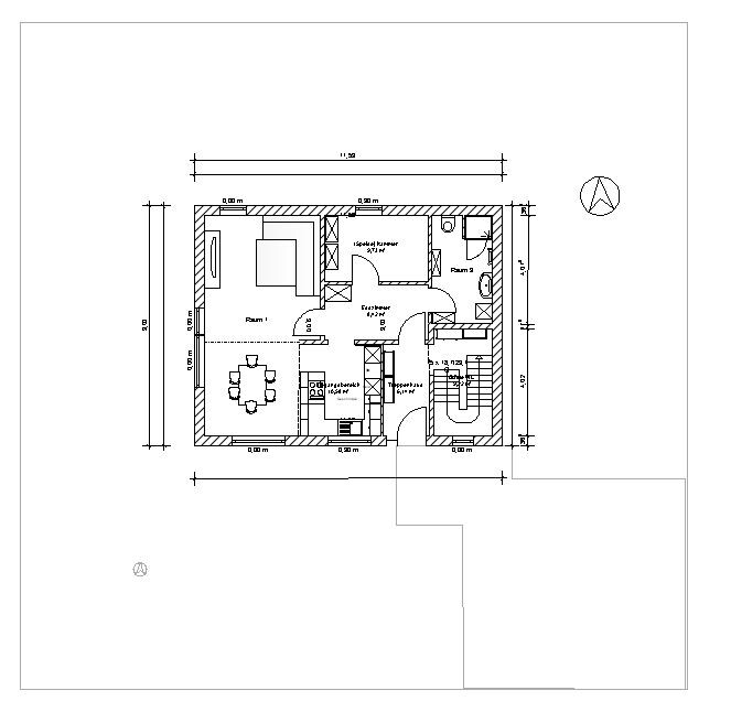
2D-Grundriss eines Hauses mit mehreren Räumen und Treppen


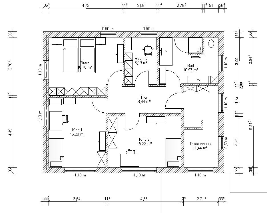
Grundriss eines Gebäudes: Gästzimmer, Stauraum, Waschraum/Heizraum, Flur, Treppen.


Zweistöckiges modernes Haus mit grauer Fassade, dunklen Fenstern, Garage und Zufahrt.


Grundriss: Garage mit zwei Autos, angrenzendes Treppenhaus und Eingangsbereich.

Grundriss eines Hauses: Wohn-/Esszimmer, Küche, Speisekammer, Esszimmer, Gäste-WC, Eingangsbereich.

Grundriss eines Hauses mit Flur, Bad, Eltern- und Kinderzimmern, Treppenhaus
C
Costruttrice
01.02.24 22:18
Ich verstehe das EG mit dem Flur, der im Plan auch noch als „Esszimmer“ bezeichnet wird, nicht. Das ist mE verschenkter Platz.
Die Eingangs-und Treppenhaussituation erinnert mich an ein 2 Familienhaus.
Y
ypg
01.02.24 22:48
Costruttrice schrieb:

Flur, der im Plan auch noch als „Esszimmer“ bezeichnet wird,
Das passiert, wenn man eine Software, die man nicht beherrscht, nutzt und das dann auch noch huschhusch zum Kunden bringt.
bvh2024 schrieb:

Wir haben einen Vorschlag vom örtlichen Bauunternehmer und dessen unterstützendem Architekten bekommen.
Wenn das vom Architekten ist, dann soll er mal anfangen, seinen Traumberuf zu studieren. Sorry, aber das geht gar nicht.
Da sind keine Wände übereinander (außer die 3,43 er Mittelwand), Fenster in der Front sind sieben mit verflixten 7 verschiedenen Formen, 9qm Speis und Gäste-WC ähnlicher Größe, stattdessen einen Wohnraum im Keller… und 36,5 Wände: hat man die noch? Fenster sind auch völlig willkürlich gesetzt und gehen keine Verbindung mit dem anderen Geschoss ein.
bvh2024 schrieb:

gerade begehbare Treppe wünschenswert
Wo ist denn die?
bvh2024 schrieb:

Gerne auch Verbesserungsvorschläge zur aktuell Front.
s.o.
bvh2024 schrieb:

Was denkt ihr über den Zugang zur Garage?
überflüssig… aber kann man machen. Dann muss man das Tor nicht öffnen. Dann würde ich aber eher an der Treppe einen Direktzugang planen.

Vom Grundsatz her finde ich die Raumaufteilung hinsichtlich der Südseite in Ordnung so. Das kann man gern so machen. So ein Treppenhaus rennt immer irgendwie die Familie. Ich mag das nicht. Das ist immer irgendwie Barriere, einfach mal schnell nach oben zu huschen, das macht man dann nicht mehr.
Speis und WC viel zu groß, da könnte man gut den Gast/Büro unterbringen. Küche wie gehabt, einfach mal das langweilige U hingerotzt. Ok, will ja jeder so haben. Finde ich aber zu wenig schrank- und Stellfläche. Wir haben zu zweit mehr, und das ist aufgeräumt knapp.

Wie ist das Budget?
11ant01.02.24 23:28
bvh2024 schrieb:

Wir haben einen Vorschlag vom örtlichen Bauunternehmer und dessen unterstützendem Architekten bekommen. Das hat mich final auch noch nicht überzeugt
Uns überzeugt es nicht nur nicht final. Gehe zuerst zu einem frei gewählten Architekten (ganz wichtig: keinem, der nur bis Leistungsphase 4 arbeiten will !), und erst mit dem zum Bauunternehmer (bevorzugt zu einem regionalen, regelrecht lokal braucht er nicht zu sein).
bvh2024 schrieb:

und ich habe mir selbst Gedanken gemacht - vllt auch einfach um bei der Vorstellung klarer zu werden.
Du selbst wirst ebensowenig Architektur studiert haben wie der Bauzeichner. Deshalb mache Deine eigenen Planungsspiele ausschließlich für diesen Klarwerdungsprozeß, also strikt getrennt von der ernsthaften konkreten Hausplanung. Nehme diese Planungsversuchs-Ergebnisse auch keinesfalls zu frühen Gesprächen mit dem Architekten mit, sondern diskutiere sie höchstens nachdem er seinen eigenen Entwurf gezeigt hat.
https://www.instagram.com/11antgmxde/
https://www.linkedin.com/company/bauen-jetzt/
K a t j a02.02.24 05:23
Ich denke, diesen Versuch kannst Du getrost zerknüllen und in Abage P befördern.
Fang doch am besten am Anfang an und zeig uns erstmal Deinen neuen Grundbesitz. Gemeint ist ein Lageplan mit den Maßen des Grundstücks, Straße, gewünschte Hausplatzierung, evtl. Nachbargebäude, Besonderheiten wie z.B. Hanglage, Waldrand oder ähnliches.
H
hanghaus2023
02.02.24 09:11
Am besten Du sagst uns mal was der Bebauungsplan vorschreibt. Du kannst den auch hier nennen falls der Online zu finden ist. Ansonsten mindestens ein Luftbild mit der Umgebung.
treppenhausarchitektenkellergarageküchebauunternehmereingangsbereichfrontbebauungsplanvollgeschosse