ᐅ Grundrissplanung Einfamilienhaus 164qm / 2 Vollgeschosse Optimierung
Erstellt am: 16.03.22 23:26
H
holm667Hallo zusammen,
wir sind aktuell in der Entwurfsplanung mit unserem Bauplaner und haben jetzt einen Entwurfsstand der unsere Anforderungen weitestgehend erfüllt und uns auch gut gefällt. Mich würde interessieren ob ihr noch Optimierungspotential seht oder Details/Abstände die völlig unrealistisch oder umpraktikabel sind.
Bebauungsplan/Einschränkungen
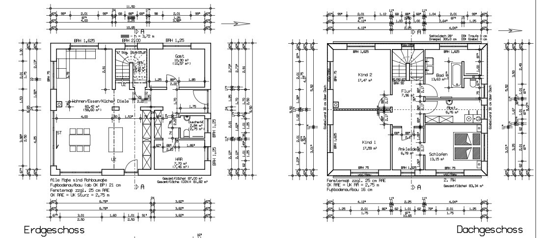
Größe des Grundstücks: 1053qm
Hang: nein
Grundflächenzahl: kein Bebauungsplan
Geschossflächenzahl: kein Bebaubungsplan
Baufenster, Baulinie und -grenze
Randbebauung
Anzahl Stellplatz: 2 Stellplätze / Doppelgarage
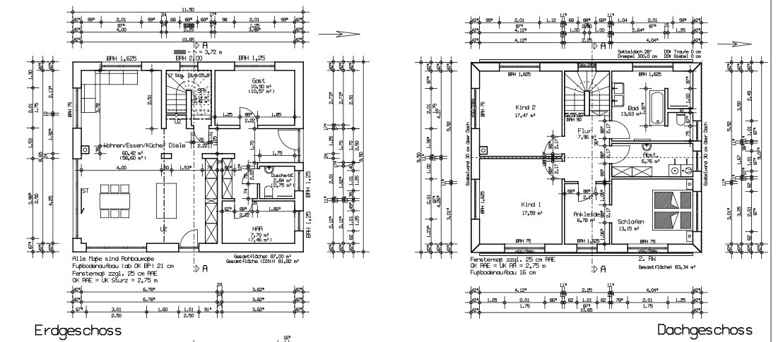
Geschossigkeit: 2 Vollgeschosse
Dachform: Satteldach 28°
Stilrichtung: modern / Stadthaus
Ausrichtung: siehe Zeichnung/ Eingang von Nordseite
Maximale Höhen/Begrenzungen: n/a
weitere Vorgaben. n/a
Anforderungen der Bauherren
Stilrichtung, Dachform, Gebäudetyp: modern / Satteldach
Keller, Geschosse: Bodenplatte / 2 Vollgeschosse
Anzahl der Personen, Alter: 2 Erwachsene (35/40), 2 Kinder (2/5)
Raumbedarf im EG, OG: je 80qm
Büro: Familiennutzung oder Homeoffice?: ja notwendig (tägliche Nutzung)
Schlafgäste pro Jahr: 5-10
offene oder geschlossene Architektur: offen
konservativ oder moderne Bauweise: modern
offene Küche, Kochinsel: offene Küche mit Kücheninsel
Anzahl Essplätze: 6
Kamin: ja
Musik/Stereowand: nein
Balkon, Dachterrasse: nein
Garage, Carport: Doppelgarage
Nutzgarten, Treibhaus: nein
weitere Wünsche/Besonderheiten/Tagesablauf, gern auch Begründungen, warum dieses oder das nicht sein soll
Hausentwurf
Von wem stammt die Planung:
-Planer eines Bauunternehmens
Was gefällt besonders? Warum?
-offene Bauweise
-alle Zimmer die wir benötigen
Was gefällt nicht? Warum?
-Flur zu schmal?
-eventuell Podesttreppe (wäre das möglich / Planer sagt, dass es eher nicht passt
-wenig Stellfläche an Wänden
Preisschätzung lt Architekt/Planer: 400K€
Persönliches Preislimit fürs Haus, inkl Ausstattung:
favorisierte Heiztechnik: Luft-Wasser-Wärmepumpe
Wenn Ihr verzichten müsst, auf welche Details/Ausbauten
-könnt Ihr verzichten: Kamin
-könnt Ihr nicht verzichten: Arbeitszimmer / DU/WC im EG
Warum ist der Entwurf so geworden, wie er jetzt ist?
-Musterhaus mit ähnlichem Grundriss besichtigt / 2 Anpassungschleifen durch den Planer sind erfolgt

wir sind aktuell in der Entwurfsplanung mit unserem Bauplaner und haben jetzt einen Entwurfsstand der unsere Anforderungen weitestgehend erfüllt und uns auch gut gefällt. Mich würde interessieren ob ihr noch Optimierungspotential seht oder Details/Abstände die völlig unrealistisch oder umpraktikabel sind.
Bebauungsplan/Einschränkungen
Größe des Grundstücks: 1053qm
Hang: nein
Grundflächenzahl: kein Bebauungsplan
Geschossflächenzahl: kein Bebaubungsplan
Baufenster, Baulinie und -grenze
Randbebauung
Anzahl Stellplatz: 2 Stellplätze / Doppelgarage
Geschossigkeit: 2 Vollgeschosse
Dachform: Satteldach 28°
Stilrichtung: modern / Stadthaus
Ausrichtung: siehe Zeichnung/ Eingang von Nordseite
Maximale Höhen/Begrenzungen: n/a
weitere Vorgaben. n/a
Anforderungen der Bauherren
Stilrichtung, Dachform, Gebäudetyp: modern / Satteldach
Keller, Geschosse: Bodenplatte / 2 Vollgeschosse
Anzahl der Personen, Alter: 2 Erwachsene (35/40), 2 Kinder (2/5)
Raumbedarf im EG, OG: je 80qm
Büro: Familiennutzung oder Homeoffice?: ja notwendig (tägliche Nutzung)
Schlafgäste pro Jahr: 5-10
offene oder geschlossene Architektur: offen
konservativ oder moderne Bauweise: modern
offene Küche, Kochinsel: offene Küche mit Kücheninsel
Anzahl Essplätze: 6
Kamin: ja
Musik/Stereowand: nein
Balkon, Dachterrasse: nein
Garage, Carport: Doppelgarage
Nutzgarten, Treibhaus: nein
weitere Wünsche/Besonderheiten/Tagesablauf, gern auch Begründungen, warum dieses oder das nicht sein soll
Hausentwurf
Von wem stammt die Planung:
-Planer eines Bauunternehmens
Was gefällt besonders? Warum?
-offene Bauweise
-alle Zimmer die wir benötigen
Was gefällt nicht? Warum?
-Flur zu schmal?
-eventuell Podesttreppe (wäre das möglich / Planer sagt, dass es eher nicht passt
-wenig Stellfläche an Wänden
Preisschätzung lt Architekt/Planer: 400K€
Persönliches Preislimit fürs Haus, inkl Ausstattung:
favorisierte Heiztechnik: Luft-Wasser-Wärmepumpe
Wenn Ihr verzichten müsst, auf welche Details/Ausbauten
-könnt Ihr verzichten: Kamin
-könnt Ihr nicht verzichten: Arbeitszimmer / DU/WC im EG
Warum ist der Entwurf so geworden, wie er jetzt ist?
-Musterhaus mit ähnlichem Grundriss besichtigt / 2 Anpassungschleifen durch den Planer sind erfolgt
Willkommen im Forum,
dein Grundriss gefällt mir, kompakt in den qm und große Räume.
Kamin wäre bei mir auch raus (Spielbereich für die Kids),
die Insel würde ich unten andocken als Halbinsel,
die Couch mit Blick in den Garten,
AZ (reicht trotzdem) gibt 2qm dem Flur ab, die braucht der bei 4 Personen,
Kleinigkeiten halt, das Haus funktioniert
dein Grundriss gefällt mir, kompakt in den qm und große Räume.
Kamin wäre bei mir auch raus (Spielbereich für die Kids),
die Insel würde ich unten andocken als Halbinsel,
die Couch mit Blick in den Garten,
AZ (reicht trotzdem) gibt 2qm dem Flur ab, die braucht der bei 4 Personen,
Kleinigkeiten halt, das Haus funktioniert
An sich ein Standard Grundriss, der im Großen und Ganzen funktioniert. Generell finde ich eine Betrachtung ohne Grundstück unvollständig .
Was würde ich bedenken:
- Gäste-WC Tür öffnet in die Garderobe: Bei Feiern o.Ä. geht jemand noch auf Toilette vor dem Nachhausegehen, andere ziehen sich schon an -> Jemand kriegt die Tür ab
- Die mittige Badewanne im OG sorgt zusammen mit dem Handtuchhalter dafür, dass man im Durchgang zur Toilette vielleicht 70cm hat, das wirkt gedrungen
- Das Elternschlafzimmer mit der Ankleide finde ich ebenfalls unnötig gedrungen. Die Ankleide hat 1.01cm + 2*62cm. Wenn ihr auf beide Seiten Schränke / Sideboards stellt, ist es zu eng und erinnert an ein Lager, das man durchquert. Stellt ihr nur an die lange Wand einen Schrank, sollte man sich die Frage des Mehrwertes der Ankleide stellen.
Viele Grüße
Was würde ich bedenken:
- Gäste-WC Tür öffnet in die Garderobe: Bei Feiern o.Ä. geht jemand noch auf Toilette vor dem Nachhausegehen, andere ziehen sich schon an -> Jemand kriegt die Tür ab
- Die mittige Badewanne im OG sorgt zusammen mit dem Handtuchhalter dafür, dass man im Durchgang zur Toilette vielleicht 70cm hat, das wirkt gedrungen
- Das Elternschlafzimmer mit der Ankleide finde ich ebenfalls unnötig gedrungen. Die Ankleide hat 1.01cm + 2*62cm. Wenn ihr auf beide Seiten Schränke / Sideboards stellt, ist es zu eng und erinnert an ein Lager, das man durchquert. Stellt ihr nur an die lange Wand einen Schrank, sollte man sich die Frage des Mehrwertes der Ankleide stellen.
Viele Grüße
K
K a t j a17.03.22 06:46Sieht gut aus. Vermutlich würde ich Badewanne und Waschbecken im Bad tauschen und Bett im Schlafzimmer drehen mit Kopf an die planobere Wand. Im Gäste-WC ist eine Dusche? Wie groß ist die?
K a t j a schrieb:
Im Gäste-WC ist eine Dusche? Wie groß ist die?...und vor allem: Wie ist die geplant bei der restlichen Badeinrichtung und dem Fenster. Da fehlt mir die Phantasie...SoL schrieb:
Generell finde ich eine Betrachtung ohne Grundstück unvollständig .Da stimme ich zu. Der Grundriss selber gefällt mir auf Anhieb. Mir fehlen auch lesbare Brüstungshöhen der Fenster.SoL schrieb:
Gäste-WC Tür öffnet in die Garderobe: Bei Feiern o.Ä. geht jemand noch auf Toilette vor dem Nachhausegehen, andere ziehen sich schon an -> Jemand kriegt die Tür abwird überschätzt, meine Badezimmertür geht seit mehr als 10 Jahren in den Flur auf. Da hat es noch keine Kollisionen mit Gästen gegeben, die gerade das Haus verlassen. Bei der Badgröße ist es aber für die Nutzung des Bades ein wesentlicher positiver Nutzfaktor, wenn die Tür nach außen aufgeht.Nida35a schrieb:
die Insel würde ich unten andocken als Halbinsel,Nein ... hier ist wirklich Platz für eine Insel und das ist ausgesprochen praktisch, weil immer 2 Wege zu den Arbeitsplätzen/Geräten der Küche führen.K a t j a schrieb:
Sieht gut aus. Vermutlich würde ich Badewanne und Waschbecken im Bad tauschen und Bett im Schlafzimmer drehen mit Kopf an die planobere Wand.Volle Zustimmung. Da könnte dann die Trennwand Ankleide Schlafzimmer evtl. noch ca. 20 cm nach planrechts, der Durchgang Ankleide / Schlafzimmer nach planunten.Und im Bad würde der Tausch Badewanne / Waschtisch auch dafür sorgen, dass seitlich natürliches Licht zum Waschtisch fällt.
Gästebad .. da würde ich vermutlich eher ein kleineres Fenster, sehr schmal quasi nach planoben setzen. Dann kann das eine bodenebene Dusche mit 70 cm Glastrennwand Richtung Toilette werden. Leider auch hier das Manko, dass man die Zahlen kaum lesen kann und mehr raten muss 😉.
Nida35a schrieb:
die Couch mit Blick in den Garten,Vermutlich hat sie den schon, denn ich würde den Garten planunten vermuten, wobei, sehe gerade, Schiebetür ist planlinks, hier fehlt halt der Lageplan.Ähnliche Themen