ᐅ Grundriss Doppelhaushälfte - Feedback erwünscht :-)
Erstellt am: 08.12.13 22:09
I
Isabell200308.12.13 22:09Hallo liebe Häuslebauer,
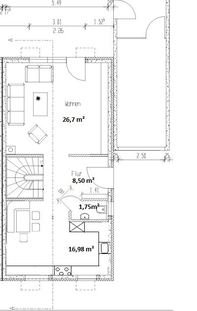
auch wir bauen nächstes Jahr eine unterkellerte schnuckelige Doppelhaushälfte mit den Außenmaßen 12 x 6m auf einem 275m² Grundstück. Im Obergeschoss gibt es bereits Schrägen, Dachneigung liegt bei 45°.
Wohnfläche kommen wir auf ca. 110 m² plus 55m² Keller.
Noch sind wir zu zweit, ein Kind ist in 2 Jahren geplant. Wichtig war uns ein größerer Küchen-/Essbereich, da wir oft Besuch haben.
Die Bauanträge sind bereits gestellt. Der Grundriss steht auch soweit, jedoch würden wir gern noch mal ein paar Meinungen von den Profis hören, da das Planungs- und Statikgespräch noch folgt !
Vielen Dank im Voraus und liebe Grüße




auch wir bauen nächstes Jahr eine unterkellerte schnuckelige Doppelhaushälfte mit den Außenmaßen 12 x 6m auf einem 275m² Grundstück. Im Obergeschoss gibt es bereits Schrägen, Dachneigung liegt bei 45°.
Wohnfläche kommen wir auf ca. 110 m² plus 55m² Keller.
Noch sind wir zu zweit, ein Kind ist in 2 Jahren geplant. Wichtig war uns ein größerer Küchen-/Essbereich, da wir oft Besuch haben.
Die Bauanträge sind bereits gestellt. Der Grundriss steht auch soweit, jedoch würden wir gern noch mal ein paar Meinungen von den Profis hören, da das Planungs- und Statikgespräch noch folgt !
Vielen Dank im Voraus und liebe Grüße
Hi,
wie hoch ist denn der Drempel im 1. OG? Die Ankleide mit den Schrägen dürfte nicht viele Schränke fassen. Es sei denn, man lässt sie sie vom Schreiner fertigen.
Ansonsten solide Sache. Die Eckbadewanne würde ich glaub ich lieber als normale Wanne nehmen.
Sehr viel Spielraum ist da nicht, finde ich. Zwillinge Dürfens halt nicht werden.
wie hoch ist denn der Drempel im 1. OG? Die Ankleide mit den Schrägen dürfte nicht viele Schränke fassen. Es sei denn, man lässt sie sie vom Schreiner fertigen.
Ansonsten solide Sache. Die Eckbadewanne würde ich glaub ich lieber als normale Wanne nehmen.
Sehr viel Spielraum ist da nicht, finde ich. Zwillinge Dürfens halt nicht werden.
T
toxicmolotof08.12.13 23:41Ah, Denkfehler in meinem Beitrag. Die 8,53qm wird wohl nicht die Grünfläche sein.
Aber der Drempel wird wohl sehr niedrig sein.
Aber der Drempel wird wohl sehr niedrig sein.
B
Bauexperte09.12.13 09:32Hallo,
bei 6 x 12.00 m gibt es jetzt nicht so viel Planungsspielraum ... nur
Du solltest dieses Gespräch dennoch nutzen und über die Lage des Bades im DG sprechen. Damit wirst Du nicht glücklich werden, nimmst Du nicht einige zusätzliche Schallschutzmaßnahmen bzgl. der Leitungen in Angriff. Die Entwässerung der Toilette läuft Dir genau durchs Wohnzimmer; setzt Du die Toilette auf die gegenüberliegende Wand, dürfte der Raum im darunter liegenden Gäste-WC knapp werden.
All in hast Du sicher nicht viele Möglichkeiten; insbesondere, da der Bauantrag bereits gestellt ist. Aber der Grundriss erscheint mir - zumindest, was die Lage des Bades betrifft, nicht sehr durchdacht zu sein.
Grüße, Bauexperte
bei 6 x 12.00 m gibt es jetzt nicht so viel Planungsspielraum ... nur
Isabell2003 schrieb:Du meinst sicher das Werkplangespräch; mit der Statik hast Du nur indirekt zu tun und nur marginales Mitspracherecht. Der Statiker hält seine Rübe dafür hin, damit das schnuckelige Häuschen auch Jahre Bestand hat
... da das Planungs- und Statikgespräch noch folgt !
Du solltest dieses Gespräch dennoch nutzen und über die Lage des Bades im DG sprechen. Damit wirst Du nicht glücklich werden, nimmst Du nicht einige zusätzliche Schallschutzmaßnahmen bzgl. der Leitungen in Angriff. Die Entwässerung der Toilette läuft Dir genau durchs Wohnzimmer; setzt Du die Toilette auf die gegenüberliegende Wand, dürfte der Raum im darunter liegenden Gäste-WC knapp werden.
All in hast Du sicher nicht viele Möglichkeiten; insbesondere, da der Bauantrag bereits gestellt ist. Aber der Grundriss erscheint mir - zumindest, was die Lage des Bades betrifft, nicht sehr durchdacht zu sein.
Grüße, Bauexperte
I
Isabell200309.12.13 14:23wow schon so viele Antworten- vielen vielen Dank.
@toxicmolotow: das sind die Wohnflächen-Angaben, Grundfläche sieht wie folgt aus:
Schlafzimmer: 13,03 m²
Ankleide: 7,21 m²
Mit der Diele im EG sind wir uns auch noch nicht so sicher, haben aber gedacht rechts und links bekommt man nen Schuhschrank und ne Garderobe hin !?
@kaho674: Der Drempel liegt (glaub ich) bei 1,00m.
In der Ankleide habe ich an Kleiderstangen und unten Kommoden gedacht. Hab bei normalen Schränken immer das Problem, dass ich nicht "oben" drankomme
@Bauexperte: danke ! Werkplangespräch- das hört sich besser an *g*
Das mit dem Bad ist echt ein guter Tipp, da hab ich im Leben nicht drüber nachgedacht. Ich hatte schon überlegt, das Gäste-WC Richtung Diele etwas zu vergrößern, weil ich mir doch nen Wäscheschacht wünsche
@Wastl : Oben im Plan ist Süden und der Garten, unten ist die Anliegerstrasse. Das heißt vor der Garage ist die Einfahrt. Wir überlegen auch die Garage vom Haus weg und Nähe Grundstücksgrenze zu setzen.
Im Schlafzimmer gibt es ein Dachflächenfenster
@toxicmolotow: das sind die Wohnflächen-Angaben, Grundfläche sieht wie folgt aus:
Schlafzimmer: 13,03 m²
Ankleide: 7,21 m²
Mit der Diele im EG sind wir uns auch noch nicht so sicher, haben aber gedacht rechts und links bekommt man nen Schuhschrank und ne Garderobe hin !?
@kaho674: Der Drempel liegt (glaub ich) bei 1,00m.
In der Ankleide habe ich an Kleiderstangen und unten Kommoden gedacht. Hab bei normalen Schränken immer das Problem, dass ich nicht "oben" drankomme
@Bauexperte: danke ! Werkplangespräch- das hört sich besser an *g*
Das mit dem Bad ist echt ein guter Tipp, da hab ich im Leben nicht drüber nachgedacht. Ich hatte schon überlegt, das Gäste-WC Richtung Diele etwas zu vergrößern, weil ich mir doch nen Wäscheschacht wünsche
@Wastl : Oben im Plan ist Süden und der Garten, unten ist die Anliegerstrasse. Das heißt vor der Garage ist die Einfahrt. Wir überlegen auch die Garage vom Haus weg und Nähe Grundstücksgrenze zu setzen.
Im Schlafzimmer gibt es ein Dachflächenfenster
Ähnliche Themen