ᐅ Gäste-WC Anordnung - Tipps?
Erstellt am: 15.05.20 18:11
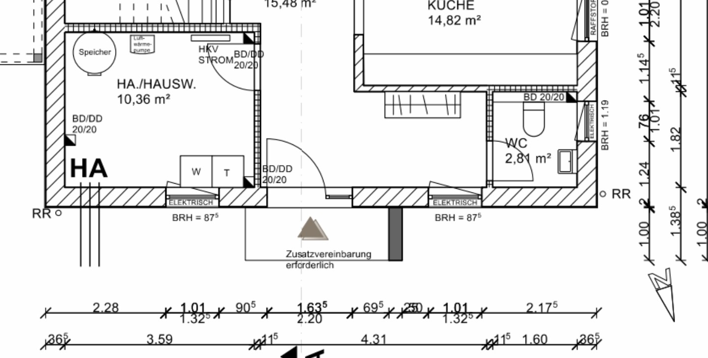
Das Gäste-WC hat die Maße 1,6x1,82m.
Wie würdet ihr die Sanitärobjekte anordnen? Findet ihr diese Version exotisch, da neben dem waschbecken das Fenster ist?
Eine Möglichkeit wäre die Kloschüssel zu drehen, so dass darüber das Fenster ist. Diese Abordnung sieht man öfter. Die hier gezeigte scheint mir unüblich zu sein, aber was weiß schon ich
Was ist aber die eleganteste Methode? Oder: wie würdet ihr es machen, wenn es euer Gäste-WC wäre?

Wie würdet ihr die Sanitärobjekte anordnen? Findet ihr diese Version exotisch, da neben dem waschbecken das Fenster ist?
Eine Möglichkeit wäre die Kloschüssel zu drehen, so dass darüber das Fenster ist. Diese Abordnung sieht man öfter. Die hier gezeigte scheint mir unüblich zu sein, aber was weiß schon ich
Was ist aber die eleganteste Methode? Oder: wie würdet ihr es machen, wenn es euer Gäste-WC wäre?
V
Vicky Pedia15.05.20 20:31Bei 3 m² gibts nicht so viele Varianten. Also warum nicht?
H
hausnrplus2515.05.20 21:01Man sollte halt gewährleisten können, dass man hineingehen, die Tür schließen und dann die Toilette nutzen kann.
(Platz zw. Tür und Waschbecken sowie Tür und Toilette sieht aber okay aus)
Ansonsten könnte man die Tür auch nach außen öffnen lassen und egal welche Version, ihr hättet mehr als ausreichend Platz IM Raum.
Idee, einfach weil du danach gefragt hast: planrechts unten die Toilette in die Ecke setzen, also schräg?! (dann müsste aber wohl die Tür etwas hochgesetzt werden)
(Platz zw. Tür und Waschbecken sowie Tür und Toilette sieht aber okay aus)
Ansonsten könnte man die Tür auch nach außen öffnen lassen und egal welche Version, ihr hättet mehr als ausreichend Platz IM Raum.
Idee, einfach weil du danach gefragt hast: planrechts unten die Toilette in die Ecke setzen, also schräg?! (dann müsste aber wohl die Tür etwas hochgesetzt werden)
V
Vicky Pedia15.05.20 21:26Tür nach außen ist ne gute Alternative, ansonsten gibt es nicht viel Möglichkeiten.
Ich habe gerade keine Lust, in Deinem Hauptthread nachzuschauen, aber da lese ich ein BD/DD beim Spülkasten - also einen Hinweis auf ein Fallrohr, das da schon von oben kommt und wohl auch mitbenutzt werden sollte. Und meinetwegen schlag´ mich für den fiesen Chauvikommentar, aber was interessiert Dich das als Frau überhaupt ? - Du wirst da m.E. Geschäftchen verrichten, Pfötchen waschen, noch mal schnell durch die Frisur bürsten oder den Lippenstift nachziehen (also alles Verrichtungen ohne langen Verbleib und Gelegenheit zur großartigen Architekturreflektion). Von Deinem Mann verstünde ich die Frage eher, Männer lesen auf dem Klo auch den Kicker
https://www.instagram.com/11antgmxde/
https://www.linkedin.com/company/bauen-jetzt/
https://www.instagram.com/11antgmxde/
https://www.linkedin.com/company/bauen-jetzt/
Das ist nur ein Bodendurchbruch. Darüber ist das Schlafzimmer
Da man diese Anordnung nicht so oft sieht, dachte ich, dass es vielleicht Gründe hat. Aber die Kloschüssel schräg setzen ist irgendwie auch nichts für mich. Ich hab das Gefühl, dass das Fenster immer seitlich zum Waschbecken und nicht neben das Waschbecken platziert wird. Mein Mann findet es toll wie es ist. Ich störe mich nur etwas dran. Aber ist ja auch nur ein WC. Wenn ihr das nicht komisch findet, dann ist da wahrscheinlich auch nichts komisch dran.
Da man diese Anordnung nicht so oft sieht, dachte ich, dass es vielleicht Gründe hat. Aber die Kloschüssel schräg setzen ist irgendwie auch nichts für mich. Ich hab das Gefühl, dass das Fenster immer seitlich zum Waschbecken und nicht neben das Waschbecken platziert wird. Mein Mann findet es toll wie es ist. Ich störe mich nur etwas dran. Aber ist ja auch nur ein WC. Wenn ihr das nicht komisch findet, dann ist da wahrscheinlich auch nichts komisch dran.
Ähnliche Themen