ᐅ Grundriss - Anregungen & Kritik erwünscht!
Erstellt am: 29.07.16 16:24
Liebe Forengemeinde,
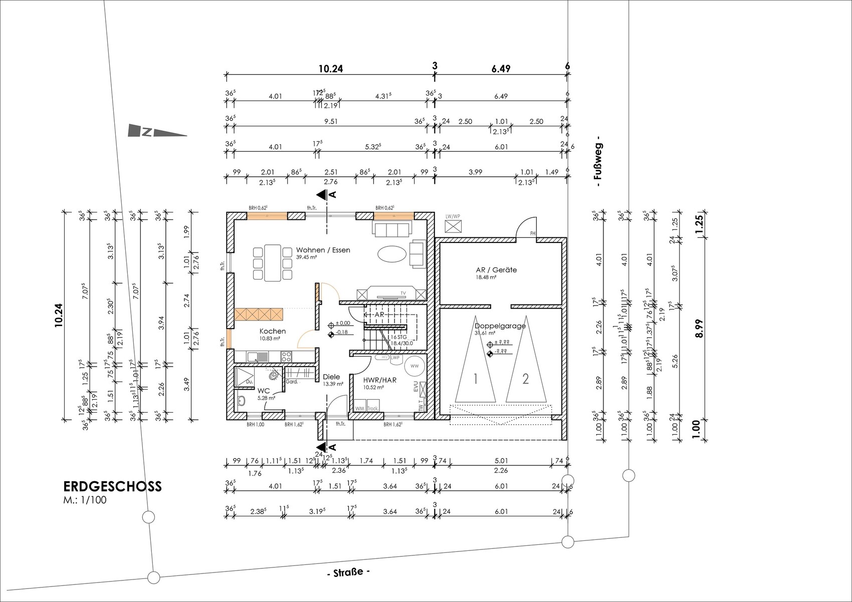
auch ich möchte nun unseren Grundriss hier zur Diskussion veröffentlichen. Es handelt sich um den ersten Entwurf unseres Planers, welcher mit Hilfe unserer Vorgaben und Wünsche entstanden ist. Das ungefähre Grundgerüst des Entwurfs stammt von uns selbst, die Feinheiten hat der Planer übernommen. Es sei erwähnt, dass der Hausbau bei uns schon lange geplant ist und wir uns dementsprechend schon lange auch mit Grundrissen beschäftigt haben und ich im Laufe der Zeit sehr "pingelig" diesbezüglich geworden bin und ich recht genaue Vorstellungen von unserem Grundriss habe, von denen ich nicht abweichen will. Ich weiß, das ist nicht immer gut aber das ist durch die lange Zeit der Information die wir nun hatten, bevor es nun mit der Planung losging, so entstanden. Daher hoffe ich, dass der Grundriss hier nicht völlig in der Luft zerrissen wird, aber natürlich sollt ihr euch nicht scheuen Kritik zu üben, dafür mache ich das ja hier .
---------------------------------------------
Bebauungsplan/Einschränkungen
Größe des Grundstücks: 632 m² (ca. 20,5 m x 30,5 m); im Osten Straße, im Norden ein 3 m breiter Fußweg, im Süden Nachbargrundstück, im Westen hinter dem Grundstück kilometerweit Feld/Wiese
Hang: Grundstück fällt an der Straßenfront ca. 1,20 m ab (von Nord nach Süd), Begradigung/Auffüllung des Grundstücks ist geplant, daher fällt das beim Grundriss nicht ins Gewicht
Grundflächenzahl: 0,3
Geschossflächenzahl: keine
Baufenster, Baulinie und -grenze: Keine Baulinie/-grenze, Baufenster umfasst fast das komplette Grundstück, daher für den Grundriss nicht von Belang
Randbebauung: wie üblich, Haus muss 3 Meter Abstand haben, Garage darf auf Grenze
Anzahl Stellplatz: keine Angaben
Geschossigkeit: II
Dachform: alles offen
Stilrichtung: egal
Ausrichtung: egal
Maximale Höhen/Begrenzungen: Firsthöhe 9,50 m, sonst keine Angaben
weitere Vorgaben: keine
Anforderungen der Bauherren
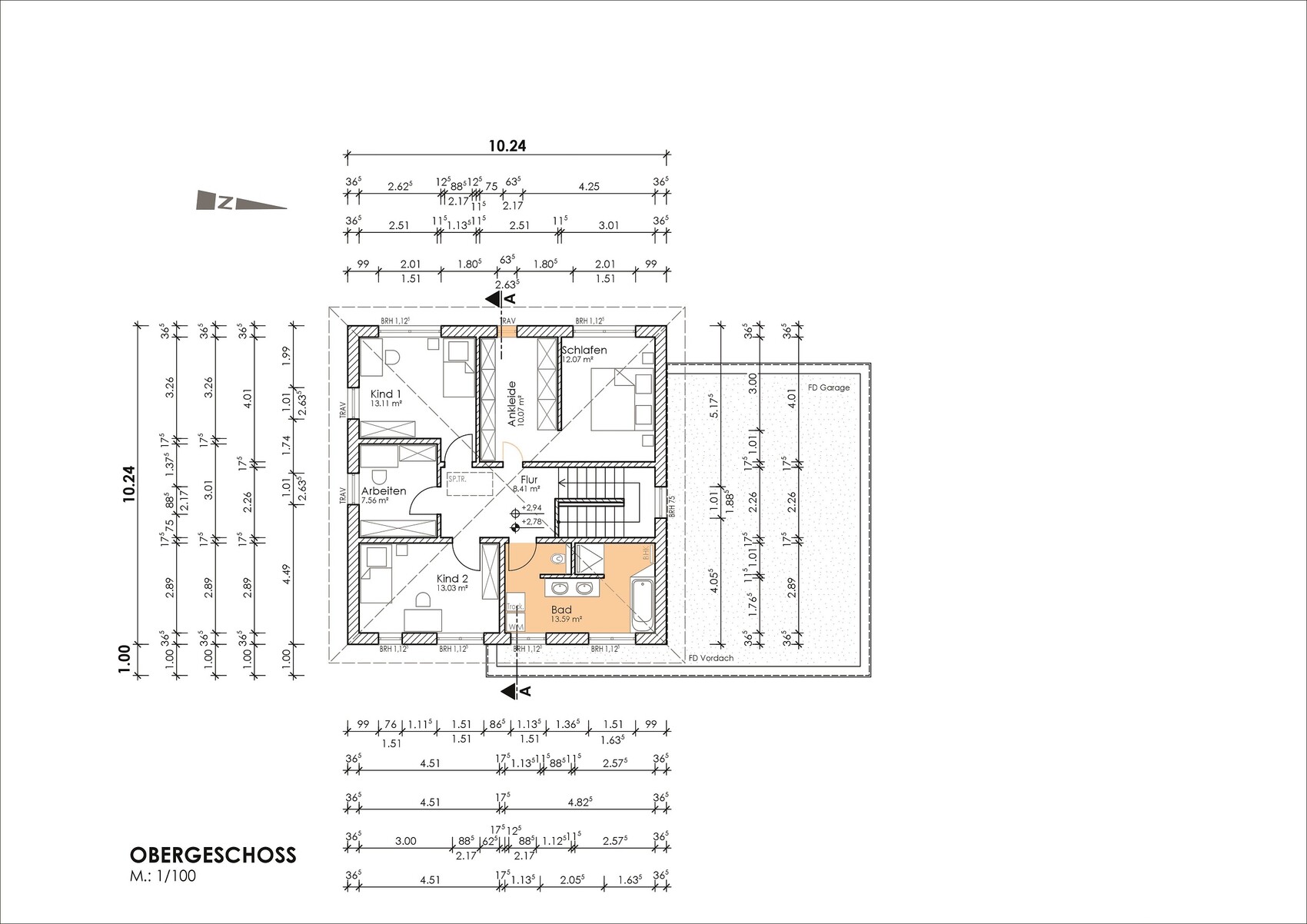
Stilrichtung, Dachform, Gebäudetyp: 2-geschossige Bauweise ohne Dachschrägen, Zeltdach, Typ "Stadtvilla"
Keller, Geschosse: kein Keller
Anzahl der Personen, Alter: 2 Personen (beide Mitte/Ende 20), 1 Kind geplant (möchten aber 2 Kinderzimmer, wir sind noch recht jung und wissen nicht, ob nicht doch mal ein 2. Kind gewünscht wird)
Raumbedarf im EG, OG: EG: Gäste-WC mit Dusche, Garderobe, Hauswirtschaftsraum, offener Koch-Wohn-Ess-Bereich, OG: Schlafzimmer mit Ankleide, Badezimmer mit großer Dusche und "verstecktem" WC, 2 Kinderzimmer. Generell gewünscht ist noch 1 Arbeitszimmer, ob dies im EG oder OG ist, ist für uns zweitrangig. Zunächst werden wir ohnehin eines der Kinderzimmer als Arbeitszimmer nutzen, das eigentliche Arbeitszimmer ist nur als "Notreserve" gedacht sofern sich doch Kind 2 auf den Weg machen sollte, bis dahin kann das eigentliche Arbeitszimmer als Abstellraum, Hobbyraum o. Ä. genutzt werden.
Büro: Es ist nur gedacht um unseren privaten PC dort unterzubringen sowie einen ca. 2 Meter breiten Schrank für allerlei Unterlagen/Ordner, kann also gerne recht klein sein
Schlafgäste pro Jahr: sehr selten, Max. 1-2
offene oder geschlossene Architektur: offen
konservativ oder moderne Bauweise: modern
offene Küche, Kochinsel: offene Küche, über Eck (L-Form) mit dem Wohnzimmer, Halbinsel mit Spüle mit den Maßen ca. 2,0 - 2,50 m x 1 m ist gewünscht
Anzahl Essplätze: 6
Kamin: sind uns noch unschlüssig, wobei ich nicht wüsste wo man den Ofen im Grundriss unterbringen könnte? Ideen?
Balkon, Dachterrasse: nein
Garage, Carport: Doppelgarage mit dahinter liegendem Abstellraum
Nutzgarten, Treibhaus: nein
Hausentwurf
Von wem stammt die Planung: freier Dipl.-Ing., wir bauen mit Einzelvergabe
Was gefällt besonders? eigentlich alles, was ich nicht bei "Was gefällt nicht" genannt habe
Was gefällt nicht?
- Anordnung der Sanitärobjekte im Bad: WC direkt an der Tür, Dusche eher klein; wir sind generell ein Fan von T-Lösungen oder auch der hier im Forum entdeckten L-Lösung, allerdings wird es da aufgrund des schmalen Bades eher schwierig; ein "Muss" ist aber eigentlich ein leicht verstecktes WC und eine große Dusche (gerne mit flacher/fast bodengleicher Duschwanne (bin nicht so der Fan von gefliesten Duschen) und mit Glastür an einer Seite, die anderen Seiten gemauert)
- Ankleide ist zwar sehr großzügig mit ca. 7 Metern Schrankfläche, allerdings aufgrund des Fensters in der Ankleide können auf der 4 m-Seite nur schmale schränke gestellt werden, wobei ich mir unsicher bin ob ich das schlimm finde... 3 Meter normal breite Schränke (für aufgehängte Sachen) + 4 Meter schmale Schränke für Einlegeböden, Unterwäsche usw., Bettwäsche usw. sollten aber eigentlich auch so passen
- Das größte Problem bei unserem Entwurf sind eigentlich die Außenansichten, dazu schreibe ich weiter unten mehr
favorisierte Heiztechnik: Luft-Wasser-Wärmepumpe
Wenn Ihr verzichten müsst, auf welche Details/Ausbauten
-könnt Ihr verzichten: schwer zu sagen... auf jeden Fall sind die Fenster teilweise echt riesig, die können bei Bedarf verkleinert werden
-könnt Ihr nicht verzichten: 2 Vollgeschosse, große Ankleide mit mindestens 5 Metern Schrankfläche, Podesttreppe auch wenns viel Platz nimmt, Halbinsel oder Insel in der Küche, Stauraum unter der Treppe, Dusche im Gäste-WC (wir möchten eine 2. Dusche im Haus haben, damit bei Bedarf auch mal 2 Leute gleichzeitig duschen können, insbesondere wenn man Teenie-Kinder im Haus hat)
---------------------------------------------
So und nun noch ein paar Worte als Erklärung zu den Entwürfen:
Alles was im Entwurf farbig markiert ist, sind Dinge, die auf jeden Fall geändert werden bzw. uns nicht gefallen.
Die da wären:
- EG:
1. Die Türen ins Wohnzimmer und in die Küche werden wahrscheinlich Schiebetüren werden, hauptsächlich deshalb, weil es sonst blöd ist die Küche zu betreten und jedes Mal die Türe an den dahinter stehenden Küchenschrank zu schlagen; dementsprechend kommt auch die Wandverlängerung im Wohnzimmer/Küche weg, da nicht mehr benötigt; dadurch ist auch im Essbereich mehr Platz.
2. Die Halbinsel wird breiter und ggf. auch etwas länger; hierauf wird die Spüle untergebracht, Kochfeld verbleibt irgendwo hinten an der lange Küchenzeile.
3. Die Fenster im Wohn-Ess-Bereich werden vermutlich alle bodentief werden, weil es sonst von außen bescheiden aussieht. Ist zwar dann nicht so ganz günstig, dass das Sofa dann komplett vor dem rechten bodentiefen Fenster steht, aber halt nicht zu ändern. Da die Terrassentüre, die im Alltag genutzt werden wird, die in der Mitte sein wird, ist das aber zu verschmerzen.
- OG:
1. Die Tür zum Schlafzimmer wird natürlich genauso breit wie alle übrigen; keine Ahnung ob das nur ein Fehler in der Zeichnung des Planers ist, wir konnten noch nicht mit ihm sprechen.
2. Badezimmeranordnung muss auf jeden Fall geändert werden. Wir finden eine T-Lösung zwar toll aber ein WC direkt neben der Türe ist für uns ein No-Go, zudem hätten wir gerne eine größere Dusche. Kürzlich habe ich einen Grundriss mit einem Bad hier im Forum entdeckt, das ähnlich schmal ist wie unseres und habe mir den Bad-Grundriss da mal abgeguckt *schäm* und das mal in unser Bad gebastelt. Das würde dann so aussehen:

Gefällt uns eigentlich ganz gut; großzügige Dusche (dürften ca. 1 x 1,80 m sein), ob man dann überhaupt noch eine Glastüre braucht wissen wir nicht, da die Wand ja unter der Dusche ist und es keine lange Seitenwand gibt; verstecktes WC (die Nische dürfte ca. 95 cm breit sein, ich denke ausreichend?); man müsste nur überlegen, ob das mit dem Fenster beim WC dann so geht oder ob man das (und folglich auch das im Hauswirtschaftsraum und ggf. in Kind 2 und Gäste-WC) etwas verschiebt.
3. Die größte Sorge... das Fenster in der Ankleide... das versaut die Außenansicht im Westen und wegen des Fensters dürften auf der linken Seite der Ankleide nur schmale Schränke möglich sein (mit Letzterem dürfte ich leben können)
- West-Ansicht:
Wo wir beim Thema wären... also die Fenster im EG werden bodentief, das wirkt dann gleich einheitlicher. Aber ich finde das mittlere Fenster im OG (Ankleide) versaut die Ansicht. Wie seht ihr das, findet ihr die Ansicht schlimm? Ich hatte mal versucht die Fenster alle einheitlich lang zu machen, also im EG alles bodentief, im OG alles mit Brüstung. Das würde dann so aussehen:

Kann man das so lassen oder No Go? Ich weiß nicht... die West-Ansicht bereitet mir echt Bauchschmerzen... und ist das einzige scheinbar unüberwindbare Problem in dem Entwurf.
- Süd-Ansicht:
Uns gefällt nicht, dass die Fenster im EG + OG nicht übereinander liegen, lässt sich aber leider nicht anders machen. Daher hatte ich die Idee, in der Küche (rechtes unteres Fenster) kein bodentiefes Fenster zu machen sondern so eine Art "Lichtband", was uns natürlich auch mehr Gestaltungsfreiraum in der Küche gibt (Abstand der Küchenzeilen zueinander, Breite der Insel usw.). Das würde dann so aussehen:

Und damit kann ich leben. Oder was meint ihr? Die Süd-Seite wird bei uns eh nicht so dolle werden, da auf der Grundstücksgrenze die Garage des Nachbarn steht und unser Haus zur Grundstücksgrenze nur ca. 3,50 m Platz hat, aber dafür durch das aufgefüllte Grundstück ein gutes Stück höher liegen wird als das Nachbargrundstück.
Und zu guter Letzt entschulde ich mich dafür, dass ich so mega viel geschrieben hab . Ich hoffe ihr verzeiht. Mir liegt das Thema Grundriss nur sehr am Herzen und ich mache mir halt viele Gedanken dazu und habe Angst, dass ich irgendwas übersehe und mich am Ende schwarz ärgere, wenn das Haus mal steht. Ein Grundriss lässt sich im Nachhinein halt nur schwer ändern.
Ein großes Dankeschön falls es wirklich jemand geschafft haben sollte, sich all meine ganzen Dinge durchzulesen!





auch ich möchte nun unseren Grundriss hier zur Diskussion veröffentlichen. Es handelt sich um den ersten Entwurf unseres Planers, welcher mit Hilfe unserer Vorgaben und Wünsche entstanden ist. Das ungefähre Grundgerüst des Entwurfs stammt von uns selbst, die Feinheiten hat der Planer übernommen. Es sei erwähnt, dass der Hausbau bei uns schon lange geplant ist und wir uns dementsprechend schon lange auch mit Grundrissen beschäftigt haben und ich im Laufe der Zeit sehr "pingelig" diesbezüglich geworden bin und ich recht genaue Vorstellungen von unserem Grundriss habe, von denen ich nicht abweichen will. Ich weiß, das ist nicht immer gut aber das ist durch die lange Zeit der Information die wir nun hatten, bevor es nun mit der Planung losging, so entstanden. Daher hoffe ich, dass der Grundriss hier nicht völlig in der Luft zerrissen wird, aber natürlich sollt ihr euch nicht scheuen Kritik zu üben, dafür mache ich das ja hier .
---------------------------------------------
Bebauungsplan/Einschränkungen
Größe des Grundstücks: 632 m² (ca. 20,5 m x 30,5 m); im Osten Straße, im Norden ein 3 m breiter Fußweg, im Süden Nachbargrundstück, im Westen hinter dem Grundstück kilometerweit Feld/Wiese
Hang: Grundstück fällt an der Straßenfront ca. 1,20 m ab (von Nord nach Süd), Begradigung/Auffüllung des Grundstücks ist geplant, daher fällt das beim Grundriss nicht ins Gewicht
Grundflächenzahl: 0,3
Geschossflächenzahl: keine
Baufenster, Baulinie und -grenze: Keine Baulinie/-grenze, Baufenster umfasst fast das komplette Grundstück, daher für den Grundriss nicht von Belang
Randbebauung: wie üblich, Haus muss 3 Meter Abstand haben, Garage darf auf Grenze
Anzahl Stellplatz: keine Angaben
Geschossigkeit: II
Dachform: alles offen
Stilrichtung: egal
Ausrichtung: egal
Maximale Höhen/Begrenzungen: Firsthöhe 9,50 m, sonst keine Angaben
weitere Vorgaben: keine
Anforderungen der Bauherren
Stilrichtung, Dachform, Gebäudetyp: 2-geschossige Bauweise ohne Dachschrägen, Zeltdach, Typ "Stadtvilla"
Keller, Geschosse: kein Keller
Anzahl der Personen, Alter: 2 Personen (beide Mitte/Ende 20), 1 Kind geplant (möchten aber 2 Kinderzimmer, wir sind noch recht jung und wissen nicht, ob nicht doch mal ein 2. Kind gewünscht wird)
Raumbedarf im EG, OG: EG: Gäste-WC mit Dusche, Garderobe, Hauswirtschaftsraum, offener Koch-Wohn-Ess-Bereich, OG: Schlafzimmer mit Ankleide, Badezimmer mit großer Dusche und "verstecktem" WC, 2 Kinderzimmer. Generell gewünscht ist noch 1 Arbeitszimmer, ob dies im EG oder OG ist, ist für uns zweitrangig. Zunächst werden wir ohnehin eines der Kinderzimmer als Arbeitszimmer nutzen, das eigentliche Arbeitszimmer ist nur als "Notreserve" gedacht sofern sich doch Kind 2 auf den Weg machen sollte, bis dahin kann das eigentliche Arbeitszimmer als Abstellraum, Hobbyraum o. Ä. genutzt werden.
Büro: Es ist nur gedacht um unseren privaten PC dort unterzubringen sowie einen ca. 2 Meter breiten Schrank für allerlei Unterlagen/Ordner, kann also gerne recht klein sein
Schlafgäste pro Jahr: sehr selten, Max. 1-2
offene oder geschlossene Architektur: offen
konservativ oder moderne Bauweise: modern
offene Küche, Kochinsel: offene Küche, über Eck (L-Form) mit dem Wohnzimmer, Halbinsel mit Spüle mit den Maßen ca. 2,0 - 2,50 m x 1 m ist gewünscht
Anzahl Essplätze: 6
Kamin: sind uns noch unschlüssig, wobei ich nicht wüsste wo man den Ofen im Grundriss unterbringen könnte? Ideen?
Balkon, Dachterrasse: nein
Garage, Carport: Doppelgarage mit dahinter liegendem Abstellraum
Nutzgarten, Treibhaus: nein
Hausentwurf
Von wem stammt die Planung: freier Dipl.-Ing., wir bauen mit Einzelvergabe
Was gefällt besonders? eigentlich alles, was ich nicht bei "Was gefällt nicht" genannt habe
Was gefällt nicht?
- Anordnung der Sanitärobjekte im Bad: WC direkt an der Tür, Dusche eher klein; wir sind generell ein Fan von T-Lösungen oder auch der hier im Forum entdeckten L-Lösung, allerdings wird es da aufgrund des schmalen Bades eher schwierig; ein "Muss" ist aber eigentlich ein leicht verstecktes WC und eine große Dusche (gerne mit flacher/fast bodengleicher Duschwanne (bin nicht so der Fan von gefliesten Duschen) und mit Glastür an einer Seite, die anderen Seiten gemauert)
- Ankleide ist zwar sehr großzügig mit ca. 7 Metern Schrankfläche, allerdings aufgrund des Fensters in der Ankleide können auf der 4 m-Seite nur schmale schränke gestellt werden, wobei ich mir unsicher bin ob ich das schlimm finde... 3 Meter normal breite Schränke (für aufgehängte Sachen) + 4 Meter schmale Schränke für Einlegeböden, Unterwäsche usw., Bettwäsche usw. sollten aber eigentlich auch so passen
- Das größte Problem bei unserem Entwurf sind eigentlich die Außenansichten, dazu schreibe ich weiter unten mehr
favorisierte Heiztechnik: Luft-Wasser-Wärmepumpe
Wenn Ihr verzichten müsst, auf welche Details/Ausbauten
-könnt Ihr verzichten: schwer zu sagen... auf jeden Fall sind die Fenster teilweise echt riesig, die können bei Bedarf verkleinert werden
-könnt Ihr nicht verzichten: 2 Vollgeschosse, große Ankleide mit mindestens 5 Metern Schrankfläche, Podesttreppe auch wenns viel Platz nimmt, Halbinsel oder Insel in der Küche, Stauraum unter der Treppe, Dusche im Gäste-WC (wir möchten eine 2. Dusche im Haus haben, damit bei Bedarf auch mal 2 Leute gleichzeitig duschen können, insbesondere wenn man Teenie-Kinder im Haus hat)
---------------------------------------------
So und nun noch ein paar Worte als Erklärung zu den Entwürfen:
Alles was im Entwurf farbig markiert ist, sind Dinge, die auf jeden Fall geändert werden bzw. uns nicht gefallen.
Die da wären:
- EG:
1. Die Türen ins Wohnzimmer und in die Küche werden wahrscheinlich Schiebetüren werden, hauptsächlich deshalb, weil es sonst blöd ist die Küche zu betreten und jedes Mal die Türe an den dahinter stehenden Küchenschrank zu schlagen; dementsprechend kommt auch die Wandverlängerung im Wohnzimmer/Küche weg, da nicht mehr benötigt; dadurch ist auch im Essbereich mehr Platz.
2. Die Halbinsel wird breiter und ggf. auch etwas länger; hierauf wird die Spüle untergebracht, Kochfeld verbleibt irgendwo hinten an der lange Küchenzeile.
3. Die Fenster im Wohn-Ess-Bereich werden vermutlich alle bodentief werden, weil es sonst von außen bescheiden aussieht. Ist zwar dann nicht so ganz günstig, dass das Sofa dann komplett vor dem rechten bodentiefen Fenster steht, aber halt nicht zu ändern. Da die Terrassentüre, die im Alltag genutzt werden wird, die in der Mitte sein wird, ist das aber zu verschmerzen.
- OG:
1. Die Tür zum Schlafzimmer wird natürlich genauso breit wie alle übrigen; keine Ahnung ob das nur ein Fehler in der Zeichnung des Planers ist, wir konnten noch nicht mit ihm sprechen.
2. Badezimmeranordnung muss auf jeden Fall geändert werden. Wir finden eine T-Lösung zwar toll aber ein WC direkt neben der Türe ist für uns ein No-Go, zudem hätten wir gerne eine größere Dusche. Kürzlich habe ich einen Grundriss mit einem Bad hier im Forum entdeckt, das ähnlich schmal ist wie unseres und habe mir den Bad-Grundriss da mal abgeguckt *schäm* und das mal in unser Bad gebastelt. Das würde dann so aussehen:
Gefällt uns eigentlich ganz gut; großzügige Dusche (dürften ca. 1 x 1,80 m sein), ob man dann überhaupt noch eine Glastüre braucht wissen wir nicht, da die Wand ja unter der Dusche ist und es keine lange Seitenwand gibt; verstecktes WC (die Nische dürfte ca. 95 cm breit sein, ich denke ausreichend?); man müsste nur überlegen, ob das mit dem Fenster beim WC dann so geht oder ob man das (und folglich auch das im Hauswirtschaftsraum und ggf. in Kind 2 und Gäste-WC) etwas verschiebt.
3. Die größte Sorge... das Fenster in der Ankleide... das versaut die Außenansicht im Westen und wegen des Fensters dürften auf der linken Seite der Ankleide nur schmale Schränke möglich sein (mit Letzterem dürfte ich leben können)
- West-Ansicht:
Wo wir beim Thema wären... also die Fenster im EG werden bodentief, das wirkt dann gleich einheitlicher. Aber ich finde das mittlere Fenster im OG (Ankleide) versaut die Ansicht. Wie seht ihr das, findet ihr die Ansicht schlimm? Ich hatte mal versucht die Fenster alle einheitlich lang zu machen, also im EG alles bodentief, im OG alles mit Brüstung. Das würde dann so aussehen:
Kann man das so lassen oder No Go? Ich weiß nicht... die West-Ansicht bereitet mir echt Bauchschmerzen... und ist das einzige scheinbar unüberwindbare Problem in dem Entwurf.
- Süd-Ansicht:
Uns gefällt nicht, dass die Fenster im EG + OG nicht übereinander liegen, lässt sich aber leider nicht anders machen. Daher hatte ich die Idee, in der Küche (rechtes unteres Fenster) kein bodentiefes Fenster zu machen sondern so eine Art "Lichtband", was uns natürlich auch mehr Gestaltungsfreiraum in der Küche gibt (Abstand der Küchenzeilen zueinander, Breite der Insel usw.). Das würde dann so aussehen:
Und damit kann ich leben. Oder was meint ihr? Die Süd-Seite wird bei uns eh nicht so dolle werden, da auf der Grundstücksgrenze die Garage des Nachbarn steht und unser Haus zur Grundstücksgrenze nur ca. 3,50 m Platz hat, aber dafür durch das aufgefüllte Grundstück ein gutes Stück höher liegen wird als das Nachbargrundstück.
Und zu guter Letzt entschulde ich mich dafür, dass ich so mega viel geschrieben hab . Ich hoffe ihr verzeiht. Mir liegt das Thema Grundriss nur sehr am Herzen und ich mache mir halt viele Gedanken dazu und habe Angst, dass ich irgendwas übersehe und mich am Ende schwarz ärgere, wenn das Haus mal steht. Ein Grundriss lässt sich im Nachhinein halt nur schwer ändern.
Ein großes Dankeschön falls es wirklich jemand geschafft haben sollte, sich all meine ganzen Dinge durchzulesen!
Ich sehe gerade, dass im EG im Hauswirtschaftsraum und im OG im Bad Waschmaschine + Trockner abgebildet sind. Also das war so eigentlich nicht gedacht, denn Waschmaschine + Trockner sollen schon in den Hauswirtschaftsraum im EG. Hatte nur vergessen die Sachen im Bad im OG raus zu löschen. Sorry.
Danke für deine Antwort.
ypg schrieb:Du sprichst von der ursprünglichen Variante mit WC direkt neben der Tür? Oder von meiner abgeänderten Variante mit WC rechts unten? Bei Ersterem stimme ich dir zu, daher kommt diese Sanitäranordnung für uns definitiv nicht in Frage. Falls Letzteres, hmm... ich weiß nicht, kann es mir schlecht in 3D vorstellen .
WC ist absolut nicht versteckt, sondern gegenteilig im Fokus des Hereinkommenden.
ypg schrieb:Zu welcher Seite? Entschuldige, ich kann nicht ganz folgen. Du meinst Richtung Norden? Das wirkt von außen noch bescheidener, finde ich, weil es dann nicht nur vom Format unpassend aussieht, sondern zusätzlich auch nicht mittig vom Haus platziert ist.
Das Ankleidefenster sollte mal etwas zur Seite geschoben werden: nicht nur die Ansicht würde davon profitieren, sondern auch die Schrankgeschichte.
Mittig passt das Fenster nicht, meine Meinung resultiert an der ersten Ansicht - habe sofort gedacht: das kleine Fenster passt nicht und sollte etwas zur Seite geschoben werden. Das bringt mehr Dynamik.
Toilette, ja... Sorry, ich habe die Toilette im Plan gemeint.
Deine kleine Zeichnung ist viel besser. Allerdings würde ich daran mal etwas feilen bezüglich Waschbecken nicht ggü der Fenster wegen des eigenen Schattens sowie Integration der Badewanne, die mE jetzt etwas einfallslos und nicht eingebunden ihren Platz unter dem Fenster bekommen hat.
Da geht noch mehr.... Allerdings bin ich grad zwischen den Türen, somit kann ich nicht auf jedes Detail eingehen.
Später eventuell mehr, aber da werden mit Sicherheit @kbt09 und @Climbee vorher noch einiges posten und mir aus der Seele sprechen
Toilette, ja... Sorry, ich habe die Toilette im Plan gemeint.
Deine kleine Zeichnung ist viel besser. Allerdings würde ich daran mal etwas feilen bezüglich Waschbecken nicht ggü der Fenster wegen des eigenen Schattens sowie Integration der Badewanne, die mE jetzt etwas einfallslos und nicht eingebunden ihren Platz unter dem Fenster bekommen hat.
Da geht noch mehr.... Allerdings bin ich grad zwischen den Türen, somit kann ich nicht auf jedes Detail eingehen.
Später eventuell mehr, aber da werden mit Sicherheit @kbt09 und @Climbee vorher noch einiges posten und mir aus der Seele sprechen
Definitiv würde ich in einer Ankleide, die 251 cm breit ist, ein Fenster so positionieren, dass man beidseitig 60 cm tiefe Schränke stellen kann. Ich bin z. B. ein Fan von Aufhängen von Blusen, TShirts usw., insbesondere, wenn diese vorher gebügelt wurden . Ich denke auch, dass man da eine gescheite Ansicht hinbekommt und man sich aber mal von Symmetrie (kann sehr schnell langweilig sein) lösen muss.
In keinem Fall würde ich auf der Südseite, auch wenn die Aussicht nicht so toll ist, in der Küche nur so ein Fensterband setzen. Planunten Zeile mit Hochschränken und Kochfeld mit Wand links von ca. 65 cm, dann Terrassentür ca. 95 cm, dann Spülen-Halbinsel ... ist perfekt. Auch da muss man vielleicht noch mal mit den Fenstern spielen.
Ansonsten würde ich versuchen, zwischen Kind 1 und Arbeiten erst mal ohne Wand auszukommen, Tür zu Arbeiten nur mit Sturz vorsehen. Dann hätte man auf jeden Fall ein richtig schönes Kinderzimmer, Kind 2 wäre Büro/Gast. Und, wenn dann doch Kind 2 kommt, dann kann man die Trennwand Kind1/Büro einziehen.
Ansonsten, Bad, da finde ich deinen Lösungsansatz auch um einiges besser. Bin zwar kein WC-Verstecker, aber, wie es im Plan ist, geht es gar nicht
Kamin, da fällt mir auf Anhieb immer nur eine Außenwand ein ... da sieht dann aber der Kamin auf dem Dach bei einer Stadtvilla echt mistig aus.
Ansonsten schöner klarer Grundriss, sehr schöne Treppe, die nicht zu eng wirkt.
In keinem Fall würde ich auf der Südseite, auch wenn die Aussicht nicht so toll ist, in der Küche nur so ein Fensterband setzen. Planunten Zeile mit Hochschränken und Kochfeld mit Wand links von ca. 65 cm, dann Terrassentür ca. 95 cm, dann Spülen-Halbinsel ... ist perfekt. Auch da muss man vielleicht noch mal mit den Fenstern spielen.
Ansonsten würde ich versuchen, zwischen Kind 1 und Arbeiten erst mal ohne Wand auszukommen, Tür zu Arbeiten nur mit Sturz vorsehen. Dann hätte man auf jeden Fall ein richtig schönes Kinderzimmer, Kind 2 wäre Büro/Gast. Und, wenn dann doch Kind 2 kommt, dann kann man die Trennwand Kind1/Büro einziehen.
Ansonsten, Bad, da finde ich deinen Lösungsansatz auch um einiges besser. Bin zwar kein WC-Verstecker, aber, wie es im Plan ist, geht es gar nicht
Kamin, da fällt mir auf Anhieb immer nur eine Außenwand ein ... da sieht dann aber der Kamin auf dem Dach bei einer Stadtvilla echt mistig aus.
Ansonsten schöner klarer Grundriss, sehr schöne Treppe, die nicht zu eng wirkt.
Ähnliche Themen