Hausbau - Ratgeber
Bauherrenhilfe
- Bauherrenhilfe vor Vertragsabschluss
-- Warum einen unabhängigen Baubetreuer?
-- Vertragsgrundlagen
-- Bausumme
-- Zahlungsplan zur Kostenkontrolle
-- Pflichten des Bauherren vor Vertragsabschluss
-- Unterlagen beim Hausbau vor Vertragsabschluss
- Bauherrenhilfe nach Vertragsabschluss
-- Bauantrag bei Behörden
-- Bau-Genehmigungsverfahren bei Baubehörden
-- Bauspezifische Versicherungen
-- Bauzeitenplan
-- Baubeginn - die Letzten Pflichten der Bauherrschaft
- Bauherrenhilfe während der Bauzeit
- Gewährleistungsansprüche
- Bauabnahme
Baufinanzierung
- Baufinanzierung - Allgemeine Fragen
- Kreditarten
- Kredit-Konditionen
- Bausparen
- Staatliche Förderungen
- Verkehrswert
- Haushaltsrechnung und Bonität
Hausbau Planung
- Haustypen
- Hausbau Vorbereitungsarbeiten
- Das Baugrundstück
- Baugrund beim Hausbau
- Baurecht
- Gebäudeschutz
- Erdarbeiten und Wasserhaltung
- Stützmauern
- Einfriedung
- Untergeschoss
- Kanalisation
- Tragende Elemente
- Nichttragende Innenwände
- Fundation / Fundament
- Deckenkonstruktionen
- Dächer
- Kaminanlagen
- Treppen Rampen Leitern
- Dachbeläge und Spengler
- Fenster
- Sonnen und Wetterschutz
- Aussenputze
- Einbauten, Küchen, Türen
- Bodenbeläge und Unterlagsböden
- Parkett
- Gips, Wand, Decke
Haustechnik und Energie
- Heiztechnik
- Lüftung und Klimatechnik
- Sanitärtechnik
- Elektrotechnik
- Erneuerbare Energie
Whirlpools / Jacuzzi
Hausbau Magazin
- Baufinanzierung trotz Krise?
- Das Blockhaus
- Moderne Dämmstoffe im Vergleich
- Erker Vor- und Nachteile
- Glasflächen beim Hausbau
- Günstig ein Haus Bauen
- Mediterraner Hausbaustil
- Mehrgenerationenhaus
- Moderne Architektur
- Gartengestaltung leicht gemacht
- Traditioneller Ziegelbau
- Villa als höchster Traum
- Im Eigenheim Ruhestand geniessen
- Altbau sanieren
- Kauf einer Holzgarage
- Immobilienmakler
- Arbeitshandschuhe für den Winter
- Zuhause verschönern
- Outdoor-Plissees
- Schlafzimmer planen
- Terrassenüberdachung
- Wohngebäudeversicherung
- Zaunarten und Eigenschaften
- Hauseingang gestalten
- Der perfekte Grundriss
- Sparsamer heizen im Altbau
- Einfamilienhaus smart finanzieren
- Planung einer PV-Anlage
- Neues Haus
- Immobilienfinanzierung
- Installation einer Photovoltaikanlage
- Asbest erkennen und entfernen
- Gartenpflege im Frühling – worauf achten
- Sauna im Fokus - Wellness zuhause
- Erfolgreich vermieten
- Die perfekte Winterbekleidung
- Das Niedrigenergiehaus
- Der April und seine Stürme
- Architektonische Vielfalt
- Ökologisch und nachhaltig bauen
- Das perfekte Schlafzimmer
- Nachhaltige Energieversorgung
- Zukunftsorientiert bauen
- Nachhaltigkeit beim Hausbau
- Tiny Houses
- Wärmepumpen als nachhaltige Heizvariante
- Maßgeschneiderten Kleiderschrank
- Der richtige Baukredit
- Ratgeber für erfolgreichen Hausbau
- Haus als Altersvorsorge
Do-it-yourself Anleitungen
- Verlegeanleitung für Bodenbeläge und Parkett
- Bodenbeläge und Parkett reinigen und pflegen
- Malerarbeiten am Haus
- Garten Tipps
- Umzug und Reinigung

ᐅ Grundrissplanung Einfamilienhaus 150qm - Tipps zur Verbesserung?

Erstellt am: 22.01.19 13:30
F
Franky73
Y
ypg
22.01.19 20:20
Wo ist der ausgefüllte Fragenkatalog, und wo ist der Gartenzugang aus der Wohnebene?
Wo ist da überhaupt ein Zugang zum Garten?
kbt0923.01.19 00:25
@ypg ... Fragenkatalog https://www.hausbau-forum.de/threads/grundrissplanung-efh-Stadtvilla-140qm-am-Hang-mit-Doppelgarage.28181/
@Franky73 .. überleg einmal ... wir sollen also alles noch mal denken und schreiben, weil DU denkst, es wäre einfacher einen neuen Thread zu machen, aber die Grundinformationen dort nicht noch mal zu schreiben.

Und ja, Gartenzugang würde mich auch mal interessieren.
F
Franky73
23.01.19 07:56
kbt09 schrieb:
@ypg ... Fragenkatalog https://www.hausbau-forum.de/threads/grundrissplanung-efh-Stadtvilla-140qm-am-Hang-mit-Doppelgarage.28181/
@Franky73 .. überleg einmal ... wir sollen also alles noch mal denken und schreiben, weil DU denkst, es wäre einfacher einen neuen Thread zu machen, aber die Grundinformationen dort nicht noch mal zu schreiben.

Und ja, Gartenzugang würde mich auch mal interessieren.

Also auf dem Vorentwurf gibt es ja einen Gartenzugang im Wohnkeller.

Und nein, so denke ich nicht! Die Grundinfos werde ich euch gleich noch einmal hier einstellen, das versteht sich doch von selbst!
F
Franky73
23.01.19 08:46
Bebauungsplan/Einschränkungen
  • Größe des Grundstücks: 722qm²
  • Hang: Ja (Süd-West)
  • Grundflächenzahl: 0,3
  • Geschossflächenzahl: 0,6
  • Baulinie und -grenze: 3m
  • Randbebauung: Ja, Stellfläche (Carport nur mit Erlaubnis des Nachbarn)
  • Anzahl Stellplatz: 2-3 (Stellfläche oder vor dem Carport/ neben dem Haus)
  • Geschossigkeit: 1
  • Dachform: Keine Einschränkungen
  • Stilrichtung: Modern
  • Ausrichtung: Süd-West

Anforderungen der Bauherren
  • Stilrichtung, Dachform, Gebäudetyp: Richtung Stadtvilla, Walmdach
  • Keller, Geschosse: Wohnkeller, 1,5 Geschosse
  • Anzahl der Personen: 4 (Alter: 45, 45, 16, 7 Jahre)
  • Raumbedarf im WK, EG: Schlafzimmer 11qm², Ankleide 8qm², 2x Kinderzimmer 15qm², Badezimmer 12qm², großer Wohn- & Essbereich
  • Büro: Wird nicht benötigt!
  • Schlafgäste pro Jahr: kaum
  • offene oder geschlossene Architektur: eher offen
  • konservativ oder moderne Bauweise: modern
  • offene Küche, Kochinsel: Offene Küche mit Tresen für 3 Personen
  • Anzahl Essplätze: 4-6, Möglichkeit einer Tafel (Familie)
  • Kamin: Nein
  • Musik/Stereowand: Nein
  • Balkon, Dachterrasse: Wenn möglich teil-überdachte Terrasse
  • Garage, Carport: Carport (vorerst kein Muss)
  • Nutzgarten: Ja
  • Sonstiges: Abgehängte Decken für Strahler, Trockenbauelemente im Bad & Schlafzimmer, Stauraum für Koffer und Deko auf dem Dach

Hausentwurf
  • Von wem stammt die Planung: Architektin vom GU
  • Was gefällt besonders? Wir möchten das Haus so weit wie möglich oben an der Straße positionieren. Gern rechts davon die Stellplätze, wegen der dann möglichen Grenzbebauung.
  • Was gefällt nicht? Warum? Das Haus wegen dem Hang zu tief zu positionieren. Wegen der Aussicht!
  • Favorisierte Heiztechnik: Luftwärmepumpe oder Ringgrabenkollektoren
  • Wenn Ihr verzichten müsst, auf welche Details/Ausbauten könnt Ihr verzichten: Sauna im Bad, Carport
  • Warum ist der Entwurf so geworden, wie er jetzt ist?: Entwurf vom Planer
  • Entsprechende/Welche Wünsche wurden vom Architekten umgesetzt? Bislang wurde mein eigener Plan nur 1 zu 1 übernommen.
  • Was macht ihn in Euren Augen besonders gut oder schlecht? Die Aufteilung der Räume passt noch nicht.
  • Was ist die wichtigste/grundlegende Frage zum Grundriss in 130 Zeichen zusammengefasst? Wir würden gern mit 140-155 qm² Wohnfläche auskommen die in einen Wohnkeller und ein EG verteilt werden müssen. Wie bekommt man unsere Wünsche in den Grundriss?
F
Franky73
23.01.19 09:04
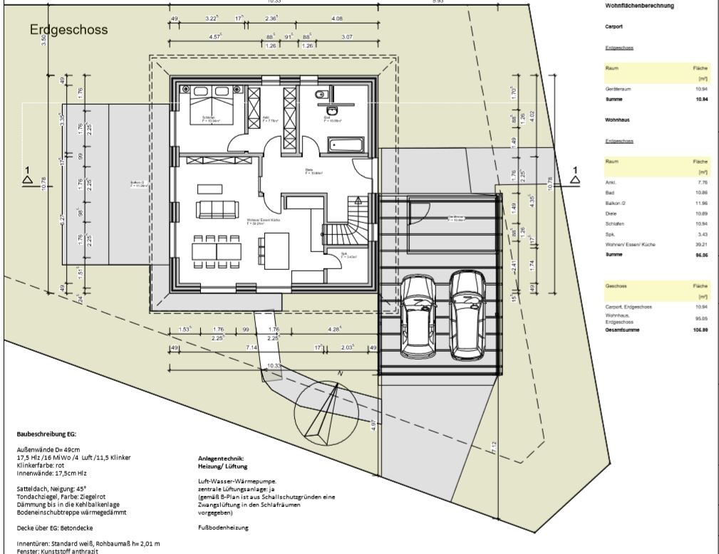
Und dazu noch einmal der Vorentwurf, damit alles beisammen ist:

Vier Ansichten eines Hanghauses: zwei 2D-Schnitte (Nordost/Nordwest) und zwei 3D-Modelle.


Architekturpläne: zweigeschossiges rotes Backsteinhaus mit Balkon, Terrasse und Grundriss-Schnitt.


Kellergeschoss-Plan mit Maßen und 3D-Ansicht eines roten Backsteinhauses mit Carport


Grundriss Erdgeschoss: Haus mit Wohn-/Essbereich, Küche, Bad, Schlafzimmer, Treppe und Doppelgarage.
H
haydee
23.01.19 09:06
Ausgehend vom letzten Entwurf

Ihr habt in beiden Stockwerken sehr viel Flurfläche. Die müsste verkleinert werden. Evtl andere Treppe und Treppenlage
Speisekammer im OG weg (ist nur ein Reststück wegen Treppenlage)
Ihr habt 2 große Bäder. Ein Bad würde ich verkleinern.

Ich bin kein Grundrisszeichner aber ein paar QM ohne Einbußen sind rauszuholen
vorentwurfcarportgartenzugangwohnkellerhangstellflächedachformgeschosseschlafzimmerküche