ᐅ Grundrissplanung Einfamilienhaus 150qm - Tipps zur Verbesserung?
Erstellt am: 22.01.19 13:30
F
Franky73J
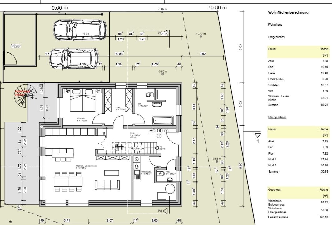
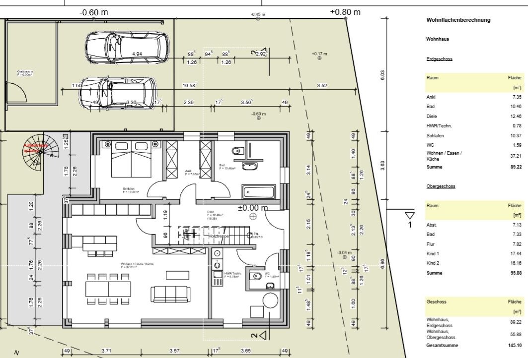
j.bautsch04.04.19 08:58oben gibt es keine Tür zur Terrasse mehr? unten auch nicht ? oder sind die nur so als Fenster eingezeichnet? (bin kein Experte im Pläne lesen )
im og ist wieder so komisches spießruten laufen im Bad und unten wirst du dir das Bad unter Wasser setzen weil die mauer der dusche nicht lang genug ist.
im og ist wieder so komisches spießruten laufen im Bad und unten wirst du dir das Bad unter Wasser setzen weil die mauer der dusche nicht lang genug ist.
Vom Angebot hab ich leider nicht so die Ahnung.
Grundriss finde ich ganz ok. Reißt mich nicht vom Hocker, aber man kann so wohnen. Das T im Bad fände ich absolut nervig. Macht alles so eng. Da fühlt man sich früh nach dem Aufstehen gleich unwohl - das würd ich mir noch mal überlegen.
Die Tür zum Allraum schlägt vor die Küchenschränke, so dass die dahinter schlecht nutzbar sind, da diese Tür meistens offen steht. Naja, ne Kröte, die man verkraften kann.
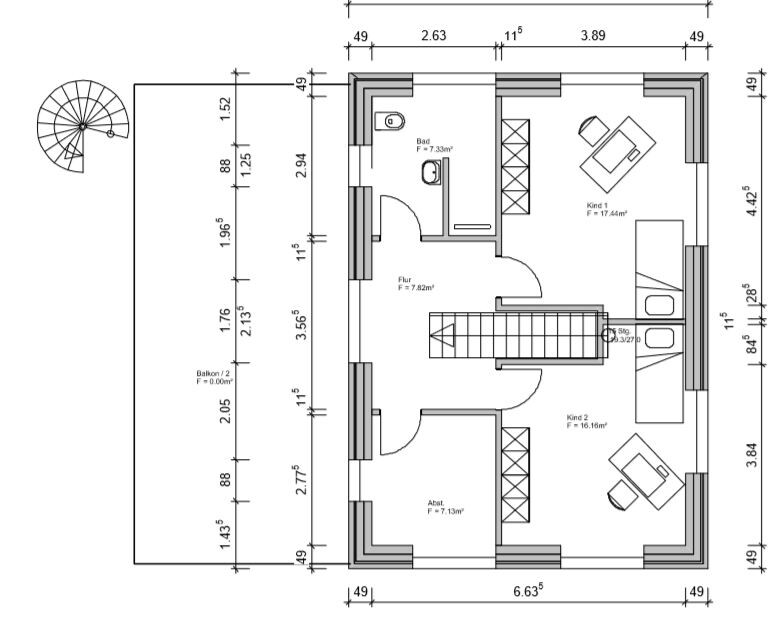
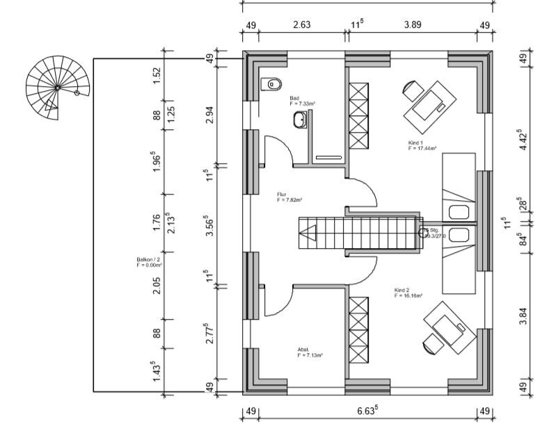
Kind 1 ist ziemlich dunkel - das ist schade aber dafür haben die 2 nen Burgbalkon. Kommen die erwähnten Zinnen darauf? Das wär so kultig.
Insgesamt führt ein langer schmaler Flur auf eine einsame Tür zu, wo zwingend alle durch die Küche watscheln müssen, um in den Wohnbereich zu gelangen. Das Haus öffnet sich schlecht und ist dadurch wenig einladend. Das ist schade, zumal der Flur nur so lang ist, damit Stellfläche für den TV da ist. Sonst könnte der Wohnraum größer sein. Das schmerzt ganz schön - aber vermutlich nur mich.
Grundriss finde ich ganz ok. Reißt mich nicht vom Hocker, aber man kann so wohnen. Das T im Bad fände ich absolut nervig. Macht alles so eng. Da fühlt man sich früh nach dem Aufstehen gleich unwohl - das würd ich mir noch mal überlegen.
Die Tür zum Allraum schlägt vor die Küchenschränke, so dass die dahinter schlecht nutzbar sind, da diese Tür meistens offen steht. Naja, ne Kröte, die man verkraften kann.
Kind 1 ist ziemlich dunkel - das ist schade aber dafür haben die 2 nen Burgbalkon. Kommen die erwähnten Zinnen darauf? Das wär so kultig.
Insgesamt führt ein langer schmaler Flur auf eine einsame Tür zu, wo zwingend alle durch die Küche watscheln müssen, um in den Wohnbereich zu gelangen. Das Haus öffnet sich schlecht und ist dadurch wenig einladend. Das ist schade, zumal der Flur nur so lang ist, damit Stellfläche für den TV da ist. Sonst könnte der Wohnraum größer sein. Das schmerzt ganz schön - aber vermutlich nur mich.
Zähle unbedingt die Kosten für Nicht enthalten dazu. z.B. die Entsorgung für den Unterboden
Bei manchen Positionen steht bis zu einem Preis von xyz
da noch mal genauer hinschauen, nicht dass da überall noch was dazu kommt. Die Möglichkeit besteht sonst würde da einfach enthalten stehen.
Baunebenkosten fehlen
Bei manchen Positionen steht bis zu einem Preis von xyz
da noch mal genauer hinschauen, nicht dass da überall noch was dazu kommt. Die Möglichkeit besteht sonst würde da einfach enthalten stehen.
Baunebenkosten fehlen
J
j.bautsch04.04.19 09:31das man durch die Küche muss finde ich jetzt nicht so schlimm (wir halten uns zb im Wohnbereich kaum auf, kommt wohl auf das eigene verhalten an).
mit der Tür hast du nicht ganz unrecht, vllt kann man das mit einer doppelflügeltür lösen die dann in den Flur öffnet (die Tür dann auf 1,2m verbreitern oder so, hauptflügel 80cm nebenflügel 40)
laienhaft mit paint zur bildhaften darstellung

mit der Tür hast du nicht ganz unrecht, vllt kann man das mit einer doppelflügeltür lösen die dann in den Flur öffnet (die Tür dann auf 1,2m verbreitern oder so, hauptflügel 80cm nebenflügel 40)
laienhaft mit paint zur bildhaften darstellung
...was mich nicht nur hier, sondern auch sonst immer wieder wundert, sind die Zuschnitte der WZ Bereiche. Diese Riesenfresstische, für 8 oder 10 Stühle-und so kleine Polsterecken für drei bis 4 maxxx.
Wie ist es denn wenn ihr feiert? Also ich kenn das nur so, das unsere 8-10 Gäste kommen, die holen sich dann aus der Küche was zu futtern auf 1nen Teller, setzen sich damit irgendwo hin, essen, dann kommt das Esszeugs weg, dann gibt es Haribos und Salzletten und Longdrinks und Bier und wer unbedingt will auch Wein, dann Musik, dann lümmeln wir alle in den Sesseln und auf der Couch, und ggf. tanzen wir auch ein wenig. Sitzt ihr etwa steif am Tisch und salbadert den ganzen Abend Smalltalk? Karsten
Wie ist es denn wenn ihr feiert? Also ich kenn das nur so, das unsere 8-10 Gäste kommen, die holen sich dann aus der Küche was zu futtern auf 1nen Teller, setzen sich damit irgendwo hin, essen, dann kommt das Esszeugs weg, dann gibt es Haribos und Salzletten und Longdrinks und Bier und wer unbedingt will auch Wein, dann Musik, dann lümmeln wir alle in den Sesseln und auf der Couch, und ggf. tanzen wir auch ein wenig. Sitzt ihr etwa steif am Tisch und salbadert den ganzen Abend Smalltalk? Karsten
Ähnliche Themen