Hausbau - Ratgeber
Bauherrenhilfe
- Bauherrenhilfe vor Vertragsabschluss
-- Warum einen unabhängigen Baubetreuer?
-- Vertragsgrundlagen
-- Bausumme
-- Zahlungsplan zur Kostenkontrolle
-- Pflichten des Bauherren vor Vertragsabschluss
-- Unterlagen beim Hausbau vor Vertragsabschluss
- Bauherrenhilfe nach Vertragsabschluss
-- Bauantrag bei Behörden
-- Bau-Genehmigungsverfahren bei Baubehörden
-- Bauspezifische Versicherungen
-- Bauzeitenplan
-- Baubeginn - die Letzten Pflichten der Bauherrschaft
- Bauherrenhilfe während der Bauzeit
- Gewährleistungsansprüche
- Bauabnahme
Baufinanzierung
- Baufinanzierung - Allgemeine Fragen
- Kreditarten
- Kredit-Konditionen
- Bausparen
- Staatliche Förderungen
- Verkehrswert
- Haushaltsrechnung und Bonität
Hausbau Planung
- Haustypen
- Hausbau Vorbereitungsarbeiten
- Das Baugrundstück
- Baugrund beim Hausbau
- Baurecht
- Gebäudeschutz
- Erdarbeiten und Wasserhaltung
- Stützmauern
- Einfriedung
- Untergeschoss
- Kanalisation
- Tragende Elemente
- Nichttragende Innenwände
- Fundation / Fundament
- Deckenkonstruktionen
- Dächer
- Kaminanlagen
- Treppen Rampen Leitern
- Dachbeläge und Spengler
- Fenster
- Sonnen und Wetterschutz
- Aussenputze
- Einbauten, Küchen, Türen
- Bodenbeläge und Unterlagsböden
- Parkett
- Gips, Wand, Decke
Haustechnik und Energie
- Heiztechnik
- Lüftung und Klimatechnik
- Sanitärtechnik
- Elektrotechnik
- Erneuerbare Energie
Whirlpools / Jacuzzi
Hausbau Magazin
- Baufinanzierung trotz Krise?
- Das Blockhaus
- Moderne Dämmstoffe im Vergleich
- Erker Vor- und Nachteile
- Glasflächen beim Hausbau
- Günstig ein Haus Bauen
- Mediterraner Hausbaustil
- Mehrgenerationenhaus
- Moderne Architektur
- Gartengestaltung leicht gemacht
- Traditioneller Ziegelbau
- Villa als höchster Traum
- Im Eigenheim Ruhestand geniessen
- Altbau sanieren
- Kauf einer Holzgarage
- Immobilienmakler
- Arbeitshandschuhe für den Winter
- Zuhause verschönern
- Outdoor-Plissees
- Schlafzimmer planen
- Terrassenüberdachung
- Wohngebäudeversicherung
- Zaunarten und Eigenschaften
- Hauseingang gestalten
- Der perfekte Grundriss
- Sparsamer heizen im Altbau
- Einfamilienhaus smart finanzieren
- Planung einer PV-Anlage
- Neues Haus
- Immobilienfinanzierung
- Installation einer Photovoltaikanlage
- Asbest erkennen und entfernen
- Gartenpflege im Frühling – worauf achten
- Sauna im Fokus - Wellness zuhause
- Erfolgreich vermieten
- Die perfekte Winterbekleidung
- Das Niedrigenergiehaus
- Der April und seine Stürme
- Architektonische Vielfalt
- Ökologisch und nachhaltig bauen
- Das perfekte Schlafzimmer
- Nachhaltige Energieversorgung
- Zukunftsorientiert bauen
- Nachhaltigkeit beim Hausbau
- Tiny Houses
- Wärmepumpen als nachhaltige Heizvariante
- Maßgeschneiderten Kleiderschrank
- Der richtige Baukredit
- Ratgeber für erfolgreichen Hausbau
- Haus als Altersvorsorge
Do-it-yourself Anleitungen
- Verlegeanleitung für Bodenbeläge und Parkett
- Bodenbeläge und Parkett reinigen und pflegen
- Malerarbeiten am Haus
- Garten Tipps
- Umzug und Reinigung

ᐅ Grundrissplanung Einfamilienhaus 150qm - Tipps zur Verbesserung?

Erstellt am: 22.01.19 13:30
F
Franky73
kbt0922.01.19 18:57
@Franky73 ... ist das eine Fortsetzung von https://www.hausbau-forum.de/threads/grundrissplanung-efh-Stadtvilla-140qm-am-Hang-mit-Doppelgarage.28181/ ... und ist es noch dasselbe Grundstück? Warum dann nicht den anderen Thread fortführen?

Ist es nicht das Grundstück, dann fehlen hier Lageplan, Gefälle von wo nach wo, insgesamt der Fragebogen und auch mal Antworten von dir, z. B. wie stellst du dir aus der Wohnetage den Gartenzugang vor? .
F
Franky73
22.01.19 19:25
Zaba12 schrieb:
Dh. du hast überhaupt keinen freien Architekten sonder einen über den GU. Dann wird es schon mal einen Entwurf geben.
Ja, einen "Vorentwurf" gibt es. Dieser ist jedoch,wie oben bereits geschrieben,1 zu 1 der, den ich selbst erstellt habe. Der Rest, Carport, Positionierung des Hauses etc.erfolgte über die Architektin.
F
Franky73
22.01.19 19:29
kbt09 schrieb:
@Franky73 ... ist das eine Fortsetzung von https://www.hausbau-forum.de/threads/grundrissplanung-efh-Stadtvilla-140qm-am-Hang-mit-Doppelgarage.28181/ ... und ist es noch dasselbe Grundstück? Warum dann nicht den anderen Thread fortführen?

Ist es nicht das Grundstück, dann fehlen hier Lageplan, Gefälle von wo nach wo, insgesamt der Fragebogen und auch mal Antworten von dir, z. B. wie stellst du dir aus der Wohnetage den Gartenzugang vor? .

Ja, es handelt sich um die Fortsetzung. Wollte es nur niemanden antun, sich das alles noch einmal durchlesen zu müssen.
F
Franky73
22.01.19 19:38
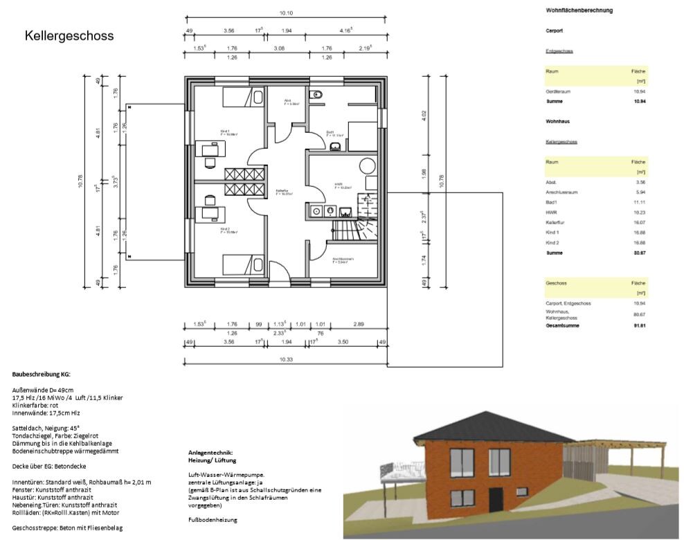
So hier mal den Vorentwurf:

Architektenzeichnung: Haus auf Hang mit Terrasse; Nordost- und Nordwest-Ansichten.


Bauzeichnung eines Hauses: 3D-Ansicht, Balkon, Schnitte (Südwest/Südost).


Grundriss Kellergeschoss mit Maßangaben und 3D-Hausansicht.


Grundriss Erdgeschoss: Wohn-/Essbereich, Küche, Schlafzimmer, Bad, Treppe, Doppelgarage.
H
haydee
22.01.19 19:48
Das UG gefällt mir um Welten besser, allerdings nicht das EG
A
Asuni
22.01.19 19:58
Eine Kombination aus beiden Entwürfen wäre meines Erachtens ganz schön: Das UG aus dem Vorentwurf und Dein EG, nur statt Technik / Hauswirtschaftsraum das Schlafzimmer auf die Wohnebene setzen.
Mit gut durchdachter Küchenplanung wird auch das Verstauen von Einkäufen kein Problem .
vorentwurfgrundstück