Hallo zusammen!
Ich war bisher stiller Mitleser und möchte Euch mal unsere Planungen vorstellen und wünsche mir die ein oder andere Anregung oder Verbesserungsmöglichkeit in unserer aktuellen Planung!:
Bebauungsplan/Einschränkungen:
Bauplatz hat kein Bebebauungsplan, es muss nach §34 Baugesetzbuch gebaut werden. Laut Gemeinde und der Bauumgebung ist "fast alles möglich"
Größe des Grundstücks: 910m²
Hang: Nein
Grundflächenzahl: keine da kein Bebauungsplan vorhanden!
Geschossflächenzahl: keine da kein Bebauungsplan vorhanden!
Baufenster, Baulinie und -grenze: keine da kein Bebauungsplan vorhanden!
Randbebauung: keine da kein Bebauungsplan vorhanden!
Anzahl Stellplatz: keine da kein Bebauungsplan vorhanden!
Geschossigkeit: keine da kein Bebauungsplan vorhanden!
Dachform: keine da kein Bebauungsplan vorhanden!
Stilrichtung: keine da kein Bebauungsplan vorhanden!
Ausrichtung: keine da kein Bebauungsplan vorhanden!
Maximale Höhen/Begrenzungen: keine da kein Bebauungsplan vorhanden!
weitere Vorgaben
Anforderungen der Bauherren
Stilrichtung: Modernes Einfamilienhaus
Dachform: Satteldach (wg. Optik, Photovoltaik und Abstellfläche)
Gebäudetyp: Rechteckig
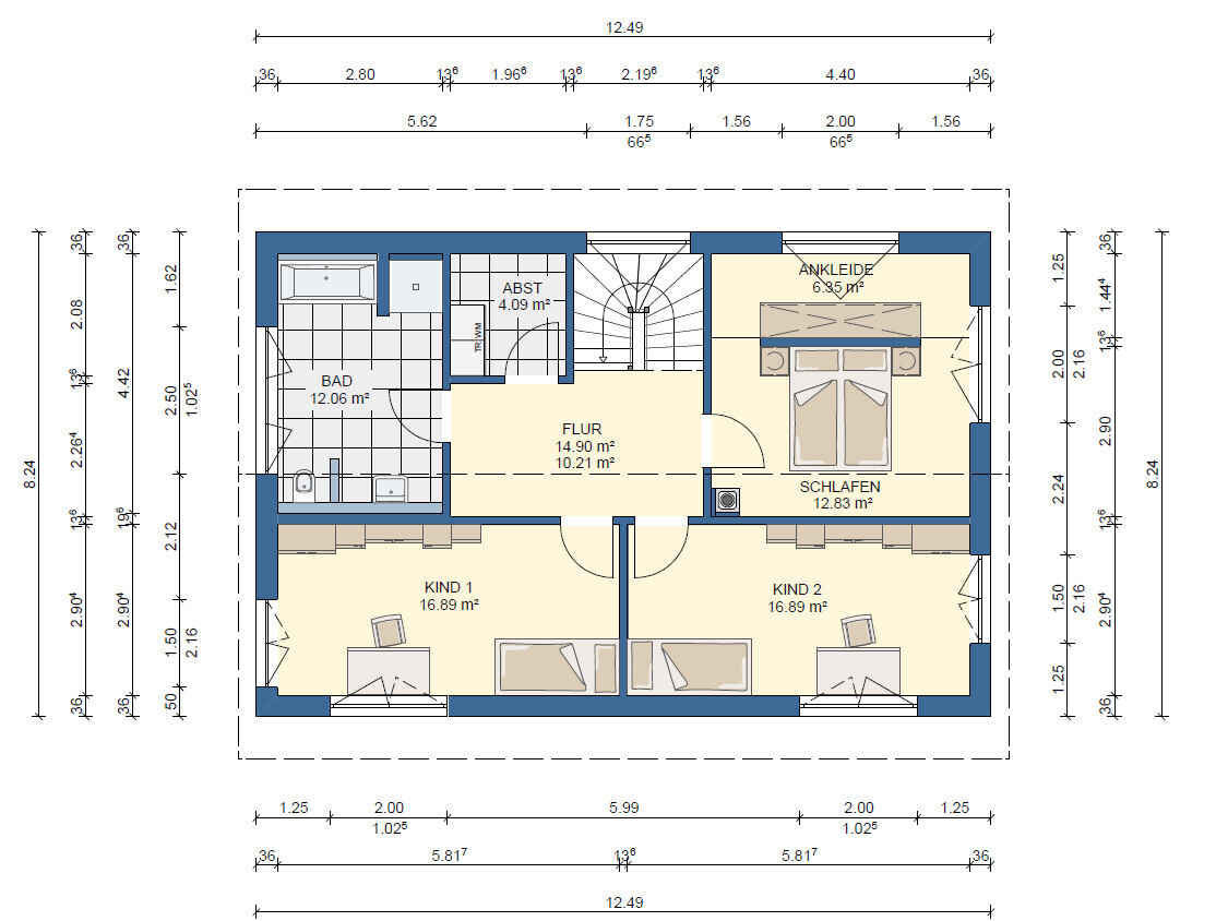
Keller, Geschosse: Keinen Keller, 2 Vollgeschosse (Im Plan ist im OG ein Kniestock von 2,50)
Anzahl der Personen, Alter: 2 Personen: Er 30 (Projektleiter), Sie 26 (Grundschullehrerin)
•Das Haus sollte im EG haben:
•- Küche mit Speisekammer
•- Wohnzimmer
•- Kamin für Schwedenofen
•- Arbeitszimmer für Homeoffice
•- Technikraum
•- WC
•- Garderobe
•
•Im OG:
•- 1 Badezimmer
•- 2 Kinderzimmer
•- Ankleide + Schlafzimmer
•- Kleiner Abstellraum
Büro: Familiennutzung oder Homeoffice?: Homeoffice min. 3x in der Woche zuhause (Er), Grundschullehrerin (Sie)
Schlafgäste pro Jahr: ca. 6
offene oder geschlossene Architektur: darf gerne offen sein
konservativ oder moderne Bauweise: Moderne Bauweise
offene Küche, Kochinsel: Offene Küche mit Kochinsel als Verlängerung der Küche
Anzahl Essplätze: 6
Kamin: Ja ist ein must have für uns
Musik/Stereowand: -
Balkon, Dachterrasse: -
Garage, Carport: Ja, machen wir aber in Eigenleistung
Nutzgarten, Treibhaus: Ja, sind gerne Hobbygärtner ;-) (er)
weitere Wünsche/Besonderheiten/Tagesablauf, gern auch Begründungen, warum dieses oder das nicht sein soll
Ürsprünglich wollten wir eine quadratische Stadtvilla, da aber das Grundstück ca. 45mx19m ist und leicht trapezförmig ist wird dies zu knapp mit der Garage und Terrasse direkt neben dem Haus. Daher haben wir uns für einen rechteckigen Grundriss entschieden.
Hausentwurf
Von wem stammt die Planung: Hausplaner
-Planer eines Bauunternehmens:Fertighaushersteller Kampa
Was gefällt besonders? Besonders gefällt uns der offene, zum Süden hin gerichtete Wohn/Essbereich. Das Büro im EG war uns sehr wichtig.
Was gefällt nicht? Die Küche mit der Speise ist relativ klein, im OG sind die Kinderzimmer etwas zu groß, aus meiner Sicht würden auch 14m² reichen. Ein weiterer Abstellraum macht aber wenig Sinn oder lässt sich aus unserer kreativität heraus nicht realisieren.
Preisschätzung lt Architekt/Planer:
530.000€ in fast Fertig (für KFW QNG Premium Darlehen):
inkl. aller arbeiten am Haus bis auf die Verlegung der Bodenbeläge und Verspachteln/Streichen/Verputzen der Wände (Material ist inkl.)
- Viessmann invinsible Heizung, Lüftung, Photovoltaik 7,2 KwP+Speicher 10KwH
- Raffstores im Wohn/Essbereich
- Kamin
- Haus hat fast Passivhaus Werte (lt. Kampa) 10 KwH/m²a
- Bus System für Licht und Heizungssteuerung
Gesamtkostenabschätzung:
Grundstück inkl. Nebenkosten : 130.000€
Haus + Bemusterung + Hausausstattung + Kaminofen + Enthärtungsanlage = 587.000€
Baunebenkosten (ohne Garage) = 59.000€
Außenanlagen = 20.000€ (machen wir in eigenleistung und ist vorerst nicht wichtig)
Gesamt: 796.000€
(Ich weiß, sehr viel Geld. Auch da ich Schwabe bin blutet mir bereits jetzt das Herz..)
Wir möchten unbedingt das KFW Darlehen mitnehmen da die Finanzierung ansonsten nicht tragfähig ist.
Persönliches Preislimit fürs Haus, inkl Ausstattung: Nicht mehr als 500.000€ für das Haus
favorisierte Heiztechnik: Wärmepumpe
Wenn Ihr verzichten müsst, auf welche Details/Ausbauten
-könnt Ihr verzichten:
Lichtsteuerung via Bussystem
-könnt Ihr nicht verzichten:
Büro im EG
Raffstores
Evtl. Fenstergrößen reduzieren
Was ist die wichtigste/grundlegende Frage zum Grundriss in 130 Zeichen zusammengefasst?
Welche Verbesserungsvorschläge zu unserem Grundriss habt ihr? Wir sind uns unsicher ob uns der Stauraum im Haus reicht? Geplant ist das in der Garage eine kleine Hobbywerkstatt unterkommt. Wo können wir evtl. noch etwas einsparen?
Danke Euch schon mal im Voraus!
PS.: Für Fehler und Unklarheiten entschuldige ich mich im Voraus!








Ich war bisher stiller Mitleser und möchte Euch mal unsere Planungen vorstellen und wünsche mir die ein oder andere Anregung oder Verbesserungsmöglichkeit in unserer aktuellen Planung!:
Bebauungsplan/Einschränkungen:
Bauplatz hat kein Bebebauungsplan, es muss nach §34 Baugesetzbuch gebaut werden. Laut Gemeinde und der Bauumgebung ist "fast alles möglich"
Größe des Grundstücks: 910m²
Hang: Nein
Grundflächenzahl: keine da kein Bebauungsplan vorhanden!
Geschossflächenzahl: keine da kein Bebauungsplan vorhanden!
Baufenster, Baulinie und -grenze: keine da kein Bebauungsplan vorhanden!
Randbebauung: keine da kein Bebauungsplan vorhanden!
Anzahl Stellplatz: keine da kein Bebauungsplan vorhanden!
Geschossigkeit: keine da kein Bebauungsplan vorhanden!
Dachform: keine da kein Bebauungsplan vorhanden!
Stilrichtung: keine da kein Bebauungsplan vorhanden!
Ausrichtung: keine da kein Bebauungsplan vorhanden!
Maximale Höhen/Begrenzungen: keine da kein Bebauungsplan vorhanden!
weitere Vorgaben
Anforderungen der Bauherren
Stilrichtung: Modernes Einfamilienhaus
Dachform: Satteldach (wg. Optik, Photovoltaik und Abstellfläche)
Gebäudetyp: Rechteckig
Keller, Geschosse: Keinen Keller, 2 Vollgeschosse (Im Plan ist im OG ein Kniestock von 2,50)
Anzahl der Personen, Alter: 2 Personen: Er 30 (Projektleiter), Sie 26 (Grundschullehrerin)
•Das Haus sollte im EG haben:
•- Küche mit Speisekammer
•- Wohnzimmer
•- Kamin für Schwedenofen
•- Arbeitszimmer für Homeoffice
•- Technikraum
•- WC
•- Garderobe
•
•Im OG:
•- 1 Badezimmer
•- 2 Kinderzimmer
•- Ankleide + Schlafzimmer
•- Kleiner Abstellraum
Büro: Familiennutzung oder Homeoffice?: Homeoffice min. 3x in der Woche zuhause (Er), Grundschullehrerin (Sie)
Schlafgäste pro Jahr: ca. 6
offene oder geschlossene Architektur: darf gerne offen sein
konservativ oder moderne Bauweise: Moderne Bauweise
offene Küche, Kochinsel: Offene Küche mit Kochinsel als Verlängerung der Küche
Anzahl Essplätze: 6
Kamin: Ja ist ein must have für uns
Musik/Stereowand: -
Balkon, Dachterrasse: -
Garage, Carport: Ja, machen wir aber in Eigenleistung
Nutzgarten, Treibhaus: Ja, sind gerne Hobbygärtner ;-) (er)
weitere Wünsche/Besonderheiten/Tagesablauf, gern auch Begründungen, warum dieses oder das nicht sein soll
Ürsprünglich wollten wir eine quadratische Stadtvilla, da aber das Grundstück ca. 45mx19m ist und leicht trapezförmig ist wird dies zu knapp mit der Garage und Terrasse direkt neben dem Haus. Daher haben wir uns für einen rechteckigen Grundriss entschieden.
Hausentwurf
Von wem stammt die Planung: Hausplaner
-Planer eines Bauunternehmens:Fertighaushersteller Kampa
Was gefällt besonders? Besonders gefällt uns der offene, zum Süden hin gerichtete Wohn/Essbereich. Das Büro im EG war uns sehr wichtig.
Was gefällt nicht? Die Küche mit der Speise ist relativ klein, im OG sind die Kinderzimmer etwas zu groß, aus meiner Sicht würden auch 14m² reichen. Ein weiterer Abstellraum macht aber wenig Sinn oder lässt sich aus unserer kreativität heraus nicht realisieren.
Preisschätzung lt Architekt/Planer:
530.000€ in fast Fertig (für KFW QNG Premium Darlehen):
inkl. aller arbeiten am Haus bis auf die Verlegung der Bodenbeläge und Verspachteln/Streichen/Verputzen der Wände (Material ist inkl.)
- Viessmann invinsible Heizung, Lüftung, Photovoltaik 7,2 KwP+Speicher 10KwH
- Raffstores im Wohn/Essbereich
- Kamin
- Haus hat fast Passivhaus Werte (lt. Kampa) 10 KwH/m²a
- Bus System für Licht und Heizungssteuerung
Gesamtkostenabschätzung:
Grundstück inkl. Nebenkosten : 130.000€
Haus + Bemusterung + Hausausstattung + Kaminofen + Enthärtungsanlage = 587.000€
Baunebenkosten (ohne Garage) = 59.000€
Außenanlagen = 20.000€ (machen wir in eigenleistung und ist vorerst nicht wichtig)
Gesamt: 796.000€
(Ich weiß, sehr viel Geld. Auch da ich Schwabe bin blutet mir bereits jetzt das Herz..)
Wir möchten unbedingt das KFW Darlehen mitnehmen da die Finanzierung ansonsten nicht tragfähig ist.
Persönliches Preislimit fürs Haus, inkl Ausstattung: Nicht mehr als 500.000€ für das Haus
favorisierte Heiztechnik: Wärmepumpe
Wenn Ihr verzichten müsst, auf welche Details/Ausbauten
-könnt Ihr verzichten:
Lichtsteuerung via Bussystem
-könnt Ihr nicht verzichten:
Büro im EG
Raffstores
Evtl. Fenstergrößen reduzieren
Was ist die wichtigste/grundlegende Frage zum Grundriss in 130 Zeichen zusammengefasst?
Welche Verbesserungsvorschläge zu unserem Grundriss habt ihr? Wir sind uns unsicher ob uns der Stauraum im Haus reicht? Geplant ist das in der Garage eine kleine Hobbywerkstatt unterkommt. Wo können wir evtl. noch etwas einsparen?
Danke Euch schon mal im Voraus!
PS.: Für Fehler und Unklarheiten entschuldige ich mich im Voraus!
A
Allthewayup10.05.23 21:03Ich hab das jetzt nur überflogen…
Ihr schätzt knapp 600k wollt aber nur 500k ausgeben? Arbeitszimmer mit 16qm, eine Speisekammer, eine Ankleide, eine Diele mit 16 (14)qm im EG und ein Flur mit 10qm im OG.
Hier muss unbedingt auf Effizienz getrimmt werden. Könnt ihr den stark rechteckigen Grundriss mehr zu einem viereckigen umgestalten? Damit lassen sich etliche qm der Flure den Räumen zuschlagen, das Büro etwas verkleinern und die Raumgrößen und Zugänge im OG optimieren. Es gibt bei dem jetzigen Grundriss auch kaum eine Möglichkeit am Eingang eine Garderobe o.ä. zu platzieren.
Ich habe auch kein Budget für eine Küche gesehen, habe ich das eventuell überlesen? (587.000 - 530.000€) 57.000€ für Küche, Ausstattung, Bodenbeläge und Wände fertigstellen könnte sportlich werden.
Ihr schätzt knapp 600k wollt aber nur 500k ausgeben? Arbeitszimmer mit 16qm, eine Speisekammer, eine Ankleide, eine Diele mit 16 (14)qm im EG und ein Flur mit 10qm im OG.
Hier muss unbedingt auf Effizienz getrimmt werden. Könnt ihr den stark rechteckigen Grundriss mehr zu einem viereckigen umgestalten? Damit lassen sich etliche qm der Flure den Räumen zuschlagen, das Büro etwas verkleinern und die Raumgrößen und Zugänge im OG optimieren. Es gibt bei dem jetzigen Grundriss auch kaum eine Möglichkeit am Eingang eine Garderobe o.ä. zu platzieren.
Ich habe auch kein Budget für eine Küche gesehen, habe ich das eventuell überlesen? (587.000 - 530.000€) 57.000€ für Küche, Ausstattung, Bodenbeläge und Wände fertigstellen könnte sportlich werden.
J
Jurassic13510.05.23 21:22Ich schließe mich den vorherigen Posts an, da kann man fast überall noch was trimmen und zusammenlegen. Z.B. ein großer Hauswirtschaftsraum unten, durch den auch die Nebeneingangstür führt und in dem Waschmaschine/Trockner untergebracht sind. Eventuell kann man da auch noch gleich was aus der Speis integrieren, spart insgesamt qm im EG und könnte die Küche größer machen. Die Abstellkammer im OG kann dann auch entfallen, die Zimmer etwas schmaler, und damit könnte man auf beiden Ebenen einsparen. Hier gibt es aber genug Profis, die sowas sauber durchdenken und sogar zeichnen können, da kommt bestimmt noch viel hilfreicher Input.
Was mir aber auch noch aufgefallen ist: Die Ankleide erscheint mir ziemlich sinnlos. Da passen ja nur ca. 2,5-3 Meter Schrank hinein?! Der Rest sind Laufwege, bei denen man höchstens noch einen Stuhl (für die nicht-ganz-sauber-nicht-ganz-dreckig-Kleidung) und einen kleinen Wäschesammler unterbekommt. Die optische Trennung bringt auch keine praktischen Vorteile, wenn früh morgens der Partner direkt hinter dem Kopfende herumwuselt. Das würde ich mir nochmal überlegen, ob das wirklich die beste Variante für ein eigentlich schön großes Schlafzimmer ist.
Was mir aber auch noch aufgefallen ist: Die Ankleide erscheint mir ziemlich sinnlos. Da passen ja nur ca. 2,5-3 Meter Schrank hinein?! Der Rest sind Laufwege, bei denen man höchstens noch einen Stuhl (für die nicht-ganz-sauber-nicht-ganz-dreckig-Kleidung) und einen kleinen Wäschesammler unterbekommt. Die optische Trennung bringt auch keine praktischen Vorteile, wenn früh morgens der Partner direkt hinter dem Kopfende herumwuselt. Das würde ich mir nochmal überlegen, ob das wirklich die beste Variante für ein eigentlich schön großes Schlafzimmer ist.
Thatspad schrieb:
aus meiner Sicht würden auch 14m² reichenAus meiner Sicht auch. Aber…Thatspad schrieb:
Anzahl der Personen, Alter: 2 PersonenWiderspricht sich das nicht? Planung für 2 Personen und Kinderzimmer?Thatspad schrieb:
2 KinderzimmerOder sind welche geplant?Thatspad schrieb:
Nicht mehr als 500.000€ für das HausThatspad schrieb:
Haus + Bemusterung + Hausausstattung + Kaminofen + Enthärtungsanlage = 587.000€Und woran wollt Ihr sparen? An den genannten Fenstern?Zum Grundriss: ich finde den Allraum überhaupt nicht gelungen: 3,60 sind schon recht schmal für ein WZ. Mit der Länge wird der Raum ein Schlauch. Auch die Kinderzimmer sind Schläuche.
Bad mit 2,80 wird superknapp und eher nur mit einer kleinen Wanne realisierbar. Schlafzimmer als Durchgangszimmer nicht vorteilhaft.
Auch gibt es keinen adäquaten Zugang zum Garten, nur zur Südterrasse, und da ist der Platz endlich und die Grenze nah.
Ich würde den Allraum im L im SO planen, davon wird einiges profitieren. Außerdem den Eingang im Norden. Garage nach hinten, also planrechts schieben. Rest ergibt sich.
161 qm von denen gut 20qm auf Flurfläche entfällt, der mMn verschwendet ist.
Ich mag es nicht, wenn Küche / Wohnen / Essen alles in einer Reihe ist. Ich würde Büro und Küche tauschen und essen wohnen entsprechend auch.
Die Speisekammer würde ich mir sparen, Rohbau 1m, wenn das verputzt und gestrichen ist bleiben ca. 97cm übrig. Was soll da denn rein? Ich würde die weglassen und stattdessen zwei oder drei hohe Vorratsschränke in der Küche einplanen. Die stecken so viel weg, das ist unglaublich
Kinderzimmer für mich zu schlauchig, die haben im Rohbau 2,90m tiefe, das sind später noch ca. 2,87m. Wir haben in den Kinderzimmern 3,35m tiefe und es hätten gerne noch ein paar cm mehr sein können
Der Abstellraum im OG ist ziemlich klein, wo soll die Wäsche gewaschen werden? Wir haben im OG unseren Hauswirtschaftsraum, das war die allerbeste Idee, habe ich jetzt nach gut 1 Jahr im Haus festgestellt. Würde ich immer immer wieder so machen.
Ich mag es nicht, wenn Küche / Wohnen / Essen alles in einer Reihe ist. Ich würde Büro und Küche tauschen und essen wohnen entsprechend auch.
Die Speisekammer würde ich mir sparen, Rohbau 1m, wenn das verputzt und gestrichen ist bleiben ca. 97cm übrig. Was soll da denn rein? Ich würde die weglassen und stattdessen zwei oder drei hohe Vorratsschränke in der Küche einplanen. Die stecken so viel weg, das ist unglaublich
Kinderzimmer für mich zu schlauchig, die haben im Rohbau 2,90m tiefe, das sind später noch ca. 2,87m. Wir haben in den Kinderzimmern 3,35m tiefe und es hätten gerne noch ein paar cm mehr sein können
Der Abstellraum im OG ist ziemlich klein, wo soll die Wäsche gewaschen werden? Wir haben im OG unseren Hauswirtschaftsraum, das war die allerbeste Idee, habe ich jetzt nach gut 1 Jahr im Haus festgestellt. Würde ich immer immer wieder so machen.
Ähnliche Themen