Hallo, ich bin auf eure Meinungen zu unserem unten stehenden Projekt gespannt:
1. Wir sind:
2 Erwachsene (30 Jahre). Keine Kinder geplant
2. Unser Raumprogramm:
- Wohn/Essbereich
- separate abgetrennte Küche
- Schlafzimmer
- Bad
- 2x Büro (1x davon Homeoffice-Nutzung)
- Gäste-WC
- HTR
- Stauflächen im Haus als Kellerersatz & nutzbarer Kriechboden
- 1,5- bis Doppel-Garage mit kleiner Werkstatt
- überdachte Hauptterrasse auf SO-Seite & Nebenterrasse auf SW-Seite
3. Bevorzugter Hausstil:
- ca. 125-130 m²
- 1,5-geschössig (max. 1 Vollgeschoss im Bebauungsplan erlaubt)
- konservativ rechteckig mit Satteldach, Dachfirst SO-NW-Ausrichtung für Photovoltaik auf SW-Seite
- Holzständerbauweise oder Massiv, je nach Preis, Kostenvoranschläge stehen noch aus. Habt ihr hier Erfahrungswerte, die die aktuelle heftige Entwicklung der Baustoffpreise mit einschließt?
4. Gewünschte Zusatzfeatures:
- Terrassenüberdachung auf SO-Seite
- barrierearm
5. Bebauungsplan/ Einschränku8ngen:
- Baulücke
- Grundstück: 660m²
- ca. 4% Gefälle, abfallend von SW nach NO → bei 10x10m Grundfläche ca 0,5m Höhendifferenz)
Bebauungsplan:
- 1 Vollgeschoss, Grundflächenzahl 0,3, Geschossflächenzahl 0,3, offene Bauweise
- Baugrenze: Straße Osten 3m, Straße Süden 5m
ansonsten keine Vorgaben
6. angedachte Haustechnik:
- KFW 55, wenn sich die Investitionsmehrkosten mit der Förderung decken
Bei der konkreten Technik sind wir noch unentschlossen. Am liebsten möglichst günstig in der Anschaffung, aber auch auf 20 Jahre gerechnet noch ökonomisch.
Überlegung:
- Luft-Wasser-Wärmepumpe mit Fußbodenheizung mit geringer Vorlauftemperatur und Photovoltaik-Vorbereitung (spätere Realisierung nach 5 Jahren mit Bafa-Förderung, wenn das Haus als Bestandshaus zählt)
Wir würden gerne die beliebte J-Geisha Panasonic Aquarea WH-MDC05J3E5 nehmen, aber es ist fraglich, ob der GU individuelle Wünsche berücksichtigt.
- Unentschlossen ob Kontrollierte-Wohnraumlüftung oder nicht
Empfehlung vom GU:
-Luftheizung mit Kontrollierte-Wohnraumlüftung
Diesbezügliche Ideen sind sehr gerne gesehen.
7. Hausentwurf:
DIY, aber stark angelehnt an einen GU-Grundriss (zumindest im EG)
8. Preisschätzung:
300 TEUR, nur Haus (ohne Außenanlage, Garage und Küche) Preisregion Niedersachsen
Sind wir da mittlerweile bei der aktuellen Preisentwicklung am unteren Ende der Fahnenstange? Wir würden gerne preisbewusst ohne viel Schnickschnack bauen.
9. Fragen:
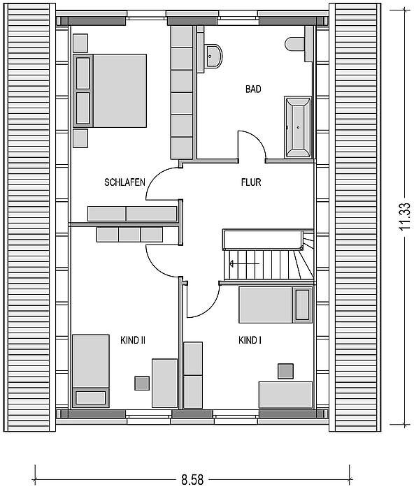
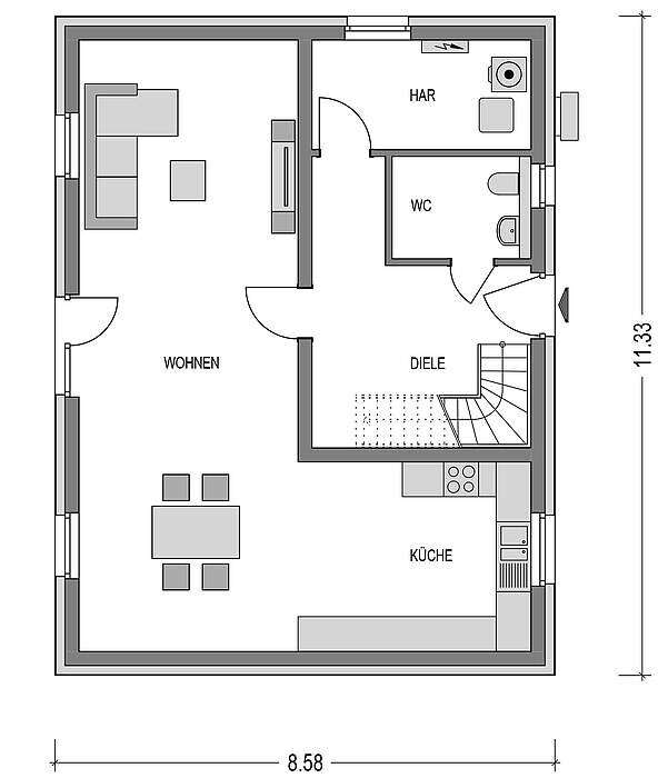
- Ist die Küchentür unter der Treppe gut zu realisieren? Wir würden im unteren Bereich der Treppe gerne einen Stauraum verwirklichen (z. B. als Speisekammer).
- Ist der HTR ungünstig geschnitten für die technischen Erfordernisse?
- Ist die Aufteilung im Badezimmer sinnvoll? (Wir wollen keine Badewanne, dafür eine große ebenerdige Dusche (ca. 1 x 1,4 m)
- Ist die Position der Türen praktikabel gewählt? Sind die im 1. OG gequetscht, oder reicht der Platz grundsätzlich?
- Sind Fenster im Kriechboden zur Schimmelvermeidung/ Feutigkeitsreduzierungg sinnvoll? Oder wie würdet ihr das lösen?
- Uns würde interessieren, was ihr insgesamt von dem Grundriss haltet und welche Ausrichtung auf dem Grundstück ihr bevorzugt (und warum). Wir haben zwei verschiedene Ausrichtungen im Kopf: parallel zur Straße und zum Nachbarn.
Vorteile aus unserer Sicht bei der Ausrichtung parallel zur Straße:
- vom Wohnbereich ist durch die große Fensterfront der Garten mittig zu sehen
- Grenzabstände können einfacher eingehalten werden (bei der anderen Alternative wäre man mit der Traufseite jeweils 3 m vom westlichen Nachbarn und der Straße entfernt. Wenn die Traufseite höher als 6 Meter wird (ist das wahrscheinlich?), würden 3 m Grenzabstand zum West-Nachbarn nicht reichen)
Vorteile aus unserer Sicht bei der Ausrichtung parallel zum Nachbarn:
- Garage besser realisierbar (sonst schrägwinklig=teurer, oder ungenutztes Dreieck zum Nord-Nachbarn)




1. Wir sind:
2 Erwachsene (30 Jahre). Keine Kinder geplant
2. Unser Raumprogramm:
- Wohn/Essbereich
- separate abgetrennte Küche
- Schlafzimmer
- Bad
- 2x Büro (1x davon Homeoffice-Nutzung)
- Gäste-WC
- HTR
- Stauflächen im Haus als Kellerersatz & nutzbarer Kriechboden
- 1,5- bis Doppel-Garage mit kleiner Werkstatt
- überdachte Hauptterrasse auf SO-Seite & Nebenterrasse auf SW-Seite
3. Bevorzugter Hausstil:
- ca. 125-130 m²
- 1,5-geschössig (max. 1 Vollgeschoss im Bebauungsplan erlaubt)
- konservativ rechteckig mit Satteldach, Dachfirst SO-NW-Ausrichtung für Photovoltaik auf SW-Seite
- Holzständerbauweise oder Massiv, je nach Preis, Kostenvoranschläge stehen noch aus. Habt ihr hier Erfahrungswerte, die die aktuelle heftige Entwicklung der Baustoffpreise mit einschließt?
4. Gewünschte Zusatzfeatures:
- Terrassenüberdachung auf SO-Seite
- barrierearm
5. Bebauungsplan/ Einschränku8ngen:
- Baulücke
- Grundstück: 660m²
- ca. 4% Gefälle, abfallend von SW nach NO → bei 10x10m Grundfläche ca 0,5m Höhendifferenz)
Bebauungsplan:
- 1 Vollgeschoss, Grundflächenzahl 0,3, Geschossflächenzahl 0,3, offene Bauweise
- Baugrenze: Straße Osten 3m, Straße Süden 5m
ansonsten keine Vorgaben
6. angedachte Haustechnik:
- KFW 55, wenn sich die Investitionsmehrkosten mit der Förderung decken
Bei der konkreten Technik sind wir noch unentschlossen. Am liebsten möglichst günstig in der Anschaffung, aber auch auf 20 Jahre gerechnet noch ökonomisch.
Überlegung:
- Luft-Wasser-Wärmepumpe mit Fußbodenheizung mit geringer Vorlauftemperatur und Photovoltaik-Vorbereitung (spätere Realisierung nach 5 Jahren mit Bafa-Förderung, wenn das Haus als Bestandshaus zählt)
Wir würden gerne die beliebte J-Geisha Panasonic Aquarea WH-MDC05J3E5 nehmen, aber es ist fraglich, ob der GU individuelle Wünsche berücksichtigt.
- Unentschlossen ob Kontrollierte-Wohnraumlüftung oder nicht
Empfehlung vom GU:
-Luftheizung mit Kontrollierte-Wohnraumlüftung
Diesbezügliche Ideen sind sehr gerne gesehen.
7. Hausentwurf:
DIY, aber stark angelehnt an einen GU-Grundriss (zumindest im EG)
8. Preisschätzung:
300 TEUR, nur Haus (ohne Außenanlage, Garage und Küche) Preisregion Niedersachsen
Sind wir da mittlerweile bei der aktuellen Preisentwicklung am unteren Ende der Fahnenstange? Wir würden gerne preisbewusst ohne viel Schnickschnack bauen.
9. Fragen:
- Ist die Küchentür unter der Treppe gut zu realisieren? Wir würden im unteren Bereich der Treppe gerne einen Stauraum verwirklichen (z. B. als Speisekammer).
- Ist der HTR ungünstig geschnitten für die technischen Erfordernisse?
- Ist die Aufteilung im Badezimmer sinnvoll? (Wir wollen keine Badewanne, dafür eine große ebenerdige Dusche (ca. 1 x 1,4 m)
- Ist die Position der Türen praktikabel gewählt? Sind die im 1. OG gequetscht, oder reicht der Platz grundsätzlich?
- Sind Fenster im Kriechboden zur Schimmelvermeidung/ Feutigkeitsreduzierungg sinnvoll? Oder wie würdet ihr das lösen?
- Uns würde interessieren, was ihr insgesamt von dem Grundriss haltet und welche Ausrichtung auf dem Grundstück ihr bevorzugt (und warum). Wir haben zwei verschiedene Ausrichtungen im Kopf: parallel zur Straße und zum Nachbarn.
Vorteile aus unserer Sicht bei der Ausrichtung parallel zur Straße:
- vom Wohnbereich ist durch die große Fensterfront der Garten mittig zu sehen
- Grenzabstände können einfacher eingehalten werden (bei der anderen Alternative wäre man mit der Traufseite jeweils 3 m vom westlichen Nachbarn und der Straße entfernt. Wenn die Traufseite höher als 6 Meter wird (ist das wahrscheinlich?), würden 3 m Grenzabstand zum West-Nachbarn nicht reichen)
Vorteile aus unserer Sicht bei der Ausrichtung parallel zum Nachbarn:
- Garage besser realisierbar (sonst schrägwinklig=teurer, oder ungenutztes Dreieck zum Nord-Nachbarn)
BernieB schrieb:
8. Preisschätzung:
300 TEUR, nur Haus (ohne Außenanlage, Garage und Küche) Preisregion Niedersachsenmit/ohne Vollkeller?
mit Keller (>50k€) kann's schon eng werden,
je nach Größe u Boden
Kniestock mindestens 1 Meter habe ich noch vergessen
Ohne Keller, aufgrund der Kosten. Die Stauflächen wollen wir im Haus schaffen (Treppe z.T. mit Staufläche, regale im HTR, 4m² Stauraum im OG, begehbarer Kriechboden)
konibar schrieb:
mit/ohne Vollkeller?
mit Keller (>50k€) kann's schon eng werden,
je nach Größe u Boden
Ohne Keller, aufgrund der Kosten. Die Stauflächen wollen wir im Haus schaffen (Treppe z.T. mit Staufläche, regale im HTR, 4m² Stauraum im OG, begehbarer Kriechboden)
BernieB schrieb:
DIY, aber stark angelehnt an einen GU-Grundriss (zumindest im EG)So schlechte Grundrisse malen selbst GU‘s nicht.Du siehst doch, dass die Couch da ned reinpasst, in diesen 3,5 m Wohnschlauch.
Seid ihr lichtscheu? Kaum Fenster.
Flur im OG dunkel. Bad groß ohne Wanne. Schlafen nur 1x3 m -Schränkchen.
Puh….und das auf gut nutzbaren 9x10 m…
Da kann man einen guten 0815-Grundriss nehmen (2 xBüro statt Kinderzimmer) und schon bist fast fertig.
driver55 schrieb:
Du siehst doch, dass die Couch da ned reinpasst, in diesen 3,5 m Wohnschlauch.Hallo driver55, danke für dein Feedback. Die gleichen Abmessungen haben wir aktuell in unserer Mietwohnung, aber ich schätze es wirkt in so einem langen Raum nochmal anders. Das hatte ich bislang nicht bedacht.Mit den wenigen Fensterflächen hast du recht. Auch die Flure werden dunkel sein. Da müssen wir uns noch was überlegen.
driver55 schrieb:
Bad groß ohne Wanne. Schlafen nur 1x3 m -Schränkchen.Meinst du, dass das Bad zu groß ist, für das was dort drin steht? Die Wanne lassen wir bewusst weg, da wir sie nie nutzen würden. Wir überlegen, ob wir das Badezimmer aber noch kleiner machen und den Platz dem Schlafzimmer zuschlagen. Die Abmessungen des Schlafzimmerschranks entspricht unserem jetzigen, den wir mitnehmen.Ich hab nochmal den "Original-Grundriss" angefügt, an dem wir uns orientiert haben. Wenn wir eine offene Küche mögen würden, wäre das EG für uns gut gelöst. (Der Flur im EG und vor allem im OG wäre mir aber zu groß)
Das ist ein typischer Standard-Grundriss von Heinz von Heiden bzw Viebrockhaus... (mit kleineren Änderungen) schon mehrfach live gesehen 🙂
Gerade #5 gesehen: so kenne ich ihn, und der funktioniert auch so. WZ ist recht schmal, ja... und schlauchig. Aber er funktioniert bei unseren Nachbarn (3-köpfig). Stöhnen tun sie wegen des mageren Kopfbereiches im Schlafzimmer-Bett.
Nimmt man die Ecke oben vom Büro weg und gleicht sie dem anderen Zimmer an, dann funktioniert der Aufgang er auch (siehe Grundriss #5)
Bei den Giebelfenstern würde ich mehr auf Symmetrie achten, ansonsten sieht es bei solch einem Satteldach etwas schräg aus.
Mir wäre das zu konservativ. Auch die kinderlosen Möglichkeiten, zB mal ein Sportzimmer zu generieren, sehe ich hier nicht. Wellnessbad, etwas Freiheit für Dinge, die man im Laufe der Jahre noch machen wird...
Fenster sind etwas mager.
Aber wenn es so ein "nüchtern* konservatives Haus werden soll, wo man eigentlich nur arbeitet oder TV schaut, dann passt das schon.
ich persönlich würde mich dort längerfristig nicht wohl fühlen.
Gerade #5 gesehen: so kenne ich ihn, und der funktioniert auch so. WZ ist recht schmal, ja... und schlauchig. Aber er funktioniert bei unseren Nachbarn (3-köpfig). Stöhnen tun sie wegen des mageren Kopfbereiches im Schlafzimmer-Bett.
BernieB schrieb:Nein, der passt!
- Ist der HTR ungünstig geschnitten für die technischen Erfordernisse?
BernieB schrieb:ich sehe das jetzt nicht so fertig geplant, sondern einfach eine Drei-Wand-Streuung. 1,40 würde ich auch nicht machen, wenn dann 1,80.
- Ist die Aufteilung im Badezimmer sinnvoll? (Wir wollen keine Badewanne, dafür eine große ebenerdige Dusche (ca. 1 x 1,4 m)
BernieB schrieb:Das kann doch keiner sagen, was er NIE machen würde. Eigene Badewannennutzung fängt mit Muskelentspannungsbädern an, wenn man sie nicht für die Hand- und Wollwäsche braucht, für Salate zum waschen, etwas spülen etc...
Die Wanne lassen wir bewusst weg, da wir sie nie nutzen würden.
BernieB schrieb:
- Ist die Position der Türen praktikabel gewählt? Sind die im 1. OG gequetscht, oder reicht der Platz grundsätzlich?
Nimmt man die Ecke oben vom Büro weg und gleicht sie dem anderen Zimmer an, dann funktioniert der Aufgang er auch (siehe Grundriss #5)
Bei den Giebelfenstern würde ich mehr auf Symmetrie achten, ansonsten sieht es bei solch einem Satteldach etwas schräg aus.
BernieB schrieb:Dafür fehlen Maße... das Raster ist recht anstrengend, das nachzuzählen.
- Ist die Küchentür unter der Treppe gut zu realisieren?
BernieB schrieb:Ihr bekommt doch eine Kontrollierte-Wohnraumlüftung, die wäre dann auch dort.
- Sind Fenster im Kriechboden zur Schimmelvermeidung/ Feutigkeitsreduzierungg sinnvoll? Oder wie würdet ihr das lösen?
BernieB schrieb:Vor einer Garage müssen 5 Meter frei bleiben... ein "un"genutztes Dreieck kann man gut für Müll oder Gartenabfälle nutzen.
- Garage besser realisierbar (sonst schrägwinklig=teurer, oder ungenutztes Dreieck zum Nord-Nachbarn)
BernieB schrieb:Als kinderloses Paar würde ich anders bauen. Nicht so vernünftig ver-mauert, damit die Privatsphäre mehrerer Familienmitglieder gewahrt wird.
- Uns würde interessieren, was ihr insgesamt von dem Grundriss haltet
Mir wäre das zu konservativ. Auch die kinderlosen Möglichkeiten, zB mal ein Sportzimmer zu generieren, sehe ich hier nicht. Wellnessbad, etwas Freiheit für Dinge, die man im Laufe der Jahre noch machen wird...
Fenster sind etwas mager.
Aber wenn es so ein "nüchtern* konservatives Haus werden soll, wo man eigentlich nur arbeitet oder TV schaut, dann passt das schon.
ich persönlich würde mich dort längerfristig nicht wohl fühlen.
Ähnliche Themen