Bebauungsplan/Einschränkungen
Größe des Grundstücks 547m2
Hang nein
Grundflächenzahl 0,4 (0,5 inkl. Nebengebäude)
Geschossflächenzahl 0,7
Baufenster 17x17m, Baulinie und -grenze siehe Bild
Randbebauung rechts ja mit Garage
Anzahl Stellplatz 2x in Garage 2x vor Garage
Geschossigkeit 2 Vollgeschosse, kein Keller
Dachform versetztes Pultdach in gleiche Richtung (Nordwest)
Zwischen den pultdächern soll eine fensterreihe eingezogen werden
Stilrichtung modern
Ausrichtung Hauseingang Nordwest, Rückseite/ Terrasse/Balkon Südost
Maximale Höhen/Begrenzungen 10 M maximale Firsthöhe, 6,5 m maximale Traufhöhe
weitere Vorgaben
Anforderungen der Bauherren
Stilrichtung modern,
Dachform versetztes Pultdach
Gebäudetyp Zweifamilienhaus
Keller nein
Geschosse 2 Vollgeschosse
Anzahl der Personen EG 2 Erw. + 2 Kinder, OG 1-2 Erw.
Alter 34
Raumbedarf Offen, geplant 140m2 EG, 100m2 OG
Büro: OG ja
Familiennutzung nur EG
oder Homeoffice? Nur OG
Schlafgäste pro Jahr 2-4
offene oder geschlossene Architektur: offen
konservativ oder moderne Bauweise: modern
offene Küche, Kochinsel: beides ja
Anzahl Essplätze je Wohneinheit 1x mit 4-8 Plätzen
Kamin nicht geplant, ggf. Gaskamin bei Nutzung einer gasbetriebenen Heizung
Musik/Stereowand offen
Balkon ja, gleichzeitig als Terrassendach für EG, OG Dachüberstand Pultdach
Garage ja Doppelgarage, Carport nein
Nutzgarten nein
Treibhaus nein
weitere Wünsche/Besonderheiten/Tagesablauf, gern auch Begründungen, warum dieses oder das nicht sein soll
Eigentümer oben, unten soll vermietet werden, bei ggf. Familienzuwachs Wechsel der Wohnung
Kein Keller, daher 2 Lagerräume mit niedrigerem Pultdach Höhe zwischen 1-1,9 Meter
Offene Küche/Wohnbereich wird bevorzugt
Waschmaschine+Trockner soll ins Badezimmer
Rechtes Grundstück normale Bebauung
Links neben dem Grundstück öffentliches Gelände in Form einer Versickerungsmulde als Rückhaltebecken des Regenwassers zur Versickerung und gedrosselter Ablauf in Kanalisation
Hausentwurf
Von wem stammt die Planung:
-Planer eines Bauunternehmens nein
-Architekt nein
-Do-it-Yourself ja
Was gefällt besonders? Bisher Version nr 4, allgemein Aufteilung der Räume, Garage mit Zugang zum Haus
Warum? Bisherige Wohnerfahrungen
Was gefällt nicht? Offen
Warum? Offen
Preisschätzung lt Architekt/Planer: offen schätzungsweise 500k +
Persönliches Preislimit fürs Haus, inkl Ausstattung: 650k
favorisierte Heiztechnik: Blockheizkraftwerk oder Erdwärmepumpe
Wenn Ihr verzichten müsst, auf welche Details/Ausbauten
-könnt Ihr verzichten: ankleide im Schlafzimmer
-könnt Ihr nicht verzichten: offener Wohnbereich
Warum ist der Entwurf so geworden, wie er jetzt ist?
Vorstellungen des Hauses, Beschränkungen Bauleistungsbeschreibung, eigenentwurf
Technikraum soll noch in die linke obere Ecke der Garage ( 4m breite 2m Länge)
Was macht ihn in Euren Augen besonders gut oder schlecht? Offen
Was ist die wichtigste/grundlegende Frage zum Grundriss in 130 Zeichen zusammengefasst?
Welche Stellen könnte man optimieren?





Größe des Grundstücks 547m2
Hang nein
Grundflächenzahl 0,4 (0,5 inkl. Nebengebäude)
Geschossflächenzahl 0,7
Baufenster 17x17m, Baulinie und -grenze siehe Bild
Randbebauung rechts ja mit Garage
Anzahl Stellplatz 2x in Garage 2x vor Garage
Geschossigkeit 2 Vollgeschosse, kein Keller
Dachform versetztes Pultdach in gleiche Richtung (Nordwest)
Zwischen den pultdächern soll eine fensterreihe eingezogen werden
Stilrichtung modern
Ausrichtung Hauseingang Nordwest, Rückseite/ Terrasse/Balkon Südost
Maximale Höhen/Begrenzungen 10 M maximale Firsthöhe, 6,5 m maximale Traufhöhe
weitere Vorgaben
Anforderungen der Bauherren
Stilrichtung modern,
Dachform versetztes Pultdach
Gebäudetyp Zweifamilienhaus
Keller nein
Geschosse 2 Vollgeschosse
Anzahl der Personen EG 2 Erw. + 2 Kinder, OG 1-2 Erw.
Alter 34
Raumbedarf Offen, geplant 140m2 EG, 100m2 OG
Büro: OG ja
Familiennutzung nur EG
oder Homeoffice? Nur OG
Schlafgäste pro Jahr 2-4
offene oder geschlossene Architektur: offen
konservativ oder moderne Bauweise: modern
offene Küche, Kochinsel: beides ja
Anzahl Essplätze je Wohneinheit 1x mit 4-8 Plätzen
Kamin nicht geplant, ggf. Gaskamin bei Nutzung einer gasbetriebenen Heizung
Musik/Stereowand offen
Balkon ja, gleichzeitig als Terrassendach für EG, OG Dachüberstand Pultdach
Garage ja Doppelgarage, Carport nein
Nutzgarten nein
Treibhaus nein
weitere Wünsche/Besonderheiten/Tagesablauf, gern auch Begründungen, warum dieses oder das nicht sein soll
Eigentümer oben, unten soll vermietet werden, bei ggf. Familienzuwachs Wechsel der Wohnung
Kein Keller, daher 2 Lagerräume mit niedrigerem Pultdach Höhe zwischen 1-1,9 Meter
Offene Küche/Wohnbereich wird bevorzugt
Waschmaschine+Trockner soll ins Badezimmer
Rechtes Grundstück normale Bebauung
Links neben dem Grundstück öffentliches Gelände in Form einer Versickerungsmulde als Rückhaltebecken des Regenwassers zur Versickerung und gedrosselter Ablauf in Kanalisation
Hausentwurf
Von wem stammt die Planung:
-Planer eines Bauunternehmens nein
-Architekt nein
-Do-it-Yourself ja
Was gefällt besonders? Bisher Version nr 4, allgemein Aufteilung der Räume, Garage mit Zugang zum Haus
Warum? Bisherige Wohnerfahrungen
Was gefällt nicht? Offen
Warum? Offen
Preisschätzung lt Architekt/Planer: offen schätzungsweise 500k +
Persönliches Preislimit fürs Haus, inkl Ausstattung: 650k
favorisierte Heiztechnik: Blockheizkraftwerk oder Erdwärmepumpe
Wenn Ihr verzichten müsst, auf welche Details/Ausbauten
-könnt Ihr verzichten: ankleide im Schlafzimmer
-könnt Ihr nicht verzichten: offener Wohnbereich
Warum ist der Entwurf so geworden, wie er jetzt ist?
Vorstellungen des Hauses, Beschränkungen Bauleistungsbeschreibung, eigenentwurf
Technikraum soll noch in die linke obere Ecke der Garage ( 4m breite 2m Länge)
Was macht ihn in Euren Augen besonders gut oder schlecht? Offen
Was ist die wichtigste/grundlegende Frage zum Grundriss in 130 Zeichen zusammengefasst?
Welche Stellen könnte man optimieren?
Hm .... Maße am Haus?
Stil sollte mal geklärt werden ... Erker und Pultdach passen nicht. Da sollte evtl. auch noch geklärt werden, ob man mit 6,5 m Traufhöhe hinkommt. Könnte Richtung Garten kritisch werden.
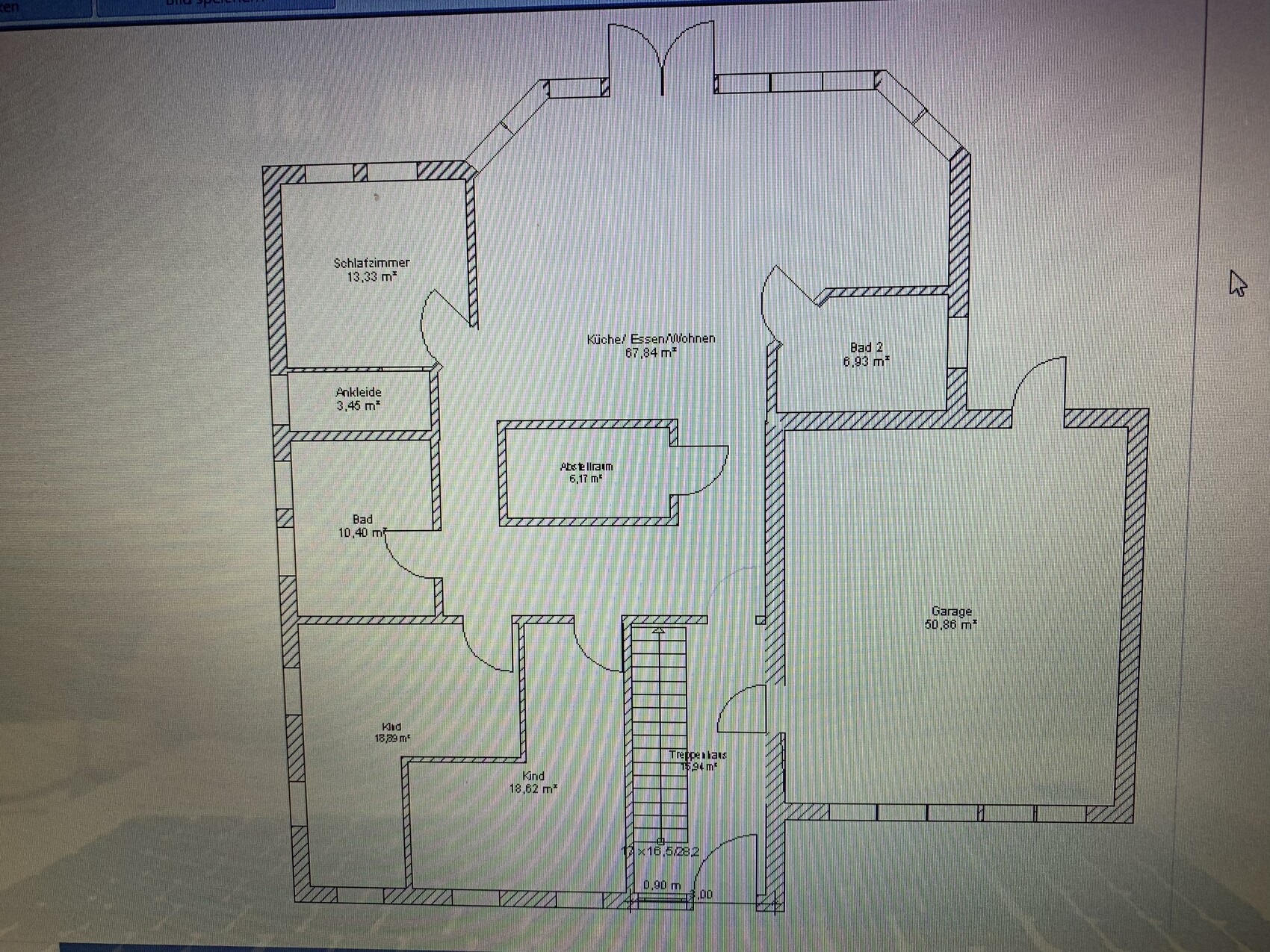
Räume sollten mal möbliert werden ... insbesondere der Wohnbereich mit dem schicken Bad mittendrin.
Wo sollte noch mal die Technik hin? Passt das noch mit den 3 m Abstand zum Nachbarn?
Nordpfeil auf allen Plänen vermeidet, dass man erst so eine Angabe suchen muss und sie dann auch noch im Kopf immer wieder umsetzen muss. Amtliche Lagepläne stellt man auch eher genordet ein.
Stil sollte mal geklärt werden ... Erker und Pultdach passen nicht. Da sollte evtl. auch noch geklärt werden, ob man mit 6,5 m Traufhöhe hinkommt. Könnte Richtung Garten kritisch werden.
Räume sollten mal möbliert werden ... insbesondere der Wohnbereich mit dem schicken Bad mittendrin.
Wo sollte noch mal die Technik hin? Passt das noch mit den 3 m Abstand zum Nachbarn?
Nordpfeil auf allen Plänen vermeidet, dass man erst so eine Angabe suchen muss und sie dann auch noch im Kopf immer wieder umsetzen muss. Amtliche Lagepläne stellt man auch eher genordet ein.
Ich versteh den Entwurf nicht. Ein Pultdach mit durchgezogener Gaube soll Max 6,5 Meter erreichen? Das wird doch bei der Hausbreite viel höher. Und wenn man dort Fenster braucht, dann plant man dieses Pult nicht.
Was belichtet denn die Fenster in oberster Front? Den Dachboden, der außerhalb der 6,50 liegt?
2D kommt mit der Vorstellung der 3D-Ansicht nicht überein.
Ein OG mit Dach wird doch auch viel schmaler in der Nutzung.
Dazu kommen solche Sachen wie willkürliche Außenmauern ohne irgendwelche Regeln, Bad im Wz, Mini-Ankleide, wo kein Schrank reinpasst.
Die Ying/Yang-Kinderzimmer sind die Krönung.
Und dort ist die Dachneigung...
Entschuldige bitte, aber eine Vorstellung von 3D zu 2D hast Du nicht. Und bei 2D fehlt auch das Raumverständnis.
Das ist voll für die Tonne.
P. S. Das hab ich noch nie geschrieben!
Was belichtet denn die Fenster in oberster Front? Den Dachboden, der außerhalb der 6,50 liegt?
2D kommt mit der Vorstellung der 3D-Ansicht nicht überein.
Ein OG mit Dach wird doch auch viel schmaler in der Nutzung.
Dazu kommen solche Sachen wie willkürliche Außenmauern ohne irgendwelche Regeln, Bad im Wz, Mini-Ankleide, wo kein Schrank reinpasst.
Die Ying/Yang-Kinderzimmer sind die Krönung.
Und dort ist die Dachneigung...
Entschuldige bitte, aber eine Vorstellung von 3D zu 2D hast Du nicht. Und bei 2D fehlt auch das Raumverständnis.
Das ist voll für die Tonne.
P. S. Das hab ich noch nie geschrieben!
J
Auch die Firsthöhe darf 10 Meter betragen...
Aber es ist so: keine klare Linie kann verwirren
kbt09 schrieb:jetzt seh ich es auch
@ypg ... das mit den Kinderzimmern soll wohl das EG sein ... aber Recht hast du trotzdem, das passt alles nicht zusammen.
Auch die Firsthöhe darf 10 Meter betragen...
Aber es ist so: keine klare Linie kann verwirren
Ähnliche Themen