Grundrisskritik: Einfamilienhaus mit 3 Kinderzimmern

4,80 Stern(e) 5 Votes
Zuletzt aktualisiert 12.01.2026
Sie befinden sich auf der Seite 7 der Diskussion zum Thema: Grundrisskritik: Einfamilienhaus mit 3 Kinderzimmern
>> Zum 1. Beitrag <<

11ant

11ant

Meine Kinder lieben die Regendusche, daher habe ich mich "erbarmt" und dusche in der Badewanne. Ich bin nicht der geborene Wellnesser, daher stört mich das überhaupt nicht. [...] Ansonsten wird bei uns genauso oft gebadetet wie bei euch
Erbarme tu isch misch nur wenn die Hesse komme und seit Thoelke gilt "große Wäsche: Samstag in acht Tagen"
Mein Brausekopf ist übrigens flugs umgeschaltet, zwischen den Programmen "sauber werden", "Wellness" und "sauber & Wellness gemischt". Und das koschtet bestimmt nur wenige Fränkchli, das auch noch zu "umschaltbar Brausekopf und/oder Rainshower" zu ergänzen. Sogar Duschen mit Ente ginge - freilich nur mit klassischer Schwellen-Duschtasse, bei Walkin müßte man die Ente wohl anleinen
 
D

DasWirdNix

Dann hast Du also quasi ein fixes Flächenbudget und ich müßte das Haus schmaler machen, wenn ich ihm mehr Bautiefe gönnen wollte (?)
Bei uns wird anhand des Volumens und des gewünschten Ausbaustandards ein Preis ermittelt. Wir sind jetzt schon etwas konkreter geworden mit Richtofferten für einzelne Gewerke, aber selbst da sehen wir schon, dass wir am oberen Ende unseres Budgets sind. Daher kann ich Gebäudevergrösserungen praktisch ausschliessen.

Eindeutige Helvetismen hattest Du bisher nicht gebraucht, und sonst hört man es ja in der Schriftsprache nicht. Ins Profil zu schauen lohnt hier nicht mehr, da da neuerdings fast nichts mehr drinsteht. Am Keller fiel es mir auch nicht auf - müßt Ihr nicht mehr mit Luftschutzraum bauen oder irre ich mich da ?
Wir haben in deutschen Bebauungsplänen die Praxis, differenzierter einzukringeln, wo das Haus hin darf (unsere Bebauungspläne haben sich historisch aus Fluchtlinienplänen entwickelt und hier ist ziemlich heilig, daß Häuser nicht aus der Reihe tanzen). Da sind wir Deutschen humorlos wie perfekte Klischeeschweizer.
Du hast recht, entschuldigung. Ich war fest überzeugt im Steckbrief der ersten Seite war eine Frage "Standort: CH". Da habe ich mich jetzt sehr geirrt.

Bei uns gibt es keine Baufenster, nur Grenzabstände und Ausnützungsziffer (Wohnraum im Verhältnis zur Grundstücksgröße).
 
D

DasWirdNix

....noch nicht......aber es ist eben auch nicht komfortabel, so wie im Rest des Hauses. Da MUSS ne Dusche rein für den Vadda !!! und zwar ne ordentliche.
Danke, Danke, Danke!

Aber leider: Ich sehe den Sinn (für uns) nicht in einer weiteren Dusche. Wir haben eine Dusche im EG, auf die ich ausweichen kann, falls ich nicht mehr über den Badewannenrand komme. Notfalls habe ich auch noch eine Dusche im Bad nebenan.
Aktuell sind unsere Zeitpläne und Duschzeiten sehr unterschiedlich, das passt schon für uns. Ich dusche keine 15 Minuten, rein rechnerisch kriegen wir alle 5 also in ca. 1.5h in einer Dusche unter

Also, danke für die Anregung, aber für mich eine unnötige Platz- und Geldinvestition nach heutigen Erkenntnissen (und nur für uns passen wohlgemerkt).

Btw, gleiches noch betreffend kleiderschrank. Wir können noch ein sideboard unter ein Fenster packen, aber die letzten 15 Jahre haben wir nicht mehr Platz im Schrank gebraucht, also auch nicht in den nächsten 15. Und sonst nutzen wir eines der Kinderzimmer mit oder eben rotieren mit dem Keller. Oder aber es landet im Zwischenboden über unserem Badezimmer

Betreffend Vollbremsung noch: Wir werden wohl tatsächlich einen Knick im Kinderbad vorsehen, sodass der Abstand etwas größer ist. Tatsächlich sind es mit Treppenaustritt aktuell nur ca. 1m zwischen Stufe und Wand. Das ist zu wenig. Ich ging von 1.1m aus. Notfalls schieben wir die Treppe noch etwas in Richtung Kinderzimmer, was allerdings schade wäre.
 
Y

ypg

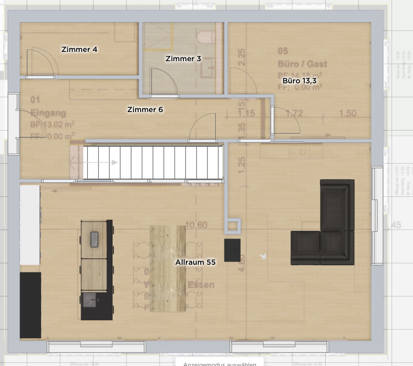
Innenmaße 10,6 x 9,6... ich hoffe, ich hab mich nicht verrechnet
Ich denke, da erklärt sich alles von selbst. Allerdings sind die Innenwände nur 10cm dick - alles zu ändern, habe ich keine Muße.
Zur Orientierung: der Esstisch ist 220 x 110, die Insel 2,40, die hochschränke auch. Das Bett ist 185cm breit, die Duschen nem Meter breit. Sofa weiß ich nicht...

Grundriss eines Hauses: Zimmer 4, 3, 6, Büro/Gast 13,3; Allraum 55, Essen, Sofa, Treppe.

Grundriss eines Hauses: Elternzimmer, Bad, Zimmer 5, K 1 13,5, K 2 13,5, Sam 18,5.

3D-Ansicht: offener Wohn- und Küchenbereich mit Insel, Esstisch, Sofa und Kaminofen.
 
D

DasWirdNix

Wow, danke!
Auch wenn ich grosse Angst habe grundlegendes zu ändern und von vorne anzufangen, werde ich mir deinen Entwurf genau anschauen!

Danke!
 
Zuletzt aktualisiert 12.01.2026
Im Forum Grundrissplanung / Grundstücksplanung gibt es 2565 Themen mit insgesamt 88794 Beiträgen


Ähnliche Themen zu Grundrisskritik: Einfamilienhaus mit 3 Kinderzimmern
Nr.ErgebnisBeiträge
1Erster Entwurf Grundriss Einfamilienhaus (ca. 200qm) - Bitte um Feedback - Seite 646
2Grundriss erster Entwurf - Meinungen erwünscht - Seite 321
3Planung unseres Einfamilienhaus - Was meint ihr zum Entwurf? - Seite 656
4Grundrissplanung / Entwurf Einfamilienhaus Flachdach mit Doppelgarage - Seite 587
5Einfamilienhaus mit 190qm - Was hält ihr von dem Entwurf? Feedback? 51
6Einfamilienhaus ~190qm, drei Kinderzimmer, ohne Keller - Feedback wäre mega - Seite 319
7Einfamilienhaus, ~160m², Bauhausstil; Erster Entwurf nach unseren Wünschen 420
8Einfamilienhaus 1,5-Geschosser ca. 150qm Grundrissplanung Do-It-Yourself Entwurf 23
9Einfamilienhaus ca. 185qm - Erster Entwurf - Verbesserungsvorschläge? 17
10Neubau Einfamilienhaus 160-170qm, 3 Kinderzimmer 39
11Einfamilienhaus, 3 Kinderzimmer, 2 Bäder, ca. 10,5x10,5 m2 - Seite 431
12Unser Grundriss-Entwurf für ein günstiges Haus 348
13Erst-Entwurf vom Architekten - Optimierung 28
14Neubau Einfamilienhaus ca.220qm, 2. Entwurf Stadtvilla - Seite 259
15Hausbau 2.0 - erster Grundriss-Entwurf 155
16Entwurf EFH, 2 Vollgeschosse, Satteldach, kein Keller, Doppelgarage - Seite 231
17Duschen Pufferspeicher 15
18Größe Kinderzimmer/Grundriss 12
19Wanddicke Kinderzimmer / Bad 35
20Jalousien in Kinderzimmer und Bad auf der Südseite 12

Oben