ᐅ Grundrisse von zwei Kinderzimmern (Durchgangszimmervermeidung)
Erstellt am: 27.07.22 11:17
H
herculezHallo zusammen,
wir haben einen Altbau gekauft mit zwei Kinderzimmern. Das eine davon ist ein Durchgangszimmer. Ich wollte den Grundriss hier zur Debatte stellen, da ich die Zimmer gerne trennen würde im Zuge der Sanierung. Die Trennwand ist keine tragende Wand, sodass die leicht verändert werden kann. Ich hätte die Tür zum Kinderzimmer 1 einfach nach hinten versetzt und hier quasi einen rechten Winkel eingezogen. Die irrelevanten Punkte aus der Thread-Eröffnung habe ich mal gelöscht.
Ich würde mich freuen auf kreative Ideen zu stoßen, da ich leider sehr unkreativ bin.
Beste Grüße,
Anforderungen der Bauherren
Stilrichtung, Dachform, Gebäudetyp - Satteldach mit Gauben
Keller, Geschosse - n/a
Anzahl der Personen, Alter - 2 Erwachsene, Kinder
Raumbedarf im EG, OG - für beide Kinder sollten Platz für schrank, Schreibtisch (der kann auch auf Maß gefertigt werden) und Bett sein. Die schreibtische würde ich in den Gauben platzieren.
Hausentwurf
Von wem stammt die Planung: - Altbau-Bestand
Was gefällt besonders? Warum? - dass es zwei ausreichend große Zimmer für die Kinder gibt
Was gefällt nicht? Warum? - dass das eine Kinderzimmer Durchgangszimmer ist. Das mag in den Kleinkindjahren noch gehen, aber später nicht praktikabel
Preisschätzung lt Architekt/Planer: n/a
Persönliches Preislimit fürs Haus, inkl Ausstattung: n/a
Wenn Ihr verzichten müsst, auf welche Details/Ausbauten
-könnt Ihr verzichten:
-könnt Ihr nicht verzichten: - auf zwei separate Zimmer
Warum ist der Entwurf so geworden, wie er jetzt ist? ZB
Standardentwurf vom Planer? - Altbau-Bestand
Was ist die wichtigste/grundlegende Frage zum Grundriss in 130 Zeichen zusammengefasst?
Gibt es ggf. eine kreative Idee die neue Trennwand so zu gestalten, dass "kluge Nischen" entstehen?

wir haben einen Altbau gekauft mit zwei Kinderzimmern. Das eine davon ist ein Durchgangszimmer. Ich wollte den Grundriss hier zur Debatte stellen, da ich die Zimmer gerne trennen würde im Zuge der Sanierung. Die Trennwand ist keine tragende Wand, sodass die leicht verändert werden kann. Ich hätte die Tür zum Kinderzimmer 1 einfach nach hinten versetzt und hier quasi einen rechten Winkel eingezogen. Die irrelevanten Punkte aus der Thread-Eröffnung habe ich mal gelöscht.
Ich würde mich freuen auf kreative Ideen zu stoßen, da ich leider sehr unkreativ bin.
Beste Grüße,
Anforderungen der Bauherren
Stilrichtung, Dachform, Gebäudetyp - Satteldach mit Gauben
Keller, Geschosse - n/a
Anzahl der Personen, Alter - 2 Erwachsene, Kinder
Raumbedarf im EG, OG - für beide Kinder sollten Platz für schrank, Schreibtisch (der kann auch auf Maß gefertigt werden) und Bett sein. Die schreibtische würde ich in den Gauben platzieren.
Hausentwurf
Von wem stammt die Planung: - Altbau-Bestand
Was gefällt besonders? Warum? - dass es zwei ausreichend große Zimmer für die Kinder gibt
Was gefällt nicht? Warum? - dass das eine Kinderzimmer Durchgangszimmer ist. Das mag in den Kleinkindjahren noch gehen, aber später nicht praktikabel
Preisschätzung lt Architekt/Planer: n/a
Persönliches Preislimit fürs Haus, inkl Ausstattung: n/a
Wenn Ihr verzichten müsst, auf welche Details/Ausbauten
-könnt Ihr verzichten:
-könnt Ihr nicht verzichten: - auf zwei separate Zimmer
Warum ist der Entwurf so geworden, wie er jetzt ist? ZB
Standardentwurf vom Planer? - Altbau-Bestand
Was ist die wichtigste/grundlegende Frage zum Grundriss in 130 Zeichen zusammengefasst?
Gibt es ggf. eine kreative Idee die neue Trennwand so zu gestalten, dass "kluge Nischen" entstehen?
O
Osnabruecker27.07.22 11:31herculez schrieb:
. Ich hätte die Tür zum Kinderzimmer 1 einfach nach hinten versetzt und hier quasi einen rechten Winkel eingezogen.Sehe ich auch so.
Die Trennwand würde ich so lassen. Das eine Zimmer ist etwas größer, dafür dann verwinkelt.
Zeichne doch mal selbst die angedachten Möbel ein. Es wird kein Palast, aber welches Kind brauch das schon!
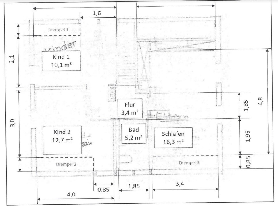
Schwer zu lesen, der Plan. Die untergeordneten Infos stechen mehr ins Auge als das, was Wände sind oder werden sollen. Auch ist nicht klar, was Bestand ist und was neu gedacht, weil da anscheinend schon einiges ausradiert wurde.
Wenn eh saniert wird, würde ich die Trennwand um die geschätzten 30cm neu nach planunten setzen, um den Grössenausgleich zu bekommen. Und wenn planlinks vom Schornstein ein-zwei Qm als Flur stehen bleiben, ergeben sich doch zwei Zugänge automatisch. So erkenne ich es jedenfalls.
Wenn eh saniert wird, würde ich die Trennwand um die geschätzten 30cm neu nach planunten setzen, um den Grössenausgleich zu bekommen. Und wenn planlinks vom Schornstein ein-zwei Qm als Flur stehen bleiben, ergeben sich doch zwei Zugänge automatisch. So erkenne ich es jedenfalls.
Hallo zusammen,
leider habe ich kein professionelles Tool für Grundrisse, aber ich habe mal versucht den Grundriss aufzuräumen. Ich habe zwei Varianten erstellt und hochgeladen.
Was haltet Ihr davon? Habt Ihr vielleicht noch ein paar Kluge Ideen?
Die Drempel habe ich mal in grau markiert. Sie haben eine Höhe von 1m bevor die Schräge anfängt.
Die Schreibtische habe ich an den Fenstern platziert.
Ich freue mich auf die Kommentare.
Beste Grüße


leider habe ich kein professionelles Tool für Grundrisse, aber ich habe mal versucht den Grundriss aufzuräumen. Ich habe zwei Varianten erstellt und hochgeladen.
Was haltet Ihr davon? Habt Ihr vielleicht noch ein paar Kluge Ideen?
Die Drempel habe ich mal in grau markiert. Sie haben eine Höhe von 1m bevor die Schräge anfängt.
Die Schreibtische habe ich an den Fenstern platziert.
Ich freue mich auf die Kommentare.
Beste Grüße
Persönlich finde ich Variante 2 besser. In beiden Fällen kann das kleine Flurstück ohnehin für nichts Großes verwendet werden.
Dafür hat man bei Variante 2 mehr Platz im Zimmer und neben dem Schrank noch ordentlich Platz frei. Hier lässt sich mit einem Regal/Kommode bestimmt noch gut Stauraum schaffen und wenn das Kind irgendwann größer ist, ist auch ein größerer Kleiderschrank möglich.
Das Zimmer wirkt so vermutlich auch offener und geräumiger, da dann die harte Kante wegfällt.
Dafür hat man bei Variante 2 mehr Platz im Zimmer und neben dem Schrank noch ordentlich Platz frei. Hier lässt sich mit einem Regal/Kommode bestimmt noch gut Stauraum schaffen und wenn das Kind irgendwann größer ist, ist auch ein größerer Kleiderschrank möglich.
Das Zimmer wirkt so vermutlich auch offener und geräumiger, da dann die harte Kante wegfällt.
Ähnliche Themen