ᐅ Große Gauben oder hoher Kniestock?
Erstellt am: 12.05.23 16:42
8
8aElProfe12.05.23 16:42Hi,
Wir waren eigentlich schon fast fertig mit unserer Planung, doch nun können wir durch einen Glücksfall höher bauen, als bisher gedacht.
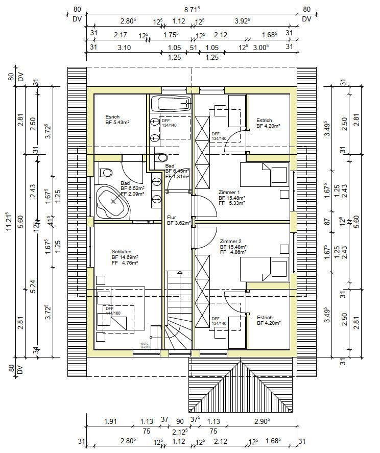
Für unser Dachgeschoss stellt sich nun die Frage, ob wir einen Kniestock mit licher Höhe innen 60 cm mit großen Gauben (Hälfte Fassade) und einer Dachneigung von ca. 35°, wie bisher geplant wählen oder aber den Kniestock auf 160 cm anheben bei einem Dachwinkel von 24° ohne Gauben.
Da die Dachtraufe nicht unterbrochen werden darf, können wir bei dem hohen Kniestock keine Gauben realisieren.
Und aufgrund von Flächenlimitationen bei Wohn- und Nebenfläche, müssen wir die Estrichräume so bauen.
Lichtbänder im 160er Kniestock können von unserem Hausbauer leider nicht realisiert werden.
Wegen der durchgehenden Dachtraufe muss in der Gaubenvariante der Kniestock auf 60 cm gesenkt werden, damit große Fenster mit Brüstungshöhe 1 m reinpassen.
Auf der Kinderzimmerseite haben wir schöne Fernsicht nach Südost, was für die Gaubenvariante spricht.
Im Elternschlafzimmer würde der höhere Kniestock mehr Luft beim Bett bieten. Das Bett würden wir nicht wie im angehängten Grundriss stellen, sondern an die Wände zu Flur und Stirnseite.
Außerdem wären die Estrichräume besser zugänglich mit Stehhöhe firstseitig. Sollte es baurechtlich irgendwann möglich sein, diese den Räumen zuzuwidmen, wäre das mit höherem Kniestock deutlich besser nutzbar.
Was denkt ihr?
Anmerkung: Im angehängten Schnitt ist die Gaubenversion mit leicht niedrigerem First (letzter Stand vor der neuen Information). WIr können bis zu einer lichter Höhe von 3,40 m unterm First anheben. Also KN60 mit DN35 oder KN160 mit DN24.


Wir waren eigentlich schon fast fertig mit unserer Planung, doch nun können wir durch einen Glücksfall höher bauen, als bisher gedacht.
Für unser Dachgeschoss stellt sich nun die Frage, ob wir einen Kniestock mit licher Höhe innen 60 cm mit großen Gauben (Hälfte Fassade) und einer Dachneigung von ca. 35°, wie bisher geplant wählen oder aber den Kniestock auf 160 cm anheben bei einem Dachwinkel von 24° ohne Gauben.
Da die Dachtraufe nicht unterbrochen werden darf, können wir bei dem hohen Kniestock keine Gauben realisieren.
Und aufgrund von Flächenlimitationen bei Wohn- und Nebenfläche, müssen wir die Estrichräume so bauen.
Lichtbänder im 160er Kniestock können von unserem Hausbauer leider nicht realisiert werden.
Wegen der durchgehenden Dachtraufe muss in der Gaubenvariante der Kniestock auf 60 cm gesenkt werden, damit große Fenster mit Brüstungshöhe 1 m reinpassen.
Auf der Kinderzimmerseite haben wir schöne Fernsicht nach Südost, was für die Gaubenvariante spricht.
Im Elternschlafzimmer würde der höhere Kniestock mehr Luft beim Bett bieten. Das Bett würden wir nicht wie im angehängten Grundriss stellen, sondern an die Wände zu Flur und Stirnseite.
Außerdem wären die Estrichräume besser zugänglich mit Stehhöhe firstseitig. Sollte es baurechtlich irgendwann möglich sein, diese den Räumen zuzuwidmen, wäre das mit höherem Kniestock deutlich besser nutzbar.
Was denkt ihr?
Anmerkung: Im angehängten Schnitt ist die Gaubenversion mit leicht niedrigerem First (letzter Stand vor der neuen Information). WIr können bis zu einer lichter Höhe von 3,40 m unterm First anheben. Also KN60 mit DN35 oder KN160 mit DN24.
8aElProfe schrieb:
Im Elternschlafzimmer würde der höhere Kniestock mehr Luft beim Bett bieten. Das Bett würden wir nicht wie im angehängten Grundriss stellen, sondern an die Wände zu Flur und Stirnseite.Da bezweifle ich aber, dass du dann um das Bett in bequemer Gehposition herumkommst.Kniestock von 160 ist meiner Meinung nach nicht gut. Es ist keine Höhe um sinnvolle Fenster unterzubringen und bei Dachneigung 35° bleibt dennoch recht viel Fläche, wo man nicht stehen kann.
Im Grundriss fehlt übrigens die 2m-Linie.
Für den 60 cm Kniestock halte ich die Schlafzimmerbreite von 280 cm für zu gering. Bett muss man mit rund 210 cm rechnen, dann bleiben max. 65-68 cm Durchgang, allerdings fürchte ich bei 60 cm Kniestock und 35° Dachneigung wird man das Bett nicht direkt an der planlinken Wand stellen können, da sonst die Bettnutzung leidet.
8
8aElProfe12.05.23 17:02Ja, das mit dem Bett ist ein Kompromiss und es wird über das Fußende aufgestiegen. Oder wir drehen das Kopfende zum Flur und der mit der größeren Blase liegt stirnseitig.
Ich weiß, das klingt wahrscheinlich leichtsinnig, aber wir haben uns viel damit auseinandergesetzt und so viele Vorschriften und Restriktionen zu beachten bei Form und Größe, dass das letztendlich einer der Kompromisse ist, die wir eingehen mussten. Wenn wir mal zu alt für diese Bettposition werden, sind die Kinder hoffentlich weg und wir ziehen in ein anderes Zimmer bzw. gestalten das OG um (Bäder zusammenlegen, evtl. Kinderzimmer zusammenlegen).
Ich weiß, das klingt wahrscheinlich leichtsinnig, aber wir haben uns viel damit auseinandergesetzt und so viele Vorschriften und Restriktionen zu beachten bei Form und Größe, dass das letztendlich einer der Kompromisse ist, die wir eingehen mussten. Wenn wir mal zu alt für diese Bettposition werden, sind die Kinder hoffentlich weg und wir ziehen in ein anderes Zimmer bzw. gestalten das OG um (Bäder zusammenlegen, evtl. Kinderzimmer zusammenlegen).
Da wird Euch hier von den mir bekannten regelmäßigen BesucherInnen kaum jemand helfen können, vielleicht @Solveigh oder @Mellina (?), einfach mangels Kenntnis des eidgenössischen Baurechts. In Deutschland wäre eine Planung wie gezeichnet schon aussichtslos, weil sich hier die Regenrinne nicht rechtlich als Traufe herbeiziehen ließe, der Dachaufbau über etwa die halbe Trauflänge überzogen wäre und schon die "Gauben" sich sagen lassen müßten, korrekt eigentlich Zwerchhäuser zu sein. Insofern sähe ich dann auch eher einen Kniestock 220 statt 60.
https://www.instagram.com/11antgmxde/
https://www.linkedin.com/company/bauen-jetzt/
https://www.instagram.com/11antgmxde/
https://www.linkedin.com/company/bauen-jetzt/
8
8aElProfe12.05.23 17:08Das spielt nicht wirklich eine Rolle. Rechtlich wissen wir, was wir können und dürfen. Die "Gauben" dürfen über die halbe Fassadenlänge gehen, nur Traufe und First dürfen nicht unterbrochen werden. Ohne Gauben können wir den Kniestock nicht höher als auf 160 cm anheben, da sonst der Satteldachwinkel zu flach würde.
Wir würden uns also in erster Linie über architektonisches Feedback bzgl. der Abwägung zwischen den beiden beschriebenen Varianten freuen.
Wir würden uns also in erster Linie über architektonisches Feedback bzgl. der Abwägung zwischen den beiden beschriebenen Varianten freuen.
8aElProfe schrieb:
Lichtbänder im 160er Kniestock können von unserem Hausbauer leider nicht realisiert werden.Wie jetzt? Dann würden die Fenster, die jetzt traufseitig eingezeichnet sind, wegfallen?By the Way: versucht, die Schränke bei den Kinderzimmer hinter die Türen zu bekommen. Also: Kinderbad einkürzen (das vordere Stück ist eh über), dann die Tür vom Kinderzimmer versetzen, so dass 60 oder besser 70cm hinter der Tür Stellfläche für den Schrank generiert werden kann. Gleiches gilt für das Kinderzimmer planunten. Die Zimmer werden dadurch optisch aufgewertet und wirken dann größer.
Plant Ihr keine Duschen im Haus? Im Kinderbad finde ich Wanne, in der man auch duschen kann, gut.
Im Masterbad würde ich nochmal dran rumfeilen. Und ja, Bett von unten zu besteigen, das macht man im Urlaub, aber nicht ein ganzes Jahr oder sein Leben.
Ähnliche Themen