ᐅ Meinung zu Grundriss versetztes Pultdach Einfamilienhaus - Versuch 2
Erstellt am: 29.05.14 14:35
Z
zovima15Hallo Zusammen,
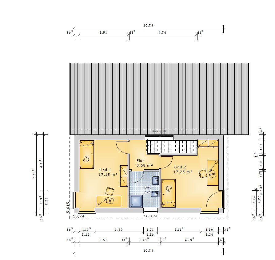
bitte um konstruktive Kritik zu unserem Grundriss. Die Bauweise ist vorgeschrieben (Südhälfte EG + OG und Nordhälfte nur EG). Mit der Raumaufteilung sind wir schon ganz zufrieden, jedoch weiß ich noch nicht ob das mit den Fenstern im OG so gut ist. Und ja, das Schlafzimmer ist uns groß genug, es passt alles rein

bitte um konstruktive Kritik zu unserem Grundriss. Die Bauweise ist vorgeschrieben (Südhälfte EG + OG und Nordhälfte nur EG). Mit der Raumaufteilung sind wir schon ganz zufrieden, jedoch weiß ich noch nicht ob das mit den Fenstern im OG so gut ist. Und ja, das Schlafzimmer ist uns groß genug, es passt alles rein
W
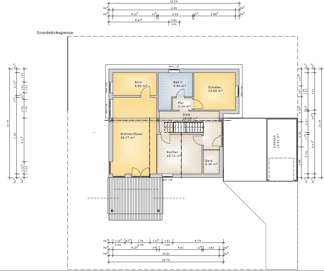
Wanderdüne29.05.14 15:30EG: Bedingt durch die Überdachung wird der Eingangsbereich nicht wirklich hell, die Garderobe ist auch sehr dunkel und immer auf Kunstlicht angewiesen. Im EG fehlt die möblierung, daher ist die Bewertung erschwert, die Küche wird aber auch alles andere als lichtdurchflutet.
Wohnen wäre als rein gefangener Raum ist gut (wenn gewollt), aber als Durchgangszimmer doch wieder ungemütlich.
OG: Funktioniert, die Kinderzimmers solltet Ihr zusammen mit den Fenstern und Sichtachsen planen, nur Beleuchtung in den Ecken kann zwar ausreichen, aber unpraktisch sein.
Ansichten: Warum man mittels Bebauungsplan den regionalen Bezug (Amberg) extrem erschwert, verstehe ich nicht. Gerade hier sollte der Planer dann von sich aus mehr Verantwortung zeigen.
WD
Wohnen wäre als rein gefangener Raum ist gut (wenn gewollt), aber als Durchgangszimmer doch wieder ungemütlich.
OG: Funktioniert, die Kinderzimmers solltet Ihr zusammen mit den Fenstern und Sichtachsen planen, nur Beleuchtung in den Ecken kann zwar ausreichen, aber unpraktisch sein.
Ansichten: Warum man mittels Bebauungsplan den regionalen Bezug (Amberg) extrem erschwert, verstehe ich nicht. Gerade hier sollte der Planer dann von sich aus mehr Verantwortung zeigen.
WD
Hier habe ich es noch mal in SH3D nachmodelliert und die mögliche Möblierung reingesetzt:
EG
OG
EG
OG
Wanderdüne schrieb:Sorry das verstehe ich nicht, was meinst du mit "Kinderzimmers" und was mit Sichtachsen?
OG: Funktioniert, die Kinderzimmers solltet Ihr zusammen mit den Fenstern und Sichtachsen planen, nur Beleuchtung in den Ecken kann zwar ausreichen, aber unpraktisch sein.
Wanderdüne schrieb:Sorry aber das verstehe ich nicht auch nicht so ganz ops: Was meinst du damit? Meinst du damit unseren Planer oder die die den Bebauungsplan geschrieben haben? Grundsätzlich wäre es uns auch lieber ein ganz normales Pult-Dach-Haus hinzustellen. Und woher weißt du dass das in Amberg ist , das ist nämlich richtig
Ansichten: Warum man mittels Bebauungsplan den regionalen Bezug (Amberg) extrem erschwert, verstehe ich nicht. Gerade hier sollte der Planer dann von sich aus mehr Verantwortung zeigen.
WD
Ich finde den Grundriss gar nicht so schlecht, würde aber ein paar Kleinigkeiten überdenken und ggf ändern.
Ich finde, dass die zwei Haushälften zu eine zu grosse Differenz aufweisen. Sie scheinen nicht zusammen zu passen. Dieses könnte man mit einem geringeren Kniestock im 2-gschossigen oder höheren beim 1-Geschossigen Teil ändern. Etwas vermitteln, dass die Geschossigkeit zwar eingehalten wird, aber beide sich annähern. Oder aber die Dach-Neigung ändern, wenn es der Bebauungsplan möglich macht.
Auch die Fenster könnte man verbessern, um in der Fassade etwas Spannung reinzubringen. Die "Eck-Anordnung finde ich nicht gelungen.
Aus dem Fenster im Wohnzimmer wird man nur das Nachbargebäude sehen, dennoch wird Abends wahrscheinlich noch Licht einfallen. Deshalb würde ich hier wie im Büro und auch weitere Räume mit Fensterbändern ausstatten (vorausgesetzt, Ihr mögt die). Vorteile: Licht, dennoch keine Einblicke und unansehnliche Ausblicke (zB auch Nord und Ost)
Oder im West eine Doppeltür statt des Eckfensters.
Küche: eine Terrassentür einplanen (dort wo jetzt der Herd steht ) für kurzen Weg auf die Terrasse.
Gerade beim Pult kann man ohne Symmetrie mit Fenstern Spannungen reinbringen.
Auch in der Garderobe, wenn der Schrank so stehen soll, würde ich ein feststehendes bodentiefes gut finden.
Den Schrank würde ich allerdings an die Südwand stellen und das Fenster neben der Tür wechseln, also bei der Garderobe anordnen.
Innen-Türen: Bürotür rechts 65 cm Platz lassen, damit dort TV gut Platz hat. Sitzecke finde ich (wie schon gesagt, ohne diesem Doppelfenster) gut.
Hinter der Küchentür würde ich Küchenschränke einplanen. Dafür würde der Eingang Küche versetzt werden müssen.
Badtür und Dusche so vermitteln, dass im kleinen Flur noch Stellfläche für Schrank oder Kommode frei wird.
Wo wird Eure Müllecke draußen sein? Es bietet sich hier die überdachte Ecke des Hauses an, würde ich aber vermeiden, wegen Eingang, der ja einladend sein soll.
Wird unter der Überdachung ein Auto stehen? ich hoffe nicht, den Eingangsbereich kann man nämlich richtig toll als Innenhof gestalten
Das Dach des 1-Geschossers würde ich offen gestalten, dann hat der Wohnbereich einen kleinen stylischen Luftraum. Auch die anderen Räume profitieren von der Luftigkeit. Eventuell könnte man im Bad ein Dachfenster einplanen, dann kann Euch keiner hereinschauen und Ihr habt mehr Stellmöglichkeiten.
Euer Bad wird auch für Gäste sein, deshalb würde ich die Toilette und das Waschbecken im Vorderbereich einplanen, damit die Gäste nicht durch das ganze Bad laufen müssen.
Das waren mal "auf die Schnelle" ein paar Ideen von mir.
Gruss Yvonne
Ich würde mich dort ganz wohl fühlen
Edit sagt: die Eckvariationen ergeben nicht die Lichtmenge im Raum, als wenn man Fenster parallel oder weiter von der Ecke weg anordnet.
Sie ergeben ja nur die Breite der Diagonale an Lichtmenge, die sich am gleichschenkligen Dreieck ergibt (der beiden Fenster).
Ich finde, dass die zwei Haushälften zu eine zu grosse Differenz aufweisen. Sie scheinen nicht zusammen zu passen. Dieses könnte man mit einem geringeren Kniestock im 2-gschossigen oder höheren beim 1-Geschossigen Teil ändern. Etwas vermitteln, dass die Geschossigkeit zwar eingehalten wird, aber beide sich annähern. Oder aber die Dach-Neigung ändern, wenn es der Bebauungsplan möglich macht.
Auch die Fenster könnte man verbessern, um in der Fassade etwas Spannung reinzubringen. Die "Eck-Anordnung finde ich nicht gelungen.
Aus dem Fenster im Wohnzimmer wird man nur das Nachbargebäude sehen, dennoch wird Abends wahrscheinlich noch Licht einfallen. Deshalb würde ich hier wie im Büro und auch weitere Räume mit Fensterbändern ausstatten (vorausgesetzt, Ihr mögt die). Vorteile: Licht, dennoch keine Einblicke und unansehnliche Ausblicke (zB auch Nord und Ost)
Oder im West eine Doppeltür statt des Eckfensters.
Küche: eine Terrassentür einplanen (dort wo jetzt der Herd steht ) für kurzen Weg auf die Terrasse.
Gerade beim Pult kann man ohne Symmetrie mit Fenstern Spannungen reinbringen.
Auch in der Garderobe, wenn der Schrank so stehen soll, würde ich ein feststehendes bodentiefes gut finden.
Den Schrank würde ich allerdings an die Südwand stellen und das Fenster neben der Tür wechseln, also bei der Garderobe anordnen.
Innen-Türen: Bürotür rechts 65 cm Platz lassen, damit dort TV gut Platz hat. Sitzecke finde ich (wie schon gesagt, ohne diesem Doppelfenster) gut.
Hinter der Küchentür würde ich Küchenschränke einplanen. Dafür würde der Eingang Küche versetzt werden müssen.
Badtür und Dusche so vermitteln, dass im kleinen Flur noch Stellfläche für Schrank oder Kommode frei wird.
Wo wird Eure Müllecke draußen sein? Es bietet sich hier die überdachte Ecke des Hauses an, würde ich aber vermeiden, wegen Eingang, der ja einladend sein soll.
Wird unter der Überdachung ein Auto stehen? ich hoffe nicht, den Eingangsbereich kann man nämlich richtig toll als Innenhof gestalten
Das Dach des 1-Geschossers würde ich offen gestalten, dann hat der Wohnbereich einen kleinen stylischen Luftraum. Auch die anderen Räume profitieren von der Luftigkeit. Eventuell könnte man im Bad ein Dachfenster einplanen, dann kann Euch keiner hereinschauen und Ihr habt mehr Stellmöglichkeiten.
Euer Bad wird auch für Gäste sein, deshalb würde ich die Toilette und das Waschbecken im Vorderbereich einplanen, damit die Gäste nicht durch das ganze Bad laufen müssen.
Das waren mal "auf die Schnelle" ein paar Ideen von mir.
Gruss Yvonne
Ich würde mich dort ganz wohl fühlen
Edit sagt: die Eckvariationen ergeben nicht die Lichtmenge im Raum, als wenn man Fenster parallel oder weiter von der Ecke weg anordnet.
Sie ergeben ja nur die Breite der Diagonale an Lichtmenge, die sich am gleichschenkligen Dreieck ergibt (der beiden Fenster).
W
Wanderdüne30.05.14 00:25zovima15 schrieb:
Sorry das verstehe ich nicht, was meinst du mit "Kinderzimmers" und was mit Sichtachsen?Kinderzimmer = Kinderzimmer
Sichtachse: Himmelsrichtungen, Sonnenverlauf, Bebauungsplan usw. sind bekannt, Schreibtisch muß sein, dann z.B. Schreibtisch und Fenster so planen, daß zur Hauptnutzungszeit keine Verdunkelung des Fensters erforderlich ist, der gewünschte Blick heraus auf was auch immer erreicht wird, aber der Raum von draußen nicht störend einsehbar ist. Das gilt für jeden Raum.
Auffallend misslungen ist das an der Theke der Küche. Wer da sitzt guckt nach innen, die Fenstertür nach draußen ist so gesetzt, daß man kaum herausgucken kann, das Küchenfenster bietet nur eine schmale sichtbare Fläche draußen. Das ist nur o.k. für den Bezug zum in der Küche arbeitenden, geht aber viel besser.
zovima15 schrieb:
Meinst du damit unseren Planer oder die die den Bebauungsplan geschrieben haben? Grundsätzlich wäre es uns auch lieber ein ganz normales Pult-Dach-Haus hinzustellen. Und woher weißt du dass das in Amberg ist , das ist nämlich richtig Damit meine ich alle beteiligten. Euere Stadt hat den 2. WK gut überstanden und entsprechend viel intakte ältere Häuser, besonders nach dem Krieg wurde dann, wie vielerorts, stadtplanerisch und architektonisch so richtig in die Schei... gegriffen, und das ist immer noch nicht vorbei. Daher kommt auf den Planer die nicht einfache, und für den Bauherren evtl. (muß aber nicht) kostspielige Aufgabe und Verantwortung zu, selbst eine stimmige, angepasste und würdige Planung abzuliefern, die die Schwächen des Bebauungsplanes ausbügelt.
Und das kann ich leider nicht erkennen.
WD
Ähnliche Themen