ᐅ Grundriss-Optimierung 155 qm Einfamilienhaus
Erstellt am: 01.05.22 10:07
Hallo zusammen, nachdem ich schon viele Wertvolle Tipps hier als Mitleserin aufgeschnappt habe, möchte ich nun unseren Grundriss zur Diskussion stellen (Achtung, im Grundriss sind noch ein paar Fehler, da uns der Planung den Entwurf zügig geschickt hat, diese werden selbstverständlich noch geändert (z.B. 2 Meter Linie OG recht, Rettungswege etc.)
Bebauungsplan/Einschränkungen
Größe des Grundstücks: 807 qm
Hang: nein
Grundflächenzahl: 0,25
Geschossflächenzahl:
Baufenster, Baulinie und -grenze: siehe Lageplan
Randbebauung: nein
Anzahl Stellplatz: 2 Carport
Geschossigkeit: 1
Dachform: Satteldach
Stilrichtung: klassisch
Ausrichtung: Süd
Maximale Höhen/Begrenzungen: ./.
weitere Vorgaben: leitung an der westlichen Grundstücksgrenze mit 4 m Schutzstreifen
Anforderungen der Bauherren
Stilrichtung, Dachform, Gebäudetyp: klassisches Einfamilienhaus mit Satteldach
Keller, Geschosse: kein Keller, 1 Vollgeschoss
Anzahl der Personen, Alter: 3 (33,33,2), Nr 4 steht noch aus
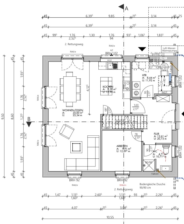
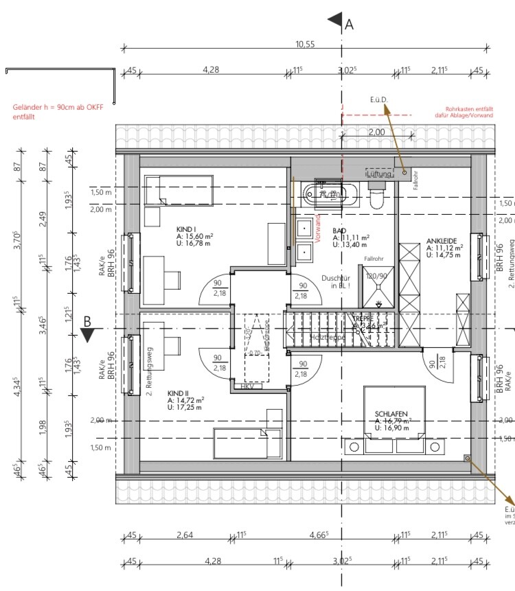
Raumbedarf im EG, OG: EG: offener Wohn-/Essbereich, Gast, Du/Wc; OG: 2 Kinderzimmer, Schlafzimmer, Ankleide/Abstell, Bad
Büro: Familiennutzung oder Homeoffice; vorrangig Gast mit Abstelloption wichtiger Unterlagen
Schlafgäste pro Jahr: ca 12
offene oder geschlossene Architektur: offen
konservativ oder moderne Bauweise: klassisch modern
offene Küche, Kochinsel: beides ja
Anzahl Essplätze: dauerhaft 6 mit Option auf 10-12
Kamin: nein
Musik/Stereowand: nein
Balkon, Dachterrasse: nein
Garage, Carport: doppelcarport
Nutzgarten, Treibhaus: nein
weitere: Mässig befahrene Kreisstraße im Süden (50 km/h), Uneinsehbar durch aufgeschütteten Erdwall,( zusätzlich Lärmschutzwand angefacht, falls nötig) dadurch Blick ins Grüne durch WZ
Wünsche/Besonderheiten/Tagesablauf, gern auch Begründungen, warum dieses oder das nicht sein soll: Wunsch nach Abstelloption in der Küche zwecks Altglas, Papier, Wasserkisten; Gast soll zwingend im EG sein um nötige Privatsphäre zu schaffen
Hausentwurf
Von wem stammt die Planung:
-Planer eines Bauunternehmens, nach unseren Angaben
Was gefällt besonders? Warum?: Wohnbereich, wegen Kücheninsel, Abstell unter der Treppe, zurückgezogener Wohnbereich mit Blick in den Garten (keine Verkehrsdläche), große Ankleide/Abstell im OG, Bad durch Doppelflügelfenster nicht einsehbar, Schmutzschleuse HTR, Distanz Treppe zu Haustür —> EG gefällt bis auf kleinen HTR sehr gut, OG sind wir unsicher, ob Kinderzimmer angenehm bewohnbar und möblierbar sind
Was gefällt nicht? Warum?: HTR sehr klein, Kinderzimmer sehr verwinkelt, Schlafzimmer sehr groß im Vergleich zu den Kinderzimmer (hier hätten uns auch 12-14 qm gereicht), Position Außeneinheit Luft-Wasser-Wärmepumpe
Preisschätzung lt Architekt/Planer: 315.000€ ohne Küche, Böden, Maler, Außenanlagen, Bau-Nebenkosten
Persönliches Preislimit fürs Haus, inkl Ausstattung: 420.000€
favorisierte Heiztechnik: Luft-Wasser-Wärmepumpe
Wenn Ihr verzichten müsst, auf welche Details/Ausbauten
-könnt Ihr verzichten: grade Treppe, aber nicht Abstell darunter
-könnt Ihr nicht verzichten: Abstell im EG, Gast im EG mit nahen Du/WC
Warum ist der Entwurf so geworden, wie er jetzt ist?
Entsprechende/Welche Wünsche wurden vom Planer umgesetzt: Wohnbereich, Abstell unter Treppe von Küche aus begehbar;
Wünsche entstanden als Gemisch aus vielen Beispielen aus div. Magazinen
Was macht ihn in Euren Augen besonders gut oder schlecht? Individuell an unsere Wünsche ausgerichtet (insbesondere im EG)
Was ist die wichtigste/grundlegende Frage zum Grundriss in 130 Zeichen zusammengefasst?
gibt es Vorschläge für ein sinnvoller aufgeteiltes OG, auch in Verbindung mit einer anderen Treppe? Hierbei wäre uns wichtig, dass die Kinderzimmer weiterhin im Süden sind. Oder haltet ihr die Sorge der verwinkelten Kinderzimmer für unbegründet ?



Bebauungsplan/Einschränkungen
Größe des Grundstücks: 807 qm
Hang: nein
Grundflächenzahl: 0,25
Geschossflächenzahl:
Baufenster, Baulinie und -grenze: siehe Lageplan
Randbebauung: nein
Anzahl Stellplatz: 2 Carport
Geschossigkeit: 1
Dachform: Satteldach
Stilrichtung: klassisch
Ausrichtung: Süd
Maximale Höhen/Begrenzungen: ./.
weitere Vorgaben: leitung an der westlichen Grundstücksgrenze mit 4 m Schutzstreifen
Anforderungen der Bauherren
Stilrichtung, Dachform, Gebäudetyp: klassisches Einfamilienhaus mit Satteldach
Keller, Geschosse: kein Keller, 1 Vollgeschoss
Anzahl der Personen, Alter: 3 (33,33,2), Nr 4 steht noch aus
Raumbedarf im EG, OG: EG: offener Wohn-/Essbereich, Gast, Du/Wc; OG: 2 Kinderzimmer, Schlafzimmer, Ankleide/Abstell, Bad
Büro: Familiennutzung oder Homeoffice; vorrangig Gast mit Abstelloption wichtiger Unterlagen
Schlafgäste pro Jahr: ca 12
offene oder geschlossene Architektur: offen
konservativ oder moderne Bauweise: klassisch modern
offene Küche, Kochinsel: beides ja
Anzahl Essplätze: dauerhaft 6 mit Option auf 10-12
Kamin: nein
Musik/Stereowand: nein
Balkon, Dachterrasse: nein
Garage, Carport: doppelcarport
Nutzgarten, Treibhaus: nein
weitere: Mässig befahrene Kreisstraße im Süden (50 km/h), Uneinsehbar durch aufgeschütteten Erdwall,( zusätzlich Lärmschutzwand angefacht, falls nötig) dadurch Blick ins Grüne durch WZ
Wünsche/Besonderheiten/Tagesablauf, gern auch Begründungen, warum dieses oder das nicht sein soll: Wunsch nach Abstelloption in der Küche zwecks Altglas, Papier, Wasserkisten; Gast soll zwingend im EG sein um nötige Privatsphäre zu schaffen
Hausentwurf
Von wem stammt die Planung:
-Planer eines Bauunternehmens, nach unseren Angaben
Was gefällt besonders? Warum?: Wohnbereich, wegen Kücheninsel, Abstell unter der Treppe, zurückgezogener Wohnbereich mit Blick in den Garten (keine Verkehrsdläche), große Ankleide/Abstell im OG, Bad durch Doppelflügelfenster nicht einsehbar, Schmutzschleuse HTR, Distanz Treppe zu Haustür —> EG gefällt bis auf kleinen HTR sehr gut, OG sind wir unsicher, ob Kinderzimmer angenehm bewohnbar und möblierbar sind
Was gefällt nicht? Warum?: HTR sehr klein, Kinderzimmer sehr verwinkelt, Schlafzimmer sehr groß im Vergleich zu den Kinderzimmer (hier hätten uns auch 12-14 qm gereicht), Position Außeneinheit Luft-Wasser-Wärmepumpe
Preisschätzung lt Architekt/Planer: 315.000€ ohne Küche, Böden, Maler, Außenanlagen, Bau-Nebenkosten
Persönliches Preislimit fürs Haus, inkl Ausstattung: 420.000€
favorisierte Heiztechnik: Luft-Wasser-Wärmepumpe
Wenn Ihr verzichten müsst, auf welche Details/Ausbauten
-könnt Ihr verzichten: grade Treppe, aber nicht Abstell darunter
-könnt Ihr nicht verzichten: Abstell im EG, Gast im EG mit nahen Du/WC
Warum ist der Entwurf so geworden, wie er jetzt ist?
Entsprechende/Welche Wünsche wurden vom Planer umgesetzt: Wohnbereich, Abstell unter Treppe von Küche aus begehbar;
Wünsche entstanden als Gemisch aus vielen Beispielen aus div. Magazinen
Was macht ihn in Euren Augen besonders gut oder schlecht? Individuell an unsere Wünsche ausgerichtet (insbesondere im EG)
Was ist die wichtigste/grundlegende Frage zum Grundriss in 130 Zeichen zusammengefasst?
gibt es Vorschläge für ein sinnvoller aufgeteiltes OG, auch in Verbindung mit einer anderen Treppe? Hierbei wäre uns wichtig, dass die Kinderzimmer weiterhin im Süden sind. Oder haltet ihr die Sorge der verwinkelten Kinderzimmer für unbegründet ?
Ok, bleibe dabei, dass es preislich sehr knapp ist. Da ich Aufputz HKV sehe, gehe ich von niedrigem Standard aus, könnte dann evtl. Mit der Eigenleistung passen.
Grundriss funktioniert, der Abstand in der Küche zur Kochinsel sieht mir zu klein aus (<1m?).
Wenig Garderobe, Brüstungshöhe hinter Sofa mit 92cm gewünscht?
Nachtrag: So verwinkelt sind die Kinderzimmer nicht, da kann man gut groß werden. Der Platz im OG ist wenigstens ausgenutzt.
Allerdings sehe ich die Ankleide als unnötig an, da sie gegenüber einem normalen Kleiderschrank bei diesem Grundriss keinen Vorteil bietet.
Grundriss funktioniert, der Abstand in der Küche zur Kochinsel sieht mir zu klein aus (<1m?).
Wenig Garderobe, Brüstungshöhe hinter Sofa mit 92cm gewünscht?
Nachtrag: So verwinkelt sind die Kinderzimmer nicht, da kann man gut groß werden. Der Platz im OG ist wenigstens ausgenutzt.
Allerdings sehe ich die Ankleide als unnötig an, da sie gegenüber einem normalen Kleiderschrank bei diesem Grundriss keinen Vorteil bietet.
Danke, für die Einschätzung! Ja, der Standard ist nicht der höchste. Die Garderobe musste leider der Haustechnik weichen und musste verkleinert werden. Die Küche ist tatsächlich anders geplant und ragt etwas mehr in das WZ rein (Abstand 1,20) und die Brüstungshöhe wurde so gewählt, da das Fenster als 2. Rettungsweg dienen soll (uns wurde gesagt, dass die HTR Tür dafür manchmal problematisch ist (wegen desselben Flurs wie die Haustür).
Angel88 schrieb:
Ich wäre über eine Einschätzung zum Grundriss trotzdem dankbarKurz: EG hat Optimierungspotenzial. Das OG ist ne komplette Fehlplanung.Die Treppe ist für mich so dargestellt ein „Störobjekt“.
Nur ein Zugang für K/E/W ist nicht gut.
Ähnliche Themen