Hausbau - Ratgeber
Bauherrenhilfe
- Bauherrenhilfe vor Vertragsabschluss
-- Warum einen unabhängigen Baubetreuer?
-- Vertragsgrundlagen
-- Bausumme
-- Zahlungsplan zur Kostenkontrolle
-- Pflichten des Bauherren vor Vertragsabschluss
-- Unterlagen beim Hausbau vor Vertragsabschluss
- Bauherrenhilfe nach Vertragsabschluss
-- Bauantrag bei Behörden
-- Bau-Genehmigungsverfahren bei Baubehörden
-- Bauspezifische Versicherungen
-- Bauzeitenplan
-- Baubeginn - die Letzten Pflichten der Bauherrschaft
- Bauherrenhilfe während der Bauzeit
- Gewährleistungsansprüche
- Bauabnahme
Baufinanzierung
- Baufinanzierung - Allgemeine Fragen
- Kreditarten
- Kredit-Konditionen
- Bausparen
- Staatliche Förderungen
- Verkehrswert
- Haushaltsrechnung und Bonität
Hausbau Planung
- Haustypen
- Hausbau Vorbereitungsarbeiten
- Das Baugrundstück
- Baugrund beim Hausbau
- Baurecht
- Gebäudeschutz
- Erdarbeiten und Wasserhaltung
- Stützmauern
- Einfriedung
- Untergeschoss
- Kanalisation
- Tragende Elemente
- Nichttragende Innenwände
- Fundation / Fundament
- Deckenkonstruktionen
- Dächer
- Kaminanlagen
- Treppen Rampen Leitern
- Dachbeläge und Spengler
- Fenster
- Sonnen und Wetterschutz
- Aussenputze
- Einbauten, Küchen, Türen
- Bodenbeläge und Unterlagsböden
- Parkett
- Gips, Wand, Decke
Haustechnik und Energie
- Heiztechnik
- Lüftung und Klimatechnik
- Sanitärtechnik
- Elektrotechnik
- Erneuerbare Energie
Whirlpools / Jacuzzi
Hausbau Magazin
- Baufinanzierung trotz Krise?
- Das Blockhaus
- Moderne Dämmstoffe im Vergleich
- Erker Vor- und Nachteile
- Glasflächen beim Hausbau
- Günstig ein Haus Bauen
- Mediterraner Hausbaustil
- Mehrgenerationenhaus
- Moderne Architektur
- Gartengestaltung leicht gemacht
- Traditioneller Ziegelbau
- Villa als höchster Traum
- Im Eigenheim Ruhestand geniessen
- Altbau sanieren
- Kauf einer Holzgarage
- Immobilienmakler
- Arbeitshandschuhe für den Winter
- Zuhause verschönern
- Outdoor-Plissees
- Schlafzimmer planen
- Terrassenüberdachung
- Wohngebäudeversicherung
- Girokonto für Bauherren finden
- Hauseingang gestalten
- Zaunarten und Eigenschaften
- Der perfekte Grundriss
- Sparsamer heizen im Altbau
- Einfamilienhaus smart finanzieren
- Planung einer PV-Anlage
- Neues Haus
- Immobilienfinanzierung
- Installation einer Photovoltaikanlage
- Asbest erkennen und entfernen
- Gartenpflege im Frühling – worauf achten
- Sauna im Fokus - Wellness zuhause
- Erfolgreich vermieten
- Die perfekte Winterbekleidung
- Das Niedrigenergiehaus
- Der April und seine Stürme
- Architektonische Vielfalt
- Ökologisch und nachhaltig bauen
- Das perfekte Schlafzimmer
- Nachhaltige Energieversorgung
- Zukunftsorientiert bauen
- Nachhaltigkeit beim Hausbau
- Tiny Houses
- Wärmepumpen als nachhaltige Heizvariante
- Maßgeschneiderten Kleiderschrank
- Der richtige Baukredit
- Ratgeber für erfolgreichen Hausbau
- Haus als Altersvorsorge
Do-it-yourself Anleitungen
- Verlegeanleitung für Bodenbeläge und Parkett
- Bodenbeläge und Parkett reinigen und pflegen
- Malerarbeiten am Haus
- Garten Tipps
- Umzug und Reinigung

ᐅ Größe vom Schlafzimmer und Kinderzimmer

Erstellt am: 17.02.16 13:19
M
Milanni123
M
Milanni123
17.02.16 13:19
Hallo zusammen,

wir haben von unserem Bauträger den Entwurf für unser Haus bekommen.
Die Bruttogrößen (bei einem 1m Drempel) der Kinderzimmer sind 14qm und das Elternschlafzimmer ist 16qm.

Reicht das aus? Irgendwie kann ich mir darunter nichts vorstellen und bin nun verunsichert.

Vielen Dank für die Hilfe!
S
Sebastian79
17.02.16 13:31
Kommt immer auf den Schnitt an - so kann man dazu nichts sagen. Wir haben 10qm² für unser Schlafzimmer und das reicht uns .
W
Watcher78
17.02.16 13:47
manchmal sind 16m² schlechter als 10m². Es kommt halt immer auf den Schnitt des Raumes an. Stell doch den Grundriss am Besten mal ein. Dann sieht man auch ob es reicht von wg. der Möblierung etc.
sirhc17.02.16 14:14
Zum Vergleich, bei uns werden die 2 Kinderzimmer sowie das Elternschlafzimmer jeweils 16 qm groß, wobei der Drempel ca. 150 cm beträgt.

Aus der Erfahrung aus meinem Elternhaus weiß ich, dass dieser Platz ausreichend ist, auch wenn mehr Platz immer schöner wäre.

Beim Elternschlafzimmer kommt es meiner Meinung nach auf das Format an. Doppelbett 2 x 2 Meter, rechts und links ein Nachttisch und Platz zum gehen ergibt 4 Meter in der Breite.
In der Tiefe komme ich auch auch auf etwa 4 Meter: 2 Meter Tiefe vom Bett, Gang zwischen Bett und schrank sowie Der Platz für den Schrank. Geht natürlich auch mit einem anderen Format und dem Schrank an der Seite statt gegenüber vom Bett, wir finden es gegenüber am besten. Mehr braucht es nicht, aber darunter wäre es meiner Meinung nach beengt.
M
Milanni123
17.02.16 17:42
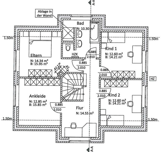
...ich habe einfach keinerlei Vorstellung davon, wie klein die Räume dann sind.
Hier ist unser Grundriss... Wobei da wo "Ankleide" steht, ein Gästezimmer/Bügelzimmer sein wird.
So sind die Räume eigentlich ganz gut geschnitten. -Finde ich...

Grundriss eines Hausobergeschosses: Elternzimmer, Ankleide, Bad, Kind 1, Kind 2, Flur, Treppe.
W
Watcher78
17.02.16 18:03
Ohne Maße am Grundriss kann man das leider nicht beurteilen
elternschlafzimmerbettschrankdrempelkinderzimmergrundriss