Hallo,
im Moment sind wir bei unserer Planung eines Einfamilienhaus an einem Punkt, an dem die Meinungen von Leuten, die bis jetzt noch nichts mit diesem Projekt zu tun hatten, vielleicht ganz sinnvoll sind.
[B]Zum Objekt bzw. wie es schon im Titel steht, zu den Zwangspunkten.[/B]
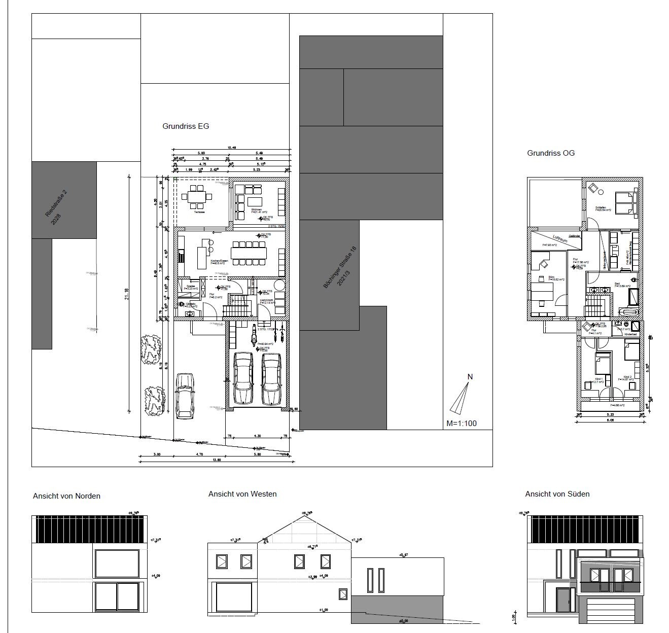
- auf dem Grundstück wird ein Bestandsgebäude weitestgehend abgerissen. Erhalten bleibt lediglich ein 1-geschossiger Anbau. Auf diesem kann/soll aufgestockt werden und des EG als Garage dienen. (MW ist grau hinterlegt)
-das Grundstück zählt als letztes Haus in dieser Straße zum alten Ortskern => zum Nachbar rechts, Grenzbebauung und Brandwand (keine Fenster, Öffnungen usw.) , zum Nachbar links 3m Grenzabstand.
- Nachbar links hat aufgrund von Gefälle der Straße recht hoch gebaut, Nachbar rechts 2 (2,5) Geschosse ebenfalls recht hoch.
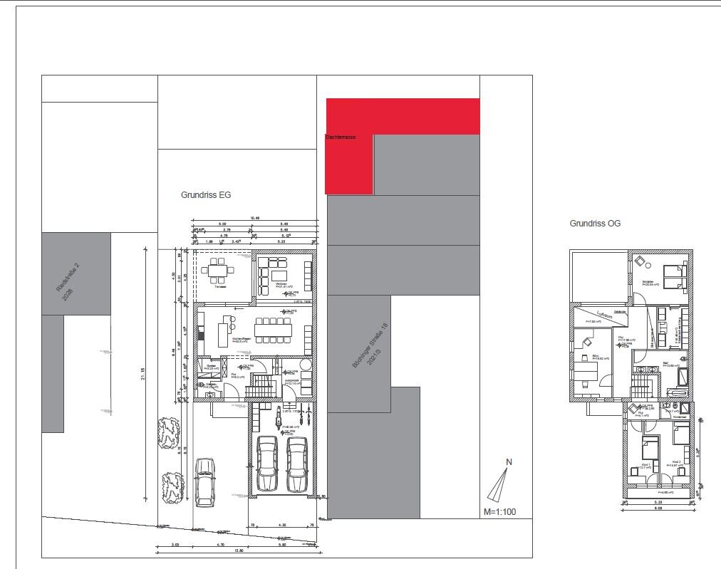
-Nachbar rechts hat im hinteren Bereich eine Dachterrasse in L-Form von gut 80m², diese beginnt bei jetziger Planung ca. 4m hinter unserem Haus. Sie reicht wirklich seitlich bis an die Grundstücksgrenze heran und ist auf ca. 3m Höhe. Die Wohnung zu dieser Terrasse hat keinen Zugang zum Garten und die Terrasse wird entsprechend viel genutzt.
Ich nenne diese Terrasse nur noch Aussichtsplattform :-( Ich habe hier echt ein Problem mit meiner Privatsphäre und der jetzige Grundriss ist auch deutlich an diesen Umstand angepasst. (Ausrichtung Terrasse, Fenster oder eben keine Fenster Richtung Aussichtsplattform usw.
[B]Zu unseren Gedanken/Anforderungen an des WH:[/B]
-Die Kinderzimmer auf dem Zwischengeschoss welches sich durch die Höhenentwicklung ergeben haben gefällt uns recht gut, zusammen mit dem Kinderbad ergibt dies einen leicht separierten Bereich. Gerade wenn die Kinder mal größer sind, eventuell recht angenehm. Trennwand der KZ in Trockenbau, d.h. später variabel => 1 großes Zimmer. Das Haus hat auch keinen Keller bzw. Dachebene welche später als Kinderzimmer dienen/ausgebaut werden könnten. Wenn ich mich an meine Jugendzeit erinnere, war das Kinderzimmer neben dem Elternschlafzimmer eher uncool.
-Wir sind beide Berufstätig (Lehrerin und Ingenieur) und arbeiten beide auch einige Stunden von zuhause aus. Gern auch mal abends und/oder am Wochenende. Ein separates und recht großes Büro wird also zwingend benötigt und ist hier definitiv kein Platzhalter.
- das Flächenverhältnis zwischen reinem Wohnzimmer und Esszimmer/Wohnküche ist im Moment bewusst so gewählt, auch wenns natürlich recht offen ist und nur durch die 2 Stufen optisch abgetrennt. Das Wohnzimmer ist für uns ein eher privater/gemütlicher Bereich, Esszimmer/Wohnküche der Bereich in dem Gäste und Freunde empfangen werden.
Wie gesagt, die Zwangspunkte haben uns echt die ein oder andere schlaflose Nacht bereitet. Gefühlt sind alle Beteiligte mittlerweile ein wenig "Betriebsblind".
Wir sind also um jede Anregung/Kritik froh, dickes Fell ist vorhanden.






im Moment sind wir bei unserer Planung eines Einfamilienhaus an einem Punkt, an dem die Meinungen von Leuten, die bis jetzt noch nichts mit diesem Projekt zu tun hatten, vielleicht ganz sinnvoll sind.
[B]Zum Objekt bzw. wie es schon im Titel steht, zu den Zwangspunkten.[/B]
- auf dem Grundstück wird ein Bestandsgebäude weitestgehend abgerissen. Erhalten bleibt lediglich ein 1-geschossiger Anbau. Auf diesem kann/soll aufgestockt werden und des EG als Garage dienen. (MW ist grau hinterlegt)
-das Grundstück zählt als letztes Haus in dieser Straße zum alten Ortskern => zum Nachbar rechts, Grenzbebauung und Brandwand (keine Fenster, Öffnungen usw.) , zum Nachbar links 3m Grenzabstand.
- Nachbar links hat aufgrund von Gefälle der Straße recht hoch gebaut, Nachbar rechts 2 (2,5) Geschosse ebenfalls recht hoch.
-Nachbar rechts hat im hinteren Bereich eine Dachterrasse in L-Form von gut 80m², diese beginnt bei jetziger Planung ca. 4m hinter unserem Haus. Sie reicht wirklich seitlich bis an die Grundstücksgrenze heran und ist auf ca. 3m Höhe. Die Wohnung zu dieser Terrasse hat keinen Zugang zum Garten und die Terrasse wird entsprechend viel genutzt.
Ich nenne diese Terrasse nur noch Aussichtsplattform :-( Ich habe hier echt ein Problem mit meiner Privatsphäre und der jetzige Grundriss ist auch deutlich an diesen Umstand angepasst. (Ausrichtung Terrasse, Fenster oder eben keine Fenster Richtung Aussichtsplattform usw.
[B]Zu unseren Gedanken/Anforderungen an des WH:[/B]
-Die Kinderzimmer auf dem Zwischengeschoss welches sich durch die Höhenentwicklung ergeben haben gefällt uns recht gut, zusammen mit dem Kinderbad ergibt dies einen leicht separierten Bereich. Gerade wenn die Kinder mal größer sind, eventuell recht angenehm. Trennwand der KZ in Trockenbau, d.h. später variabel => 1 großes Zimmer. Das Haus hat auch keinen Keller bzw. Dachebene welche später als Kinderzimmer dienen/ausgebaut werden könnten. Wenn ich mich an meine Jugendzeit erinnere, war das Kinderzimmer neben dem Elternschlafzimmer eher uncool.
-Wir sind beide Berufstätig (Lehrerin und Ingenieur) und arbeiten beide auch einige Stunden von zuhause aus. Gern auch mal abends und/oder am Wochenende. Ein separates und recht großes Büro wird also zwingend benötigt und ist hier definitiv kein Platzhalter.
- das Flächenverhältnis zwischen reinem Wohnzimmer und Esszimmer/Wohnküche ist im Moment bewusst so gewählt, auch wenns natürlich recht offen ist und nur durch die 2 Stufen optisch abgetrennt. Das Wohnzimmer ist für uns ein eher privater/gemütlicher Bereich, Esszimmer/Wohnküche der Bereich in dem Gäste und Freunde empfangen werden.
Wie gesagt, die Zwangspunkte haben uns echt die ein oder andere schlaflose Nacht bereitet. Gefühlt sind alle Beteiligte mittlerweile ein wenig "Betriebsblind".
Wir sind also um jede Anregung/Kritik froh, dickes Fell ist vorhanden.
Bebauungsplan/Einschränkungen
Größe des Grundstücks 1300m² 13*100m
Hang Straße verläuft leicht geneigt. Nachbar links gut 1-1,5m höher
Grundflächenzahl kein Bebauungsplan bzw Relevanz
Geschossflächenzahl kein Bebauungsplan bzw Relevanz
Baufenster, Baulinie und -grenze Haus-Hofbauweise rechts bündig. Links 3m Grenzabstand. Nachbar links offene Bebauung
Randbebauung siehe oben
Anzahl Stellplatz In der Garage sind 2 Autos gezeichnet, es wird aber eher 1 Auto in der Garage und 1 bis 2 im Hof.
Geschossigkeit aufgrund der Angleichung zum Nachbar 2 / 2 + Spitzboden
Dachform Satteldach im Querbau ist nicht 100% gesetzt aber würde sich am Besten an die umliegende Bebauung einfügen
Stilrichtung hier müsste der Spagat zwischen recht modern, offen, Richtung Bauhaus mit klassischem Satteldach funktionieren, tut es im Moment zugegeben nicht.
Ausrichtung Süden Straße/Einfahrt, Grundstück schmal, großer Garten im Norden
Maximale Höhen/Begrenzungen nein, bzw. bis gut 10,50-11m
weitere Vorgaben Brandwand im Osten => keine Fenster und Öffnungen
Anforderungen der Bauherren
Stilrichtung, Dachform, Gebäudetyp siehe oben
Keller, Geschosse nein, 2
Anzahl der Personen, Alter 2, 32/32
Raumbedarf im EG, OG
Büro: Familiennutzung oder Homeoffice? Homeoffice/2 Leute
Schlafgäste pro Jahr gering, kein Gästezimmer
offene oder geschlossene Architektur offen
konservativ oder moderne Bauweise eher modern
offene Küche, Kochinsel offen, siehe Plan, dieser Punkt finden wir so für uns gut.
Anzahl Essplätze viele, Esstisch ist wirklich in der Größe gewünscht.
Kamin nein
Musik/Stereowand ja, recht audiophil, im Wohnzimmer ist die Wand zum Nachbar dafür vorgesehen, z.B. Stereodreieck ist hier ein Thema
Balkon, Dachterrasse Terrasse mit direktem Zugang aus Wohn/Essen ist wichtig. Dachterrasse und Balkone auch aus Kostengründen eher sekundär.
Garage, Carport siehe Grundriss
Nutzgarten, Treibhaus nein
weitere Wünsche/Besonderheiten/Tagesablauf, gern auch Begründungen, warum dieses oder das nicht sein soll
Hausentwurf
Von wem stammt die Planung:
-Planer eines Bauunternehmens
-Architekt 50%
-Do-it-Yourself 50%
Was gefällt besonders? Warum? EG Wohnen/Essen
Was gefällt nicht? Warum? Kinderzimmer klein und schlauchig, Lichtsituation. Außenansicht!
Preisschätzung lt Architekt/Planer: s.u.
Persönliches Preislimit fürs Haus, inkl Ausstattung: Preis/Leistung muss stimmen
favorisierte Heiztechnik: Luftwärmepumpe/Kontrollierte-Wohnraumlüftung,
Wenn Ihr verzichten müsst, auf welche Details/Ausbauten
-könnt Ihr verzichten: Büro kleiner , Flür OG kleiner
-könnt Ihr nicht verzichten: Kinderbad, Speisekammer
Warum ist der Entwurf so geworden, wie er jetzt ist? ZB
Standardentwurf vom Planer? Nein
Entsprechende/Welche Wünsche wurden vom Architekten umgesetzt? Ja
Ein Gemisch aus vielen Beispielen aus div. Magazinen... teils
Was macht ihn in Euren Augen besonders gut oder schlecht?
Größe des Grundstücks 1300m² 13*100m
Hang Straße verläuft leicht geneigt. Nachbar links gut 1-1,5m höher
Grundflächenzahl kein Bebauungsplan bzw Relevanz
Geschossflächenzahl kein Bebauungsplan bzw Relevanz
Baufenster, Baulinie und -grenze Haus-Hofbauweise rechts bündig. Links 3m Grenzabstand. Nachbar links offene Bebauung
Randbebauung siehe oben
Anzahl Stellplatz In der Garage sind 2 Autos gezeichnet, es wird aber eher 1 Auto in der Garage und 1 bis 2 im Hof.
Geschossigkeit aufgrund der Angleichung zum Nachbar 2 / 2 + Spitzboden
Dachform Satteldach im Querbau ist nicht 100% gesetzt aber würde sich am Besten an die umliegende Bebauung einfügen
Stilrichtung hier müsste der Spagat zwischen recht modern, offen, Richtung Bauhaus mit klassischem Satteldach funktionieren, tut es im Moment zugegeben nicht.
Ausrichtung Süden Straße/Einfahrt, Grundstück schmal, großer Garten im Norden
Maximale Höhen/Begrenzungen nein, bzw. bis gut 10,50-11m
weitere Vorgaben Brandwand im Osten => keine Fenster und Öffnungen
Anforderungen der Bauherren
Stilrichtung, Dachform, Gebäudetyp siehe oben
Keller, Geschosse nein, 2
Anzahl der Personen, Alter 2, 32/32
Raumbedarf im EG, OG
Büro: Familiennutzung oder Homeoffice? Homeoffice/2 Leute
Schlafgäste pro Jahr gering, kein Gästezimmer
offene oder geschlossene Architektur offen
konservativ oder moderne Bauweise eher modern
offene Küche, Kochinsel offen, siehe Plan, dieser Punkt finden wir so für uns gut.
Anzahl Essplätze viele, Esstisch ist wirklich in der Größe gewünscht.
Kamin nein
Musik/Stereowand ja, recht audiophil, im Wohnzimmer ist die Wand zum Nachbar dafür vorgesehen, z.B. Stereodreieck ist hier ein Thema
Balkon, Dachterrasse Terrasse mit direktem Zugang aus Wohn/Essen ist wichtig. Dachterrasse und Balkone auch aus Kostengründen eher sekundär.
Garage, Carport siehe Grundriss
Nutzgarten, Treibhaus nein
weitere Wünsche/Besonderheiten/Tagesablauf, gern auch Begründungen, warum dieses oder das nicht sein soll
Hausentwurf
Von wem stammt die Planung:
-Planer eines Bauunternehmens
-Architekt 50%
-Do-it-Yourself 50%
Was gefällt besonders? Warum? EG Wohnen/Essen
Was gefällt nicht? Warum? Kinderzimmer klein und schlauchig, Lichtsituation. Außenansicht!
Preisschätzung lt Architekt/Planer: s.u.
Persönliches Preislimit fürs Haus, inkl Ausstattung: Preis/Leistung muss stimmen
favorisierte Heiztechnik: Luftwärmepumpe/Kontrollierte-Wohnraumlüftung,
Wenn Ihr verzichten müsst, auf welche Details/Ausbauten
-könnt Ihr verzichten: Büro kleiner , Flür OG kleiner
-könnt Ihr nicht verzichten: Kinderbad, Speisekammer
Warum ist der Entwurf so geworden, wie er jetzt ist? ZB
Standardentwurf vom Planer? Nein
Entsprechende/Welche Wünsche wurden vom Architekten umgesetzt? Ja
Ein Gemisch aus vielen Beispielen aus div. Magazinen... teils
Was macht ihn in Euren Augen besonders gut oder schlecht?
chris86 schrieb:
Die Kinderzimmer auf dem Zwischengeschoss welches sich durch die Höhenentwicklung ergeben haben gefällt uns recht gut, zusammen mit dem Kinderbad ergibt dies einen leicht separierten Bereich.Das sind aber kleine Löcher bzw Schlauchzimmer. Im Prinzip zu nichts zu gebrauchen und gleich mit der Treppe ein Gefahrenpotential vor Ihrer Tür.
Für kleine Kinder und deren Betreuung absolut unpraktisch für Euch, für Spielstunden zu klein, für Besuch ebenso.
Die Fensterfront mit den Terrassentüren sieht auch etwas altbacken aus.
Der graue Garagensockel ist etwas düster und gibt dem Haus nichts. Düster empfinde ich auch das Haus selbst im Innern. Warum gibt es keine Fenster, wo mal ordentlich Licht reinkommt?
Die Kinderzimmer gehen mal so gar nicht. Ich bin kein Fan davon zu sagen, Kinderzimmer müssen so und so groß sein. Überhaupt nicht aber vom Grundriss sind die unbewohnbar. Ich bin jetzt hier seit 2 Jahren im Forum und bei den Top10 der scheußlichsten Kinderzimmer bist Du ganz vorne dabei. Die sind sowas von JVA-Like.
Vor allen wenn ich dann im OG Euren privaten Bereich mit Büro sehe. Unbegreiflich, echt!
EDIT:
Ab der Küche, gefällt mir Euer EG sehr gut. Ich selbst würde das Sofa in die andere Ecke stellen und eine TV Wand von 1,5m als Wohnzimmerabtrennung zum Esszimmer hin bauen wo der TV hängen kann, damit kann das Wohnzimmerfenster auch noch mit einer Hebeschiebetür versehen werden. Ist natürlich so nicht jedermanns Geschmack.
Ich gebe aber auch zu bedenken, da Euer Baukörper mit den verschiedenen Niveaus und der nicht trivialen Bauweise als Bauvorhaben höchstwahrscheinlich nicht reibungslos über die Bühne gehen wird. Ihr habe viel Potenzial für Baufails.
Vor allen wenn ich dann im OG Euren privaten Bereich mit Büro sehe. Unbegreiflich, echt!
EDIT:
Ab der Küche, gefällt mir Euer EG sehr gut. Ich selbst würde das Sofa in die andere Ecke stellen und eine TV Wand von 1,5m als Wohnzimmerabtrennung zum Esszimmer hin bauen wo der TV hängen kann, damit kann das Wohnzimmerfenster auch noch mit einer Hebeschiebetür versehen werden. Ist natürlich so nicht jedermanns Geschmack.
Ich gebe aber auch zu bedenken, da Euer Baukörper mit den verschiedenen Niveaus und der nicht trivialen Bauweise als Bauvorhaben höchstwahrscheinlich nicht reibungslos über die Bühne gehen wird. Ihr habe viel Potenzial für Baufails.
Verstehe ich es richtig, die Garage ist als gegeben zu sehen und dient der Tatsache, dass ihr wieder so bauen dürft?
Kinderzimmer schließe ich mich an, sie sind fürchterlich klein und absolute Schläuche. Wie alt sind denn die Kinder?
Den Luftraum finde ich über der Küche eigentlich sehr nutzlos und würde dazu tendieren, aus den beiden Kinderzimmern 1 Kinderzimmer mit kleinem Büro und aus Büro/Luftraum ein zweites Kinderzimmer mit weiterem kleinen Büro machen. Dann können auch beide mal arbeiten, der eine hat vielleicht eine Telko und stört den anderen dann nicht usw. Auch Kinderbad entfallen lassen, dafür im Elternbad Dusche und Wanne tauschen, sprich Dusche unten quer, links den Duschausgang und rechts die Wanne dann senkrecht gedreht.
Und was spricht eigentlich gegen ein paar (Süd)-Westfenster?
Die Treppe könnte als Podesttreppe auch etwas zu klein gezeichnet sein, zumindest der Ausschnitt im OG, das kann beim Hoch-und Runtergehen Kopfstoßgefahr ergeben.
Für die Garage sollte man für die sinnvolle Nutzung eher einen Seiteneingang im Bereich der Hauseingangstür vorsehen, dann können Fahrräder etc. auch besser geparkt werden. Dafür dann vielleicht den direkten Hauszugang von der Garage streichen. Denn so bekommt man ein Fahrrad nicht aus der Garage, wenn beide Autos geparkt sind. Das Weglassen Zugang Garage in Hauswirtschaftsraum schafft dann dort auch mehr Platz, so dass man evtl. die Speisekammer weglassen kann, dort eher von Küche aus nur eine versenkbare Hochschrankwand vorsehen kann. Dadurch Vergrößerung Flur mit einer sinnvollen 4-Personen-Garderobe für alle gerade in Benutzung befindlichen Jacken und alle Schuhe. Evtl., da ja oben das Kinderbad von mir gestrichen wurde .. hier das Bad etwas größer, so dass eine Zweitdusche passt.
Warum soll eigentlich der Sofabereich 2 Stufen tiefer gelegt werden? Den Bereich finde übrigens absolut ausreichend groß.
Kinderzimmer schließe ich mich an, sie sind fürchterlich klein und absolute Schläuche. Wie alt sind denn die Kinder?
Den Luftraum finde ich über der Küche eigentlich sehr nutzlos und würde dazu tendieren, aus den beiden Kinderzimmern 1 Kinderzimmer mit kleinem Büro und aus Büro/Luftraum ein zweites Kinderzimmer mit weiterem kleinen Büro machen. Dann können auch beide mal arbeiten, der eine hat vielleicht eine Telko und stört den anderen dann nicht usw. Auch Kinderbad entfallen lassen, dafür im Elternbad Dusche und Wanne tauschen, sprich Dusche unten quer, links den Duschausgang und rechts die Wanne dann senkrecht gedreht.
Und was spricht eigentlich gegen ein paar (Süd)-Westfenster?
Die Treppe könnte als Podesttreppe auch etwas zu klein gezeichnet sein, zumindest der Ausschnitt im OG, das kann beim Hoch-und Runtergehen Kopfstoßgefahr ergeben.
Für die Garage sollte man für die sinnvolle Nutzung eher einen Seiteneingang im Bereich der Hauseingangstür vorsehen, dann können Fahrräder etc. auch besser geparkt werden. Dafür dann vielleicht den direkten Hauszugang von der Garage streichen. Denn so bekommt man ein Fahrrad nicht aus der Garage, wenn beide Autos geparkt sind. Das Weglassen Zugang Garage in Hauswirtschaftsraum schafft dann dort auch mehr Platz, so dass man evtl. die Speisekammer weglassen kann, dort eher von Küche aus nur eine versenkbare Hochschrankwand vorsehen kann. Dadurch Vergrößerung Flur mit einer sinnvollen 4-Personen-Garderobe für alle gerade in Benutzung befindlichen Jacken und alle Schuhe. Evtl., da ja oben das Kinderbad von mir gestrichen wurde .. hier das Bad etwas größer, so dass eine Zweitdusche passt.
Warum soll eigentlich der Sofabereich 2 Stufen tiefer gelegt werden? Den Bereich finde übrigens absolut ausreichend groß.
Ähnliche Themen