ᐅ Feedback zur Grundriss-Planung 150 qm
Erstellt am: 28.08.21 13:35
Hallo wir planen aktuell den Bau unseres zukünftigen Hauses. Wir haben eine relativ konkrete Vorstellung wie das Haus aussehen soll und haben unsere Vorstellungen bereits 4 Bauunternehmen präsentiert. Die haben unsere Vorstellungen eigentlich alle ohne Kritik aufgenommen, teilweise noch den ein oder anderen kleinen Hinweis gegeben und uns erste Kostenschätzungen präsentiert. Da die Unternehmen unsere Vorstellungen alle relativ sang- und klanglos aufgenommen haben, gehen wir erstmal davon aus auf dem richtigen Weg zu sein 🙂
Wir würden gern noch eure Meinungen zum Grundriss hören, bevor wir mit den Bauunternehmen den feingetunten Grundriss zur konkreten Angebotsberechnung übergeben.
Bebauungsplan/Einschränkungen
Größe des Grundstücks: 1.150 qm -Parzelle 19 + 19a- (Grundstück vertraglich reserviert, Bebaubarkeit voraussichtlich ab Jan 22 gegeben)
Hang: nein
Grundflächenzahl: 0,3
Geschossflächenzahl: 0,6
Baufenster, Baulinie und -grenze: zur Straße müssen min 3 m für gärtnerische Gestaltung freigelassen werden.
Randbebauung: Im Bebauungsplan habe ich nichts weiter zur Randbebauung gefunden, ich gehe mal von 3 Metern aus
Anzahl Stellplatz: für eigene Autos müssen Stellplätze geschaffen werden
Geschossigkeit: max Vollgeschosse 2
Dachform
Stilrichtung
Ausrichtung
Maximale Höhen/Begrenzungen: max Firsthöhe 9,5 m
weitere Vorgaben: Garagen müssen min 3 m Abstand zu öffentlichen Verkehrsflächen haben
Anforderungen der Bauherren
Stilrichtung, Dachform, Gebäudetyp: Stadtvilla mit flachem Satteldach (kfw55)
Keller, Geschosse: kein Keller, 2 Geschosse
Anzahl der Personen, Alter: 2x Eltern, 1x Kind (29, 29, 2) weiteres Kind soll folgen
Raumbedarf im EG, OG: EG: Gästezimmer/Büro + Duschbad, OG: 2x Kinderzimmer, Elternschlafzimmer, Ankleide, Kinderbad, Elternbad
Büro: Familiennutzung oder Homeoffice?: Möglichkeit für Homeoffice + Übernachtungsgäste
Schlafgäste pro Jahr: mindestens 10x im Jahr 2 Personen, eher mehr
offene oder geschlossene Architektur
konservativ oder moderne Bauweise: eher modern
offene Küche, Kochinsel: offene Küche + Kochinsel
Anzahl Essplätze: 6
Kamin: nein
Musik/Stereowand: nein
Balkon, Dachterrasse: nein
Garage, Carport: wir planen einen Carport
Nutzgarten, Treibhaus: ein bisschen Nutzung ist geplant
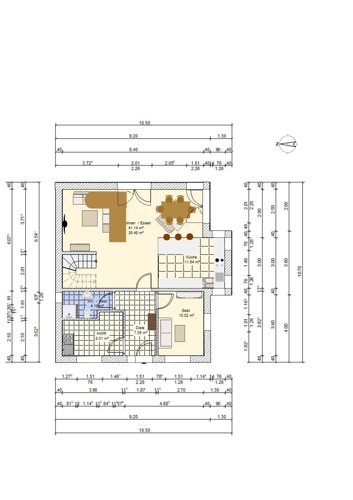
weitere Wünsche/Besonderheiten/Tagesablauf, gern auch Begründungen, warum dieses oder das nicht sein soll: Wir wollten unbedingt einen Abstellraum, den uns eins der Unternehmen dann oben eingefügt hat. Das letzte Unternehmen mit dem wir gesprochen haben brachte noch folgenden Vorschlag ins Spiel: Treppe aus Beton und dann unter der Treppe mit Tür einen separaten Abstellraum (ist leider nicht im Grundriss enthalten, da endeten meine „Sweet Home 3D“-Fähigkeiten). Der Treppenaufgang würde dann nicht Richtung Wohnzimmer, sondern Richtung Eingangstür liegen. Den Vorschlag finden wir super, fragen uns aber ob wir dann nicht vielleicht doch auf den 2. Abstellraum oben zugunsten der Kinderzimmer verzichten könnten.
Hausentwurf
Von wem stammt die Planung: Vorgaben hauptsächlich von uns, vom Bauunternehmen digitalisiert
Was gefällt besonders? Warum?:
1. der Wohnzimmer-Küchenbereich ist 1:1 aus einem Musterhaus übernommen, in dem uns das Raumgefühl sehr gut gefallen hat.
2. Schlafzimmer und Elternbad über Ankleide begehbar.
3. Elternbad ist auch ziemlich exakt aus einem Musterhaus übernommen.
Was gefällt nicht? Warum?: Wir fragen uns ob die Diele so ausreichend ist. Sie wird definitiv nicht großzügig, sondern nur zweckmäßig, aber reicht der Platz?
Preisschätzung lt Architekt/Planer:
Persönliches Preislimit fürs Haus, inkl Ausstattung:
favorisierte Heiztechnik: Wärmepumpe, Photovoltaik evtl. mit Speicher (hier muss noch eine Beratung folgen)
Wenn Ihr verzichten müsst, auf welche Details/Ausbauten
-könnt Ihr verzichten: einen Abstellraum?
-könnt Ihr nicht verzichten:
Warum ist der Entwurf so geworden, wie er jetzt ist?
Mix aus Hausbaukatalogen, Musterhausbesuchen und Ideen von Bauunternehmen
Was ist die wichtigste/grundlegende Frage zum Grundriss in 130 Zeichen zusammengefasst?
Wegen meiner begrenzten „Sweet Home 3d“-Fähigkeiten sieht der Grundriss des EG etwas merkwürdig aus, hier habe ich einen früheren Grundriss als Vorlage unter den neuen Grundriss gelegt. Bei Sofa und esstisch bitte nur die kräftigeren Umrisse beachten. Sorry dafür, aber besser habe ich es nicht hinbekommen.
Sagt Bescheid falls wir noch relevante Angaben vergessen haben. Und schon mal sorry falls meine Antworten nicht immer sofort kommen, ich bemühe mich aber möglichst zeitnah zu antworten.
So, dann sind wir auf euer Feedback gespannt.








Wir würden gern noch eure Meinungen zum Grundriss hören, bevor wir mit den Bauunternehmen den feingetunten Grundriss zur konkreten Angebotsberechnung übergeben.
Bebauungsplan/Einschränkungen
Größe des Grundstücks: 1.150 qm -Parzelle 19 + 19a- (Grundstück vertraglich reserviert, Bebaubarkeit voraussichtlich ab Jan 22 gegeben)
Hang: nein
Grundflächenzahl: 0,3
Geschossflächenzahl: 0,6
Baufenster, Baulinie und -grenze: zur Straße müssen min 3 m für gärtnerische Gestaltung freigelassen werden.
Randbebauung: Im Bebauungsplan habe ich nichts weiter zur Randbebauung gefunden, ich gehe mal von 3 Metern aus
Anzahl Stellplatz: für eigene Autos müssen Stellplätze geschaffen werden
Geschossigkeit: max Vollgeschosse 2
Dachform
Stilrichtung
Ausrichtung
Maximale Höhen/Begrenzungen: max Firsthöhe 9,5 m
weitere Vorgaben: Garagen müssen min 3 m Abstand zu öffentlichen Verkehrsflächen haben
Anforderungen der Bauherren
Stilrichtung, Dachform, Gebäudetyp: Stadtvilla mit flachem Satteldach (kfw55)
Keller, Geschosse: kein Keller, 2 Geschosse
Anzahl der Personen, Alter: 2x Eltern, 1x Kind (29, 29, 2) weiteres Kind soll folgen
Raumbedarf im EG, OG: EG: Gästezimmer/Büro + Duschbad, OG: 2x Kinderzimmer, Elternschlafzimmer, Ankleide, Kinderbad, Elternbad
Büro: Familiennutzung oder Homeoffice?: Möglichkeit für Homeoffice + Übernachtungsgäste
Schlafgäste pro Jahr: mindestens 10x im Jahr 2 Personen, eher mehr
offene oder geschlossene Architektur
konservativ oder moderne Bauweise: eher modern
offene Küche, Kochinsel: offene Küche + Kochinsel
Anzahl Essplätze: 6
Kamin: nein
Musik/Stereowand: nein
Balkon, Dachterrasse: nein
Garage, Carport: wir planen einen Carport
Nutzgarten, Treibhaus: ein bisschen Nutzung ist geplant
weitere Wünsche/Besonderheiten/Tagesablauf, gern auch Begründungen, warum dieses oder das nicht sein soll: Wir wollten unbedingt einen Abstellraum, den uns eins der Unternehmen dann oben eingefügt hat. Das letzte Unternehmen mit dem wir gesprochen haben brachte noch folgenden Vorschlag ins Spiel: Treppe aus Beton und dann unter der Treppe mit Tür einen separaten Abstellraum (ist leider nicht im Grundriss enthalten, da endeten meine „Sweet Home 3D“-Fähigkeiten). Der Treppenaufgang würde dann nicht Richtung Wohnzimmer, sondern Richtung Eingangstür liegen. Den Vorschlag finden wir super, fragen uns aber ob wir dann nicht vielleicht doch auf den 2. Abstellraum oben zugunsten der Kinderzimmer verzichten könnten.
Hausentwurf
Von wem stammt die Planung: Vorgaben hauptsächlich von uns, vom Bauunternehmen digitalisiert
Was gefällt besonders? Warum?:
1. der Wohnzimmer-Küchenbereich ist 1:1 aus einem Musterhaus übernommen, in dem uns das Raumgefühl sehr gut gefallen hat.
2. Schlafzimmer und Elternbad über Ankleide begehbar.
3. Elternbad ist auch ziemlich exakt aus einem Musterhaus übernommen.
Was gefällt nicht? Warum?: Wir fragen uns ob die Diele so ausreichend ist. Sie wird definitiv nicht großzügig, sondern nur zweckmäßig, aber reicht der Platz?
Preisschätzung lt Architekt/Planer:
Persönliches Preislimit fürs Haus, inkl Ausstattung:
favorisierte Heiztechnik: Wärmepumpe, Photovoltaik evtl. mit Speicher (hier muss noch eine Beratung folgen)
Wenn Ihr verzichten müsst, auf welche Details/Ausbauten
-könnt Ihr verzichten: einen Abstellraum?
-könnt Ihr nicht verzichten:
Warum ist der Entwurf so geworden, wie er jetzt ist?
Mix aus Hausbaukatalogen, Musterhausbesuchen und Ideen von Bauunternehmen
Was ist die wichtigste/grundlegende Frage zum Grundriss in 130 Zeichen zusammengefasst?
- Positionierung/Ausrichtung auf dem Grundstück: hier sind wir uns noch unsicher, was gut oder merkwürdig aussieht und wie die Positionierung der einzelnen Zimmer zur Himmelsrichtung Sinn machen. Wir haben aber auch das Thema Photovoltaik mit entsprechender Süd-Dach-Ausrichtung im Kopf. (Ich habe 2 Ausrichtungs-Ideen angehängt)
- Macht ein weiteres Fenster im Wohnzimmer an der Couch Sinn?
- Kann das Treppenhaus-/Galerie-Fenster auch kleiner sein, reicht der Lichteinfall?
- Was sagt ihr allgemein zum Grundriss?
Wegen meiner begrenzten „Sweet Home 3d“-Fähigkeiten sieht der Grundriss des EG etwas merkwürdig aus, hier habe ich einen früheren Grundriss als Vorlage unter den neuen Grundriss gelegt. Bei Sofa und esstisch bitte nur die kräftigeren Umrisse beachten. Sorry dafür, aber besser habe ich es nicht hinbekommen.
Sagt Bescheid falls wir noch relevante Angaben vergessen haben. Und schon mal sorry falls meine Antworten nicht immer sofort kommen, ich bemühe mich aber möglichst zeitnah zu antworten.
So, dann sind wir auf euer Feedback gespannt.
M
Myrna_Loy28.08.21 14:04Da passen einige Größenverhältnisse nicht. Küche und Essplatz auf 5,50 m ist zu knapp und das Kinderbad ist auch zu eng, wenn ich die Maße 1,70 Breite?) richtig ablese. Oder ihr habt später ein Zwergenbad, was keiner bequem benutzen kann, wenn die Kinder groß sind. Auch beim Elternbad ist der Abstand zwischen Waschbecken und Wanne eher eng.
RiQu2020 schrieb:
Da die Unternehmen unsere Vorstellungen alle relativ sang- und klanglos aufgenommen haben, gehen wir erstmal davon aus auf dem richtigen Weg zu seinDas halte ich für einen fetten Trugschluss. Der GÜ muss schließlich nicht in dem Haus wohnen sondern es nur bauen.Ansonsten wird der Grundriss schon funktionieren. Was mich stören würde, wäre der beengte Eingang und gleichzeitig die Flächenverschwendung vor der Treppe, was man dann am recht beengten TV-Bereich sieht. Dass die Tür mit dem Sofa kollidiert, ist ja sogar schon dargestellt.
Übrigens ist der Fragebogen nicht vollständig ausgefüllt. 😉
Und dann komm ich noch mit „Wohnen > 4 m“ um die Ecke.
Da passt noch einiges nicht zusammen. Kann den Vorrednern zustimmen.
Essen funktioniert nicht und Platzverschwendung vor der Treppe.
Weshalb gibt’s 2 qm-Angaben? Mit/ohne Treppe? Wo sind die 52 qm?
OG: Abstellraum streichen, damit die Eingangsschleuse in die Kinderzimmer entfällt.
Wanne mit Waschbecken tauschen und in die Ecke schieben.
Da passt noch einiges nicht zusammen. Kann den Vorrednern zustimmen.
Essen funktioniert nicht und Platzverschwendung vor der Treppe.
Weshalb gibt’s 2 qm-Angaben? Mit/ohne Treppe? Wo sind die 52 qm?
OG: Abstellraum streichen, damit die Eingangsschleuse in die Kinderzimmer entfällt.
Wanne mit Waschbecken tauschen und in die Ecke schieben.
H
hampshire28.08.21 14:40Glückwunsch zum Grundstück und den Möglichkeiten darauf! Der Hausentwurf ist klar gegliedert und hat aus meiner Sicht ein paar funktionale Schwächen, die aber keine Neuplanung erfordern:
- Die Ankleide ist mehr ein schrankraum als eine Ankleide, denn mit dem geringen Platz zwischen den Schränken bleibt wenig Platz für das Be- und Entkleiden wenig Platz. Das machen derzeit die meisten Bauherren so und ist sehr in Mode. In einigen Jahren wird man daran das Baujahr erkennen - so wie man heute das Baujahr von Häusern mit besonders engen Küchen gut datieren kann. Ich denke da eher "ganz oder gar nicht". Für "ganz" fehlt der Platz.
- Die Eingangssituation ist eine Herausforderung für das tägliche Leben, denn Jacken, Schuhe und Kinderutensilien sind praktisch im Eingangsbereich untergebracht. In Deinem Entwurf geht das nicht, sodass in der Praxis viel "Zeug" ins Gästezimmer oder den Hauswirtschaftsraum verlagert werden wird. Ihr habt im Wohnzimmer einen recht großen "Tanzbereich". Mit etwas Geschick ließe sich der zugunsten eines geräumigen Einbauschranks Richtung Flur verkleinern und besser nutzen.
- Im Badezimmer bleiben nach Augenmass knapp 60cm zwischen Waschbecken und Badewanne. Probiert das mal aus, ich find's zu wenig.
- Das Kinderbad ist ultrakompakt - und wird auch funktionieren. Überleg etwas mehr Raum vom Flur mit zu nutzen, der ist ggfs. im Kinderbad besser untergebracht.
- Die Abstellkammer zwischen den Kinderzimmern ist eine gute Idee. Es gibt keinen nennenswerten Vorteil diesen kleinen Raum betreten zu können. Eine Nische statt eines Raumes, in die ein zuvor ausgewählter Schrank mit Standardmaßen passt spart Kosten und sieht ggfs. auch noch besser aus. Die Kinderzimmer gewinnen zudem etwas Platz.
- Der "Wohnbereich" wird sehr dunkel sein, wenn nicht gerade Hochsommer ist, werdet ihr auf der Couch auch am Mittag nicht ohne künstliches Licht lesen können (vielleicht jetzt noch aber mit 50 nicht mehr...). Überlegt mal ein Lichtband oberhalb der Fernsehwand . die Fensterfrage beantworte ich unten.
RiQu2020 schrieb:Mach Dir mal keine Gedanken um die Photovoltaik. Eine Ausrichtung, die auch Morgen- und Abendsonne bekommt ist für die meisten Privathaushalte eher von Vorteil gegenüber einer am Mittag Spitzenleistungsorientierten Südanlage. Stelle das Haus hin wie Du magst, die Photovoltaik kommt zurecht. Ich würde den Gartenblick von der Küche aus vergrößern wollen und daher Variante 1 bevorzugen. Alternativ - falls möglich - könnte das Haus meinem Geschmack nach noch weiter ins Grundstück rücken.
- Positionierung/Ausrichtung auf dem Grundstück: hier sind wir uns noch unsicher, was gut oder merkwürdig aussieht und wie die Positionierung der einzelnen Zimmer zur Himmelsrichtung Sinn machen. Wir haben aber auch das Thema Photovoltaik mit entsprechender Süd-Dach-Ausrichtung im Kopf. (Ich habe 2 Ausrichtungs-Ideen angehängt)
RiQu2020 schrieb:Wenn der Wohnbereich eher ein "Medienbereich" ist, dann Fenster weglassen. Wenn für Euch zum "wohnen" auch ein Blick in den Garten gehört, dann braucht es ein großes Fenster.
- Macht ein weiteres Fenster im Wohnzimmer an der Couch Sinn
RiQu2020 schrieb:Die ganze Seite ist schon ausgesprochen dunkel, da auch die TV-Wand im Wohnzimmer nicht einmal ein Lichtband hat. Da würde ich an Lichteinfall nicht noch weiter sparen.
- Kann das Treppenhaus-/Galerie-Fenster auch kleiner sein, reicht der Lichteinfall
Ähnliche Themen