H
hanghaus202317.02.25 12:26Hallo ich bin nun schon etwas weiter. Notarvertrag unterschrieben und bezahlt. Also kann es nun los gehen.
Das Grundstück befindet sich in Schneeberg, Im grünen habe ich das schon mal vorgestellt.
Nach langen experimentieren sind nun 2 Grundrisse durchdacht und skizziert.
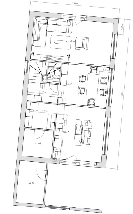
Variante 1 Optimiert. Ohne Dachausbau
Hier das EG

Höhenlinien alle 50 cm. Gefälle ca. 15%. Norden ist oben. Das Haus ohne Garage ist 12*7,5m.
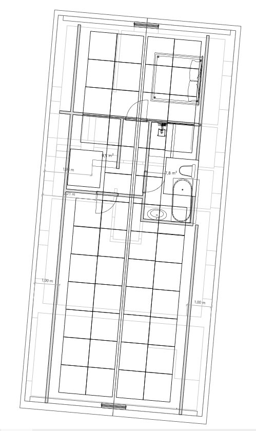
Hier das UG

Ansichten

Variante 2 mit möglichen Dachausbau
EG

Die Treppe in der Garage ist nur ein Test. Das Fenster der Treppe fehlt noch. Die 6 Stufen in der Ecke auch.
UG

DG

Ansichten Variante 2 habe ich noch nicht
die Modellierung vom Gelände angepasst.

Bitte gern Kritik. Oder was an den Grundrissen besser geht.
LG vom Hanghaus
Das Grundstück befindet sich in Schneeberg, Im grünen habe ich das schon mal vorgestellt.
Nach langen experimentieren sind nun 2 Grundrisse durchdacht und skizziert.
Variante 1 Optimiert. Ohne Dachausbau
Hier das EG
Höhenlinien alle 50 cm. Gefälle ca. 15%. Norden ist oben. Das Haus ohne Garage ist 12*7,5m.
Hier das UG
Ansichten
Variante 2 mit möglichen Dachausbau
EG
Die Treppe in der Garage ist nur ein Test. Das Fenster der Treppe fehlt noch. Die 6 Stufen in der Ecke auch.
UG
DG
Ansichten Variante 2 habe ich noch nicht
die Modellierung vom Gelände angepasst.
Bitte gern Kritik. Oder was an den Grundrissen besser geht.
LG vom Hanghaus
Ich bald mir ein, Du wohnest bereits in Eigentum. Was also soll das hier dann werden: ein Alterssitz oder Ferienhaus ?
https://www.instagram.com/11antgmxde/
https://www.linkedin.com/company/bauen-jetzt/
https://www.instagram.com/11antgmxde/
https://www.linkedin.com/company/bauen-jetzt/
H
hanghaus202317.02.25 20:02DIe Kinder sind gross und das aktuelle Haus auch. Die beiden Zimmer sind dann Gästezimmer und Hobbyraum / Büro.
Es gilt das gleiche für Dich wie auch für andere: der Fragebogen ist notwendig und dienlich für konstruktive Kritik.
Grundsätzlich sehe ich ein Haus für vier Personen, quasi ein Familiengrundriss mit Ehebett und zwei Kinderzimmer. Man hat intellektuell so viele Freiheiten, ein Haus zu planen, was ich hier nicht sehe.
Energetisch halt ne kleine Sau mit der innenligenden Garage.
Ich tendiere wohl zu V1, wenn das Sitzfenster gestrichen wird.
Grundsätzlich sehe ich ein Haus für vier Personen, quasi ein Familiengrundriss mit Ehebett und zwei Kinderzimmer. Man hat intellektuell so viele Freiheiten, ein Haus zu planen, was ich hier nicht sehe.
Energetisch halt ne kleine Sau mit der innenligenden Garage.
Ich tendiere wohl zu V1, wenn das Sitzfenster gestrichen wird.
H
hanghaus202318.02.25 15:18ypg schrieb:
Es gilt das gleiche für Dich wie auch für andere: der Fragebogen ist notwendig und dienlich für konstruktive Kritik.
Grundsätzlich sehe ich ein Haus für vier Personen, quasi ein Familiengrundriss mit Ehebett und zwei Kinderzimmer. Man hat intellektuell so viele Freiheiten, ein Haus zu planen, was ich hier nicht sehe.
Energetisch halt ne kleine Sau mit der innenligenden Garage.
Ich tendiere wohl zu V1, wenn das Sitzfenster gestrichen wird.Intelekt ist hier extrem eingeschränkt. Die Zufahrt ist nur wie eingezeichnet möglich. Nun kann man nur paralell zur SM im NW oder eben entlang der Baugrenze bauen. Fuer andere Ideen bin ich sehr dankbar.Da aus Kostengründen ohne Keller gebaut werden soll, Ist die Version mit Wohn UG entstanden. Was auch mMn gut funktioniert sogar ohne Stützmauern.
Die Aussicht Richtung Osten ist ja schon auch ein Argument fuer die Bauweise.
Ja. alternativ soll das Haus auch gut für eine Familie mit 2 Kindern funktionieren (Wiederverkaufswert)
Garage! Die soll eigentlich nicht in die thermische Hülle genau so wie die Terrasse unten drunter.
Sitzfenster ist inzwichen schon ein Panoramfenster geworden.
K
K a t j a18.02.25 15:55@hang
hanghaus2023 schrieb:Wessen?
Intelekt ist hier extrem eingeschränkt.
hanghaus2023 schrieb:Das ist dann eher so eine Art Höhle, deren Nutzung m.E. innerhalb weniger Stunden (Vermutlich schon in der Bauphase) zum Müllplatz mutiert. Sorry, aber da fehlt mir die Vorstellungskraft, wie das zu einem gemütlichen Sitzplatz wird.
...Die soll eigentlich nicht in die thermische Hülle genau so wie die Terrasse unten drunter.
Ähnliche Themen