Grundrissauswahl bei schwierigem Baufeld und Hanglage.

4,70 Stern(e) 9 Votes
Zuletzt aktualisiert 10.01.2026
Sie befinden sich auf der Seite 5 der Diskussion zum Thema: Grundrissauswahl bei schwierigem Baufeld und Hanglage.
>> Zum 1. Beitrag <<

H

hanghaus2023

Und Du willst unbedingt an die Grenze bauen? Wegen des Hanges oder Warum?
Ich verspreche mir davon die unkomliziertere Baugrube da ich dann weiter von der SM des Nachbarn entfernt bin. Wenn ich paralell zur Grenze baue, dann ist die Baugrube nur 3m vom Nachbar entfernt. Da habe ich irgendwie Bauchweh 3 m tief zu gehen. Im Norden muss ich dann nur ca. 1 m tief gehen, da das Urgelaende dort schon viel tiefer ist.
 
H

hanghaus2023

Ich denk schon. Hier mal als Beispiel.



Draufsicht-Grundriss: zwei diagonal geparkte Autos auf grauer Zufahrt neben dem Haus




Grundriss: Parkplatz mit zwei diagonal geparkten Autos neben dem Haus; Innenaufbau sichtbar


Grundriss eines Hauses: zwei geparkte Autos in einem Hofbereich neben Zimmern und Terrasse.



Grundriss: Garage mit zwei geparkten Autos neben Wohnräumen.


Wenn man es bequemer haben will, dann die Mauer etwas drehen oder verschieben. Da mus ich doch eh noch was umplanen wegen der Mülltonnen.
 
H

hanghaus2023

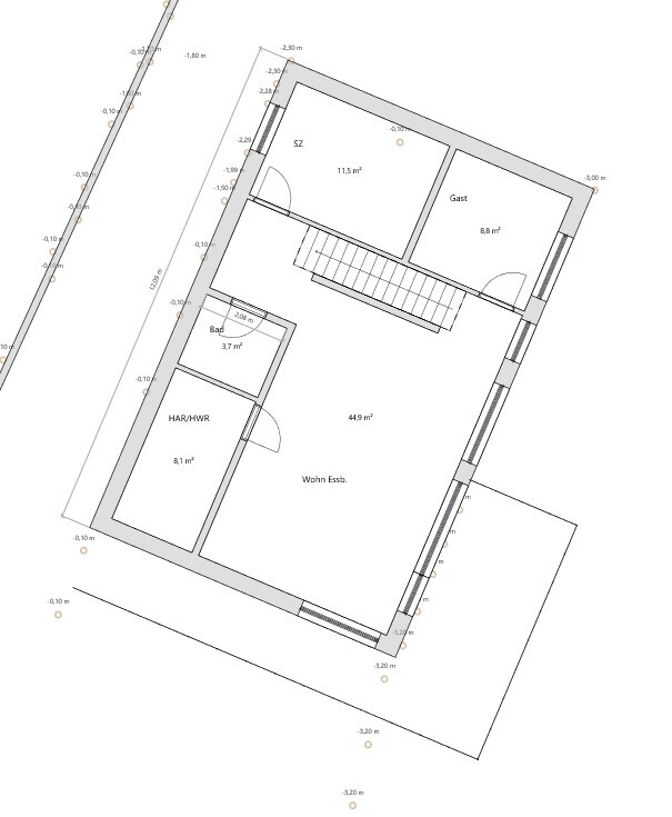
@ypg ich habe mal Deinen Vorschlag mit der gedrehten Treppe versucht umzusetzen. Das EG ist nun eine kleine Wohnung.
Dachgeschoss zum Ausbau vorbereitet. Kniestock 35cm.

UG dann eine vermietbare Einheit? Oder Keller?




Grundriss eines Hauses: Wohnbereich, Küche, Essplatz, Treppe, Schlafzimmer, Bad.


Fenster im DG sind leider im Grundriss nicht sichtbar. In der Ansicht schon.


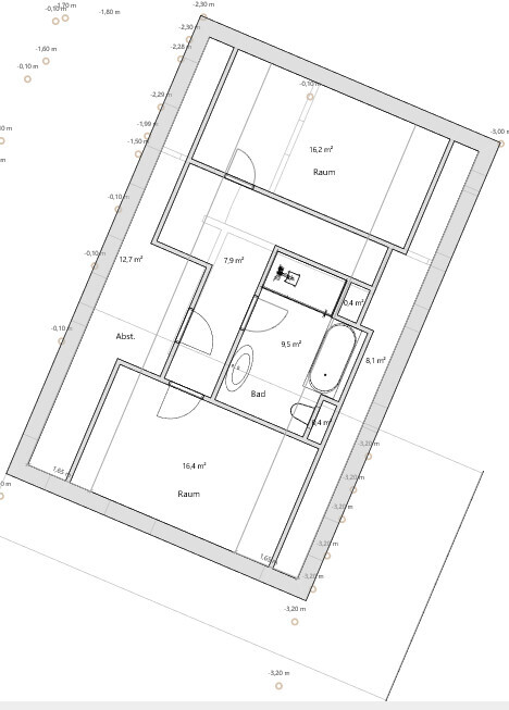
Grundriss eines Apartments: zwei Räume, Bad mit Wanne, Abstellraum, Eingang


UG Eventuell den Eingang im Norden über eine Treppe entlang der SM erreichbar?


Grundriss eines Hauses: Wohn-/Essbereich, SZ, Gast, Bad, HAR/HWR, Treppe.



Modernes zweistöckiges Haus mit dunkler Wellblechfassade, großen Fenstern und Balkon auf Gras.



Modernes Haus mit grauer Metalfassade, Betonfundament, Satteldach mit Dachfenstern, Hanglage.
 
Zuletzt aktualisiert 10.01.2026
Im Forum Grundrissplanung / Grundstücksplanung gibt es 2565 Themen mit insgesamt 88791 Beiträgen


Ähnliche Themen zu Grundrissauswahl bei schwierigem Baufeld und Hanglage.
Nr.ErgebnisBeiträge
1Planung der Auffahrt für großes Hanggrundstück - 25% Steigung - Seite 443
2Auffahrt erstellen mit 25% Steigung? - Seite 323
3Berliener Vorbau zur Sicherung der Baugrube 23
4Terrasse und Auffahrt 55
5Wohin mit der Treppe? Dachausbau Walmdachbungalow - Seite 319
6Treppe im Flur, Grundriss steht eigentlich schon :o( 20
7Was ist bei einer Treppe beachten/Unterschie Wendeluing 22
8Grundrissfrage, Treppe, Fenster, Ausrichtung 12
9Frage zu Grundriss, insbesondere Treppe 13
10Treppe Grundriss Planung, Auftritt und Unterzug - Seite 221
11Grundrissfrage, Garage, Treppe 33
12Technikraum so klein wie möglich - Unter der Treppe? 10
13Treppe ohne Geländer geliefert und ich muss nun nachzahlen? - Seite 319
14Welche Treppe habt ihr genommen 77
15Gerade Treppe - warum? 14
16Baumangel - Treppe nicht in Ordnung - Seite 212
17Treppe - Sind die Treppenmaße 2.00x2.00m in Ordnung? - Seite 668
18Einfamilienhaus ca. 150 qm Grundriss - Treppe wie planen? 65
19Stadtvilla mit gerader Treppe, offene moderne Bauweise, 140m² - Seite 218
20Treppe im Wohnzimmer als Hype - Pro & Contra? - Seite 426

Oben