Grundrissauswahl bei schwierigem Baufeld und Hanglage.

4,70 Stern(e) 9 Votes
Zuletzt aktualisiert 10.01.2026
Sie befinden sich auf der Seite 3 der Diskussion zum Thema: Grundrissauswahl bei schwierigem Baufeld und Hanglage.
>> Zum 1. Beitrag <<

H

hanghaus2023

Hier mal noch die Gestaltungssatzung. Den betreffenden Plan erspare ich Euch. Es handelt sich um den Bereich 4.

Grenzabstand mind 3 m. Ansonsten Baulast.



Amtliches Dokument: Gestaltungssatzung der Stadt Schneeberg, Mai 2005.



Textseite mit Aufstellung der 7 Denkmalbereiche und Straßennamen.




Seitenfoto: Verzeichnis von Straßennamen und Hausnummern; Abschnitt Baukörper §3.



Ausschnitt aus einer Bauordnung mit Abschnitten zu Gebäudetyp, Dachform und Dachneigung




Seite eines Gesetzestextes: §6 Dachdeckung und §7 Dachaufbauten.



Seite einer Verordnung: § 8 Fassaden mit Regeln zu Dachaufbauten und Fenstern.



Seiten eines Gesetzestextes mit Baubestimmungen zu Fenstern, Türen und Fassaden.



Seiten eines Gesetzestextes: Abschnitte zu Antennenanlagen, unbebauten Flächen und Einfriedungen.



Seite mit Rechtsvorschriften zu Garagen, Carports und Werbeanlagen (Abschnitte §13–§14).



Seite aus einer Satzung mit Genehmigungserfordernis, Abweichungen und Inkrafttreten
 
H

hanghaus2023

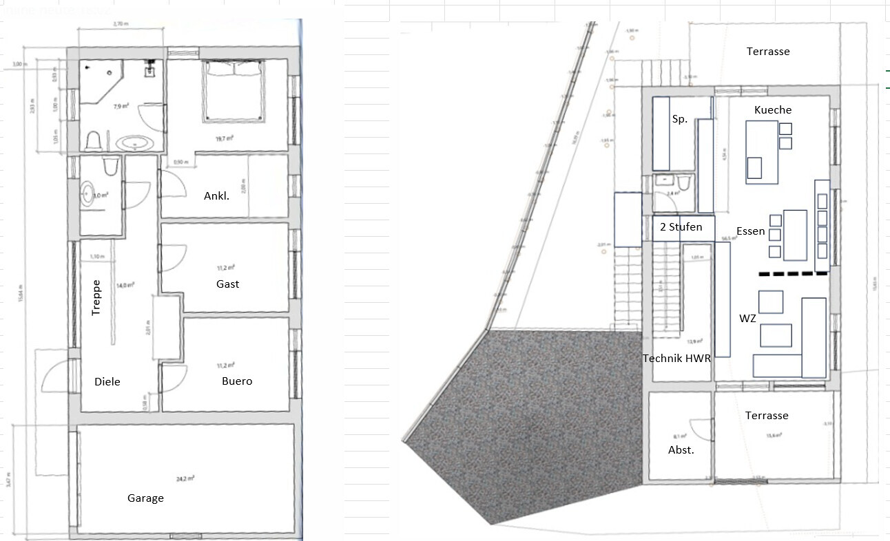
Das ist dann eher so eine Art Höhle, deren Nutzung m.E. innerhalb weniger Stunden (Vermutlich schon in der Bauphase) zum Müllplatz mutiert. Sorry, aber da fehlt mir die Vorstellungskraft, wie das zu einem gemütlichen Sitzplatz wird.
Bei mir herrscht Ordnung. Da wird nix zugemüllt.

Danke fuer den Hinweis. Habe ja die Muellbehaelter vergessen zu planen.
 
K a t j a

K a t j a

in der Diele werden die Schuhe ausgezogen da landet kein Dreck auf der Treppe.
Also ja, wie gesagt. Ich bin da eigentich auch unempfindlich. Aber was ich sehe, ist die Haustür direkt neben der Treppe. Noch näher und Du würdest runter purzeln.
Den langen schmalen Gang zum Technikraum einzuhausen ist imho Quark. Weg damit und Tür nach hinten. Das bringt Freiheit und Licht nach unten, wenn Du den Eingang zum WZ noch ein wenig großzügiger gestaltest. Platz ist ja noch, so wie es aussieht.

Ich glaube, ich würde Technik und Gäste-WC tauschen und dafür die Speis etwas verkleinern. Das ist intimer für die Klobenutzer.
 
H

hanghaus2023

Die Tür vom WZ aus zur Technik oder WC gefällt mir gar nicht. Hatte ich anfangs so, habe es aber dann geändert. Das mit der Technik im Abstellraum war auch ein Gedanke, nur war ich mir nicht sicher wegen der thermischen Hülle. Eventuell mus ich nochmal ganz neu anfangen. Denn die Küche im Süden wie Variante 2 Hätte mir schon auch gefallen.
 
Zuletzt aktualisiert 10.01.2026
Im Forum Grundrissplanung / Grundstücksplanung gibt es 2565 Themen mit insgesamt 88791 Beiträgen


Ähnliche Themen zu Grundrissauswahl bei schwierigem Baufeld und Hanglage.
Nr.ErgebnisBeiträge
1Technikraum so klein wie möglich - Unter der Treppe? 10
2Schrank unter der Treppe oder kleiner Abstellraum 11
3Stadtvilla mit ca. 200qm - ohne Keller. Bitte um Feedback - Seite 250
4Treppe im Flur, Grundriss steht eigentlich schon :o( - Seite 320
5Grundrissfrage, Treppe, Fenster, Ausrichtung 12
6Grundrissfrage, Garage, Treppe 33
7Stadtvilla mit gerader Treppe, offene moderne Bauweise, 140m² - Seite 218
8Raum unter Treppe nicht baubar 17
9Treppe um 10cm versetzt, Optionen? - Seite 339
10 2 Vollgeschosse, Durchgang Garage, Hauswirtschaftsraum unter Treppe 25
11Technikraum in Garage einbauen? Ist dies möglich? - Seite 335
12Technikraum vor Einbau von Estrich Technik streichen oder später? 16
13Technikraum Grenzbebauung , Luftwärmepumpe Ansaugung 49
14Fußbodenheizung auch im Technikraum / Hauswirtschaftsraum 19
15Optimale Größe und Position vom Technikraum 11
16Technikraum neben Schlafzimmer 23
17Schalldämmung von Erdwärmepumpe im Technikraum 17
18Hausanschlussplanung und Technikraum im Keller 11
19Türkontakt Kabel in den Technikraum verlegt 21
20Wohin mit der Treppe? Dachausbau Walmdachbungalow - Seite 319

Oben