Grundriss Umbau Zweifamilienhaus in Einfamilienhaus - Verbesserungsvorschläge

5,00 Stern(e) 3 Votes
Zuletzt aktualisiert 04.12.2025
Sie befinden sich auf der Seite 2 der Diskussion zum Thema: Grundriss Umbau Zweifamilienhaus in Einfamilienhaus - Verbesserungsvorschläge
>> Zum 1. Beitrag <<

Climbee

Climbee

Wenn auf der Seite planunten schon Anschlüsse liegen, ist die Frage, wo genau.

Mein Vorschlag wäre dann: da wo jetzt Küche ist, das alte Kinderzimmer so lassen und als Gast/Büro nutzen; dann im Anschluss Küche und Essen; Wohnen da, wo jetzt in der Neuplanung Gast/Büro ist.
Küche als zwei Zeilen mit freistehender Insel, kein U. Da hat man dann den direkten Zugang zur Terrasse und Wohnen ist schön kuschelig aus der Laufzone raus.

Muß der Wandstummel in der Mitte bleiben oder würde man der Statik auch durch einen Unterzug gerecht werden können? Dann würde ich das so machen.
Auch den gegenüberliegenden Wandstummel von der Außenwand weg machen.
Sollen die Fenster so bleiben? Wie sind die gerade überhaupt?
 
S

stöckli

Danke schon mal für Euer Feedback.
Wie ist denn das Haus ausgerichtet? Bleibt die Terrasse dort?
Ist der Eingang wirklich durch die Garage? Soll das so bleiben?
Ein Lageplan vom Grundstück mit dem Rest (Zufahrt, Garage, Garten) wäre gut.
Zuerst möchte ich noch ein paar Infos nachreichen. Ihr erkennt nun die Lage des Hauses auf dem Grundstück sowie die Ausrichtung und die Lage der Terrasse. Die Terrasse soll definitiv dort bleiben, da sie im Süden ist und sich dort auch der größte Teil des Gartens befindet.
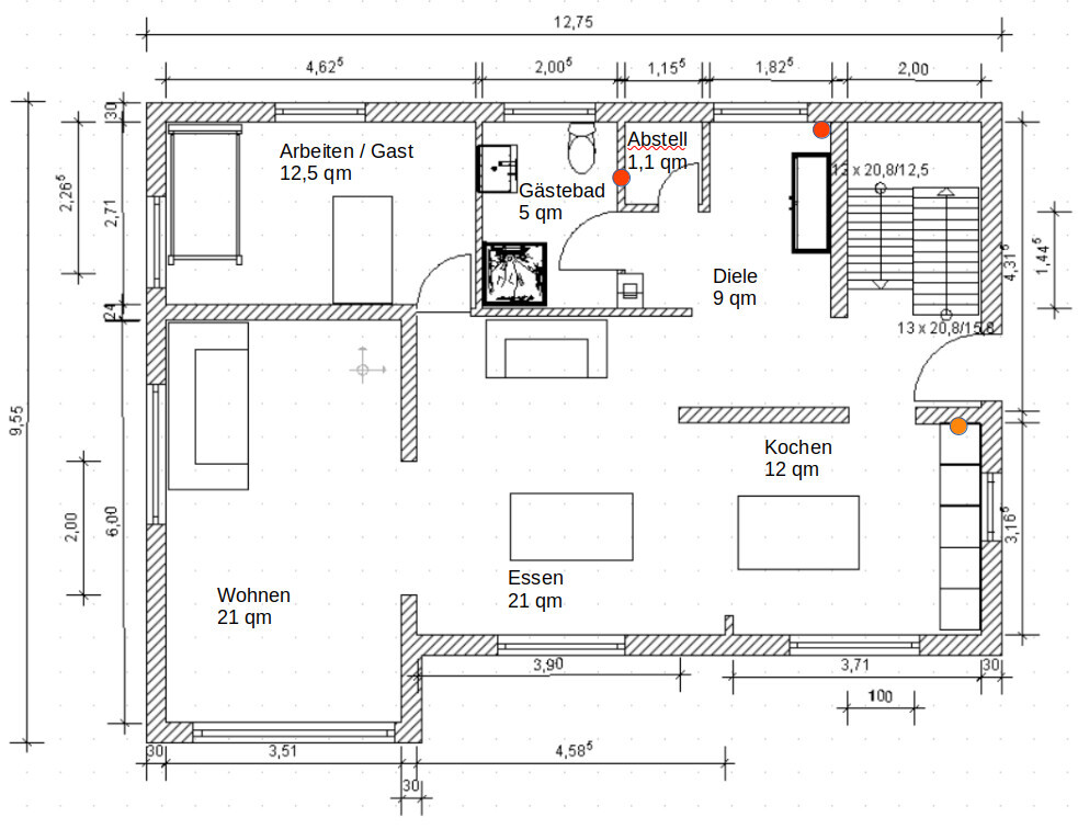
Im angehängten Grundriss (dieses Beitrags) habe ich mit einem orangenen Kreis die Position der vorhandenen Küchenanschlüsse markiert.

Lageplan eines Grundstücks mit Grundstücksgrenze, Gebäudeumriss und Standortmarkierung.


Vogelperspektive eines Einfamilienhauses mit Garten, Terrasse und Zufahrt.


Grundrissplan eines Wohnhauses mit Wohn-, Ess- und Kochbereich sowie Gästebad


Außenansicht eines Eingangsbereichs mit gewölbtem Türbogen, Holztuer und Garagentor


Terrasse mit weißen Kunststoffstühlen, runder Tisch und Liegen vor Holzwand.
 
S

stöckli

Finde die 1. Lösung ganz gut. Die Diele ist nicht zu groß - eher das Gäste-Bad. Für mein Empfinden ist die offene Diele hier ungemütlich. Ich würde den Eingangsbereich + Diele vom Wohnbereich mit Trockenbau abtrennen.

Deine Änderungen finde ich nicht schön. Sie machen aus dem Arbeitszimmer einen Schlauchraum, der den Platz gar nicht braucht. Die Garderobe ist sehr viel wichtiger.
Wir tendieren auch gefühlsmäßig zur 1. Lösung. Eine Möglichkeit für das Gästebad bei Variante 1 wäre noch die Dusche in den linken größeren Badteil zu integrieren und dann anstatt der Dusche noch einen Abstellraum einzuplanen. Die Diele könnte man vom Esszimmer mit Trockenbau und einer Glastür trennen.
Was habt ihr mit dem Treppenhaus geplant. Momentan ist der ja nicht zum Wohnbereich dazu gehörend, wahrscheinlich unbeheizt und mit dem Charme eines Ganges im Ärztehaus, oder? Wenn ich plane OG und EG zu verbinden, würde ich das Treppenhaus mit in die Gestaltung einbeziehen und ggf. offen zur Garderobe machen. Ist da was geplant?
Genau, das Treppenhaus ist unbeheizt, soll aber im Keller einen Heizkörper und überall einen neuen Fußbodenbelag (Holz oder Fliesen) bekommen. Es gab auch Architektenentwürfe das Treppenhaus mehr in die Hausmitte zu verschieben, das wären aber zu viele Kosten und das OG müsste auch komplett umgestaltet werden. Geplant ist evtl. den Durchgang zwischen Treppenhaus und Diele zu verbreitern von 0,9 m auf ca. 1,2 m, damit es zusammen mit der Diele mehr wie ein Raum wirkt.
Mein Vorschlag wäre dann: da wo jetzt Küche ist, das alte Kinderzimmer so lassen und als Gast/Büro nutzen; dann im Anschluss Küche und Essen; Wohnen da, wo jetzt in der Neuplanung Gast/Büro ist.
Küche als zwei Zeilen mit freistehender Insel, kein U. Da hat man dann den direkten Zugang zur Terrasse und Wohnen ist schön kuschelig aus der Laufzone raus.

Muß der Wandstummel in der Mitte bleiben oder würde man der Statik auch durch einen Unterzug gerecht werden können? Dann würde ich das so machen. Auch den gegenüberliegenden Wandstummel von der Außenwand weg machen.

Sollen die Fenster so bleiben? Wie sind die gerade überhaupt?
Der Wandstummel in der Mitte ist schon durch einen früheren Durchbruch entstanden. Dort ist schon ein Träger über der 2,00 m Öffnung. Davor war die Wand zu, wie im Plan OG alt. Würde man den Stummel zusätzlich zum geplanten Durchbruch der großen Wand auch noch entfernen, gäbe es im EG fast keine tragenden Wände mehr. Und in der jetzigen Variante gefällt uns, wenn das Wohnzimmer vom Esszimmer halb abgetrennt ist.

Das Wohnzimmer sollte auf jeden Fall im Süden (z.B. plan unten links) bleiben. Der Raum ist sehr hell mit großen Fenstern und Terrassenzugang.

Meine Frau mag die Küche an der Terrasse haben, deswegen das Arbeitszimmer im Norden (plan oben links). Gäste haben wir nicht oft. 1-2 Nächte im Monat. Das wäre dann ok, wenn die durchs Esszimmer gehen um ins Bad zu kommen. Im OG gäbe es außerdem auch noch eine Möglichkeit für Gäste zum übernachten. (Kinderzimmer OG alt)

Einzelne Fenster könnte man versetzen, wenn es einen großen Vorteil bringt.
Der Herdanschluss ist auch nicht selten so ne Strippe, die nicht mehrfach im Haus rum liegt.
Die Elektrik im gesamten EG wird neu verlegt. Es geht in Richtung Kernsanierung. Auch eine Fußbodenheizung wird eingebaut.
Ist der Eingang wirklich durch die Garage? Soll das so bleiben?
Das sieht man jetzt auf dem Bild im vorherigen Post, dass der Eingang vom Hof in den überdachten Windfang und dann ins Haus geht.
 
Y

ypg

Ich würde die Wand ggü der Treppe bei der Küche auf einen Meter Breite öffnen und die Tür beim WZ schließen.

Grundriss eines Hauses mit Wohnzimmer, Essen, Diele; Pfeile zeigen Änderungen.
 
S

stöckli

Ich würde die Wand ggü der Treppe bei der Küche auf einen Meter Breite öffnen und die Tür beim WZ schließen.
Ich habe euren Vorschlag mal in meinen Plan ergänzt. Ich hoffe, dass es so von euch gemeint war.
Könnt ihr erläutern, warum ihr diesen Durchgang Küche-Treppenhaus gut findet?

Der Durchgang wäre dann fast neben der Haustür und der Bereich zum Schuhe ausziehen würde weiter nach innen in die Diele wandern. Somit wäre auch die Schmutzzone größer.

Als Variante habe ich außerdem mal das Gästebad etwas verkleinert, die Dusche in den linken Teil integriert und dafür noch einen Abstellraum eingeplant (vgl. neuen Plan mit Anfangspost). Sonst wüsste ich nicht was man mit dem Platz machen sollte, außer dass es noch Diele wird.
Was meint ihr dazu?

20 Gäste pro Jahr (maximal) sind dann alle 2-3 Wochen mal jemand, das finde ich nicht so häufig. Da ist mir die Küche im Süden an der Terrasse lieber, weil man sich da täglich aufhält. Aber da stimme ich zu: Geschmackssache.

2D-Grundrissplan eines Hauses mit Wohnen, Essen, Kochen, Arbeiten und Gaestebereich
 
Zuletzt aktualisiert 04.12.2025
Im Forum Grundrissplanung / Grundstücksplanung gibt es 2546 Themen mit insgesamt 88213 Beiträgen


Ähnliche Themen zu Grundriss Umbau Zweifamilienhaus in Einfamilienhaus - Verbesserungsvorschläge
Nr.ErgebnisBeiträge
1Stufen zwischen Küche/Esszimmer und Wohnzimmer 52
2OG Stadtville optimieren. Fenster Bodentief - Seite 13104
3Grundriss erster Entwurf - Meinungen erwünscht - Seite 321
4Beleuchtung in Diele und Küche: Deckeneinbau-Strahler benötigt? 19
5Decken-Spots Diele oder Küche und Bad 10
6Umbau Kinderzimmer - Fenster in zwei Fenster aufteilen? 20
7Bodengleiche Dusche mit Fenster in der Nähe 13
8Dusche direkt am Fenster - kompatibel oder inkompatibel? - Seite 422
9Geschlossene oder offene Küche ? 11
10Grundriss, Ideen zur räumlichen Trennung innerhalb der Küche 23
11Grundriss Halboffene Küche mit großem Essbereich - Detailfragen 12
12Fenster / Türen / Garderobe 13
13Aufmusterung Elektro, Q2, Badfliesen, Drempel, bodentiefe Fenster 23
14Esstisch in einer kleinen Küche 49
15Einteilung Grundriss Allraum Küche Wohnen Essen - Seite 658
16Neubau einer ca. 8x11 Doppelhaushälfte, Einschätzung Grundriss und Fenster - Seite 235
17Einfamilienhaus ~190qm, drei Kinderzimmer, ohne Keller - Feedback wäre mega 19
18Grundrissplanung: Badezimmer Dusche 47
19Haus von 1988 sanieren - Fenster und Haustüre? 15
20Grundriss 3 Kinderzimmer Einfamilienhaus - Potenziale? 43

Oben