Grundriss Stadtvilla - Bitte um Anregungen

4,80 Stern(e) 4 Votes
Zuletzt aktualisiert 24.12.2025
Sie befinden sich auf der Seite 9 der Diskussion zum Thema: Grundriss Stadtvilla - Bitte um Anregungen
>> Zum 1. Beitrag <<

D

DanielaS


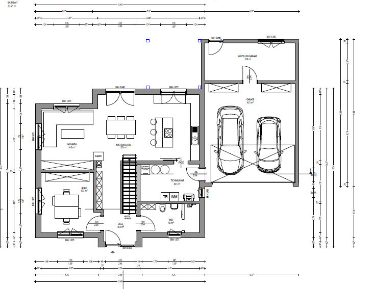
Detaillierter Grundriss eines Hauses mit Garage, Küche, Wohnzimmer und Eingängen


Und hier ist die Küche auf der anderen Seite was mir auch gut gefällt, wobei ich mir mit dem Zugang zum Hauswirtschaftsraum nicht so sicher bin. Habe jetzt gefragt ob man neben die Schiebetür wenigstens noch einen Kühlschrank oder hohe schränke anordnen könnte. Aber ich glaube das wird zu eng mit der Insel.
 
kbt09

kbt09

Hmm ... OG finde ich gut, auch Zugang Schlafzimmer über Ankleide, dann hat man es kuscheliger im Schlafbereich, und wer früher aufsteht, verschwindet durch die Ankleide, nimmt sein Zeugs und ist weg.

EG ... Der Wäschweg von oben ist der weitestmögliche Weg und immer durchs Wohnzimmer in den Kochbereich in den Hauswirtschaftsraum.

Wenn du hochschränke an der Hauswirtschaftsraum-Wand haben willst, dann eben keinen L-Schenkel am Fenster, sondern rechts nur eine Zeile. Dann kann man die Insel entsprechend schieben und hat auch noch den Vorteil, dass man aus der Küche einen Ausgang auf die Terrasse machen kann und nicht immer um den Tisch herumschwenken muss.
 
kbt09

kbt09

@Curly, das kommt natürlich drauf an für wen ;) .. in Version 1 war er weit für das 1 Kind, jetzt ist er eben weiter für die Eltern. Das liegt in der Natur der Sache, sprich der Treppe ;)
 
kbt09

kbt09

Das stimmt allerdings, ich halte die Badaufteilung eh für noch nicht ideal. Am waschtisch kaum natürliches Licht, die Dusche für die Raumverhältnisse eigentlich zu dunkel .. aber, so ein Riesenbad kann man ja anders aufteilen ;)
 
Zuletzt aktualisiert 24.12.2025
Im Forum Grundrissplanung / Grundstücksplanung gibt es 2555 Themen mit insgesamt 88581 Beiträgen


Ähnliche Themen zu Grundriss Stadtvilla - Bitte um Anregungen
Nr.ErgebnisBeiträge
1Speisekammer vs. größere Küche vs. Hauswirtschaftsraum - Seite 213
2Grundriss Schlafzimmer, Ankleide und Bad en Suite - Seite 536
3Geschlossene Küche planen mit Durchgang zum Hauswirtschaftsraum - Seite 318
4Pfiffige Schlafzimmer Idee mit Ankleide gesucht 19
5Grundriss Schlafzimmer mit Bad und Ankleide 62
6Wohnen/Essen/Küche: Wie wohnt ihr oder werdet ihr wohnen? - Seite 852
7Ankleide/Schlafzimmer Problem - Grundrissdiskussion 25
8Grundriss Bungalow 150qm geschlossene Küche, überdachte Terrasse - Seite 240
9Grundriss Einfamilienhaus ohne Keller/Schlafzimmer und Bad im EG - Seite 427
10Wie findet ihr diesen Grundriss? - Seite 211
11 2 Vollgeschosse, Durchgang Garage, Hauswirtschaftsraum unter Treppe 25
12Extra-Bad vom Schlafzimmer oder doch Abstellraum? - Seite 329
13Küche: geschlossen oder offen? Welche Raumaufteilung? - Seite 1486
14Grobe Schnitzer im Grundriss? Küche zu klein? - Seite 439
15Müllentsorgung in der Küche / Wanddurchbruch - Seite 542
16Zugang von der Garage in den Hauswirtschaftsraum - Seite 549
17Ikea Pax Hauswirtschaftsraum/Waschküche System? - Was habt ihr? 64
18Erstentwurf Nolte Küche - Meinungen und Verbesserungsvorschläge - Seite 430
19Grundriss 170m2 - Hauswirtschaftsraum zu klein? Verbesserungsvorschläge? - Seite 342
20Minimale Grundfläche - Hauswirtschaftsraum und AZ im EG - Ohne Keller 19

Oben