Grundriss Stadtvilla - Bitte um Anregungen

4,80 Stern(e) 4 Votes
Zuletzt aktualisiert 23.12.2025
Sie befinden sich auf der Seite 8 der Diskussion zum Thema: Grundriss Stadtvilla - Bitte um Anregungen
>> Zum 1. Beitrag <<

E

Eldea

Was mir auch aufgefallen ist wenn ich so durch unser Dorf fahre ist, das wirklich alle Häuser irgendwie symmetrisch sind. Nirgendwo sehe ich mal ausgefallene asymmetrische Häuser. Früher waren es diese typischen Dorf Häuser mit 2-3 Stockwerken, dann kamen die Satreldächer und nun die Stadtvillen, die z.B. in Italien schon immer modern waren. Ich glaube die Menschen tendieren einfach dazu auf die sichere Seite zu gehen.
Die Stadtvilla gibt es hier in Deutschland schon lange. Bei uns in der Straße stehen einige und sie sind 70 Jahre alt. Das einzige ist, dass hier das Zeltdach etwas steiler sind.

Wann ist es denn so richtig symmetrisch? Jede Seite sieht gleich aus?
 
kaho674

kaho674

Achsowas. Ja sorry, das kenn ich natürlich auch. Will hier nicht den Thread zumüllen, aber was ist so schlimm daran? Ich würd natürlich rosa nehmen. ;)
 
D

DanielaS


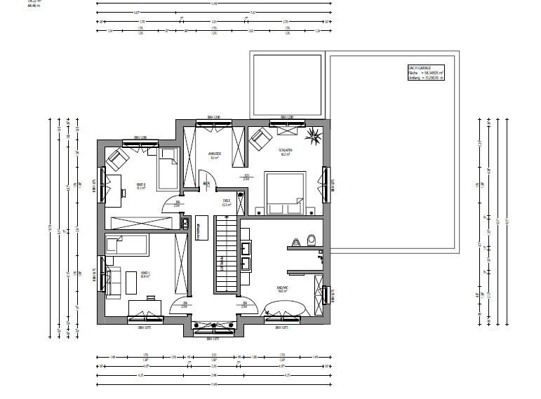
2D-Hausgrundriss mit Schlafzimmer, Bad, Küche und Treppen im Grundriss


Hier hat der Architekt jetzt die Zimmeranordnung verändert. Ausserdem das Bad größer gemacht (warum auch immer) und die Zimmer zum Eltern-Schlafzimmer entfernt. Habe ihm gesagt das ich die Tür vom Flur zur Ankleide nicht möchte dafür aber wieder eine Tür ins Schlafzimmer. Was meint ihr?
 
Zuletzt aktualisiert 23.12.2025
Im Forum Grundrissplanung / Grundstücksplanung gibt es 2554 Themen mit insgesamt 88560 Beiträgen


Ähnliche Themen zu Grundriss Stadtvilla - Bitte um Anregungen
Nr.ErgebnisBeiträge
1Stadtvilla oder klassisches Satteldach-Haus? Vorteile? Kosten? - Seite 451
2Grundriss Stadtvilla - Eure Meinung dazu? 21
3Jetzt der finale Grundriss - 189qm ohne Keller; Stadtvilla - Seite 424
4Grundrissplanung für Stadtvilla mit 168 qm - Wer hat Ideen? 47
5Grundrissplanung Stadtvilla 130 qm 41
6Neubau 220 qm Stadtvilla Walmdach, 2 Vollgeschosse - Seite 953
7Grundriss Stadtvilla ca. 140qm - Tipps, Anregungen? 41
8Grundriss Stadtvilla 160qm - Bitte um Tipps! 284
9Grundriss Stadtvilla - Kinderzimmern mit Bodentiefen Fenstern - Seite 225
10Grundrissentwurf Stadtvilla mit Keller Verbesserungsvorschlag? 77
11Grundrissoptimierung Stadtvilla + Aufschüttüberlegung - Seite 521277
12Stadtvilla Einfamilienhaus Grundriss nach 6 Monaten Planungsphase... 17
13Grundrissplanung Stadtvilla 190qm 12
14Neubau Einfamilienhaus ca.220qm, 2. Entwurf Stadtvilla 59
15Grundriss Stadtvilla, Einfamilienhaus Neubau Meinungen 72
16Grundriss-Planung Stadtvilla - Katalog-Grundriss Inspiration - Seite 578
17Entwurf Grundriss Neubau Stadtvilla >160 m² 14
18Grundriss Einfamilienhaus Stadtvilla ca. 200m² - Bayern 14
19Grundriss Stadtvilla - Danke für euer Feedback - Seite 315
20Grundrissplanung Stadtvilla 145 153

Oben