Grundriss Split-Level Einfamilienhaus - Architektenentwurf

4,70 Stern(e) 6 Votes
Zuletzt aktualisiert 15.12.2025
Sie befinden sich auf der Seite 3 der Diskussion zum Thema: Grundriss Split-Level Einfamilienhaus - Architektenentwurf
>> Zum 1. Beitrag <<

D

dbertig

Wenn nach oben dann richtig. Dann ist Wohnen und Essen auf einem Niveau. Oder max. 3 Stufen (besser nur eine) nach unten in voller Breite des Durchbruchs. Decke dann aber auch gleich mit der des WZ.

Anhang anzeigen 93273
Das schaut auch nicht schlecht aus, allerdings die ebenerdige Küche&EZ hat uns schon sehr gut gefallen. Man könnte vielleicht auch die Hälfte des Wohnbereichs - so wie du ihn gezeichnet hast - nach unten setzen. Dann verlieren wir zwar einen Keller, hätte aber eine größere Fläche für Küche & Esszimmer und dann ein kleineres Wohnzimmer in der "Galerie"?
 
D

dbertig

Alternativ gibt es noch die Sparversion.
Da finde ich die erste Version besser. Man könnte vielleicht auch die Hälfte des Wohnbereichs - so wie du ihn gezeichnet hast - nach unten setzen. Dann verlieren wir zwar einen Keller, hätte aber eine größere Fläche für Küche & Esszimmer und dann ein kleineres Wohnzimmer in der "Galerie"?
 
D

dbertig

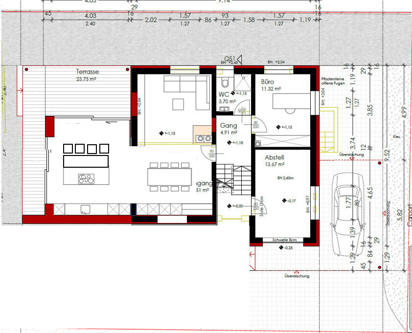
Wie gefällt euch die Glasfront in Küche und Esszimmer sowie die Terrasse (Größe)? Sind uns hier noch nicht ganz sicher...
 
D

dbertig

Danke @hanghaus2023 für die tollen Grundrisse, gefallen uns sehr gut! Wir werden nun aber den Grundriss so lassen und mit den Stufen leben, dafür aber den Zubau tatsächlich etwas höhrer als 2,40 planen. Das war ein toller Input von euch! Ich glaube, die Stufen haben auch etwas besonderes.

@ypg Die Terrasse wäre tatsächlich besser breiter, ich denke wir werden den Terrassenboden breiter machen auf 3,50m. Die Überdachung aber so lassen, da wir sonst Abstandsnachsicht bräuchten. Hoffe das schaut halbwegs ok aus optisch.

Fällt euch sonst noch was auf beim Grundriss, was euch nicht so gut gefällt?
Vielleicht hätte noch jemand einen Tipp bezüglich Garderobe. Mir gefällt so eine offene Garderobe gar nicht wirklich so gut, sehe hier schon, dass man die "Unordnung" oder Schuhgeruch bis in die Küche riecht. Der Architekt meinte, er würde hier keine Tür hingeben, da der Weg von der Haustür Richtung Küche führen sollte. Durch eine Türe zwischen Garderobe und Küche hätte der Besucher das Gefühl, der "Weg" geht die Treppe hoch... was denkt ihr?
 
Zuletzt aktualisiert 15.12.2025
Im Forum Grundrissplanung / Grundstücksplanung gibt es 2551 Themen mit insgesamt 88465 Beiträgen


Ähnliche Themen zu Grundriss Split-Level Einfamilienhaus - Architektenentwurf
Nr.ErgebnisBeiträge
1Stufen zwischen Küche/Esszimmer und Wohnzimmer 57
2Grundriss für 150qm Einfamilienhaus mit Wohnzimmer nach Norden 21
3Erste Grundriss-Planung Einfamilienhaus 190m2 - Seite 664
4Grundriss Einfamilienhaus mit Doppelgarage und Terrasse - Seite 219
5Grundriss 165 m² mit Keller eure Meinung - Seite 552
6Grundriss Einfamilienhaus ca. 200qm mit Keller - Hinterbebauung 20
7Grundriss Einfamilienhaus 2 Vollgeschosse +Keller ca. 130m² Wohnfläche 30
8Grundriss: Offenes Wohnzimmer inkl. Kamin - Feedback 11
9Besonderer Grundriss oder langweilig mit Keller? - Seite 220
10Grundriss Einfamilienhaus in Hanglage mit Keller - Seite 651
11Ideen Meinungen zu Bungalow 131 Grundriss gefragt - Seite 219
12Grundrissentwurf Einfamilienhaus mit Keller und Doppelgarage auf 540qm - Seite 326
13Neubau Einfamilienhaus ca. 190m², Doppelgarage ohne Keller, Erstentwurf 21
14Grundrissplanung Stadtvilla Doppelgarage | Keller | KFW40+ | 205m² - Seite 326
15Grundriss 9x11.30m, 4 Personen, 2 Büros 27
16Einfamilienhaus (2Etagen+Wohn-Keller+ausgebautes Dach) etwa 200qm -Änderungen - Seite 6162
17Grundriss Halboffene Küche mit großem Essbereich - Detailfragen - Seite 212
18Einfamilienhaus ohne Keller - Diskussion Grundriss 19
19Grundriss für Einfamilienhaus 210 m² + Keller - Eure Meinungen 16
20Kritik an Einfamilienhaus-Grundriss erwünscht (~175m2/0,9m Kniestock/Keller) 16

Oben