D
dbertig
Vielen Dank für eure Tipps.
Bezüglich der Absturzsicherung gibt es bestimmt gute und schöne Möglichkeiten. Ich hatte ja auch schon gedacht, dass man auf eigene Gefahr keine Brüstung macht. Leider sind die Kinder dafür noch etwas klein...
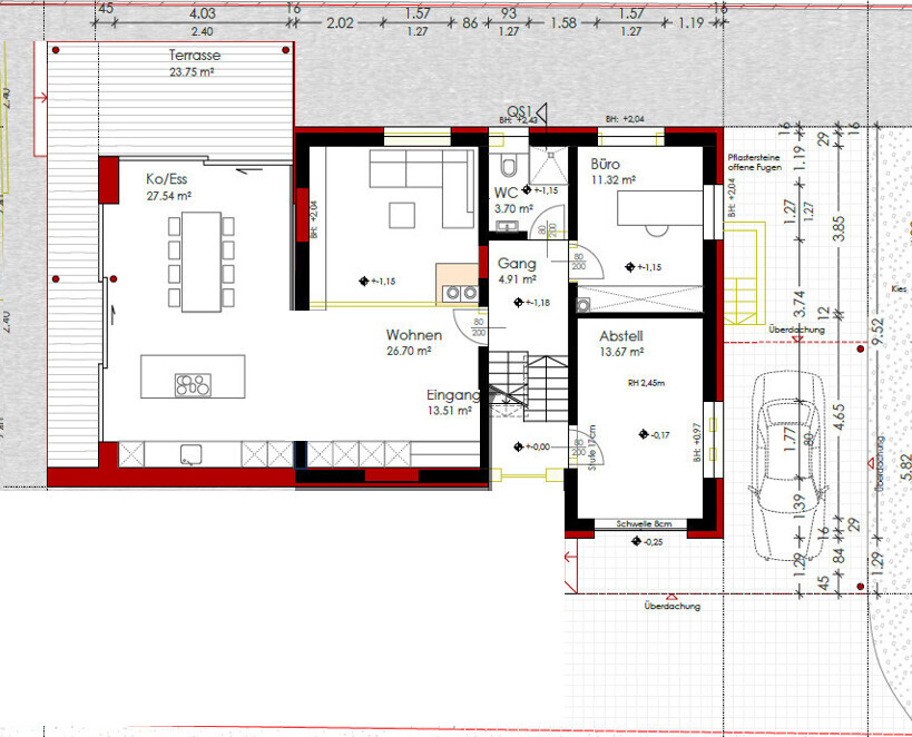
Wie gefällt euch sonst das Projekt, habt ihr noch Tipps oder Ideen?
Dankeschön
Bezüglich der Absturzsicherung gibt es bestimmt gute und schöne Möglichkeiten. Ich hatte ja auch schon gedacht, dass man auf eigene Gefahr keine Brüstung macht. Leider sind die Kinder dafür noch etwas klein...
Wie gefällt euch sonst das Projekt, habt ihr noch Tipps oder Ideen?
Dankeschön