Hausbau - Ratgeber
Bauherrenhilfe
- Bauherrenhilfe vor Vertragsabschluss
-- Warum einen unabhängigen Baubetreuer?
-- Vertragsgrundlagen
-- Bausumme
-- Zahlungsplan zur Kostenkontrolle
-- Pflichten des Bauherren vor Vertragsabschluss
-- Unterlagen beim Hausbau vor Vertragsabschluss
- Bauherrenhilfe nach Vertragsabschluss
-- Bauantrag bei Behörden
-- Bau-Genehmigungsverfahren bei Baubehörden
-- Bauspezifische Versicherungen
-- Bauzeitenplan
-- Baubeginn - die Letzten Pflichten der Bauherrschaft
- Bauherrenhilfe während der Bauzeit
- Gewährleistungsansprüche
- Bauabnahme
Baufinanzierung
- Baufinanzierung - Allgemeine Fragen
- Kreditarten
- Kredit-Konditionen
- Bausparen
- Staatliche Förderungen
- Verkehrswert
- Haushaltsrechnung und Bonität
Hausbau Planung
- Haustypen
- Hausbau Vorbereitungsarbeiten
- Das Baugrundstück
- Baugrund beim Hausbau
- Baurecht
- Gebäudeschutz
- Erdarbeiten und Wasserhaltung
- Stützmauern
- Einfriedung
- Untergeschoss
- Kanalisation
- Tragende Elemente
- Nichttragende Innenwände
- Fundation / Fundament
- Deckenkonstruktionen
- Dächer
- Kaminanlagen
- Treppen Rampen Leitern
- Dachbeläge und Spengler
- Fenster
- Sonnen und Wetterschutz
- Aussenputze
- Einbauten, Küchen, Türen
- Bodenbeläge und Unterlagsböden
- Parkett
- Gips, Wand, Decke
Haustechnik und Energie
- Heiztechnik
- Lüftung und Klimatechnik
- Sanitärtechnik
- Elektrotechnik
- Erneuerbare Energie
Whirlpools / Jacuzzi
Hausbau Magazin
- Baufinanzierung trotz Krise?
- Das Blockhaus
- Moderne Dämmstoffe im Vergleich
- Erker Vor- und Nachteile
- Glasflächen beim Hausbau
- Günstig ein Haus Bauen
- Mediterraner Hausbaustil
- Mehrgenerationenhaus
- Moderne Architektur
- Gartengestaltung leicht gemacht
- Traditioneller Ziegelbau
- Villa als höchster Traum
- Im Eigenheim Ruhestand geniessen
- Altbau sanieren
- Kauf einer Holzgarage
- Immobilienmakler
- Arbeitshandschuhe für den Winter
- Zuhause verschönern
- Outdoor-Plissees
- Schlafzimmer planen
- Terrassenüberdachung
- Wohngebäudeversicherung
- Zaunarten und Eigenschaften
- Hauseingang gestalten
- Der perfekte Grundriss
- Sparsamer heizen im Altbau
- Einfamilienhaus smart finanzieren
- Planung einer PV-Anlage
- Neues Haus
- Immobilienfinanzierung
- Installation einer Photovoltaikanlage
- Asbest erkennen und entfernen
- Gartenpflege im Frühling – worauf achten
- Sauna im Fokus - Wellness zuhause
- Erfolgreich vermieten
- Die perfekte Winterbekleidung
- Das Niedrigenergiehaus
- Der April und seine Stürme
- Architektonische Vielfalt
- Ökologisch und nachhaltig bauen
- Das perfekte Schlafzimmer
- Nachhaltige Energieversorgung
- Zukunftsorientiert bauen
- Nachhaltigkeit beim Hausbau
- Tiny Houses
- Wärmepumpen als nachhaltige Heizvariante
- Maßgeschneiderten Kleiderschrank
- Der richtige Baukredit
- Ratgeber für erfolgreichen Hausbau
- Haus als Altersvorsorge
Do-it-yourself Anleitungen
- Verlegeanleitung für Bodenbeläge und Parkett
- Bodenbeläge und Parkett reinigen und pflegen
- Malerarbeiten am Haus
- Garten Tipps
- Umzug und Reinigung

ᐅ Grundriss Reiheneckhaus in Planung - Änderungsvorschläge?

Erstellt am: 20.08.22 21:05
B
Bauherrin123
B
Bauherrin123
20.08.22 21:05
Hallo liebe Forummitglieder,

wir bauen ein Reiheneckhaus 7 mal 10 m ohne Keller. Es werden 2 Volle Geschosse und ein Dachboden darauf. Es geht jetzt darum, welches Dach wir bekommen. Mir wurde ein Haus gezeigt mit 38Grad Satteldach ohne Kniestock, fand ich von den Raumgefühl her sehr schön. Jetzt haben wir mitgeteilt bekommen, dass bei uns nur 35 Grad Satteldach geht, dafür bekommen wir 30cm Knistock. Das was mir nicht bewusst war, dass unser Spitzboden nur 63 cm maximal Höhe hat. Also der Speicher(Spitzboden). Jetzt habe ich keinen Keller und keinen nennenswerten Speicher und ärgere mich etwas darüber, da der Bauantrag jetzt vor mir liegt und ja ich hatte es erst zugestimmt, dass es so okay ist, aber ich hätte doch liber 1m Kniestock. Bebauunsplan gibt aber maximal nur 30 cm vor. Bin so unschlüssig was ich will,.. möchte auch nicht unnötig Geld ausgeben, wenn es nicht so eine große Rolle spielt, da wir ein sehr großen Grundstück haben und Stauraum in Garage und Scheune und Gartenhaus bauen können,.....
Was würdet ihr machen?
A. 38 Grad Satteldach oder B. 35 Grad. Satteldach und 30 cm Knistock oder C. 35 Grad und 1m Kniestock, bei Stadt anfragen....

Wir müssten beim Bauamt die Anfrage stellen, ob man Kniestock auf 1m ändern kann, dann wäre es etwas mehr Aufwand, Bürokratie, das ganze verschiebt sich weiter,.. ich weis auch nicht was es kosten würde und ob es überhaupt geht, aber zerbricht mir den Kopf, da ich im Internet nur Leute mit Häusern lese, die Kniestock gebaut haben auf dem Dachboden. Mir wären die 3000-5000 Euro, wenn es soviele sind, es aber Wert, wenn schönere Räume entstehen und ich einen Speicher bekomme, das höher ist.


Dasnn das zweite Problem. Das Grundstück ist viel tiefer als das Straßenniveau. Wir zahlen 10 000Euro extra, um das Grundstück auf Straßenniveau mit Schotter auffüllen zu könen. Nun wird das Haus so knapp über straßenniveu gebaut, sodass man eine Stufe zum Hauseingang hat. Es werden insgesammt 3 Reihenhäuser gebaut, wir haben das Eckhaus. In unserer Reihe stehen bereits 2 fertige Reihenhäuser anderer Bauträger, dem unsere Häuser angrenzen. Diese sind allerdings 1m über dem Straßenniveau und 3 oder 4 Stufen höher und insgesamt sind sie dann wahrscheinlich höher. Das finde ich erstens optisch bllöd, aber auch vom Gefühl her, will ich das Haus höher haben.
Was sagt ihr dazu?

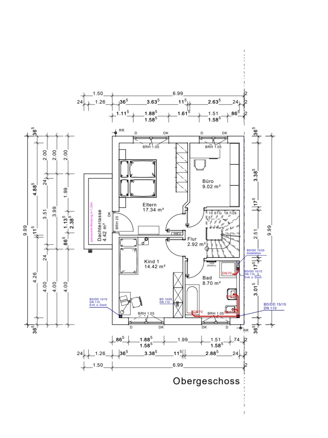
Ich lade auch mal meinen Grundriss, der meiner Meinung nach fertig ist. Ich versteh nicht, wie hoch die Decken sind, kann das jemand ablesen? Innen im Raum, wie hoch diese sind und allgemein, fällt euch was am Grundriss auf?
Mein Bauantrag liegt hier fertig, allerdings will ich es doch ändern lassen, es passt mir nicht, mit den Plänen, wird bestimmt Ärger geben bei der Firma, wenn die das für uns ändern müssen, aber ich will mich doch nochmals entscheiden können und brauche hier einfach einen Austausch.

Freue mich auf Unterstützung!

LG

Zweigeschossiges Haus mit Dachgeschoss; Schnitte A-A und Front-, Garten- und Rückansicht


Grundriss eines Hauses: Erdgeschoss mit Wohnen/Essen, Küche, Diele, WC, Terrasse.


Grundriss Obergeschoss: Eltern, Kind 1, Büro, Flur, Bad, Dachterrasse, Treppe.


Dachgeschoss-Grundriss mit Studio, Bad und HWR, Treppe, Türen und Maßangaben


Schematischer Gebäudeschnitt eines Hauses mit Treppen, Räumen (Büro, Flur, Bad).
S
SoL
20.08.22 21:51
Grundriss funktioniert grundsätzlich.
Du brauchst aber bei 6m Abstand von Couch zu TV nen sehr großen Fernseher...
B
Bauherrin123
20.08.22 22:15
SoL schrieb:

Grundriss funktioniert grundsätzlich.
Du brauchst aber bei 6m Abstand von Couch zu TV nen sehr großen Fernseher...


das ist süss, dass es dir auffällt. Tatsäcjlich ist das so, das der Fernseher da hinkommt, wo die Couch steht, und die Couch mittig im Zimmer, ein eil vom Fenster. Also das ist tatsächlich einfach so gemalt,... der Rest müsste aber stimmig sein. Danke trotzdem für deine Antwort, fand es echt süß, dein Hinweis
Y
ypg
20.08.22 22:24
Bauherrin123 schrieb:

das ist süss, dass es dir auffällt.
Drollig! Das sind ua Parameter, woran man die Funktionalität eines Entwurfes überprüft.

Zu Deiner Frage:
Wofür soll denn das Studio bzw der ganze Dachausbau dienen?
B
Bauherrin123
20.08.22 22:30
ypg schrieb:

Drollig! Das sind ua Parameter, woran man die Funktionalität eines Entwurfes überprüft.

Zu Deiner Frage:
Wofür soll denn das Studio bzw der ganze Dachausbau dienen?

Was heißt drollig, wir haben uns umentschieden und der Bauantrag kam aber schon heute. Wir haben uns ein Haus der Firma das genauso wie unseres ist, sich angeschaut und uns umentschieden. Ich habe nachgemessen, es passt rein. Es ist ja nur ein TV und eine Couch die wir umstellen. Oben im Zimmer stehen die Möbel allerdings so, ich sie möchte. Das Elternschlafzimmer, da hat kein Bett und Schrank reingepasst, deshalb haben wir es breiter gemacht, dafür ist die Wand im Büro etwas im Sichtfeld, die alternative wäre eine schmalere Tür, 60 cm, ds wollten wir nicht, was sagt ihr dazu?

Zu deiner Frage, was es im Studio ergeben soll.Momentan sind wir zu 2. Wir wollen aber 2 bis 3 Kinder, eins ist unterwegs. Studio wird später eventuell das 2. Kinderzimmer, wo falls wir 3 Kinder haben, 2 zusammen rein können. Das Bad auf dem Dachboden, da lassen wir uns auch nur die Anschlüsse legen, aber kein Bad bauen, das wird mein Büro. Wir brauchen 2 Büros,....
K
K a t j a
20.08.22 23:19
Sofa und Fernseher tauschen kann ich nicht nachvollziehen. Mal es mal ein. Das kollidiert mit dem Tisch, oder?
Zum Grundriss:
Die gesamte Technik ist oben im Hauswirtschaftsraum, die Waschmaschine steht bei der 1m Grenze - da seh ich schwarz. Wo ist die Heizung und was ist das für eine ... und überhaupt, wo ist der ausgefüllte Fragebogen?
Bürotür schlägt in den Laufweg der Schlafzimmer-Tür. Das ist schon bald Körperverletzung. Das Schlafzimmer muss hier noch ein Stück Wand opfern, nur so viel, dass die Tür rein passt und man sie drehen kann. Küchentür schlägt auch in die falsche Richtung.

Wieso denkst Du, dass Du 1m Kniestock durch kriegst? Hat das überhaupt eine Chance auf Erfolg? Vielleicht könnte Dein Architekt mit dem Höhenunterschied argumentieren. Statt unten aufzuschütten, baust Du halt oben höher, damit die "Optik" stimmig ist. Versuchen würde ich das, aber erstmal mündlich vortesten, ob die mich beim Amt nicht auslachen.
kniestocksatteldachgrundrisscouchschlafzimmerdachbodenspeicherbauantraggrundstückstraßenniveau