Grundriss-Optimierung / Aufteilung Erdgeschoss in Doppelhaushälfte

4,70 Stern(e) 10 Votes
Zuletzt aktualisiert 11.10.2025
Sie befinden sich auf der Seite 5 der Diskussion zum Thema: Grundriss-Optimierung / Aufteilung Erdgeschoss in Doppelhaushälfte
>> Zum 1. Beitrag <<

D

duke1085

Okay, dann müssen wir bei der ersten Variante bleiben. Siehst du auch eine Möglichkeit das Ganze als Inselküche zu gestalten?
 
D

duke1085

Erstmal vielen Dank für die Entwürfe und deine Hilfsbereitschaft.

Den Schnitt finde ich noch deutlich offener und lockerer.
Auch die oberen Etagen super.

Allerdings weiss ich nicht ob ein 3 Meter Sofa in L-Form so noch optisch hinpassen würde. Haben wir so denn viel Platzugewinn zur Bauträgerlösung? Wenn ich mich nicht verrechnet habe circa +3 Quadratmeter. Dafür fehlt der Stauraum im Technikraum für z.B. Getränkekästen. Was meinst du?
 
kaho674

kaho674

Die Prioritäten musst Du selber setzen. Tiefe hab ich Dir extra dran geschrieben + 40cm. Möbel sind realistisch mit Kochinsel 80cm / 2m.
Das 3m Sofa passt aber einen Getränkeraum gibt es hier nicht, da hast Du recht. Dafür einen 3m Schrank im Flur mit bis zu 70cm Tiefe. Da könnte man auch Getränkekästen und nen Staubsauger rein stapeln. Die Zimmer oben finde ich alle wesentlich geschmeidiger - gerade die Kidis mit je 2 Fenstern sind ein Gewinn.

Letztendlich ist es ein Abwägen, wo Ihr für Euch mehr Vorteile seht. Am besten mal den ein oder anderen Raum nachbilden und die Wunschmöbel rein stellen. Ich geh ja auch immer 3D durch, das macht viel aus. Dieses Raumgefühl ist sicher ein freieres als wenn da im Raum noch ne Wand wäre:


Helle Küche mit Holzmöbeln, Insel, Esstisch und Stühlen; Fenster zum Garten.


Insgesamt bleibt es ein Haus auf Minigrundfläche. Ob man da alle Wünsche umsetzen kann, ist fraglich.
Ich überleg die ganze Zeit, ob ich die Treppe noch gedreht bekomme. Dann hätte man den Platz darunter als kleinen Stauraum und die Schleppgaube wäre vermutlich hinfällig. Eventuell muss ich doch noch mal mit dem Eingang um die Ecke spielen. Aber momentan ist erst mal die Luft raus.
 
kaho674

kaho674

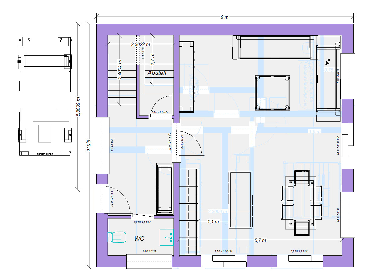
Jetzt musste ich doch noch mal rumprobieren:


Grundriss eines Wohngebäudes: Abstellraum, WC, Treppen, Esstisch, Sitzgruppe, Möbel.

Andere Geschosse nahezu gleich. Die Treppe ist allerdings gedreht - damit fällt auch das Schleppdach weg.
 
Zuletzt aktualisiert 11.10.2025
Im Forum Grundrissplanung / Grundstücksplanung gibt es 2513 Themen mit insgesamt 87241 Beiträgen


Ähnliche Themen zu Grundriss-Optimierung / Aufteilung Erdgeschoss in Doppelhaushälfte
Nr.ErgebnisBeiträge
1Häuser ohne Keller: Stauraum Hobby-Keller? 49
2Eingang Grundriss welche Treppenvariante - Seite 231
3Schrank unter der Treppe oder kleiner Abstellraum 11
4Grundriss Bungalow mit 140 qm - passt der Stauraum? - Seite 14175
5Grundrissbewertung Einfamilienhaus 18
6Wohin mit der Treppe? Dachausbau Walmdachbungalow - Seite 219
7Treppe im Flur, Grundriss steht eigentlich schon :o( 20
8Was ist bei einer Treppe beachten/Unterschie Wendeluing 22
9Grundrissfrage, Treppe, Fenster, Ausrichtung 12
10 2 Vollgeschosse, Durchgang Garage, Hauswirtschaftsraum unter Treppe 25
11Frage zu Grundriss, insbesondere Treppe 13
12"notwendige Treppe" zum Dachgeschoss - Seite 423
13Treppe Grundriss Planung, Auftritt und Unterzug 21
14Grundrissfrage, Garage, Treppe 33
15Technikraum so klein wie möglich - Unter der Treppe? 10
16Treppe ohne Geländer geliefert und ich muss nun nachzahlen? - Seite 319
17Welche Treppe habt ihr genommen 77
18Gerade Treppe - warum? 14
19Abschluss Treppe - Parkett 28
20Baumangel - Treppe nicht in Ordnung - Seite 212

Oben