Grundriss-Optimierung / Aufteilung Erdgeschoss in Doppelhaushälfte

4,70 Stern(e) 10 Votes
Zuletzt aktualisiert 11.10.2025
Sie befinden sich auf der Seite 7 der Diskussion zum Thema: Grundriss-Optimierung / Aufteilung Erdgeschoss in Doppelhaushälfte
>> Zum 1. Beitrag <<

D

duke1085

Nach langem Suchen und Überlegen sind wir mittlerweile doch wieder bei der Doppelhaushälfte angekommen.
Laut Bauunternehmer müssten 2 Stellplätze ProHaus nachgewiesen werden, soweit ich es verstanden habe aber nicht hintereinander.

@katja: wäre super lieb wenn du noch einmal nachsehen würdest ob die Dateien noch hast.
Meinst du die gerade Treppe wäre machbar im EG? Oder gerne auch andere Vorschläge.

Besten Gruß!
 
kaho674

kaho674

Sorry, ich fürchte, das hab ich alles schon gelöscht.
Hat sich denn irgendwas an den Voraussetzungen geändert - mal abgesehen von dem Stellplatzproblem?
Gerade Treppe? Halt ich für utopisch.
 
D

duke1085

Prinzipiell hat sich an den anderen Voraussetzungen nichts geändert. Bezüglich des Grundstückes können keine Verhältnisse geändert werden, da die restlichen Häuser alle verkauft sind.

Die von dir erstellten Lösungen fand ich beide klasse, Nur durch das Stellplatz-Problem funktioniert es leider nicht. Ich denke aber auch, dass wir durch den fehlenden Keller eh auf eine etwas längere Garage angewiesen wären da man ja sonst keine Stellmöglichkeit für Rasenmäher, Fahrräder etc. hätte.
 
kaho674

kaho674

Die von dir erstellten Lösungen fand ich beide klasse, Nur durch das Stellplatz-Problem funktioniert es leider nicht. Ich denke aber auch, dass wir durch den fehlenden Keller eh auf eine etwas längere Garage angewiesen wären da man ja sonst keine Stellmöglichkeit für Rasenmäher, Fahrräder etc. hätte.
Zeichne doch mal selbst die 2 Autos und den Fahrradschuppen auf dem Grundstück ein, damit wir wissen, wie das gedacht ist.
 
kaho674

kaho674

Um was geht´s denn ?
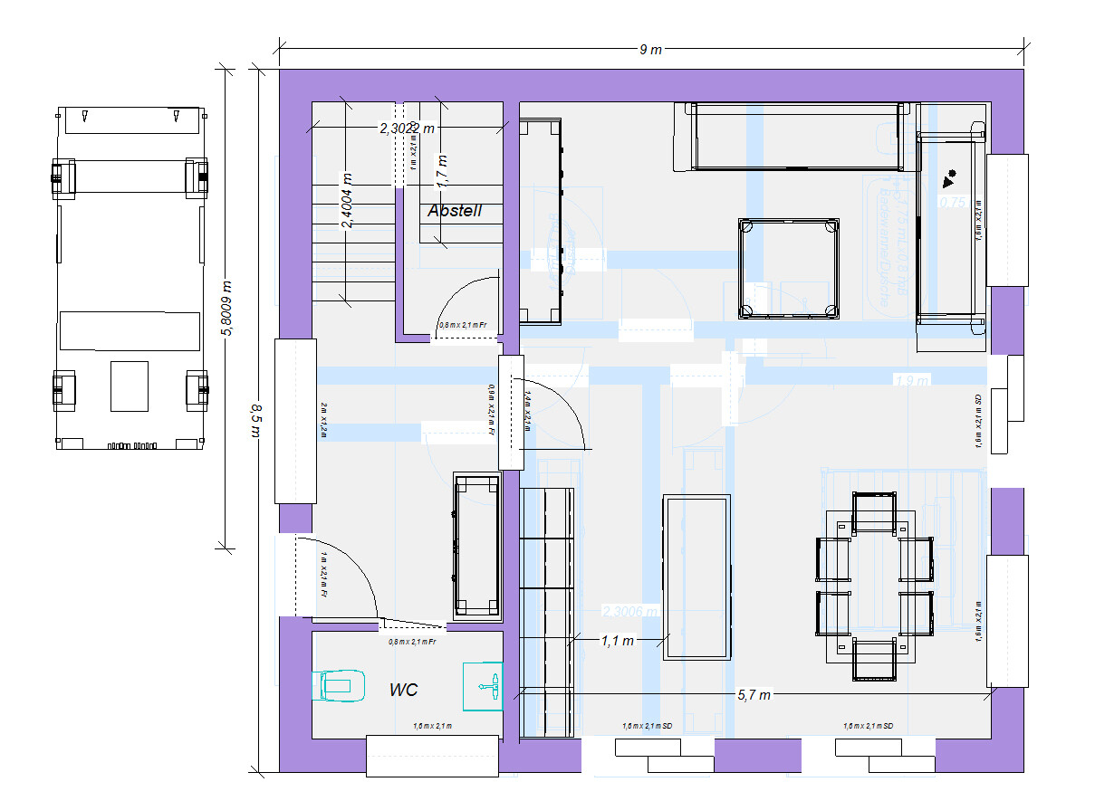
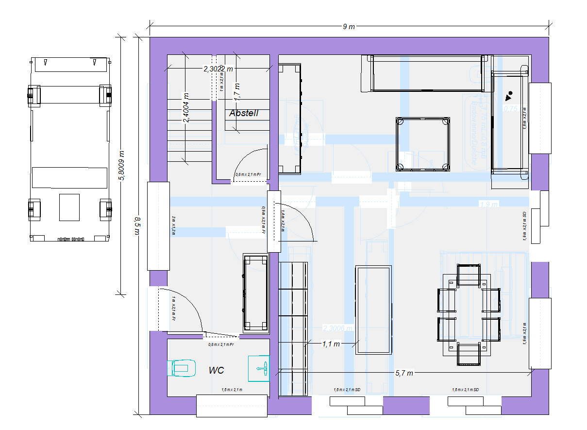
Ich vermute um die hier:
planunten war Süd-West:


Grundriss eines Raums mit Möbeln, Treppen, Türen, WC; Maße angegeben, lila Streifen.


Grundriss eines Wohnungsplans mit Räumen Wama, Kiba und zwei Küchen (K); zentrale Rundbogen-Türen.


Grundriss eines Hauses mit Technik, Schlafzimmer, Bad, Treppe, Türen.

Ich würde hier vermutlich auf die Süd-West-Terrasse an der Straße komplett verzichten und dort 2 schräge Stellplätze hin machen. Dazu einen Schuppen an die Nordwestseite für Fahrräder und Gedöns (wo in der Skizze das Auto steht). Den Rest so lassen. Terrasse dann nur Süd-Ost.

Oder zurück zum Ausgangsentwurf.
 
Zuletzt bearbeitet:
Zuletzt aktualisiert 11.10.2025
Im Forum Grundrissplanung / Grundstücksplanung gibt es 2513 Themen mit insgesamt 87241 Beiträgen


Ähnliche Themen zu Grundriss-Optimierung / Aufteilung Erdgeschoss in Doppelhaushälfte
Nr.ErgebnisBeiträge
1Alle erforderlichen Stellplätze bauen, auch wenn diese nicht benötigt? - Seite 856
2Terrasse an Hanglage auf Stelzen - Holz oder Stahl besser? - Seite 638
3Grundriss Bungalow 150qm geschlossene Küche, überdachte Terrasse - Seite 440
4Terrasse Bauen aus Schalungssteinen - Seite 427
5Ist die Größe der Terrasse ausreichend? 4x4.5m - Seite 213
6Grundriss Einfamilienhaus ~165m² plus Keller - Seite 2165
76 Stellplätze auf einem Grundstück Anordnen - Seite 220
8Platzierung Stellplätze / Carport auf dem Grundstück 42
9Zu Wenig Stellplätze für Baugenehmigung 20
10Anordnung Haus und Stellplätze - Kleines Grundstück - Haus mit Einliegerwohnung 27
11Wohin mit der Treppe? Dachausbau Walmdachbungalow - Seite 219
12Treppe im Flur, Grundriss steht eigentlich schon :o( 20
13Was ist bei einer Treppe beachten/Unterschie Wendeluing 22
14Grundrissfrage, Treppe, Fenster, Ausrichtung 12
15 2 Vollgeschosse, Durchgang Garage, Hauswirtschaftsraum unter Treppe 25
16Frage zu Grundriss, insbesondere Treppe 13
17"notwendige Treppe" zum Dachgeschoss - Seite 423
18Treppe Grundriss Planung, Auftritt und Unterzug 21
19Grundrissfrage, Garage, Treppe 33
20Technikraum so klein wie möglich - Unter der Treppe? 10

Oben