Grundriss-Optimierung / Aufteilung Erdgeschoss in Doppelhaushälfte

4,70 Stern(e) 10 Votes
Zuletzt aktualisiert 11.10.2025
Sie befinden sich auf der Seite 8 der Diskussion zum Thema: Grundriss-Optimierung / Aufteilung Erdgeschoss in Doppelhaushälfte
>> Zum 1. Beitrag <<

kaho674

kaho674

Eben. Und wo waren nun die, die jetzt fehlen ?
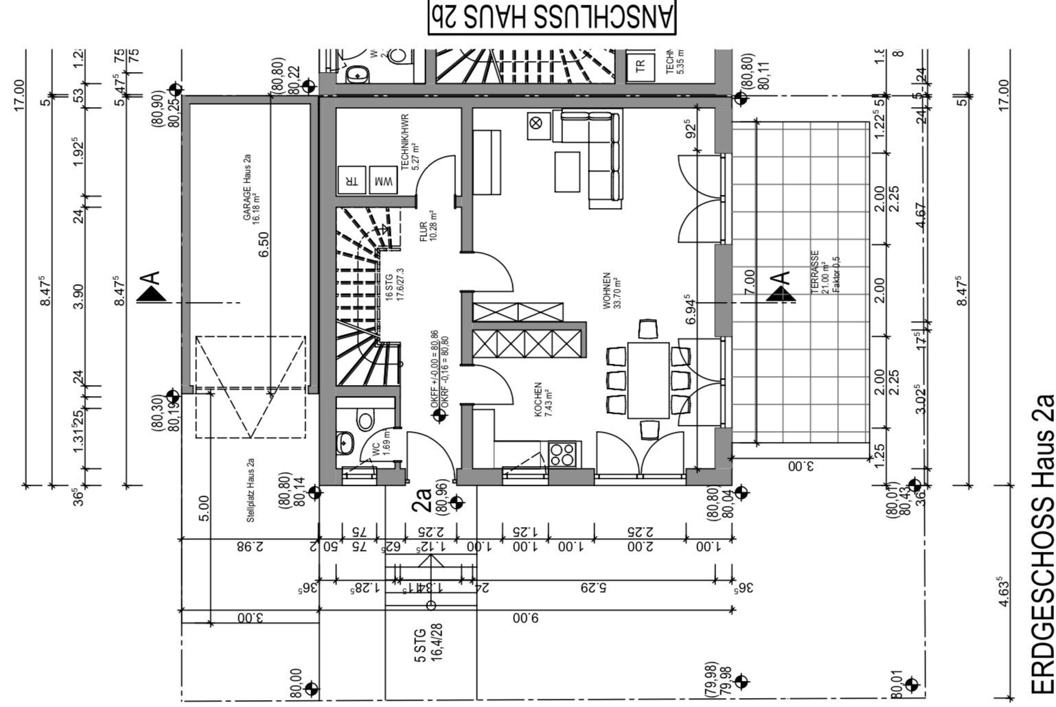
Das sind ja nur jpgs. Der TE meinte sicher, dass ich die Dateien noch mal rauswühlen soll und versuchen, hier ne gerade Treppe reinzupressen, 2 Stellplätze und nen Schuppen. Da seh ich aber keine Chance. Für die gerade Treppe sowieso nicht und 2 Stellplätze + Schuppen nur so:


Grundriss eines Hauses: Wohnbereich mit Essecke, Terrasse, WC, Schuppen, zwei Autos davor.


Oder eben zurück zum Ausgang und 2 Autos hintereinander ohne Schuppen. Aber wohin dann mit den Fahrrädern?

Der TE muss schauen, dass er hier auch komfortabel leben will und dazu muss es zuallererst funktionieren. Wenn die 2 Stellplätze wirklich benötigt werden, sollte der Platz auch konsequent eingeplant werden.
 
D

duke1085

Also die Garage würde ich gerne wie ürsprünglich eingeplant belassen (dann allerdings verlängern auf 7,50m damit man etwas zusätzlichen Stauraum für ein Fahrrad oder Gartenzeugs gewinnt). Davor dann den 2. Stellplatz.
Ansonsten würde der ohnehin schon kleine Garten ja komplett entfallen

Die Überlegung war ob man die Eingangstür an die Position des Gäste-WC und das WC dann neben die Treppe legt (daher der Einfall mit einer geraden Treppe).
Dein Entwurf mit Inselküche hatte mir schon sehr zugesagt.

LG

Grundriss eines Hauses Erdgeschoss mit Wohnzimmer, Küche, Terrasse und Garage
 
Zuletzt aktualisiert 11.10.2025
Im Forum Grundrissplanung / Grundstücksplanung gibt es 2513 Themen mit insgesamt 87241 Beiträgen


Ähnliche Themen zu Grundriss-Optimierung / Aufteilung Erdgeschoss in Doppelhaushälfte
Nr.ErgebnisBeiträge
1Wohin mit der Treppe? Dachausbau Walmdachbungalow - Seite 219
2Treppe im Flur, Grundriss steht eigentlich schon :o( 20
3Was ist bei einer Treppe beachten/Unterschie Wendeluing 22
4Grundrissfrage, Treppe, Fenster, Ausrichtung 12
5 2 Vollgeschosse, Durchgang Garage, Hauswirtschaftsraum unter Treppe 25
6Frage zu Grundriss, insbesondere Treppe 13
7"notwendige Treppe" zum Dachgeschoss - Seite 423
8Treppe Grundriss Planung, Auftritt und Unterzug 21
9Grundrissfrage, Garage, Treppe 33
10Technikraum so klein wie möglich - Unter der Treppe? 10
11Treppe ohne Geländer geliefert und ich muss nun nachzahlen? - Seite 319
12Welche Treppe habt ihr genommen 77
13Gerade Treppe - warum? 14
14Abschluss Treppe - Parkett 28
15Baumangel - Treppe nicht in Ordnung - Seite 212
16Treppe - Sind die Treppenmaße 2.00x2.00m in Ordnung? - Seite 568
17Einfamilienhaus ca. 150 qm Grundriss - Treppe wie planen? 65
18Stadtvilla mit gerader Treppe, offene moderne Bauweise, 140m² 18
19Treppe im Wohnzimmer als Hype - Pro & Contra? - Seite 426
20Fliesen auf halbgewendelter Treppe - Wer hat da Erfahrungen? - Seite 638

Oben