ᐅ Grundriss-Optimierung 1. OG (falls möglich)
Erstellt am: 04.07.21 13:36
J
JuliaAlex04.07.21 13:36Liebe Forums-Nutzer,
wir haben ein Reihenmittelhaus von einem Bauträger gekauft und müssen nun final den Grundriss für die Raumplanung festlegen.
Gleich vorweg: Der Zuschnitt des Hauses entspricht alles andere als unseren Wunschvorstellungen, ebenso wie der Charakter als Reihenmittelhaus - aber mehr war bei den derzeitigen Preisen für uns nicht drin... 😱 🙄 Also bitte nicht noch in der Wunde bohren, wir wissen, dass es Häuser mit deutlich besseren Zuschnitten gibt.
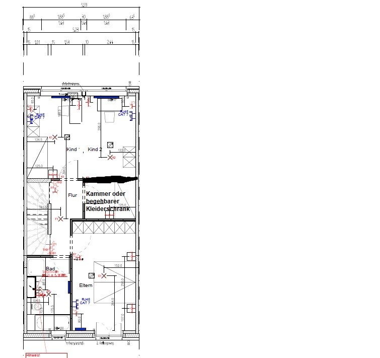
Was die Planung der Zimmer angeht, ist u.E. auch nicht allzu viel möglich, da wir durch den länglichen Zuschnitt und die Fenster schon sehr gebunden sind. Wir sehen daher leider nicht allzu viele bzw. gar keine Alternativen zur Raumaufteilung des 1. OG, auch wenn uns vor allem das Ultra-Schlauchzimmer ein Dorn im Auge ist. Aber vielleicht hat ja jemand noch eine Idee??
Überlegt haben wir einzig, ob wir einen Teil vom Schlauchzimmer abtrennen sollen, um daraus eine Abstellkammer zu machen, aber das ist schon sehr aufwendig und Staubsauger etc. kann man ja evtl. auch in einem schrank in einem der Zimmer verstauen?
Zur vorgesehenen Nutzung der Zimmer: Zunächst sollen die Zimmer wie vorgesehen verwendet werden, also zwei Kinderzimmer und das große Zimmer als Elternschlafzimmer. In ein paar Jahren werden wir aber oben ins Studio ziehen, die Kinder bekommen die beiden großen Zimmer und das kleine Zimmer wird Arbeits- und Gästezimmer (dort könnte Staubsauger etc dann auch gut untergebracht werden).
Wir sind für konstruktive Anregungen sehr dankbar und hoffen, wir haben nichts vergessen (ist unser erster Eintrag im Forum)
Lieben Dank!
Bebauungsplan/Einschränkungen
Größe des Grundstücks: 162 qm
Hang (-)
Anzahl Stellplatz: 1
Geschossigkeit: 3
Dachform: Pultdach
Stilrichtung: Townhouse
Ausrichtung: Nord-Süd (Garten Süd)
Anforderungen der Bauherren
Stilrichtung, Dachform, Gebäudetyp: Reihenmittelhaus
Keller (+), 3 Geschosse
Anzahl der Personen, Alter: 4 Personen (Eltern + 2 J. + 4 J.)
Raumbedarf im EG, OG: 2 Kinderzimmer, 1 Elternschlafzimmer, 1 Büro/Gästezimmer
Büro: Familiennutzung oder Homeoffice? Homeoffice
Schlafgäste pro Jahr: 10
offene oder geschlossene Architektur: offen
konservativ oder moderne Bauweise: modern
offene Küche
1 Essplatz im offenen Wohn-Esszimmer
Kamin (-)
Musik/Stereowand (-)
Balkon, Dachterrasse: Dachterrasse + Terrasse
Garage, Carport (-)
Nutzgarten, Treibhaus: kleiner Garten
weitere Wünsche/Besonderheiten/Tagesablauf, gern auch Begründungen, warum dieses oder das nicht sein soll
Hausentwurf
Von wem stammt die Planung: Bauträger
Was gefällt nicht? Warum? vor allem 1 Kinderzimmer sehr schlauchartig
Preisschätzung lt Architekt/Planer: 580k
Persönliches Preislimit fürs Haus, inkl Ausstattung: 620 k
favorisierte Heiztechnik: Fernwärme
Warum ist der Entwurf so geworden, wie er jetzt ist? ZB
Standardentwurf vom Planer? Ja
Entsprechende/Welche Wünsche wurden vom Architekten umgesetzt?
Ein Gemisch aus vielen Beispielen aus div. Magazinen...
Was macht ihn in Euren Augen besonders gut oder schlecht?

wir haben ein Reihenmittelhaus von einem Bauträger gekauft und müssen nun final den Grundriss für die Raumplanung festlegen.
Gleich vorweg: Der Zuschnitt des Hauses entspricht alles andere als unseren Wunschvorstellungen, ebenso wie der Charakter als Reihenmittelhaus - aber mehr war bei den derzeitigen Preisen für uns nicht drin... 😱 🙄 Also bitte nicht noch in der Wunde bohren, wir wissen, dass es Häuser mit deutlich besseren Zuschnitten gibt.
Was die Planung der Zimmer angeht, ist u.E. auch nicht allzu viel möglich, da wir durch den länglichen Zuschnitt und die Fenster schon sehr gebunden sind. Wir sehen daher leider nicht allzu viele bzw. gar keine Alternativen zur Raumaufteilung des 1. OG, auch wenn uns vor allem das Ultra-Schlauchzimmer ein Dorn im Auge ist. Aber vielleicht hat ja jemand noch eine Idee??
Überlegt haben wir einzig, ob wir einen Teil vom Schlauchzimmer abtrennen sollen, um daraus eine Abstellkammer zu machen, aber das ist schon sehr aufwendig und Staubsauger etc. kann man ja evtl. auch in einem schrank in einem der Zimmer verstauen?
Zur vorgesehenen Nutzung der Zimmer: Zunächst sollen die Zimmer wie vorgesehen verwendet werden, also zwei Kinderzimmer und das große Zimmer als Elternschlafzimmer. In ein paar Jahren werden wir aber oben ins Studio ziehen, die Kinder bekommen die beiden großen Zimmer und das kleine Zimmer wird Arbeits- und Gästezimmer (dort könnte Staubsauger etc dann auch gut untergebracht werden).
Wir sind für konstruktive Anregungen sehr dankbar und hoffen, wir haben nichts vergessen (ist unser erster Eintrag im Forum)
Lieben Dank!
Bebauungsplan/Einschränkungen
Größe des Grundstücks: 162 qm
Hang (-)
Anzahl Stellplatz: 1
Geschossigkeit: 3
Dachform: Pultdach
Stilrichtung: Townhouse
Ausrichtung: Nord-Süd (Garten Süd)
Anforderungen der Bauherren
Stilrichtung, Dachform, Gebäudetyp: Reihenmittelhaus
Keller (+), 3 Geschosse
Anzahl der Personen, Alter: 4 Personen (Eltern + 2 J. + 4 J.)
Raumbedarf im EG, OG: 2 Kinderzimmer, 1 Elternschlafzimmer, 1 Büro/Gästezimmer
Büro: Familiennutzung oder Homeoffice? Homeoffice
Schlafgäste pro Jahr: 10
offene oder geschlossene Architektur: offen
konservativ oder moderne Bauweise: modern
offene Küche
1 Essplatz im offenen Wohn-Esszimmer
Kamin (-)
Musik/Stereowand (-)
Balkon, Dachterrasse: Dachterrasse + Terrasse
Garage, Carport (-)
Nutzgarten, Treibhaus: kleiner Garten
weitere Wünsche/Besonderheiten/Tagesablauf, gern auch Begründungen, warum dieses oder das nicht sein soll
Hausentwurf
Von wem stammt die Planung: Bauträger
Was gefällt nicht? Warum? vor allem 1 Kinderzimmer sehr schlauchartig
Preisschätzung lt Architekt/Planer: 580k
Persönliches Preislimit fürs Haus, inkl Ausstattung: 620 k
favorisierte Heiztechnik: Fernwärme
Warum ist der Entwurf so geworden, wie er jetzt ist? ZB
Standardentwurf vom Planer? Ja
Entsprechende/Welche Wünsche wurden vom Architekten umgesetzt?
Ein Gemisch aus vielen Beispielen aus div. Magazinen...
Was macht ihn in Euren Augen besonders gut oder schlecht?
Braucht ihr die zwei Kinderzimmer auf dieser Ebene?
Wir bauen ebenfalls ein Reihenmittelhaus, bei uns wäre planunten quer Eltern ggü. der Treppe planrechts Bad, planoben Kind (quer) und zwischen Bad und Kind kl. Abstellraum. Dann noch zwei große Räume im DG. Andere Familien bei uns nutzen die als Kinderzimmer.
Wir bauen ebenfalls ein Reihenmittelhaus, bei uns wäre planunten quer Eltern ggü. der Treppe planrechts Bad, planoben Kind (quer) und zwischen Bad und Kind kl. Abstellraum. Dann noch zwei große Räume im DG. Andere Familien bei uns nutzen die als Kinderzimmer.
J
JuliaAlex04.07.21 14:04@minimini : Ja, das ist unser Wunsch, da wir, so lang beide noch jung sind, vermutlich ein geteiltes Schlafzimmer für beide und ein geteiltes Spielzimmer draus machen werden. Das DG soll zunächst ein großes Studio sein, hier wird zum einen das Eltern-Wohnzimmer liegen und zum anderen der Bereich fürs Homeoffice. Wenn die Kinder größer sind und wir nach oben umziehen, werden wir vermutlich noch Wände oben einziehen, um dann 2 Räume draus zu machen im DG.
JuliaAlex schrieb:
Gleich vorweg: Der Zuschnitt des Hauses entspricht alles andere als unseren Wunschvorstellungen, ebenso wie der Charakter als Reihenmittelhaus - aber mehr war bei den derzeitigen Preisen für uns nicht drin... 😱 🙄 Also bitte nicht noch in der Wunde bohren, wir wissen, dass es Häuser mit deutlich besseren Zuschnitten gibt.Townhäuser, also Reihenhäuser haben durchaus ihre Berechtigung, also mal nicht so schlecht reden, sondern Euch freuen 🙂Fragen: wie lang ist das lange Zimner?
Wird das Dachgeschoss auch gleich ausgebaut? Kann es neben Schlafzimmer auch schon ein Büro bieten?Bekommt es auch ein Bad?
Ggf mal überlegen, ob die zwei Kinderzimmer nicht zusammengelegt werden können (gleiche Geschlechter?) Bei der Altersnähe können die Kids sich doch gut erstmal ein großes Zimmer teilen?!
Oder eine Rigipstrennwand vorsehen, dann kann man später aus zwei ein Zimmer machen und einen Abstellraum generieren.
Oder so, wie ihr denkt.
Ähnliche Themen