Grundriss L-Form - Was ist eure Meinung?

5,00 Stern(e) 8 Votes
Zuletzt aktualisiert 20.11.2025
Sie befinden sich auf der Seite 13 der Diskussion zum Thema: Grundriss L-Form - Was ist eure Meinung?
>> Zum 1. Beitrag <<

Y

Ypsi aus NI

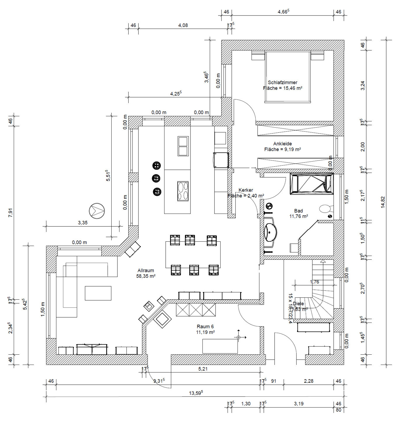
So, neues Spiel, neues Glück.

Was hat sich geändert?

EG =
Gästebad rausgeschmissen, Garderobe vergrößert und nach vorne verlegt, Treppe dafür weiter nach hinten und von U zu L Form, Zugang zum Allraum nun seitlich und nicht mehr direkt von der Haustür grade in den Allraum, Wohnzimmer etwas eingekürzt, Ankleide verbreitert, Schlafzimmer und Bad getauscht und durch Kreation eines kleinen Zwischenflurs vom Allraum separiert, aber trotzdem auch für Gäste zu gängig.
Tür von Diele in den Allraum soll Glasschiebetür sein, Tür vom Allraum in den Privatbereich eine normale Glastür, Tür zur Ankleide soll auch eine Glasschiebetür sein. Diese steht wohl im täglichen Leben immer offen. Wenn Gäste erwartet werden, soll diese aber geschlossen werden um nicht gleich den Blick auf die Ankleide freizugeben. Aber der kleine Zwischenflur vorm Bad soll ja auch zu keinem dunklen Verlies werden, daher die Idee mit zwei Glastüren zu arbeiten. Oder braucht es zwischen Flur und Ankleide keine Tür?

OG = hier ist nicht wirklich viel passiert, außer dass das Bad kleiner geworden ist. Wanne ist rausgeflogen... Toilette sitzt nun in der Wand, die über dem Hauswirtschaftsraum verläuft. Sollte die Treppe im EG noch etwas zu groß geplant sein, könnte man diese weiter Richtung Westen (planoben) schieben, dann hätte das Bad wieder ein paar Zentimeter mehr gewonnen.
Die Maße der Kinderzimmer passen nicht, das liegt am noch falschen Dach Das Dach muss ich morgen noch mal korrigieren... Obere Zimmer 17,8qm, untere 15,7qm. Nicht ganz identisch, das liegt an der Tür zum oberen Kinderzimmer, ist aber meines Erachtens nach zu verkraften.

So, was sagt ihr?

Danke und viele Grüße,
Ypsi

Grundriss eines Hauses: offene Küche mit Insel, Essbereich, Sofa, Schlafzimmer mit Ankleide, Bad.


Grundriss: zwei KiZi, Büro, Flur, Bad; Größen 17,28;12,27;11,08;6,94;5,28 m²
 
Pinky0301

Pinky0301

Ich fand das Gäste-WC als 3. Bad nicht schlimm. Der Putzaufwand bei einem WC und einem waschbecken hält sich ja wirklich in Grenzen. Mir fehlt jetzt nämlich eine Händewasch-Möglichkeit am Hauseingang.
Der Elterntrakt gefällt mir gut. Mit einer Terrassentür hätte man direkten Gartenzugang.
Sehe ich es richtig, dass die Küche 4,08m breit ist? Passt auf, dass die Fenster an der richtigen Stelle sitzen. Also erst Küchenplanung, danach dann die Fenster ausrichten.
Schade, dass die Kinderzimmer nicht gleich groß sind, 5m2 ist schon ein ganz schöner Unterschied. Das Klo im Kinderbad direkt an der Tür gefällt mir nicht.
 
Y

Ypsi aus NI

Hallo Pinky,

hab deinen Einwand mit dem Händewaschen nun einen Moment sacken lassen und kann mir nicht vorstellen zur Haustür hereinzukommen und mir SOFORT die Hände waschen zu wollen. Die Möglichkeit hab ich jetzt auch nicht und die hat mir bisher nicht gefehlt. Was hab ich verpasst?
Mir persönlich ging es beim Gästebad nicht um den Mehraufwand beim putzen, sondern um den Platz. Mir gefällt die 'Opferung' des Gäste WCs zugunsten einer größeren Diele ganz gut.
Nichtsdestotrotz: wir würden wahrscheinlich hauptsächlich durch den Hauswirtschaftsraum ins Haus gehen, in dem ein Waschbecken geplant ist.

Küche ist natürlich noch flexibel und genauso wie du sagst: erst die Küche, dann der Raum mit Fenstern!

Zu den Kinderzimmern hab ich ja schon geschrieben, dass diese vom Programm (aufgrund des noch falschen Daches) falsch berechnet werden. Konnte die qm aber nicht manuell ändern... Es sind 'nur' ca. 2qm Unterschied.

Hab Dank für dein Feedback.
 
Zuletzt aktualisiert 20.11.2025
Im Forum Grundrissplanung / Grundstücksplanung gibt es 2535 Themen mit insgesamt 87978 Beiträgen


Ähnliche Themen zu Grundriss L-Form - Was ist eure Meinung?
Nr.ErgebnisBeiträge
1Minimale Grundfläche - Hauswirtschaftsraum und AZ im EG - Ohne Keller 19
2Erstes Konzept, Grundriss Einfamilienhaus / Meinungen - Seite 222
3 2 Vollgeschosse, Durchgang Garage, Hauswirtschaftsraum unter Treppe 25
4Speisekammer vs. größere Küche vs. Hauswirtschaftsraum - Seite 213
5Grundrissplanung Hanghaus mit 5 Kinderzimmer - Seite 26370
6Neubau Einfamilienhaus 160-170qm, 3 Kinderzimmer 39
7Grundriss Einfamilienhaus ohne Keller, 3 Kinderzimmer und Büro 18
8Einteilung Grundriss Allraum Küche Wohnen Essen - Seite 358
9LED-Einbaulampen in Allraum Küche, Wohn- und Essbereich 17
10Geschlossene Küche planen mit Durchgang zum Hauswirtschaftsraum - Seite 318
11Beleuchtung in Diele und Küche: Deckeneinbau-Strahler benötigt? 19
12Decken-Spots Diele oder Küche und Bad 10
13REH - Grundrissplanung - Küche zu klein - Seite 430
14Einfamilienhaus ca. 150 qm Grundriss - Treppe wie planen? 65
15Stadtvilla mit gerader Treppe, offene moderne Bauweise, 140m² 18
16Grundriss Bungalow 150qm geschlossene Küche, überdachte Terrasse 40
17Grundrissfrage, Garage, Treppe - Seite 533
18Grundriss 170m2 - Hauswirtschaftsraum zu klein? Verbesserungsvorschläge? - Seite 342
19Reicht der Hauswirtschaftsraum auch als Abstellkammer aus? - Seite 422
20Grundriss 3 Kinderzimmer Einfamilienhaus - Potenziale? 43

Oben