Hallo liebe Hausbau-Freunde,
ich würde gerne das Dachgeschoss (2. OG) eines Altbaus (BJ 1974) ausbauen. Als das Haus in den 70'er Jahren gebaut wurde, hat sich der Bauherr einen Grundriss für das Dachgeschoss überlegt, da bereits damals klar war, dass das Dachgeschoss wenige Jahre nach Fertigstellung des Hauses ausgebaut wird.
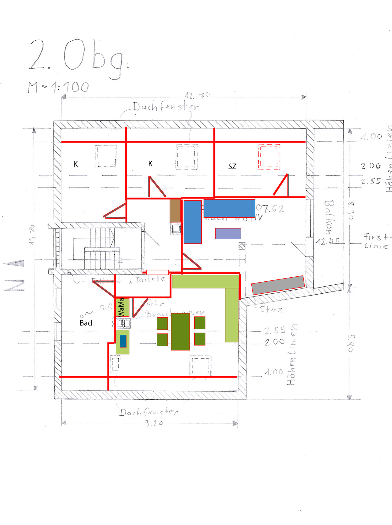
Leider kam diesem Vorhaben das Leben dazwischen und so wurde es nie ausgebaut. In den letzten 45 Jahren wurde es als "Luxus-Dachboden genutzt". Wie ihr anhand der beiden Grundrisse erkennen könnt, gibt es einen Balkon, mehrere Dachfenster und auch normale Fenster. Ich habe euch den aktuellen Stand (Ist-Stand_2018.jpg) angehängt. Wie ihr sehen könnt, ist keine einzige Wand eingezogen.
Den damals angedachten Grundriss (siehe Anhang "Ursprünglicher_Grundriss.jpg") habe ich aus den alten Unterlagen rekonstruiert und noch mal neu skizziert. Leider bin ich mit diesem Grundriss aus folgenden Gründen unzufrieden:
Ich habe mir bereits intensiv Gedanken gemacht, komme aber zu keiner zufriedenstellenden Lösung. Einen meiner Entwürfe habe ich angehängt (Grundriss_Neuentwurf.jpg). In diesem Entwurf gefällt mir die Platzierung von Küche, Essbereich und Bad sehr gut, allerdings habe ich folgende Probleme:
In Gernellen hätte ich eine Frage:
Die Wohnung hat nach Wohnflächenverordnung gerechnet 107 m². Ist es üblich bei dieser Größe 2 Kinderzimmer + 1 Elternschlafzimmer zu schaffen oder wäre es heutzutage üblicher 1 Kinderzimmer und 1 Elternschlafzimmer anzulegen?
Da die Wohnung nicht für mich gedacht ist, habe ich selbst keine Präferenzen.
Für jegliche Hilfe und Idee möchte ich mich im Vorhinein bereits bedanken!
Viele Grüße,
Flasher
ich würde gerne das Dachgeschoss (2. OG) eines Altbaus (BJ 1974) ausbauen. Als das Haus in den 70'er Jahren gebaut wurde, hat sich der Bauherr einen Grundriss für das Dachgeschoss überlegt, da bereits damals klar war, dass das Dachgeschoss wenige Jahre nach Fertigstellung des Hauses ausgebaut wird.
Leider kam diesem Vorhaben das Leben dazwischen und so wurde es nie ausgebaut. In den letzten 45 Jahren wurde es als "Luxus-Dachboden genutzt". Wie ihr anhand der beiden Grundrisse erkennen könnt, gibt es einen Balkon, mehrere Dachfenster und auch normale Fenster. Ich habe euch den aktuellen Stand (Ist-Stand_2018.jpg) angehängt. Wie ihr sehen könnt, ist keine einzige Wand eingezogen.
Den damals angedachten Grundriss (siehe Anhang "Ursprünglicher_Grundriss.jpg") habe ich aus den alten Unterlagen rekonstruiert und noch mal neu skizziert. Leider bin ich mit diesem Grundriss aus folgenden Gründen unzufrieden:
- Die Küche sollte auch als Essbereich dienen (typische Wohnküche). Aufgrund der Position der Küche (Dachschräge) ist die Küche allerdings unterdimensioniert. Es war vorgesehen einen Tisch für 3 Personen in die Küche zu stellen.
- Ein Kinderzimmer kann nicht von der Wohnung selbst, sondern nur über das - allgemeinzugängliche Treppenhaus begangen werden. Das ist ein no-go für mich.
- Ich hätte gerne einen gemeinsamen Wohn- und Essbereich gehabt.
Ich habe mir bereits intensiv Gedanken gemacht, komme aber zu keiner zufriedenstellenden Lösung. Einen meiner Entwürfe habe ich angehängt (Grundriss_Neuentwurf.jpg). In diesem Entwurf gefällt mir die Platzierung von Küche, Essbereich und Bad sehr gut, allerdings habe ich folgende Probleme:
- Ich finde keine zufriedenstellende Möglichkeit die Couch zu platzieren.
- Ich hätte gerne die gesamte Balkonbreite für das Wohnzimmer genutzt. Nun habe ich auf halber Breite ein Schlafzimmer platziert und muss obendrein noch die Tür-Fenster-Kombination zum Balkon rausreißen.
In Gernellen hätte ich eine Frage:
Die Wohnung hat nach Wohnflächenverordnung gerechnet 107 m². Ist es üblich bei dieser Größe 2 Kinderzimmer + 1 Elternschlafzimmer zu schaffen oder wäre es heutzutage üblicher 1 Kinderzimmer und 1 Elternschlafzimmer anzulegen?
Da die Wohnung nicht für mich gedacht ist, habe ich selbst keine Präferenzen.
Für jegliche Hilfe und Idee möchte ich mich im Vorhinein bereits bedanken!
Viele Grüße,
Flasher
Erster Versuch.
Eventuell ersetzt man das eine Sofa (blau) durch einen Kamin. Der Pfeiler mitten im WZ ist echt cool. Zum Fernseher müsste man drumrum schauen. Aber da ginge sicher noch ein Fernsehsessel irgendwo hin. Ein Fenster ins Schlafzimmer müsste neu.
Mangels genauer Maße, kann das nur eine Skizze mit geschätzten Möbeln sein.

Eventuell ersetzt man das eine Sofa (blau) durch einen Kamin. Der Pfeiler mitten im WZ ist echt cool. Zum Fernseher müsste man drumrum schauen. Aber da ginge sicher noch ein Fernsehsessel irgendwo hin. Ein Fenster ins Schlafzimmer müsste neu.
Mangels genauer Maße, kann das nur eine Skizze mit geschätzten Möbeln sein.
Hallo Katja,
vielen Dank für deine Mühe! Du bringst bereits jetzt ganz neuen Schwung in meine festgefahrenen Gedanken Ich hätte mich nicht getraut, die Schlaf- und Kinderzimmer zu verkleinern.
Kurz zu deinen Anmerkungen:
Kamin:
Der von dir entdeckte Kamin ist in der Tat gedacht - und auch im EG seit jeher genutzt - für einen Zimmerofen bestimmt. Im EG ist aktuell noch ein offener Kamin den ich gelegentlich mit Scheitholz beheize. Ich könnte mir gut vorstellen, dass man im 2. OG einen Ethanol-Kamin einbaut. Einen mit Holz betriebenen Kamin würde ich ungern verbauen, da den Bewohnern nicht zumuten möchte, dass Holz in das 2. OG zu schleppen und zusätzlich jede Menge Dreck beim Holztransport im Treppenhaus entstehen würde. Auch habe ich etwas Bedenken bezüglich der Brandgefahr, welche mir zumindest subjektiv mit einem Ethanol-Kamin geringer erscheinen würde.
Säule:
Die Säule im Wohnzimmer kann ich leider nicht entfernen, da auf dieser der First-Balken liegt. Ich hatte immer wieder mit dem Gedanken gespielt, ob ich die Säule zu einer freistehenden Wand verlängern sollte (evtl. 1,5 m) um dort einen Fernseher aufzuhängen.
Fenster:
Damit du einen besseren Eindruck bekommst, habe ich soeben vom Wohnzimmer-Fenster/Tür ein Foto angehängt (Wohnzimmer-Fenster.jpg). Am Boden entdeckst du vielleicht diese ausgelegten Steine. Das ist kein Estrich, sondern Ytong-Steine, welche ursprünglich für die Zwischenwände vorgesehen waren. Vor Jahren hat man diese Steine dann ausgelegt um die Wärmeisolierung zu verbessern.
Außerdem auch von den beiden Fenstern im angedachten Bad (Bad-Fenster.jpg) und exemplarisch eines der großen Dachfenster (Dachfenster.jpg).
Wie auf den Bildern zu erkennen ist, sind bereits vor wenigen Jahren neue - hochwertige - Fenster verbaut worden. Auch der Balkon ist vor wenigen Jahren komplett saniert worden.
Waschmaschine:
Eine Waschmaschine wäre in der Wohnung nicht notwendig. Die Bewohner erhalten einen Kellerraum und einen gemeinsamen genutzten Waschraum, in welchem ein Platz für Waschmaschine + Trockner vorgesehen ist.
Bemaßung:
Um besser diskutieren zu können, werde ich in Kürze einen digitalisierten Grundriss anhängen (Mit SweetHome 3d). Werde diesen jetzt gleich mal zeichnen
Ich melde mich in Kürze wieder, dann auch mit weiteren Ideen zu deinem Entwurf
Bis dahin,
viele Grüße,
Flasher



vielen Dank für deine Mühe! Du bringst bereits jetzt ganz neuen Schwung in meine festgefahrenen Gedanken Ich hätte mich nicht getraut, die Schlaf- und Kinderzimmer zu verkleinern.
Kurz zu deinen Anmerkungen:
Kamin:
Der von dir entdeckte Kamin ist in der Tat gedacht - und auch im EG seit jeher genutzt - für einen Zimmerofen bestimmt. Im EG ist aktuell noch ein offener Kamin den ich gelegentlich mit Scheitholz beheize. Ich könnte mir gut vorstellen, dass man im 2. OG einen Ethanol-Kamin einbaut. Einen mit Holz betriebenen Kamin würde ich ungern verbauen, da den Bewohnern nicht zumuten möchte, dass Holz in das 2. OG zu schleppen und zusätzlich jede Menge Dreck beim Holztransport im Treppenhaus entstehen würde. Auch habe ich etwas Bedenken bezüglich der Brandgefahr, welche mir zumindest subjektiv mit einem Ethanol-Kamin geringer erscheinen würde.
Säule:
Die Säule im Wohnzimmer kann ich leider nicht entfernen, da auf dieser der First-Balken liegt. Ich hatte immer wieder mit dem Gedanken gespielt, ob ich die Säule zu einer freistehenden Wand verlängern sollte (evtl. 1,5 m) um dort einen Fernseher aufzuhängen.
Fenster:
Damit du einen besseren Eindruck bekommst, habe ich soeben vom Wohnzimmer-Fenster/Tür ein Foto angehängt (Wohnzimmer-Fenster.jpg). Am Boden entdeckst du vielleicht diese ausgelegten Steine. Das ist kein Estrich, sondern Ytong-Steine, welche ursprünglich für die Zwischenwände vorgesehen waren. Vor Jahren hat man diese Steine dann ausgelegt um die Wärmeisolierung zu verbessern.
Außerdem auch von den beiden Fenstern im angedachten Bad (Bad-Fenster.jpg) und exemplarisch eines der großen Dachfenster (Dachfenster.jpg).
Wie auf den Bildern zu erkennen ist, sind bereits vor wenigen Jahren neue - hochwertige - Fenster verbaut worden. Auch der Balkon ist vor wenigen Jahren komplett saniert worden.
Waschmaschine:
Eine Waschmaschine wäre in der Wohnung nicht notwendig. Die Bewohner erhalten einen Kellerraum und einen gemeinsamen genutzten Waschraum, in welchem ein Platz für Waschmaschine + Trockner vorgesehen ist.
Bemaßung:
Um besser diskutieren zu können, werde ich in Kürze einen digitalisierten Grundriss anhängen (Mit SweetHome 3d). Werde diesen jetzt gleich mal zeichnen
Ich melde mich in Kürze wieder, dann auch mit weiteren Ideen zu deinem Entwurf
Bis dahin,
viele Grüße,
Flasher
Flasher schrieb:
Ich hätte mich nicht getraut, die Schlaf- und Kinderzimmer zu verkleinern.Ja, das Problem ist, dass keine exakte Maße da sind. Eventuell werden die Kinderzimmers unter den Schrägen tatsächlich zu klein oder extrem schlecht nutzbar. Am besten wirklich jeden Abstand ausmessen. Säulen, Schornsteine, Fenster - auch im Dach, Treppenhaus, Dachschrägen, die irgendwo rein ragen oder sonstige nicht veränderbaren Gegebenheiten. Und 2m Linie möglichst nicht vergessen mit auszumessen.Gibt es noch irgendeine Chance, Wasser und Abwasser wenigstens um ein paar Meter zu versetzen in der Küche? Könnte das Spülbecken z.B. nicht neben die gedachte Waschmaschine, sondern bis in die planrechte Arbeitsfläche? Vielleicht über neue Wände und neuen Fußboden?
Ich finde es gibt hier zwei Dinge, die die Umsetzung echt erschweren: der offensichtlich sehr niedrige Kniestock (Maße wären wirklich hilfreich; bis jetzt kann man das nur anhand eines Fotos erahnen) und daß sämtliche Anschlüsse um diesen Pfeiler herum sein müssen, also Bad und Küche fest gelegt sind.
Als erstes würde ich mich mit einem Installateur beraten, ob es irgendeine Möglichkeit gäbe, auch auf die andere Seite Wasser/Abwasser legen zu lassen. Vielleicht ist da in der Whg darunter ebenfalls ein Wasseranschluss den man ggf. durch die Decke nach oben legen kann.
Wenn der Kniestock nicht angehoben werden soll, würde ich mich auf ein Kinderzimmer beschränken, sonst wird das alles winzig. Lieber eine gut geschnittene Dreizimmerwohnung als eine frickelige Vier(winzlings)Zimmerwohnung. Die Maße der Grundfläche sind mit soviel Dachschräge vernachlässigbar, man muß die großen Dachschrägen einfach mit einberechnen.
Wenn das mit einem weiteren Wasseranschluss nicht klappt, dann stört mich am meisten, daß das Bad zwingend hinter der Küche ist und bei der momentanen Aufteilung man immer, um vom Schlafzimmer ins Bad zu kommen, durch den gesamten Wohnbereich latschen muß. Sehr blöd, insbesondere dann, wenn einer schon im Bett ist der andere aber mit Besuch im Wohnzimmer oder Küche sitzt. Ich muß meine Nachtwäsche nicht unbedingt öffentlich vorführen...
Daher hätte ich folgenden Vorschlag (auf Kosten eines zweiten Kinderzimmers, aber dafür hat man etwas Stauraum in der Whg gewonnen):
Eingang verlegen, dann kann ein Gang (auch wenn er schmal ist; ggf, mit einer Glaskuppel erhellen) eingefügt werden. Schlafzimmer und Kinderzimmer müssen nicht mehr durch den Wohnbereich zum Bad. Nach deinem neuem Grundriss gehe ich davon aus, daß die Fenster zum Balkon neu gemacht werden könnten, denn wenn mich nicht alles täuscht, wäre die von dir neu eingezogene Wand zwischen Schlafzimmer und WZ genau im existierenden Fenster; die Freiheit habe ich mir auch genommen.
Letztendlich käme eine für ein Paar gut passende Whg heraus mit einem dritten Zimmer, das fast ausschließlich aus Dachschrägen bestünde. Gut als Büro nutzbar, aber ob ich ein Kind da bis zum Teenageralter drin groß ziehen möchte, weiß ich nicht.
Leider kann man deine Dateien nicht herunter laden und dentsprechend ausdrucken (also bei mir hat's nicht geklappt), daher habe ich den Grundriss wackelig am Bildschirm abgepaust. Entsprechend wackelig ist die Skizze geowrden. Maße wären hilfreich, wurde hier schon mehrfach angesprochen.
Aber mal als Idee einer ganz anderen Aufteilung (wo die Türe in den Wohn/Essbereich am besten platziert ist, kann gerne noch diskutiert werden, oder ob zwei Türen Sinn machen etc.)

Sollte die Möglichkeit bestehen, in dem Bereich, ind dem sich jetzt Abstell/Kinderzimmer/Schlafzimmer befindet doch noch einen Wasseranschluss legen zu können, wäre das die bessere Lösung und man könnte dann sehr gut in einen priv. (Bad/Kinderzimmer/Schlafzimmer) und öffentlichen Bereich (WC/Küche/Essen/Wohnen) trennen und müßte deutlich weniger Platz für den Gang aufbringen.
Als erstes würde ich mich mit einem Installateur beraten, ob es irgendeine Möglichkeit gäbe, auch auf die andere Seite Wasser/Abwasser legen zu lassen. Vielleicht ist da in der Whg darunter ebenfalls ein Wasseranschluss den man ggf. durch die Decke nach oben legen kann.
Wenn der Kniestock nicht angehoben werden soll, würde ich mich auf ein Kinderzimmer beschränken, sonst wird das alles winzig. Lieber eine gut geschnittene Dreizimmerwohnung als eine frickelige Vier(winzlings)Zimmerwohnung. Die Maße der Grundfläche sind mit soviel Dachschräge vernachlässigbar, man muß die großen Dachschrägen einfach mit einberechnen.
Wenn das mit einem weiteren Wasseranschluss nicht klappt, dann stört mich am meisten, daß das Bad zwingend hinter der Küche ist und bei der momentanen Aufteilung man immer, um vom Schlafzimmer ins Bad zu kommen, durch den gesamten Wohnbereich latschen muß. Sehr blöd, insbesondere dann, wenn einer schon im Bett ist der andere aber mit Besuch im Wohnzimmer oder Küche sitzt. Ich muß meine Nachtwäsche nicht unbedingt öffentlich vorführen...
Daher hätte ich folgenden Vorschlag (auf Kosten eines zweiten Kinderzimmers, aber dafür hat man etwas Stauraum in der Whg gewonnen):
Eingang verlegen, dann kann ein Gang (auch wenn er schmal ist; ggf, mit einer Glaskuppel erhellen) eingefügt werden. Schlafzimmer und Kinderzimmer müssen nicht mehr durch den Wohnbereich zum Bad. Nach deinem neuem Grundriss gehe ich davon aus, daß die Fenster zum Balkon neu gemacht werden könnten, denn wenn mich nicht alles täuscht, wäre die von dir neu eingezogene Wand zwischen Schlafzimmer und WZ genau im existierenden Fenster; die Freiheit habe ich mir auch genommen.
Letztendlich käme eine für ein Paar gut passende Whg heraus mit einem dritten Zimmer, das fast ausschließlich aus Dachschrägen bestünde. Gut als Büro nutzbar, aber ob ich ein Kind da bis zum Teenageralter drin groß ziehen möchte, weiß ich nicht.
Leider kann man deine Dateien nicht herunter laden und dentsprechend ausdrucken (also bei mir hat's nicht geklappt), daher habe ich den Grundriss wackelig am Bildschirm abgepaust. Entsprechend wackelig ist die Skizze geowrden. Maße wären hilfreich, wurde hier schon mehrfach angesprochen.
Aber mal als Idee einer ganz anderen Aufteilung (wo die Türe in den Wohn/Essbereich am besten platziert ist, kann gerne noch diskutiert werden, oder ob zwei Türen Sinn machen etc.)
Sollte die Möglichkeit bestehen, in dem Bereich, ind dem sich jetzt Abstell/Kinderzimmer/Schlafzimmer befindet doch noch einen Wasseranschluss legen zu können, wäre das die bessere Lösung und man könnte dann sehr gut in einen priv. (Bad/Kinderzimmer/Schlafzimmer) und öffentlichen Bereich (WC/Küche/Essen/Wohnen) trennen und müßte deutlich weniger Platz für den Gang aufbringen.
Ähnliche Themen