Grundriss - Hausplanung durch Bauingeneur durchgeführt

4,00 Stern(e) 3 Votes
Zuletzt aktualisiert 20.11.2025
Sie befinden sich auf der Seite 4 der Diskussion zum Thema: Grundriss - Hausplanung durch Bauingeneur durchgeführt
>> Zum 1. Beitrag <<

L

Legurit

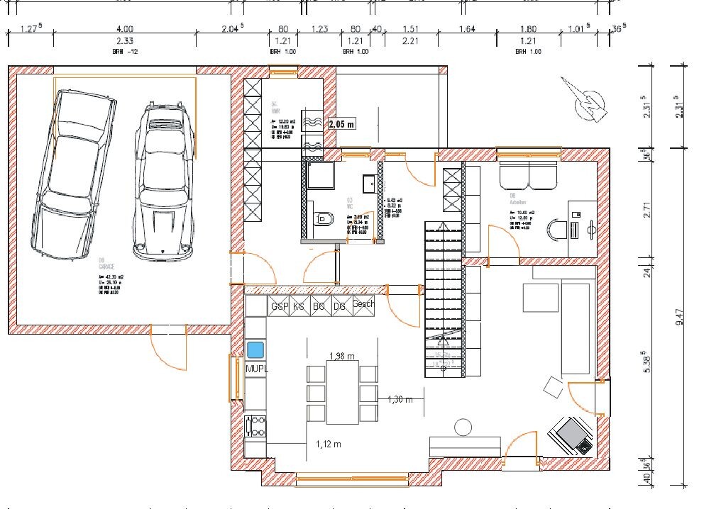
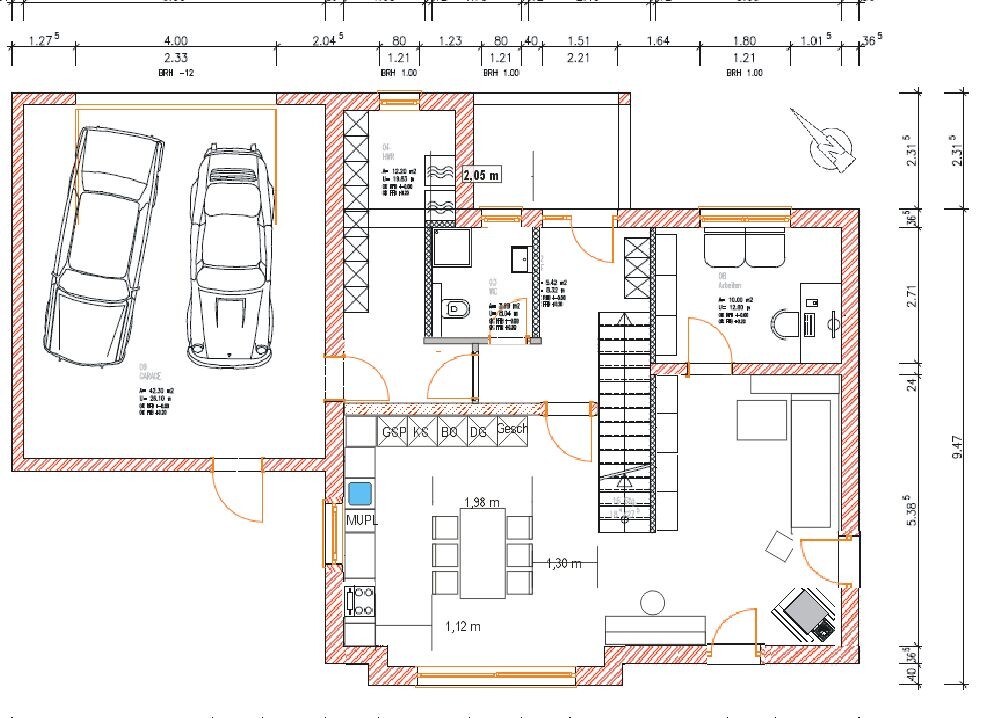
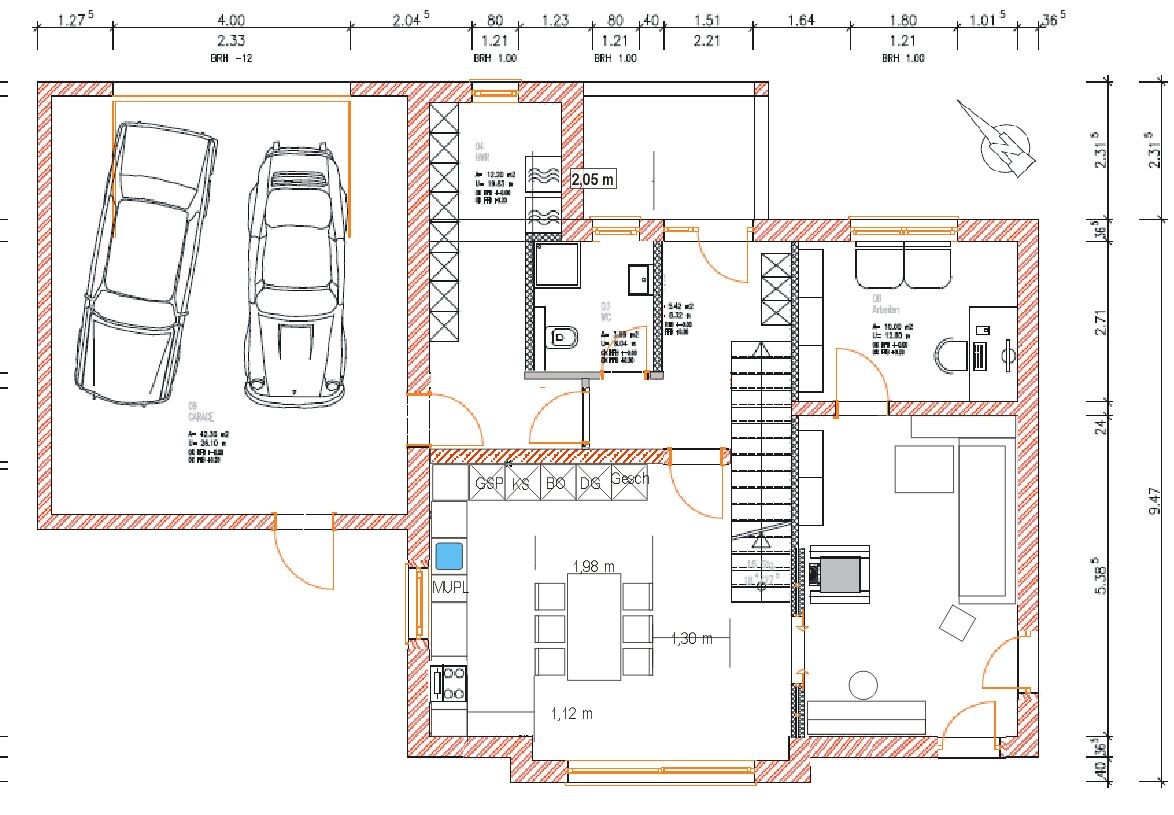
Wieso dann diese Treppe? Hab ja schon gehört das man alles Kochinsel und Ankleide opfert; Treppe ist neu...
 
kbt09

kbt09

Du könntest ja


das bodentiefe Fenster, das ich rechts vom Klavier geplant habe nach links setzen und das Klavier nach rechts.

Und, sitzt man wirklich so oft auf dem sofa und guckt in den Garten?

Das WC würde ich nicht unters Fenster setzen.

Man könnte den Erker (warum eigentlich? warum nicht das ganze Haus um diese 36 cm tiefer machen?) noch weiter nach links setzen und den Kamin dann vielleicht unten rechts in die Ecke ... könnte allerdings blöd mit dem Schornstein aussehen :oops: Dann ohne Trenntür zum Wohnbereich .. dann hat man vom Sofa aus auch noch etwas vom großen Fenster.

Grundriss eines Einfamilienhauses mit Garage, Küche, Essbereich, Wohnzimmer und Treppe.
 
Y

ypg

Der Flur ist aufgrund der Treppe sehr geräumig
dann nehmt eine andere, wo man mehr Wohnfläche gewinnt!

Ich verstehe ja vieles - aber ich verstehe es nicht, wenn man sich stoisch an diesen "geraden Treppen-Hype" klammert, wenn andere Varianten mehr Wohn- und weniger Verkehrsfläche abgeben.

Bei Euch haben die Pkws mehr Platz als die Kinder :(
 
M

Manu1976

im Sommer ist ein großer Garten mit Sicherheit viel Wert. Wobei wir im Sommer erst gegen Abend oder späten Nachmittag rausgehen, weil es sonst einfach viel zu heiß ist. Und nicht zu vergessen, das Schmuddelwetter in Herbst, Winter und Frühling. Ich finde Kinderzimmer sollten schon mindestens 12m2 haben. Es müssen keine Riesenzimmer sein, aber so, dass sich die Kinder da auch mal eine Legostadt mit Freunden aufbauen können und diese auch mal 3,4 Tage stehen lassen dürfen ohne dass jemand immer drüber fällt, um an den Schrank oder ins Bett zu kommen. Unsere 3 Kinderzimmer haben jeweils um die 16m2 und kleiner hätte ich persönlich nicht geplant (je Zimmer 1,50m Kleiderschrank, normales Bett, Schreibtisch und noch 2-3 kleine Schränke und Regale für Spielsachen, Bücher und Schulsachen - da bleibt nicht mehr viel Fläche zum spielen.)
 
Kisska86

Kisska86

Ich wollte zu Beginn auch eine gerade Treppe! Ist halt "modern" zur Zeit wie ypg schon sagte... Aber das erste was unser Architekt sagte war: "Quadratisches Haus mit gerade Treppe funktionieren nicht gut!" Wir haben direkt davon Abstand genommen...
Ihr habt fast 30qm Flur! Das ist fast genauso viel wie alle Kinderzimmer zusammen! Ist euch das bewusst? Wozu braucht ihr überhaupt drei Kinderzimmer oben und dann auch noch das Zimmer unten?
 
Zuletzt aktualisiert 20.11.2025
Im Forum Grundrissplanung / Grundstücksplanung gibt es 2535 Themen mit insgesamt 87978 Beiträgen


Ähnliche Themen zu Grundriss - Hausplanung durch Bauingeneur durchgeführt
Nr.ErgebnisBeiträge
1Umbau Kinderzimmer - Fenster in zwei Fenster aufteilen? 20
2Grundrissfrage, Treppe, Fenster, Ausrichtung 12
3Bodentiefe Fenster - wie Sofa stellen? 12
4Grundrissfrage, Garage, Treppe - Seite 533
5Grundrissplanung Hanghaus mit 5 Kinderzimmer - Seite 4370
6Einrichtung Kinderzimmer - Wie sollen wir die gestalten? - Seite 215
7Bodentiefe Fenster - Warum bodentiefe Fenster? Vor- Nachteile? - Seite 3112
8OG Stadtville optimieren. Fenster Bodentief - Seite 13104
9Grundriss Einfamilienhaus 155m², ohne Keller, 3 Kinderzimmer, 1 Büro - Seite 538
10 Küchenplanung mit tiefen Fenster - Seite 243
11Grundriss Stadtvilla / Anordnung Fenster, Feedback erwünscht - Seite 216
12Meinung zum Grundriss eines geplanten Bauhauses 23
13Wohin mit der Treppe? Dachausbau Walmdachbungalow - Seite 319
14Grundriss Einfamilienhaus geplant, Fenster gefallen uns - Seite 343
15Jalousien in Kinderzimmer und Bad auf der Südseite 12
16Größe vom Schlafzimmer und Kinderzimmer 38
17Aufmusterung Elektro, Q2, Badfliesen, Drempel, bodentiefe Fenster 23
18Kinderzimmer in Dachgeschoss zu klein geplant? - Seite 233
19Kinderzimmer im Obergeschoss bis zum Dach offen 25
20Kinderzimmer mit bodentiefen Fenstern 22

Oben