
kbt09
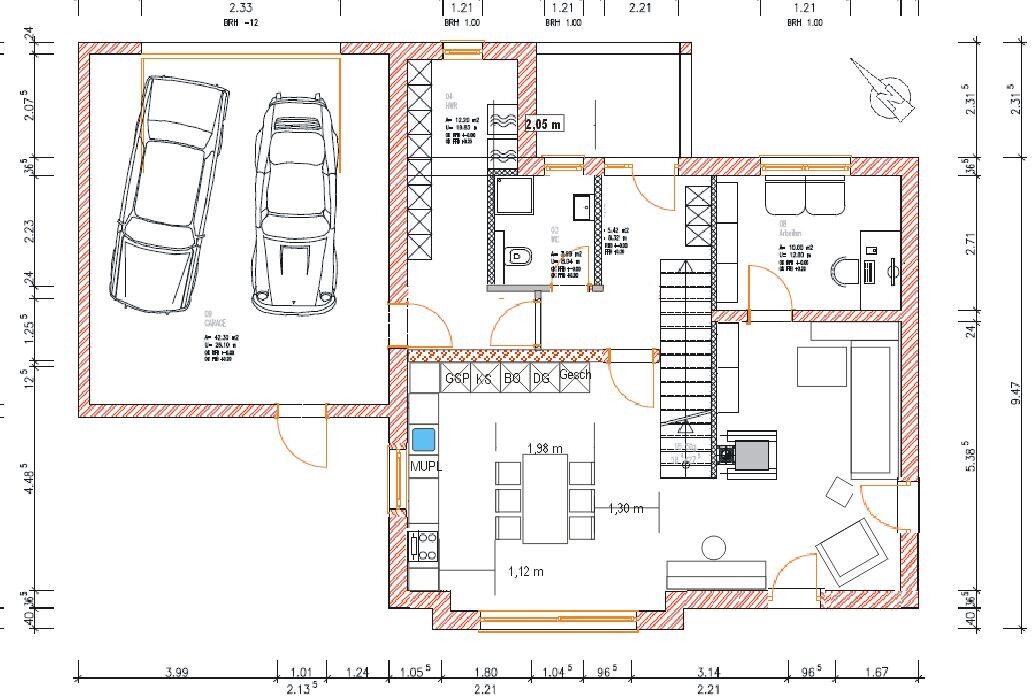
Ich habe mal eine Variante 3 erstellt ... Kamin wieder da, wo er war und dazu das OG noch etwas angepaßt.
320 für ein Doppelbett ist etwas wenig, daher Schlafraum und schrankraum getauscht. 214 cm für den Schrankraum .. nicht so üppig, aber es sollte passen.Ob das Fenster planoben sein muss ... man könnte auch die Schränke durchziehen. So sind es jetzt mal 5 m Schrank und etwas Kommode vorm Fenster.
betten auf knapp 210 cm verlängert, Jugendbetten auf 100 cm verbreitert. Räume angepaßt, den Flur planunten den Kinderzimmern zugeschlagen. Alle Kinderzimmer jetzt so, dass dann später auch mal 140 cm breite Jugendbetten passen
.
Im Flur OG planoben dann unter dem Fenster noch eine Handtuchkommode fürs Bad geplant bzw. hier könnte auch etwas Bettwäsche für alle lagern.
Fenster und Erker OG sind jetzt dem EG angepaßt.
320 für ein Doppelbett ist etwas wenig, daher Schlafraum und schrankraum getauscht. 214 cm für den Schrankraum .. nicht so üppig, aber es sollte passen.Ob das Fenster planoben sein muss ... man könnte auch die Schränke durchziehen. So sind es jetzt mal 5 m Schrank und etwas Kommode vorm Fenster.
betten auf knapp 210 cm verlängert, Jugendbetten auf 100 cm verbreitert. Räume angepaßt, den Flur planunten den Kinderzimmern zugeschlagen. Alle Kinderzimmer jetzt so, dass dann später auch mal 140 cm breite Jugendbetten passen
Im Flur OG planoben dann unter dem Fenster noch eine Handtuchkommode fürs Bad geplant bzw. hier könnte auch etwas Bettwäsche für alle lagern.
Fenster und Erker OG sind jetzt dem EG angepaßt.