ᐅ Grundriss für 137m^2 Bungalow Optimierung
Erstellt am: 11.02.21 08:59
erwin9311.02.21 08:59
Hallo zusammen,
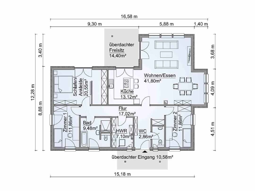
wir planen im Juni/Juli mit unserem Bau zu beginnen. Unser Architekt ist momentan an den Zeichnungen dran und deshalb wollte ich mich hier mir einklinken und nach euren Ideen/Verbesserungsvorschlägen zu meinem Grundriss zu fragen. Es sind momentan keine Maße etc drinnen, da es momentan rein um die Zimmeraufteilung geht. Hat eventuell jemand eine Idee, den Flur von 16/17qm zu verkleinern und irgendwie noch an einem Zimmer dafür ein wenig Wohnfläche rauszuholen? Was sollte/könnte man noch am Grundriss optimieren? Ich werde sobald Zeichnungen vorhanden sind, alles hier hochladen und werde euch auch während des Bau´s auf dem laufenden halten. Da viel Eigenleistung geplant ist
Bebauungsplan/Einschränkungen
Größe des Grundstücks: 1007qm
Hang: 0,8m Gefälle auf 22m Breite
Grundflächenzahl: -
Geschossflächenzahl: -
Baufenster, Baulinie und -grenze:
Randbebauung: Nein
Anzahl Stellplatz: 2
Geschossigkeit: 1
Dachform: Walmdach
Stilrichtung: Modern
Ausrichtung: Süden
Maximale Höhen/Begrenzungen: Keine Vorgabe
weitere Vorgaben:
Anforderungen der Bauherren
Stilrichtung, Dachform, Gebäudetyp: Oben genannt
Keller, Geschosse: 1 ohne Keller
Anzahl der Personen, Alter: 28+30 und 2 Kinder 7+2
Gebaut wird im Westerwald, also in einer noch relativ günstigen Gegend. Grundstück ist bereits in unserem Besitz.
Einkommenssituation: Ich denke dürfte hier keine Rolle spielen, wir haben 320.000€ Eigenkapital und deshalb soll der Hausbau nur aus Eigenkapital gestemmt werden.
Eigenleistung: Erdarbeiten, Elektro, Heizung + Sanitär, Estrich, Fliesen, Bodenbeläge, Malerarbeiten wird in Eigenleistung gemacht, ( Eigenleistungsgewerke werden durch Famile und mich übernommen, da in der engen Familie die Unternehmen vorhanden sind, ist auch soweit schon alles abgeklärt, außerdem steht mit sehr viel Zeit zur Verfügung), Rest wird an örtliche Unternehmen übergeben. Einsparung durch Eigenleistung dürfte sich auf etwa 45.000€ belaufen lt. Architekt.
Raumbedarf im EG, OG: Wir wohnen momentan auf deutlich weniger mit 5 Personen (100qm) deshalb wären die 137qm schon eine enorme Steigerung für uns.
Büro: Büro ist mit Umkleider kombiniert
Schlafgäste pro Jahr: 2-3x im Jahr
moderne Bauweise
offene Küche, Kochinsel: Ja
Anzahl Essplätze: 8
Kamin: Ja mit Außenrohr
Musik/Stereowand: nein
Balkon, Dachterrasse: nein
Garage, Carport: Ja
Nutzgarten, Treibhaus: Nein
weitere Wünsche/Besonderheiten/Tagesablauf: Aus dem Elternschlafzimmer und Wohnzimmer soll man auf eine überdachte Terrasse gehen können.
Hausentwurf
Von wem stammt die Planung: Von mir
Preisschätzung lt Architekt/Planer: 310.000€
Persönliches Preislimit fürs Haus, inkl Ausstattung: 320.000
favorisierte Heiztechnik: Luftwärmepumpe
Wenn Ihr verzichten müsst, auf welche Details/Ausbauten
-könnt Ihr verzichten:
-könnt Ihr nicht verzichten: Luftwärmepumpe, Überdachte Terrasse, Kamin, Küche mit Insel
Warum ist der Entwurf so geworden, wie er jetzt ist? ZB
Standardentwurf vom Planer: Ist meine bisherige Idee nach1 Jahr Planung und 100erten Änderungen
Entsprechende/Welche Wünsche wurden vom Architekten umgesetzt: Architekt erstellt momentan noch die Zeichnungen

wir planen im Juni/Juli mit unserem Bau zu beginnen. Unser Architekt ist momentan an den Zeichnungen dran und deshalb wollte ich mich hier mir einklinken und nach euren Ideen/Verbesserungsvorschlägen zu meinem Grundriss zu fragen. Es sind momentan keine Maße etc drinnen, da es momentan rein um die Zimmeraufteilung geht. Hat eventuell jemand eine Idee, den Flur von 16/17qm zu verkleinern und irgendwie noch an einem Zimmer dafür ein wenig Wohnfläche rauszuholen? Was sollte/könnte man noch am Grundriss optimieren? Ich werde sobald Zeichnungen vorhanden sind, alles hier hochladen und werde euch auch während des Bau´s auf dem laufenden halten. Da viel Eigenleistung geplant ist
Bebauungsplan/Einschränkungen
Größe des Grundstücks: 1007qm
Hang: 0,8m Gefälle auf 22m Breite
Grundflächenzahl: -
Geschossflächenzahl: -
Baufenster, Baulinie und -grenze:
Randbebauung: Nein
Anzahl Stellplatz: 2
Geschossigkeit: 1
Dachform: Walmdach
Stilrichtung: Modern
Ausrichtung: Süden
Maximale Höhen/Begrenzungen: Keine Vorgabe
weitere Vorgaben:
Anforderungen der Bauherren
Stilrichtung, Dachform, Gebäudetyp: Oben genannt
Keller, Geschosse: 1 ohne Keller
Anzahl der Personen, Alter: 28+30 und 2 Kinder 7+2
Gebaut wird im Westerwald, also in einer noch relativ günstigen Gegend. Grundstück ist bereits in unserem Besitz.
Einkommenssituation: Ich denke dürfte hier keine Rolle spielen, wir haben 320.000€ Eigenkapital und deshalb soll der Hausbau nur aus Eigenkapital gestemmt werden.
Eigenleistung: Erdarbeiten, Elektro, Heizung + Sanitär, Estrich, Fliesen, Bodenbeläge, Malerarbeiten wird in Eigenleistung gemacht, ( Eigenleistungsgewerke werden durch Famile und mich übernommen, da in der engen Familie die Unternehmen vorhanden sind, ist auch soweit schon alles abgeklärt, außerdem steht mit sehr viel Zeit zur Verfügung), Rest wird an örtliche Unternehmen übergeben. Einsparung durch Eigenleistung dürfte sich auf etwa 45.000€ belaufen lt. Architekt.
Raumbedarf im EG, OG: Wir wohnen momentan auf deutlich weniger mit 5 Personen (100qm) deshalb wären die 137qm schon eine enorme Steigerung für uns.
Büro: Büro ist mit Umkleider kombiniert
Schlafgäste pro Jahr: 2-3x im Jahr
moderne Bauweise
offene Küche, Kochinsel: Ja
Anzahl Essplätze: 8
Kamin: Ja mit Außenrohr
Musik/Stereowand: nein
Balkon, Dachterrasse: nein
Garage, Carport: Ja
Nutzgarten, Treibhaus: Nein
weitere Wünsche/Besonderheiten/Tagesablauf: Aus dem Elternschlafzimmer und Wohnzimmer soll man auf eine überdachte Terrasse gehen können.
Hausentwurf
Von wem stammt die Planung: Von mir
Preisschätzung lt Architekt/Planer: 310.000€
Persönliches Preislimit fürs Haus, inkl Ausstattung: 320.000
favorisierte Heiztechnik: Luftwärmepumpe
Wenn Ihr verzichten müsst, auf welche Details/Ausbauten
-könnt Ihr verzichten:
-könnt Ihr nicht verzichten: Luftwärmepumpe, Überdachte Terrasse, Kamin, Küche mit Insel
Warum ist der Entwurf so geworden, wie er jetzt ist? ZB
Standardentwurf vom Planer: Ist meine bisherige Idee nach1 Jahr Planung und 100erten Änderungen
Entsprechende/Welche Wünsche wurden vom Architekten umgesetzt: Architekt erstellt momentan noch die Zeichnungen
ypg11.02.21 09:40
Wo ist denn Norden, wie ist das Grundstück?
Bei der langen Form und der eher schlechten Raumaufteilung liegt die Frage nach dem Grundstück, Anfahrt, Ausrichtung etc auf der Hand.
Erinner mich etwas an . Steffi genießt aber der langen Flur 🙂
Ich finde an dem Entwurf einiges sehr unglücklich, das fängt an bei dem TK-Raum und den 2 Türen, deren Form und Größe sich nicht als Durchgangszimmer eignet. Auch Büro/Ankleide in Kombi mit der Planung, auch noch den doppelt belegten Raum als Durchgangszimmer zu planen.
Nochmal: ihr belegt Miniräume wie TK als Hauswirtschaftsraum, Büro als Ankleide doppelt und wollt sie noch als Durchgang für wichtige Zimmer nehmen. Das kann auf Dauer nicht befriedigend funktionieren.
Dann sehe ich am Endflügel die Küche, ziemlich weit weg von Wischmop oder dem Elektrogerät aus einem Abstellraum, den es auch eigentlich nicht gibt.
Gib bitte mal ein paar Erklärungen, was Du Dir da so gedacht hast. Am fehlenden Budget kann es ja nicht liegen. Ich würde dem Haus mal wenige QM mehr gönnen, und einem Plan, wo Nebenräume bewusst und sinnvoll eingeplant werden, zb auf dem ausgebauten Dachboden.
Bei der langen Form und der eher schlechten Raumaufteilung liegt die Frage nach dem Grundstück, Anfahrt, Ausrichtung etc auf der Hand.
Erinner mich etwas an . Steffi genießt aber der langen Flur 🙂
Ich finde an dem Entwurf einiges sehr unglücklich, das fängt an bei dem TK-Raum und den 2 Türen, deren Form und Größe sich nicht als Durchgangszimmer eignet. Auch Büro/Ankleide in Kombi mit der Planung, auch noch den doppelt belegten Raum als Durchgangszimmer zu planen.
Nochmal: ihr belegt Miniräume wie TK als Hauswirtschaftsraum, Büro als Ankleide doppelt und wollt sie noch als Durchgang für wichtige Zimmer nehmen. Das kann auf Dauer nicht befriedigend funktionieren.
Dann sehe ich am Endflügel die Küche, ziemlich weit weg von Wischmop oder dem Elektrogerät aus einem Abstellraum, den es auch eigentlich nicht gibt.
Gib bitte mal ein paar Erklärungen, was Du Dir da so gedacht hast. Am fehlenden Budget kann es ja nicht liegen. Ich würde dem Haus mal wenige QM mehr gönnen, und einem Plan, wo Nebenräume bewusst und sinnvoll eingeplant werden, zb auf dem ausgebauten Dachboden.
erwin9311.02.21 09:43
Deshalb bin ich hier, ich bin Laie in den folgenden Themen, was die Zimmeraufteilung betrifft, da wir auf sehr engem Raum wohnen. Das Problem mit dem Büro / Ankleide ist, dass ich mir nicht sicher war, wie ich diese Sinnvoll vom Schlafzimmer trennen kann, ohne dass ich den Flur noch länger mache. Hier noch Anhang mit Straße und Ausrichtung.

haydee11.02.21 09:54
Ich hänge an den gleichen Punkten wie YPG.
137 qm sind nicht so großzügig. Oft sind bei Wohnungen, Wäsche, Abstellraum, Haustechnik separat
Warum ist die Terrasse so schattig geplant
137 qm sind nicht so großzügig. Oft sind bei Wohnungen, Wäsche, Abstellraum, Haustechnik separat
Warum ist die Terrasse so schattig geplant
erwin9311.02.21 09:57
Den Dachboden wollten wir ungern ausbauen, da wir schon alles altersgrecht auf einer Etage haben wollen. Die Überdachte Terrasse ist für´s schlechte Wetter geplant. Die Terrasse soll allerdings auch an der gesamten (Ost)Hauslänge entlang "verlängert" werden, damit wir im Sommer nicht immer im Schatten sitzen. Evtl, die überdachte Terrasse wegfallen lassen und den Raum noch irgendwie für das Haus ausnutzen? Und nachher einfach einfach eine Art "Pavilion" hinters Haus stellen, damit hätten wir auch eine überdachte Terrasse.
haydee11.02.21 10:09
Für's Alter sagt sich immer so leicht. In welchen Zustand meinst du bist du bei "Für's Alter"
Der Bungalow, so wie geplant, ist nicht geeignet, sobald jemand mehr als nur Probleme beim Treppensteigen hat.
Ihr braucht jetzt Arbeitszimmer, Kinderzimmer und mehr Abstellfläche. Warum das Dach ungenutzt lassen? Euch fehlt eine Garderobe, Abstellraum, HT und Wäsche wird knapp. Arbeitszimmer mit Kleiderschrank als Durchgangsraum.
Warum plant ihr nicht das Dach mit ein? Großzügiger Elterntrakt kann ja trotzdem unten bleiben, so dass ihr später einen Bungalow habt.
Zeichne immer alle vorhandenen und gewünschten Möbeln im Maßstab ein. Beim Tisch gleich den Platz für besetzte Stühle berücksichtigen. Was auf Karopapier nicht funktioniert, funktioniert auch in Realität nicht. Plötzlich landet doch noch die Waschmaschine im Bad, weil die HT ein paar Zentimeter mehr benötigt hat.
Der Bungalow, so wie geplant, ist nicht geeignet, sobald jemand mehr als nur Probleme beim Treppensteigen hat.
Ihr braucht jetzt Arbeitszimmer, Kinderzimmer und mehr Abstellfläche. Warum das Dach ungenutzt lassen? Euch fehlt eine Garderobe, Abstellraum, HT und Wäsche wird knapp. Arbeitszimmer mit Kleiderschrank als Durchgangsraum.
Warum plant ihr nicht das Dach mit ein? Großzügiger Elterntrakt kann ja trotzdem unten bleiben, so dass ihr später einen Bungalow habt.
Zeichne immer alle vorhandenen und gewünschten Möbeln im Maßstab ein. Beim Tisch gleich den Platz für besetzte Stühle berücksichtigen. Was auf Karopapier nicht funktioniert, funktioniert auch in Realität nicht. Plötzlich landet doch noch die Waschmaschine im Bad, weil die HT ein paar Zentimeter mehr benötigt hat.
Ähnliche Themen