Hallo,
nach ein bißchen mitlesen möchte ich den momentanen Stand unsere Planungen präsentieren.
Grundstück ist geerbt, nähe Wien in Österreich, sehr gute Verkehrsanbindung. Endgültige Entscheidung dort zu bauen ist noch nicht gefallen. Ca. 90%.
Bestand wird abgerissen. Weiternutzung unmöglich.
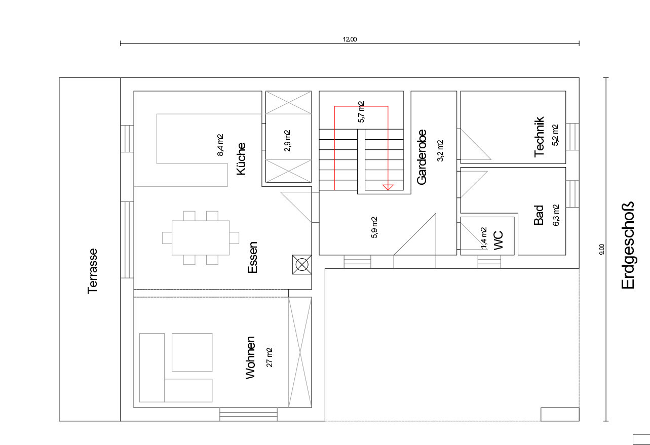
Am Plan, der genordet ist:
rot: das Grundstück, Zufahrt via Weg grün, Haus wäre momentan am blauen Standpunkt. Bestehendes Gebäude Gelb als Garage und Kellerersatz.
auf der westlichen Grundstücksgrenze Bestandsbau vom Nachbarn, hohe landwirtschaftliche Lagerhallen.
2 Vollgeschosse möglich.
"geschlossene Bauweise" ist ein Muss. d.h. mindestens an eine Seite anbauen, an die andere Seite zumindest mittels Mauer/Tor o.ä.
Grundstück ist an der schmalsten Stelle, ganz nördlich, exakt 12m breit. Eine Durchfahrtsmöglichkeit wäre nett (auch wegen bestehender Garage), daher 9m maximale Breite des Hauses.
Größe des Grundstücks: 630m²
Hang: nein, nur sehr leicht abfallend
kein Keller, zusätzliche Garage vorhanden/geplant, siehe gelbe Markierung am Plan.
2, Geschosse, hoher Kniestock.
momentan 2 Erwachsene, 34 und 35. 1-2 Kinder geplant.
gewünschte Räume:
Wünsche:
Wohnzimmer / Essen / Küche, mit Kamin
Speis / Abstellraum
WC+Dusche
Vorraum/Garderobe
Technikraum
Ausgang zur Terrasse
Schlafzimmer + Ankleide
1 Kinderzimmer
Büro zur Homeoffice Nutzung
Bad, WC getrennt.
Abstellzimmer/Waschmaschine
Ausgang zu Balkon
Gäste: eher selten, ausziehbare Couch im Büro ausreichend.
Stilrichtung: klassisch-modern, Satteldach
unbedingt offene Küche, Insel wäre nett, 6 Essplätze, mit Möglichkeit auf mehr.
"normale" Wohnzimmerwand mit TV, nichts besonderes.
Größe: 140-170m²
momentaner Hausentwurf:
vom Planer eines Holzbauunternehmens
eigentlich sind wir schon recht zufrieden damit, ist die 3. Iteration... Eingangsbereich/Garderobe braucht vielleicht noch etwas Feinschliff. Ein Kinderzimmer würden wir als Büro nutzen.
hat ca. 155m² Wohnfläche.
400.000,- Budget fürs Haus, Schlüsselfertig.
Heiztechnik: Wärmepumpe
Wenn Ihr verzichten müsst, auf welche Details/Ausbauten
-könnt Ihr verzichten: Obergeschoss ist eher noch flexibel, schrankraum o.ä kein Muss. Überdachter Auto-Abstellplatz war keine Vorgabe, hat sich ergeben.
-könnt Ihr nicht verzichten: offener Wohnraum, mit Terrasse.
Offene Fragen: Grundsätzliche Kommentare sind erwünscht. Meinungen zur Raumaufteilung?
Aber genauso wären ganz andere Ansätze für das doch sehr schmale Grundstück interessant.
Grundstück:



Herzlichen Dank für die Unterstützung! :-
nach ein bißchen mitlesen möchte ich den momentanen Stand unsere Planungen präsentieren.
Grundstück ist geerbt, nähe Wien in Österreich, sehr gute Verkehrsanbindung. Endgültige Entscheidung dort zu bauen ist noch nicht gefallen. Ca. 90%.
Bestand wird abgerissen. Weiternutzung unmöglich.
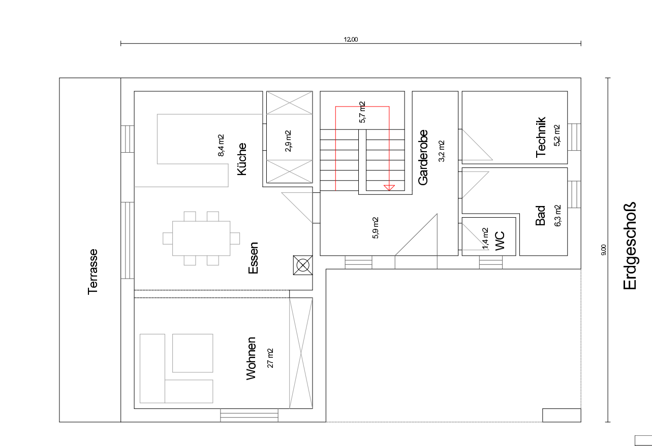
Am Plan, der genordet ist:
rot: das Grundstück, Zufahrt via Weg grün, Haus wäre momentan am blauen Standpunkt. Bestehendes Gebäude Gelb als Garage und Kellerersatz.
auf der westlichen Grundstücksgrenze Bestandsbau vom Nachbarn, hohe landwirtschaftliche Lagerhallen.
2 Vollgeschosse möglich.
"geschlossene Bauweise" ist ein Muss. d.h. mindestens an eine Seite anbauen, an die andere Seite zumindest mittels Mauer/Tor o.ä.
Grundstück ist an der schmalsten Stelle, ganz nördlich, exakt 12m breit. Eine Durchfahrtsmöglichkeit wäre nett (auch wegen bestehender Garage), daher 9m maximale Breite des Hauses.
Größe des Grundstücks: 630m²
Hang: nein, nur sehr leicht abfallend
kein Keller, zusätzliche Garage vorhanden/geplant, siehe gelbe Markierung am Plan.
2, Geschosse, hoher Kniestock.
momentan 2 Erwachsene, 34 und 35. 1-2 Kinder geplant.
gewünschte Räume:
Wünsche:
Wohnzimmer / Essen / Küche, mit Kamin
Speis / Abstellraum
WC+Dusche
Vorraum/Garderobe
Technikraum
Ausgang zur Terrasse
Schlafzimmer + Ankleide
1 Kinderzimmer
Büro zur Homeoffice Nutzung
Bad, WC getrennt.
Abstellzimmer/Waschmaschine
Ausgang zu Balkon
Gäste: eher selten, ausziehbare Couch im Büro ausreichend.
Stilrichtung: klassisch-modern, Satteldach
unbedingt offene Küche, Insel wäre nett, 6 Essplätze, mit Möglichkeit auf mehr.
"normale" Wohnzimmerwand mit TV, nichts besonderes.
Größe: 140-170m²
momentaner Hausentwurf:
vom Planer eines Holzbauunternehmens
eigentlich sind wir schon recht zufrieden damit, ist die 3. Iteration... Eingangsbereich/Garderobe braucht vielleicht noch etwas Feinschliff. Ein Kinderzimmer würden wir als Büro nutzen.
hat ca. 155m² Wohnfläche.
400.000,- Budget fürs Haus, Schlüsselfertig.
Heiztechnik: Wärmepumpe
Wenn Ihr verzichten müsst, auf welche Details/Ausbauten
-könnt Ihr verzichten: Obergeschoss ist eher noch flexibel, schrankraum o.ä kein Muss. Überdachter Auto-Abstellplatz war keine Vorgabe, hat sich ergeben.
-könnt Ihr nicht verzichten: offener Wohnraum, mit Terrasse.
Offene Fragen: Grundsätzliche Kommentare sind erwünscht. Meinungen zur Raumaufteilung?
Aber genauso wären ganz andere Ansätze für das doch sehr schmale Grundstück interessant.
Grundstück:
Herzlichen Dank für die Unterstützung! :-
S
sven.conzi08.10.17 13:20Wir bauen auch etwas schmaler (8,30 x 13). In der ersten Novemberwoche soll noch mit dem Bau begonnen werden.
Speisekammer würde ich durch Küchenschränke ersetzen. Es gibt Schränke für Getränkekisten und Besen/Putzmittelaufbewahrung. Dadurch wirkt die Wohnküche großzügiger.
WC im EG und OG sehr klein und eng.
Für was ein Bad im EG?
Schrankraum zu schmal. Kaum Platz zwischen den beiden Schrankreihen.
Arbeitsraum ist damit ein Büro oder Hauswirtschaftsraum gemeint?
Möbliert einmal alle Räume mit euren vorhandenen und zukünftig geplanten Möbeln durch.
WC im EG und OG sehr klein und eng.
Für was ein Bad im EG?
Schrankraum zu schmal. Kaum Platz zwischen den beiden Schrankreihen.
Arbeitsraum ist damit ein Büro oder Hauswirtschaftsraum gemeint?
Möbliert einmal alle Räume mit euren vorhandenen und zukünftig geplanten Möbeln durch.
Man glaubt kaum, dass die beiden dargestellten Etagen zum selben Haus gehören sollen. Oben gibts großzügige Kinderzimmer mit Balkon als teures Goodie sowie insgesamt >14qm für Bad.
Und unten wird Wohnen/Essen/Kochen auf 35qm gequetscht. Der Technikraum mit 5.2qm hat Minimalgröße, wenns überhaupt reicht. Die Speis mit 3qm für 2-2,5m Regalfläche ist wiederum Platzverschwendung. Dafür im EG ~8qm Bad insgesamt - wozu?
Miss' mal die Einrichtung nach. Ecksofa mit 1,75x2m Schenkelmaß (viel Erfolg), der Esstisch ist keinen Meter tief und nen Stuhl 20cm ... Augenwischerei.
Sind übrigens keine 155qm, ich rechne 142qm. Oder wurden Treppen und ggf. Balkon mitgezählt?
Und unten wird Wohnen/Essen/Kochen auf 35qm gequetscht. Der Technikraum mit 5.2qm hat Minimalgröße, wenns überhaupt reicht. Die Speis mit 3qm für 2-2,5m Regalfläche ist wiederum Platzverschwendung. Dafür im EG ~8qm Bad insgesamt - wozu?
Miss' mal die Einrichtung nach. Ecksofa mit 1,75x2m Schenkelmaß (viel Erfolg), der Esstisch ist keinen Meter tief und nen Stuhl 20cm ... Augenwischerei.
Sind übrigens keine 155qm, ich rechne 142qm. Oder wurden Treppen und ggf. Balkon mitgezählt?
Das Haus soll wohl mit der langen Seite an das Nachbarhaus angelehnt werden? Es wäre gut, diese Grundstückskizze mal als Skizze mit Maßen und passendem Nordpfeil (damit man die Infos an einer Stelle hat) zu haben, auch wie lang das Nachbarhaus ist usw. Dabei auch geplantes Haus und Garage einskizzieren .. und wo da noch Platz für Durchfahrt sein soll.
Wozu soll im EG diese große Ecke mit Überdachung sein?
Wozu soll im EG diese große Ecke mit Überdachung sein?
kbt09 schrieb:
Wozu soll im EG diese große Ecke mit Überdachung sein?Das ist der Carport
Ähnliche Themen