ᐅ Planung Außenanlage - Terrasse positionieren
Erstellt am: 10.03.20 16:14
A
Alessandro10.03.20 16:14Hallo liebes Forum,
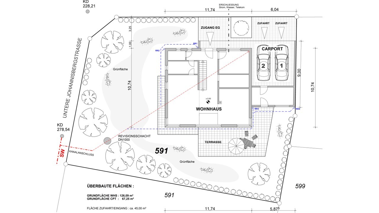
mein Name ist Alex und ich habe mich, nach bisher stillem Mitlesen, endlich dazu entschlossen mich hier anzumelden . Nachdem mein Einfamilienhaus bereits in der Ausbauphase steckt und wir am 1.4.2020 einziehen wollen, machen wir uns gerade Gedanken um eine Sinn- und stilvolle Gestaltung der Außenanlage...
vor allem geht es uns um die Positionierung der Terrasse, die (nicht wie im Plan eingezeichnet) eher Richtung Hauptgarten gerichtet sein soll.
Die nächste Frage wäre auch wie groß die Terrasse sein sollte. Ein Pool soll später auch noch Platz finden.
Nachdem das Haus schon klare Linien aufweist, will ich bei der Gartengestaltung etwas "mutiger" sein. Soll heißen, dass hier durchaus verspieltere Linien und aufgelöste Formen integriert werden können. Die Vorschläge der hiesigen Landschaftsgestalter haben uns bislang nicht gefallen.

Würde mich über eure Tipps und Anregungen sehr freuen.
liebe Grüße
Alex
mein Name ist Alex und ich habe mich, nach bisher stillem Mitlesen, endlich dazu entschlossen mich hier anzumelden . Nachdem mein Einfamilienhaus bereits in der Ausbauphase steckt und wir am 1.4.2020 einziehen wollen, machen wir uns gerade Gedanken um eine Sinn- und stilvolle Gestaltung der Außenanlage...
vor allem geht es uns um die Positionierung der Terrasse, die (nicht wie im Plan eingezeichnet) eher Richtung Hauptgarten gerichtet sein soll.
Die nächste Frage wäre auch wie groß die Terrasse sein sollte. Ein Pool soll später auch noch Platz finden.
Nachdem das Haus schon klare Linien aufweist, will ich bei der Gartengestaltung etwas "mutiger" sein. Soll heißen, dass hier durchaus verspieltere Linien und aufgelöste Formen integriert werden können. Die Vorschläge der hiesigen Landschaftsgestalter haben uns bislang nicht gefallen.
Würde mich über eure Tipps und Anregungen sehr freuen.
liebe Grüße
Alex
Wie sieht es denn aus?
Habt Ihr Kinder, braucht Ihr also eine Kinderecke? Was ist mit etwas Nutzfläche? Beerenobst, Obstbäume, Gemüsezucht?
Durch die Eckfenster kann man nicht gehen? Küche ist im Westen? Dort ist eine Terra-Tür? Und hier bei der Planung anfangen!
Wenn das so ist, sollte dort an der Küche auf jeden Fall die abendliche Essens-Runde und Grill eingeplant werden. Im Süden reicht ein Sonnenplateau, dort dann auch der Pool. Da kann das Plateau dann um den Pool halb herum, aber in Verbindung mit der anderen Terrasse*
Bepflanzung bzw weitere Einteilung würde ich dann erst machen, wenn grob feststeht, wie die Sichtachsen von drinnen zB vom sofa nach draußen sind etc.
Ach ja, und der Stil sollte auch etwas eingegrenzt werden. Entweder der Bauerngarten mit doch gradlinigen Hecken, gemischt mit Rosen oder doch eher Prärie bzw Gräser oder doch alles gemixt.
Was gefällt Dir jetzt an dem Entwurf vom Architekt nicht?
* ich mag ja die Kombi Terrassensteine und dann ein Plateau aus Holz, das eventuell oval oder um einen runden? Pool als Halbmond herum...
Habt Ihr Kinder, braucht Ihr also eine Kinderecke? Was ist mit etwas Nutzfläche? Beerenobst, Obstbäume, Gemüsezucht?
Durch die Eckfenster kann man nicht gehen? Küche ist im Westen? Dort ist eine Terra-Tür? Und hier bei der Planung anfangen!
Wenn das so ist, sollte dort an der Küche auf jeden Fall die abendliche Essens-Runde und Grill eingeplant werden. Im Süden reicht ein Sonnenplateau, dort dann auch der Pool. Da kann das Plateau dann um den Pool halb herum, aber in Verbindung mit der anderen Terrasse*
Bepflanzung bzw weitere Einteilung würde ich dann erst machen, wenn grob feststeht, wie die Sichtachsen von drinnen zB vom sofa nach draußen sind etc.
Ach ja, und der Stil sollte auch etwas eingegrenzt werden. Entweder der Bauerngarten mit doch gradlinigen Hecken, gemischt mit Rosen oder doch eher Prärie bzw Gräser oder doch alles gemixt.
Was gefällt Dir jetzt an dem Entwurf vom Architekt nicht?
* ich mag ja die Kombi Terrassensteine und dann ein Plateau aus Holz, das eventuell oval oder um einen runden? Pool als Halbmond herum...
H
hampshire10.03.20 18:03Ist das Grundstück topfeben? Wo stehen Nachbargebäude? Gibt es eine Aussicht in irgendeine Richtung?
Zu den Fragen von @ypg dazu: Wenn Kinder - wohin mit den Fahrrädern / Fahrzeugen,
Zu den Fragen von @ypg dazu: Wenn Kinder - wohin mit den Fahrrädern / Fahrzeugen,
Ich hab mal versucht dein Grundstück ungefähr einzuordnen.
Das Haus scheint ja eher modern zu sein (Eckfenster), da würde ich der Terrasse auch nicht zu barocke Formen geben.
Eine Idee (siehe Skizze) wäre für die Terrasse die Ausrichtung der Grundstücksgrenzen als Referenz anzunehmen.
Es ergeben sich eine südost Terrasse und eine südwest Terrasse
Bedenke auch, ein Pool braucht Technik und dafür mindestens Strom. Platz für die Poolreinigungsmittel ist aber auch in der Nähe nicht schlecht, daher würde ich den in der Nähe deines Abstellraums platzieren.

Das Haus scheint ja eher modern zu sein (Eckfenster), da würde ich der Terrasse auch nicht zu barocke Formen geben.
Eine Idee (siehe Skizze) wäre für die Terrasse die Ausrichtung der Grundstücksgrenzen als Referenz anzunehmen.
Es ergeben sich eine südost Terrasse und eine südwest Terrasse
Bedenke auch, ein Pool braucht Technik und dafür mindestens Strom. Platz für die Poolreinigungsmittel ist aber auch in der Nähe nicht schlecht, daher würde ich den in der Nähe deines Abstellraums platzieren.
Ähnliche Themen