Hallo zusammen,
aufgrund einer Baugrenze auf dem Grundstück kann das Haus nicht so gebaut werden wie zuerst geplant.
Nun haben wir in Eigenarbeit einen neuen Grundriss geplant.
Eure Meinungen bitte. Sollte man evtl noch etwas ändern/beachten?
Grundstück 369qm
Hausgröße 9x9 Meter
Haus bekommt einen Keller
Vielen Dank im voraus


aufgrund einer Baugrenze auf dem Grundstück kann das Haus nicht so gebaut werden wie zuerst geplant.
Nun haben wir in Eigenarbeit einen neuen Grundriss geplant.
Eure Meinungen bitte. Sollte man evtl noch etwas ändern/beachten?
Grundstück 369qm
Hausgröße 9x9 Meter
Haus bekommt einen Keller
Vielen Dank im voraus
H
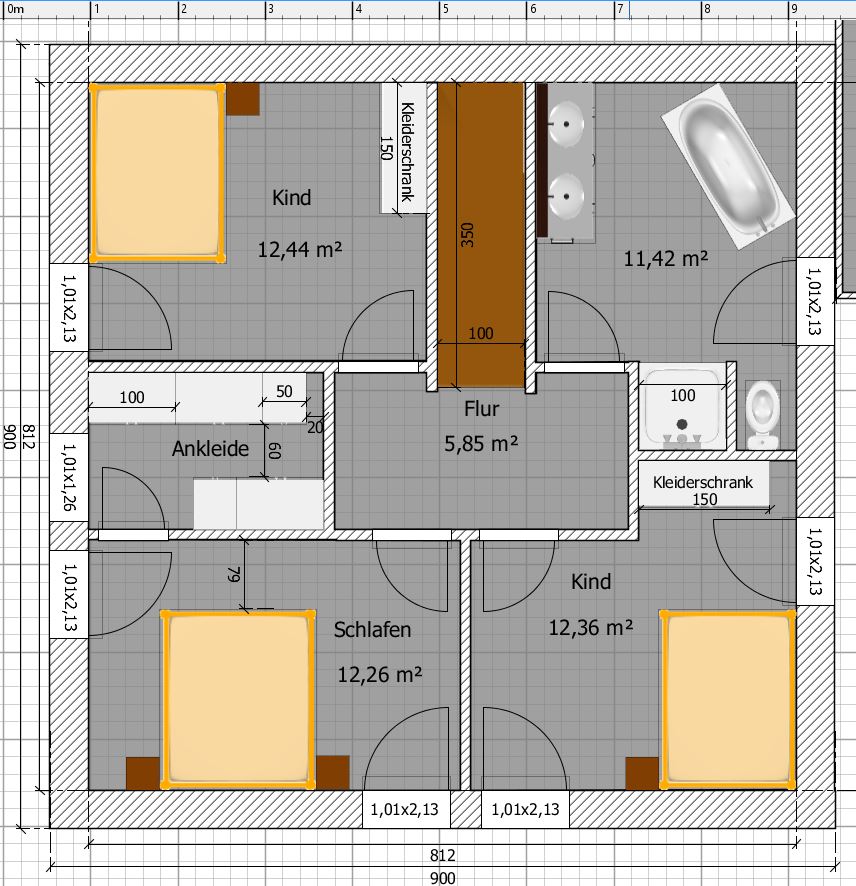
Häuslebau3r23.11.16 14:48konnte nur gerade mit dem Handy rein schauen und da viel mir direkt die 60cm zwischen den Schränken der Ankleide auf. Sowas geht gar nicht Alles weitere von mir dann mal vom PC aus.
Gruß
Gruß
R
RobsonMKK23.11.16 14:54Ankleide geht nicht, zu eng.
Gleiches Gilt für die Toilette im OG, ebenfalls zu eng.
Der Waschtisch im OG soll so sein das man schräg stehen muss?
Gleiches Gilt für die Toilette im OG, ebenfalls zu eng.
Der Waschtisch im OG soll so sein das man schräg stehen muss?
D
Doc.Schnaggls23.11.16 15:01Hallo,
so wirklich überzeugt mich der Grundriss nicht.
Schwierig zu beurteilen ist es auch, da eine umfassende Bemaßung oder auch eine Ausrichtung fehlt
Beim ersten mal drüber schauen sind mir folgende Punkte aufgefallen:
EG:
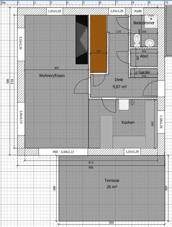
Türen von Abstellkammer, Bad und Kellertreppe öffnen in den Flur - potenzielle Unfallgefahr beim Öffnen von innen (Kinder?).
Dusche im Bad erscheint mir als sehr klein.
Tür zur Küche eher ungünstig gelöst - wenn die Möblierung so umgesetzt wird muss man erst mal mit in Richtung Wohn-/Essbereich abbiegen, dann die Türe schliessen und dann erst in die Küche laufen. Der Durchgang dürfte bei geöffneter Tür zu schmal sein. In dieser Konstellation würde ich die Tür sogar eher weglassen und durch den Wohn-/Essbereich gehen.
OG
60 cm, Durchgangsbreite in der Ankleide geht gar nicht - da kommt Du nicht mal mit einem Wäschekorb durch - ich bezweifle sogar, dass Du da die Schranktüren ganz öffnen kannst wenn keine Scheibetüren vorgesehen sind.
Wie groß ist das eingezeichnete Bett? Auch die 79 cm Durchgangsbreite hier sind grenzwertig - wenn hier noch ein Kopfteil und ein Rahmen am Bett abgezogen werden muss sind wir hier auch ganz schnell beim selben Problem wie in der Ankleide.
Der Flur wird sehr düster, wenn keine Oberlichter in den Türen vorgesehen sind.
"Platz" um die Toilette erscheint mir als eher zu schmal.
Wo ist die 2 m Linie? Zumindest am einen Waschbecken im Bad dürfte es mit der Stehhöhe spannend werden.
Das Kinderzimmer (planoben) mit nur einem Fenster dürfte von der Belichtung eventuell auch grenzwertig werden - hier sollte vielleicht noch über ein Doppelflügelfenster nachgedacht werden.
Sei mir nicht böse, aber insgesamt weist der Entwurf so viele schwierige Punkte auf, dass ich so nicht bauen würde.
Holt Euch professionelle Hilfe - am besten Ihr schreibt eine Art "Lastenheft" was Ihr unbedingt haben wollt und was Ihr gerne hättet und lasst Euch dann mal von den Ideen der Profis überraschen.
Grüße,
Dirk
so wirklich überzeugt mich der Grundriss nicht.
Schwierig zu beurteilen ist es auch, da eine umfassende Bemaßung oder auch eine Ausrichtung fehlt
Beim ersten mal drüber schauen sind mir folgende Punkte aufgefallen:
EG:
Türen von Abstellkammer, Bad und Kellertreppe öffnen in den Flur - potenzielle Unfallgefahr beim Öffnen von innen (Kinder?).
Dusche im Bad erscheint mir als sehr klein.
Tür zur Küche eher ungünstig gelöst - wenn die Möblierung so umgesetzt wird muss man erst mal mit in Richtung Wohn-/Essbereich abbiegen, dann die Türe schliessen und dann erst in die Küche laufen. Der Durchgang dürfte bei geöffneter Tür zu schmal sein. In dieser Konstellation würde ich die Tür sogar eher weglassen und durch den Wohn-/Essbereich gehen.
OG
60 cm, Durchgangsbreite in der Ankleide geht gar nicht - da kommt Du nicht mal mit einem Wäschekorb durch - ich bezweifle sogar, dass Du da die Schranktüren ganz öffnen kannst wenn keine Scheibetüren vorgesehen sind.
Wie groß ist das eingezeichnete Bett? Auch die 79 cm Durchgangsbreite hier sind grenzwertig - wenn hier noch ein Kopfteil und ein Rahmen am Bett abgezogen werden muss sind wir hier auch ganz schnell beim selben Problem wie in der Ankleide.
Der Flur wird sehr düster, wenn keine Oberlichter in den Türen vorgesehen sind.
"Platz" um die Toilette erscheint mir als eher zu schmal.
Wo ist die 2 m Linie? Zumindest am einen Waschbecken im Bad dürfte es mit der Stehhöhe spannend werden.
Das Kinderzimmer (planoben) mit nur einem Fenster dürfte von der Belichtung eventuell auch grenzwertig werden - hier sollte vielleicht noch über ein Doppelflügelfenster nachgedacht werden.
Sei mir nicht böse, aber insgesamt weist der Entwurf so viele schwierige Punkte auf, dass ich so nicht bauen würde.
Holt Euch professionelle Hilfe - am besten Ihr schreibt eine Art "Lastenheft" was Ihr unbedingt haben wollt und was Ihr gerne hättet und lasst Euch dann mal von den Ideen der Profis überraschen.
Grüße,
Dirk
Ähnliche Themen