ᐅ Grundriss-Entwurf Einfamilienhaus in Hanglage, Einliegerwohnung, Doppelgarage
Erstellt am: 15.03.21 08:16
A
Andreas94A
Andreas9415.03.21 08:16Guten Morgen liebe Foren Mitglieder,
wir haben am Wochenende unseren ersten Entwurf unseres Einfamilienhaus bekommen und sind hierüber zunächst sehr froh 🙂
Gerne möchten wir die ersten Skizzen hier teilen um uns ein Feedback von Erfahrenen Häuslebauern einzuholen.
Kurz zu den Randnotizen:
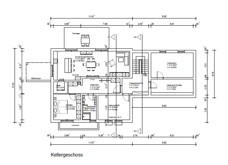
Aufgrund der Hanglage im Grundstück werden wir mit Keller bauen. Dort soll eine Einliegerwohnung / Heilpraktiker Praxis meiner Frau Platz finden.
Büro im EG bzw. DG ist zwingend nötig da ich regelmäßg (auch vor Corona) im Homeoffice tätig bin.
Wir planen derzeit ein Haus für 3 Kinder. Für mehr Platzbedarf wäre ein Ausbau über der Garage möglich.
Heizsystem wird eine Erd Sole-Wärmepumpe. Unsere Grundstücksfläche beläuft sich auf etwa 1200 m².
Auch zur Preiskalkulation möchte ich eine Auskunft geben. Hier haben wir folgende Berechnunggen vom Planer erhalten.
KFW 55 Haus
Wohnhaus: 1.145,917 m³ x 350 €/m³ =401.070,95 €
Garage: 511,66 m³ x 175 €/m€ =89.541,55 €
Baunebenkosten: 30.000 €
Die errechneten Werte für das Wohnhaus beinhalten keine Kosten für die Gebäudeeinrichtung. Ebenfalls nicht enthalten sind Eigenleistungen.
Über euer Feedback zu den Grundrissen freue ich mich.
Kritische Rückmeldung ausdrücklich gewünscht 🙂







wir haben am Wochenende unseren ersten Entwurf unseres Einfamilienhaus bekommen und sind hierüber zunächst sehr froh 🙂
Gerne möchten wir die ersten Skizzen hier teilen um uns ein Feedback von Erfahrenen Häuslebauern einzuholen.
Kurz zu den Randnotizen:
Aufgrund der Hanglage im Grundstück werden wir mit Keller bauen. Dort soll eine Einliegerwohnung / Heilpraktiker Praxis meiner Frau Platz finden.
Büro im EG bzw. DG ist zwingend nötig da ich regelmäßg (auch vor Corona) im Homeoffice tätig bin.
Wir planen derzeit ein Haus für 3 Kinder. Für mehr Platzbedarf wäre ein Ausbau über der Garage möglich.
Heizsystem wird eine Erd Sole-Wärmepumpe. Unsere Grundstücksfläche beläuft sich auf etwa 1200 m².
Auch zur Preiskalkulation möchte ich eine Auskunft geben. Hier haben wir folgende Berechnunggen vom Planer erhalten.
KFW 55 Haus
Wohnhaus: 1.145,917 m³ x 350 €/m³ =401.070,95 €
Garage: 511,66 m³ x 175 €/m€ =89.541,55 €
Baunebenkosten: 30.000 €
Die errechneten Werte für das Wohnhaus beinhalten keine Kosten für die Gebäudeeinrichtung. Ebenfalls nicht enthalten sind Eigenleistungen.
Über euer Feedback zu den Grundrissen freue ich mich.
Kritische Rückmeldung ausdrücklich gewünscht 🙂
A
Alessandro15.03.21 08:39ich sehe hier keine Heilpraktiker Praxis. Warteraum? Kundentoilette?
Budget:
Welche Eigenleistung willst du erbringen?
Es fehlen mind. 100 - 150 k
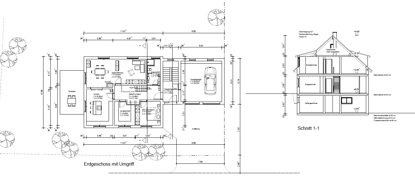
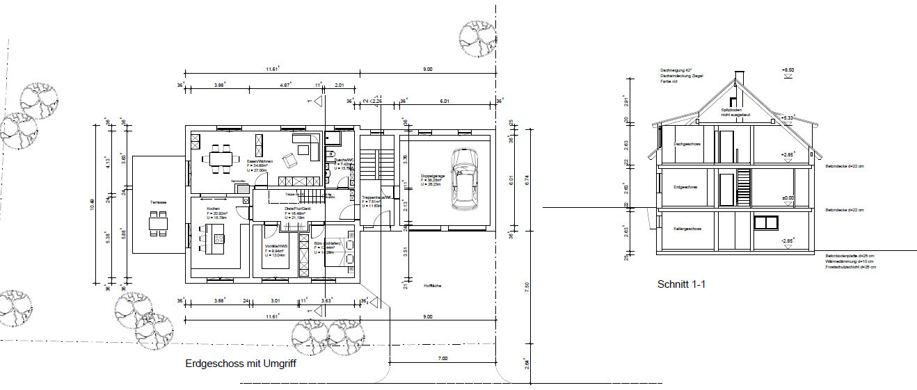
Die Praxis bekommt den Gartenzugang, der Wohnbereich bei 3 Kindern bekommt eine Terrasse warum?
Wo ist das Dritte Kinderzimmer?
Zeichne in den Plan vorhandene oder gewünschte Möbel im Maßstaab ein. Beim Tisch die Bewegungsfläche nicht vergessen.
Welche Eigenleistung willst du erbringen?
Es fehlen mind. 100 - 150 k
Die Praxis bekommt den Gartenzugang, der Wohnbereich bei 3 Kindern bekommt eine Terrasse warum?
Wo ist das Dritte Kinderzimmer?
Zeichne in den Plan vorhandene oder gewünschte Möbel im Maßstaab ein. Beim Tisch die Bewegungsfläche nicht vergessen.
A
Andreas9415.03.21 09:14Alessandro schrieb:
ich sehe hier keine Heilpraktiker Praxis. Warteraum? Kundentoilette?Vielen Dank für die erste Rückmeldung.Dies möchte ich wie folgt erklären:
Der Warteraum ist über das Treppenhaus/Flur zugänglich. Im Bild als Diele/Gard. gekennzeichnet.
Gegenüber der Diele ist ein komplettes Bad eingezeichnet welches sich als "Kundentoilette" eignet.
Im Koch/Ess/Wohnbereich soll dann die eigentliche Praxis seinen Platz finden. Die Räume können bei Bedarf abagetrennt werden sodass hier bei Bedarf bis zu 3 Behandlungsräume Platz hätten.
A
Andreas9415.03.21 09:20haydee schrieb:
Budget:
Welche Eigenleistung willst du erbringen?
Es fehlen mind. 100 - 150 k
Die Praxis bekommt den Gartenzugang, der Wohnbereich bei 3 Kindern bekommt eine Terrasse warum?
Wo ist das Dritte Kinderzimmer?
Zeichne in den Plan vorhandene oder gewünschte Möbel im Maßstaab ein. Beim Tisch die Bewegungsfläche nicht vergessen.Danke für die Rückmeldung. Ich versuche zunächst hauptsächlich Rückmeldung zum Grundriss zu erhalten. Das Budget ist erstmal zweitrangig. Hier orientieren wir uns am Kostenfaktor von Geschwistern die unter ähnlichen Umständen gebaut hatten, mit dem gleichen Planer etc.
Aber zu deinem Feedback:
Der Gartenzugang von der Praxis aus lässt sich aufgrund der Hanglage fast nicht anders darstellen.
Der Garten soll auch von der Terrasse aus zugänglich sein. (Kleine Weg oder ähnliches).
Das Dritte Kinderzimmer ist im DG angesiedelt. Im Vergleich zu den beiden "großen" (zu großen?) Kinderzimmern das kleine Zimmer zwischen Bad und Eltern Schlafzimmer.
Der Tipp mit der Bewegungsfläche ist gut. Hatten wir so noch nicht wirklich auf dem Schirm. Der Praxis Test findet direkt heute abend statt .)
Für Bayern viel zu günstig. Alleine die Baunebenkosten passen nicht. Wo sind dir Erdarbeiten? Die Entsorgung? Außenanlage, Stützmauern usw.
Denke daran in den letzten Jahren gab es jährlich zweistellige Preiserhöhungen für die Baukosten.
Weg oder Treppe ist kein Ersatz.
Papa ich habe Durst. Die Windel ist voll. Nichts mit schnell ins Haus und der Rest wird aus dem Augenwinkel beobachtet. Längerer Laufweg, länger aus den Augen. Ist ehr mit einem Spielplatzbesuch zu vergleichen. Kein Auge auf die Kinder während man kocht, dafür Kinderlärm vor den Therapieräumen.
Auch für einen selber möchte man Privatsphäre, Garten ist Wohnraum.
Du kommst doch nicht auf die Idee die Praxis zu den Schlafräumen zu packen.
Braucht ihr die Praxis in der Größe? Braucht ihr die Räume unter der Garage oder ist das halt so da eh da
Denke daran in den letzten Jahren gab es jährlich zweistellige Preiserhöhungen für die Baukosten.
Weg oder Treppe ist kein Ersatz.
Papa ich habe Durst. Die Windel ist voll. Nichts mit schnell ins Haus und der Rest wird aus dem Augenwinkel beobachtet. Längerer Laufweg, länger aus den Augen. Ist ehr mit einem Spielplatzbesuch zu vergleichen. Kein Auge auf die Kinder während man kocht, dafür Kinderlärm vor den Therapieräumen.
Auch für einen selber möchte man Privatsphäre, Garten ist Wohnraum.
Du kommst doch nicht auf die Idee die Praxis zu den Schlafräumen zu packen.
Braucht ihr die Praxis in der Größe? Braucht ihr die Räume unter der Garage oder ist das halt so da eh da
Ähnliche Themen