Grundriss Einfamilienhaus ca. 140 m² zur Diskussion

4,80 Stern(e) 5 Votes
Zuletzt aktualisiert 09.10.2025
Sie befinden sich auf der Seite 5 der Diskussion zum Thema: Grundriss Einfamilienhaus ca. 140 m² zur Diskussion
>> Zum 1. Beitrag <<

P

Phobos83

Denn Esstisch würde ich vorne direkt neben der Arbeitsfläche der Küche lassen und die Terrassentür evtl. noch etwas nach links verschieben. Wird dann davon abhängen welche Kaminofenform sich am besten anbietet und wie weit wir da in den Raum kommen. Müssen wir wie gesagt noch mal mit dem Küchenplaner besprechen, um zu sehen wie wir dann hinkommen.

Der Kniestock im OG sollte kein Problem darstellen, sind über 2 m beim Eingang der Dusche.
Der Kamin im Schlafzimmer ist aber wie gesagt ungünstig, den werden wir anders platzieren müssen.
 
P

Phobos83

Weitere Alternative mit einer Eckbank, was natürlich in Verbindung mit dem Eckfenster etwas hermacht.
Nachteil: Zwischen Essbereich und Küche ist etwas Luft und man muss hin und her rennen.

Grundriss eines Hauses mit Doppelgarage, Terrasse und offener Wohnküche.
 
P

Phobos83

Juhu,

wir haben die letzten Monate viel Zeit mit Bemusterung, Angeboten, Finanzierung etc. verbracht.
Und in diesem Zusammenhang bekamen wir vor kurzem endlich einen Termin bzgl. Bayernlabo im Landratsamt, wofür natürlich der Plan auch eine entscheidende Rolle spielt.

Das Fazit war, dass für uns zumindest das Zinsverbilligungsprogramm in Frage käme. Von den qm geht es sich gerade so aus, wobei sie "Kinderzimmer egtl. nur bis 15 qm fördern" (womit anscheinend ein gewisser Ermessensspielraum besteht).
Deshalb kam auch des Thema drittes Kinderzimmer ins Spiel, das man gern auch berücksichtigen könne, wenn man zumindest "prinzipiell über weiteren Nachwuchs nachdenken würde".

Vor diesem Hintergrund haben wir den Punkt beim Gespräch letzte Woche mit der Baufirma aufgebracht und wollten uns so eine Alternative ins OG mit einplanen lassen, um zu sehen ob es überhaupt Sinn macht.
Auf den ersten Blick hat mir die Idee sehr gut gefallen, aber nach etwas genauerer Betrachtung sind wir uns nicht mehr so sicher, ob wir diese Lösung nicht doch bereuen.

Deshalb hier noch mal die aktuellen Geschossentwürfe mit Fragen/Erklärungen. Über Optimierungsideen von eurer Seite würden wir uns freuen, wollten dann gerne die nächsten Wochen den Antrag einreichen um im Frühjahr starten zu können.

KG:
Bin ich soweit ganz glücklich, evtl. lassen wir in "Keller I" doch noch ein kleines Fenster neben der Außentür einplanen, auch wenn es von der Terrasse verschattet wird.
Denkt ihr die 14,99 m² reichen für den Technikraum (Gas + Puffer + Lüftung)? Waschmaschine/WT müssen da nicht rein, keine Ahnung warum da der Zeichner so kreativ war.

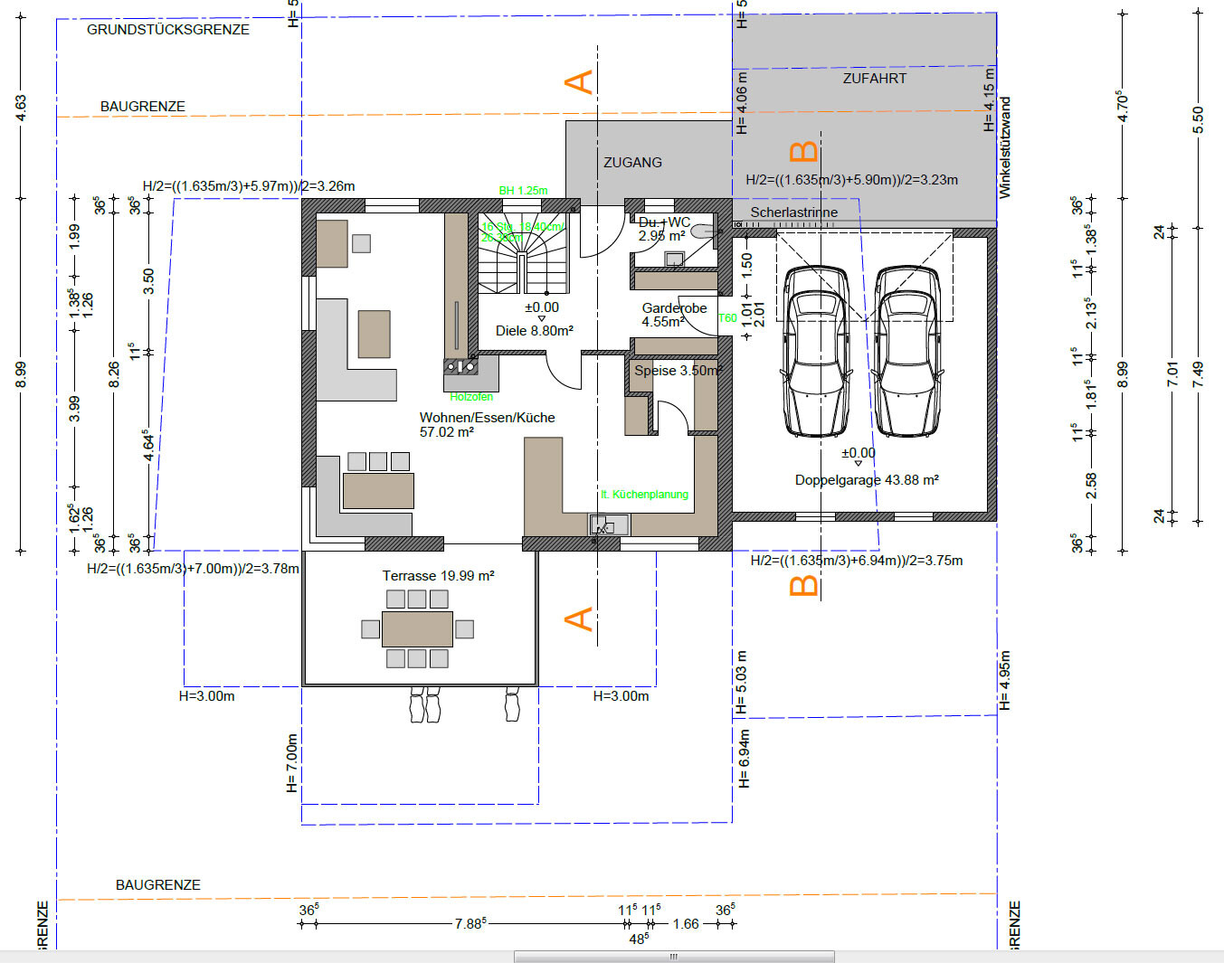
EG:
Mit dem "L" für Kochen/Wohnen mit dem Eckfenster sind wir soweit auch recht zufrieden. Die Idee mit einem abgetrennten Büro haben wir verworfen - zur Not kann man sich auch so eine kleine Schreibtischnische einbauen wie beispielhaft dargestellt.
An den Küchenproportionen muss noch nachgebessert werden - die lange Seite soll natürlich nicht bis direkt zur Terrassentür gehen, da fällt das gute Stück auf der Zeichnung deutlich zu lang aus.
Den Punkt wollte ich noch berichtigen lassen, auch wenns für die Genehmigung keine Rolle spielt.

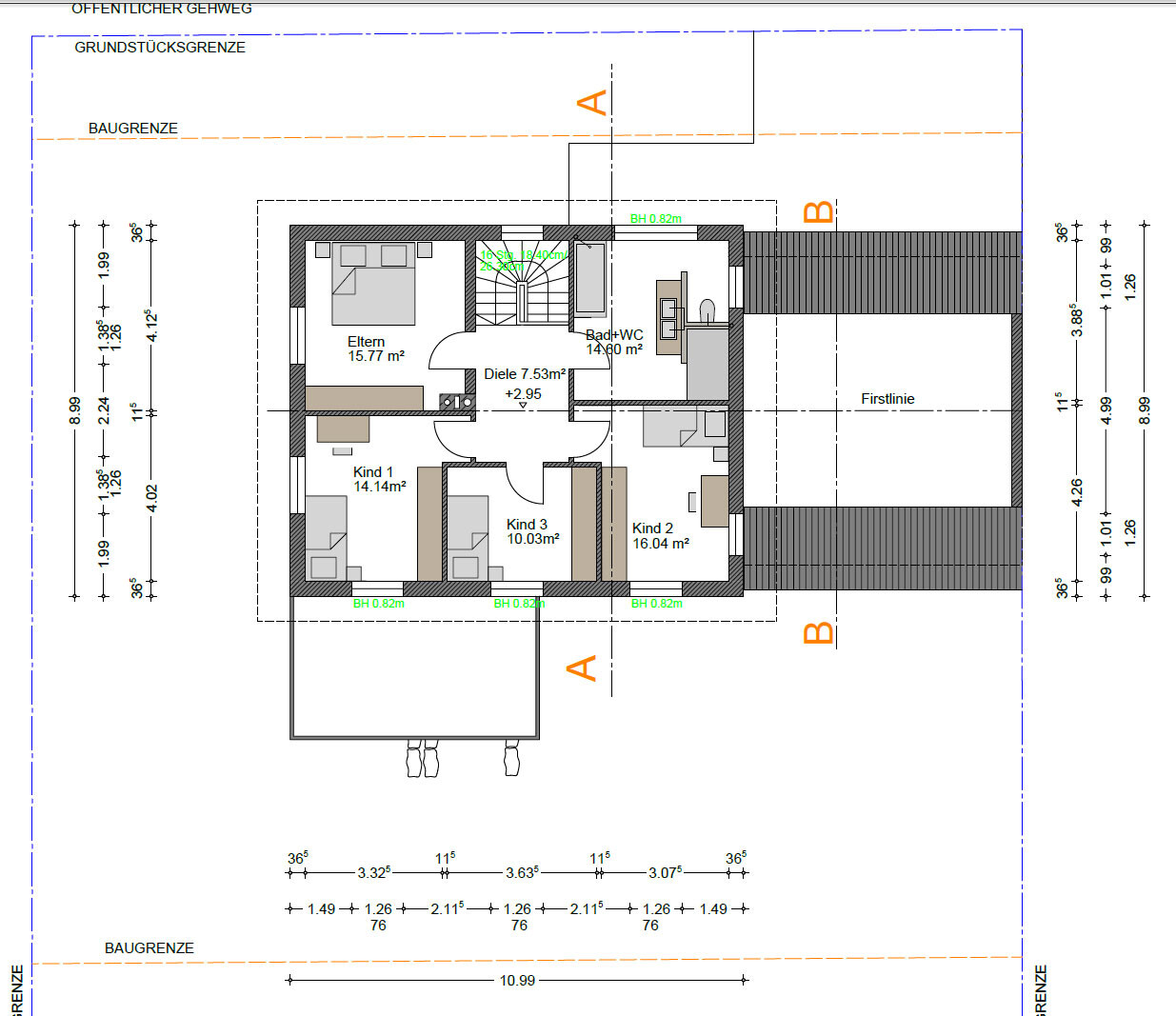
OG:
Hier hätte ich den aktuellen und letzten Entwurf als Vergleich angehängt.
Ich finde, dass beides seinen Reiz hat - jetzt mal ganz abgesehen von irgendwelchen Förderungen oder einem möglichen Kinderwunsch:
Im alten Entwurf (OG4a) gefällt mir die klare Struktur und die wie ich finde sehr gelungene (faire) Aufteilung.
Der neue (OG5) schafft auf den ersten Blick mehr Flexibilität, egal ob für ein weiteres Kind, für ein Gästezimmer, als Büro oder um bei Bedarf trotzdem (später mal) Waschmaschine/WT ins OG zu holen.

letzteres bringt mir allerdings alles nichts, wenn dann die anderen beiden Kinderzimmer nicht mehr richtig funktionieren. Der Kniestock von ca. 2m kann lässt ja bspw. nicht zu, dass man Schränke nach Lust und Laune reinstellt. In Bezug auf die Betten könnte man die kleinen Lichtbänder im Süden evtl. noch etwas verschieben ...

Wie denkt ihr als Außenstehende über die beiden Varianten?

Grundriss Kellergeschoss mit Kellerräumen I–III, Flur, Technik, Zugang; Garage rechts.


Grundriss eines Einfamilienhauses: Doppelgarage, Wohn-/Essbereich mit Küche, Terrasse.


Grundriss eines Wohnhauses mit Eltern- und Kinderzimmern, Diele, Bad/WC, Treppe.


Grundriss eines Hauses mit Elternzimmer, zwei Kinderzimmern, Diele, Bad/WC, HWR.
 
kaho674

kaho674

Ich würde auch ein 3. Zimmer planen, statt des HWRs. Wenn ich schon einen teuren Keller baue, dann soll der mir den Platz in den oberen Geschossen von Technik und Gedöns freihalten.

Allerdings ist die Sache nicht zu Ende gedacht. Wenn wirklich ein 3. Kind käme, wollt Ihr Euch zu fünft jeden früh um ein Bad prügeln? Das ist bei 4 Mann schon eine Katastrophe. Da würde ja eine Dusche im EG Abhilfe schaffen (aber man kann sich vermutlich nicht von dem Eingang über die Garage trennen, von daher steht man lieber am Bad an). Aber bei 5 wird es haarsträubend.

Das ist alles so chaotisch. Ein 3. Kinderzimmer, aber nur 1 Bad für alle, Büro wurde gestrichen, was als Ausweichraum ganz gut gewesen wäre, dafür jetzt oben die Kinderzimmers kleiner und immer noch keine 2. Dusche. Komm da nicht mehr mit.
 
P

Phobos83

Das Thema Bad sehen wir als unkritisch, da wir eine zusätzliche Nasszelle bzw. Dusche im Keller schaffen werden, weshalb eine solche auch aus dem EG rausgeflogen ist (Stichwort: "Schmutzschleuse mit Duschmöglichkeit").

Mir ging es wirklich primär um die Frage der Sinnhaftigkeit eines kleineren 10 qm Zimmers, das zum Beispiel als Büro oder eben auch zur Not als zusätzliches Kinderzimmer (in ein paar Jahren) für einen kleinen Wurm in den ersten Lebensjahren herhalten kann. Auf Dauer ist die Lösung sowieso nie praktikabel, so dass man in 10 - 15 Jahren in jedem Fall umdisponieren müsste - vorausgesetzt unser dann (fast) Volljähriger ältester Sohn zieht nicht schon wieder aus.

Die Bedenken liegen halt wirklich darin, die vorhandenen Kinderzimmer mit der Maßnahme zu stark einzuschränken ....
 
Zuletzt aktualisiert 09.10.2025
Im Forum Grundrissplanung / Grundstücksplanung gibt es 2513 Themen mit insgesamt 87221 Beiträgen


Ähnliche Themen zu Grundriss Einfamilienhaus ca. 140 m² zur Diskussion
Nr.ErgebnisBeiträge
1Entwurf EFH, 2 Vollgeschosse, Satteldach, kein Keller, Doppelgarage - Seite 431
2Erster Entwurf Einfamilienhaus 150m² mit Keller 38
3Grundrissplanung Stadtvilla Doppelgarage | Keller | KFW40+ | 205m² 26
4Grundriss Einfamilienhaus ohne Keller, 3 Kinderzimmer und Büro 18
5Grundriss Einfamilienhaus 155m², ohne Keller, 3 Kinderzimmer, 1 Büro 38
6Entwurf / Verbesserung Einfamilienhaus 150-175m² mit Walmdach und Keller 39
7Grundriss-Entwurf: Einfamilienhaus; mit Keller; 800qm Grundstück - Seite 210
8Grundriss erster Entwurf - Meinungen erwünscht - Seite 321
9Häuser ohne Keller: Stauraum Hobby-Keller? - Seite 549
10Haus ohne Garage und Keller? Ausbau Dachboden? Fresswarze? - Seite 1285
11Planung unseres Einfamilienhaus - Was meint ihr zum Entwurf? - Seite 656
12Grundrissplanung Keller, EG + DG 12
13Grundriss 180qm plus Keller - 12,40mx9,04m - Seite 321
14Planung/Grundriss Einfamilienhaus (ca. 140 qm, Keller, EG, DG) - Seite 530
15160m2 Einfamilienhaus in Holzständerbauweise am Nordhang mit Keller 100
16Einfamilienhaus, ~160m², Bauhausstil; Erster Entwurf nach unseren Wünschen 420
17Grundrissentwurf Stadtvilla mit Keller Verbesserungsvorschlag? - Seite 677
18Grundriss für Einfamilienhaus 210 m² + Keller - Eure Meinungen 16
19Neubau Einfamilienhaus ca.220qm, 2. Entwurf Stadtvilla - Seite 959
20Grundriss-Review Einfamilienhaus mit Keller auf leichter Hanglage 35

Oben