Grundriss Einfamilienhaus 1 Vollgeschoss Technik und Tageslicht

4,90 Stern(e) 12 Votes
Zuletzt aktualisiert 19.11.2025
Sie befinden sich auf der Seite 22 der Diskussion zum Thema: Grundriss Einfamilienhaus 1 Vollgeschoss Technik und Tageslicht
>> Zum 1. Beitrag <<

11ant

11ant

Vielleicht noch etwas Grundlegenes: Wenn das Büro planunten hin kommt und der Eingang ist darunter, dann schiebt sich die (gegenläufige) Treppe entweder immer ins Ess/WZ (also Räume planoben werden klein) oder es wird eine gerade Treppe mit Eingang von links, wodurch die Räume planunten im EG klein werden. Habe ich das so richtig aus den Skizzen verstanden?
Sage doch bitte, von welchen Plänen (Beitragsnummer) Du jeweils sprichst, Deine Schädeldecke ist nicht durchsichtig. Für welchen Entwurf habt Ihr Euch denn überhaupt entschieden ?
 
K a t j a

K a t j a

Nochmal der Einwand, falls der untergegangen ist: wenn Ihr die Spitze nicht über die Treppe permanent erschließt, plant neu! #76 war noch vor der Entscheidung gegen die ausgebaute Spitze.
 
K

klabauter8614

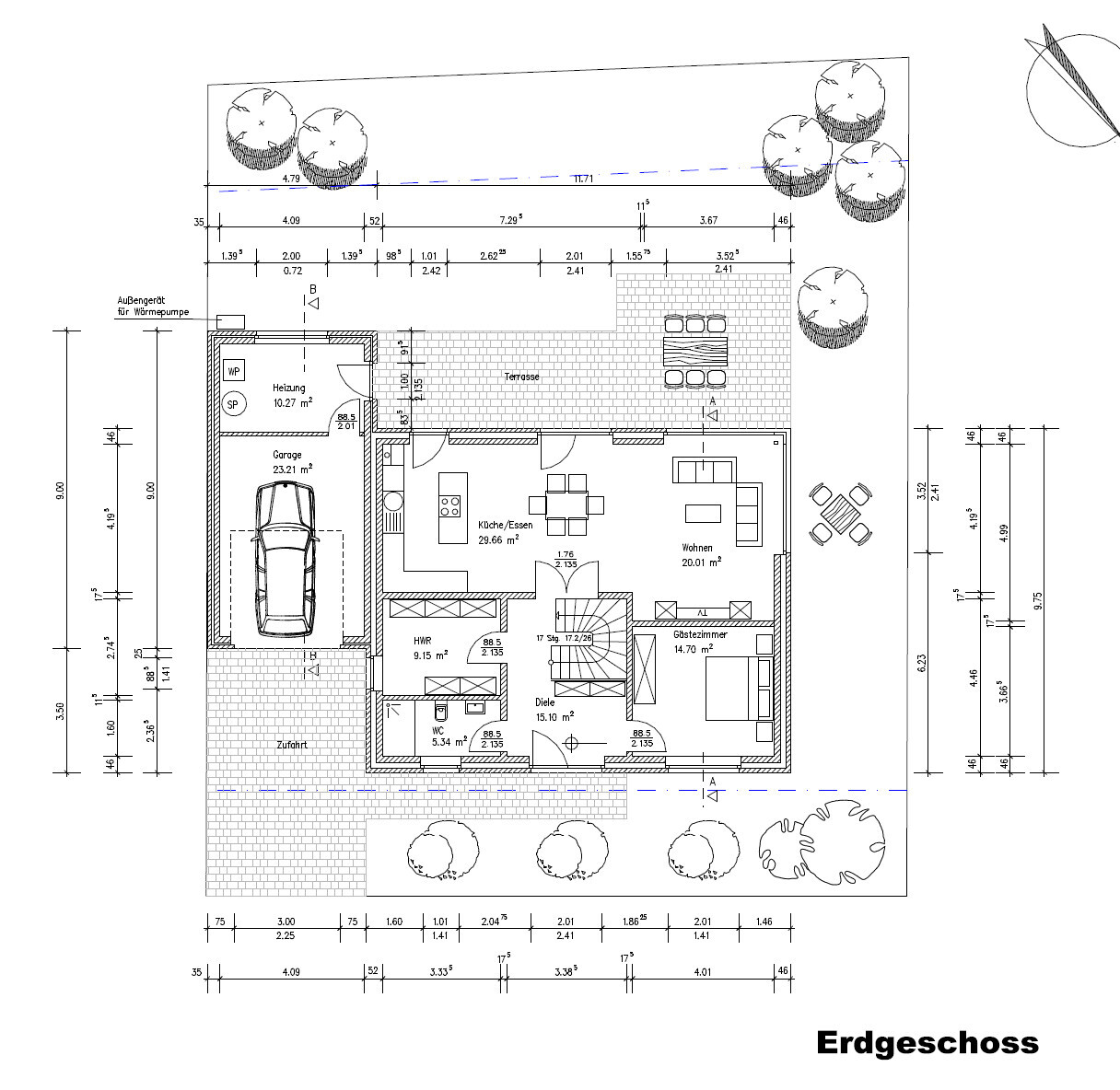
Wir haben uns mehrere Stunden zusammengesetzt und sind alles durchgegangen, das war wesentlich besser als dieses Pingpong Spiel. Das ist jetzt dabei herausgekommen. Ich hoffe, dieses Mal sind alle Ansichten sowie die Maße sichtbar. Technik ist zwar noch immer in der Garage eingezeichnet, das müsste ich dann beim nächsten Termin klären wieso. Ansonsten hätte ich nur die Abwägung kleineres GZ vs größeres L im WZ. Mehr fällt mir erstmal nicht sofort ins Auge, sieht viel besser als die vorherigen.
Grundriss Erdgeschoss: Garage, Küche/Essen, Wohnen, Gästezimmer, Diele, Terrasse, Garten.

Grundriss des Obergeschosses mit Schlafen, Ankleide, Bad, Flur, Büro und zwei Kinderzimmern

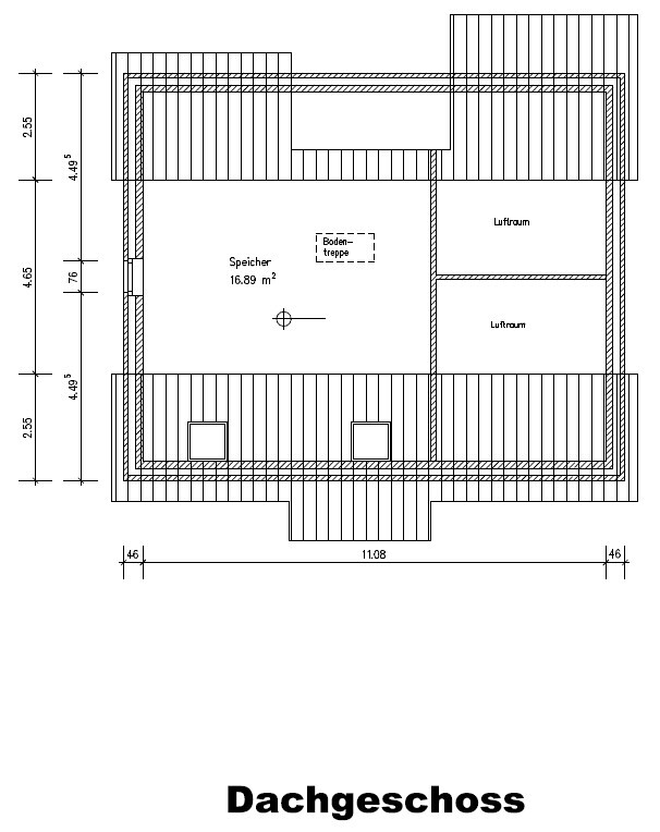
Dachgeschoss-Grundriss mit Speicherraum (16,89 m²) und Lufträumen, Maße.

Schnitt A-A durch ein Haus mit Gästezimmer, Wohnen, Kinder 1–2 und Speicher.
 
Zuletzt aktualisiert 19.11.2025
Im Forum Grundrissplanung / Grundstücksplanung gibt es 2535 Themen mit insgesamt 87975 Beiträgen


Ähnliche Themen zu Grundriss Einfamilienhaus 1 Vollgeschoss Technik und Tageslicht
Nr.ErgebnisBeiträge
1Grundriss erster Entwurf - Meinungen erwünscht 21
2Entwurf Grundriss Bungalow Meinungen 22
3Einfamilienhaus-Grundriss Entwurf 23
4Entwurf Grundriss: Planung Erdgeschoss - Seite 227
5Planung Grundriss / Erster Entwurf für erstes Feedback 32
6Unser Grundriss-Entwurf, eure Meinungen 20
7Entwurf des Planers für unser Einfamilienhaus 48
8Bauen mit GU - Angebot vom GU inkl. Entwurf 22
9Ideen zu Entwurf für Einfamilienhaus mit Keller - Seite 347
10Entwurf - alle Richtungen bei Neubau vom Einfamilienhaus 91
11Entwurf Einfamilienhaus mit Garage/Carport - bitte um Bewertung 22
12Entwurf Grundriss Bungalow - Eure Meinungen bitte! 14
13Grundriss-Entwurf Stadtvilla Feedback - Seite 213
14Planung unseres Einfamilienhaus - Was meint ihr zum Entwurf? - Seite 656
15Einfamilienhaus als Reihenmittelhaus an Hanglage - Entwurf - Seite 318
16Erster Entwurf Einfamilienhaus 150m² mit Keller 38
17Grundriss-Entwurf Stadtvilla mit Doppelgarage - Seite 238
18Haus-Entwurf Einfamilienhaus - Zukünftig als Zweifamilienhaus trennbar - Seite 572
191. Entwurf Grundriss Einfamilienhaus 150 qm 50
20Erster Entwurf des Grundrisses für 150m2 Haus 31

Oben