Ideen zu Entwurf für Einfamilienhaus mit Keller

4,80 Stern(e) 4 Votes
Zuletzt aktualisiert 18.12.2025
Sie befinden sich auf der Seite 3 der Diskussion zum Thema: Ideen zu Entwurf für Einfamilienhaus mit Keller
>> Zum 1. Beitrag <<

kbt09

kbt09

Ich habe mich auch mal versucht .. und das Haus von aktuellem Innenmaß 13,5x10,2 auf Innenmaß 12,2x10 m reduziert.

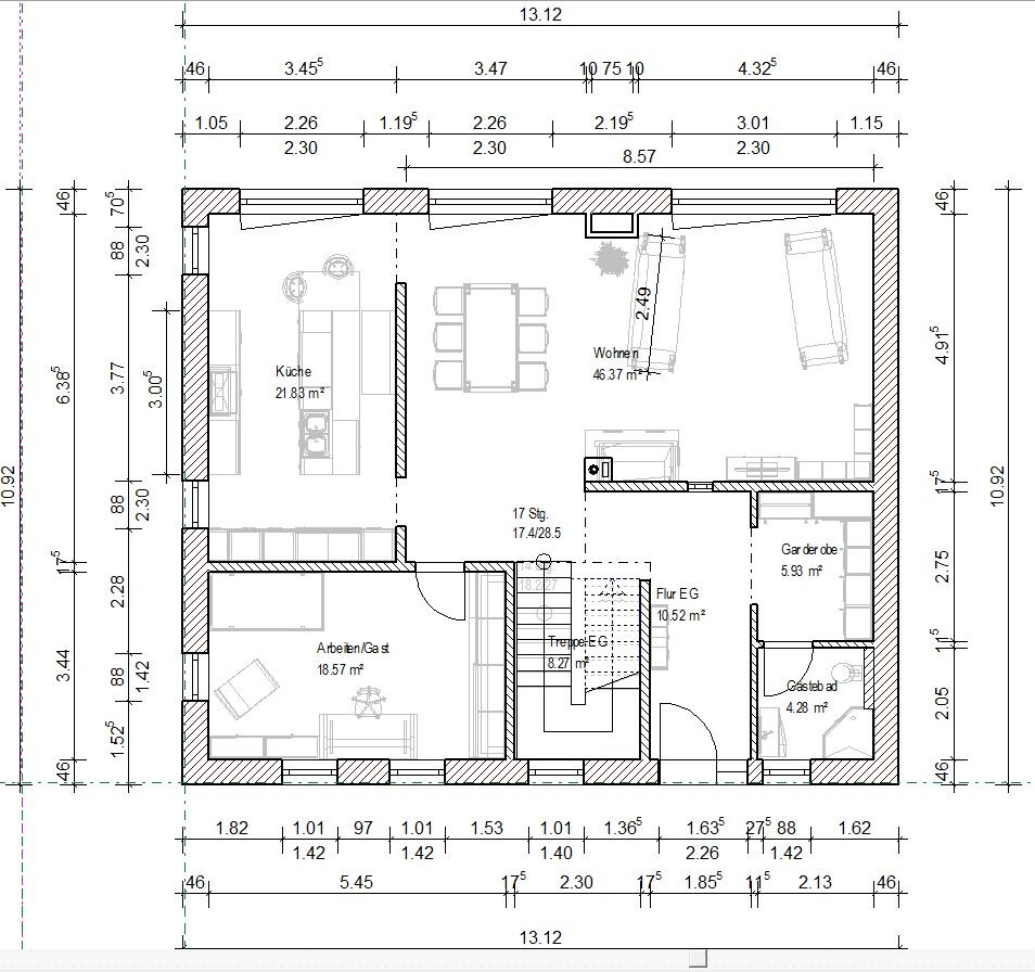
Ich weiß nicht, wie du geschlossene Küche interpretierst. Ich habe jetzt quasi 2 Durchgänge in die Küche, die dann wahlweise auch mit Glasschiebetüren oder so geschlossen werden könnte. Auf jeden Fall ist der Arbeitsbereich komplett uneinsichtbar vom Wohnbereich aus.

Sitzen und große Spülen/Arbeitsinsel in der Küche kombiniert. Dazu kann dann an der Trennwand eine feste Bank eingebaut werden. Das gibt auch den Vorteil, dass man mit Kindern auf der Inselhälfte auch gut Weihnachtskekse backen kann. Solange sie noch klein sind, können sie sich auf die Bank knien. Ansonsten viel Platz für Küchenarbeit, eigener Abstellbereich für Kaffeevollautomat oder ähnliches in der Hochschrankwand. Bei Einladungen könnte man sogar ein kaltwarmes Buffet auf der Kochfeldzeile anrichten und jeder kann bequem einmal dran vorbei und auf der anderen Seite wieder zum Esstisch

Die Treppe so gelegt, dass der Blick aus Wohn/Essbereich eher auf den hochgehenden Treppenlauf geht, als auf den Treppenlauf, der in den Keller führt.

Arbeitszimmer auch reduziert mit langer Stellwand. Ich habe mal ein Gästebett mit reingetan und dementsprechend dem Gast-Bad auch eine kleine Dusche spendiert.

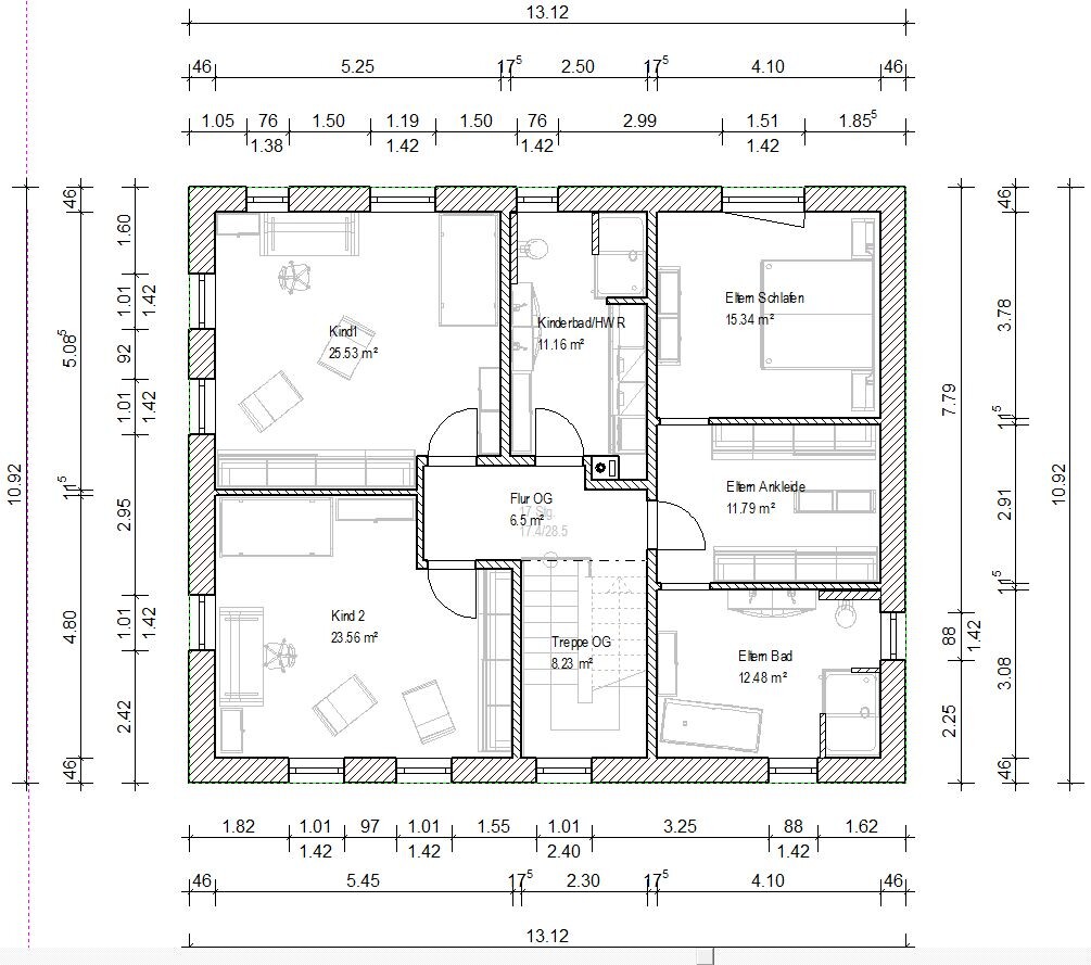
Im OG quasi links die Kinder, rechts die Eltern. Waschmaschine etc. ins Kinderbad mit integriert in einer Nische, die man mit einem Schiebetürsystem oder so auch schließen kann.

Ob dann noch ein Balkon dazukommt. .. Generell mal als Anregung zu verstehen und vom Grundsatz ziemlich an dem hier eingestelltem Entwurf orientiert.


Zweistöckiges rotes Backsteinhaus mit Tür und Fenstern vor grünem Gelände


3D-Darstellung eines Hausgrundrisses mit mehreren Zimmern, Betten, Schränken und Treppen.

3D-Grundriss eines Hauses: zentrale Treppe, Schlafzimmer links, Büro und Wohnzimmer rechts.

Grundriss OG: Flur, Treppe, Elternschlafzimmer, Ankleide, 2 Kinderzimmer, Bad.



3D-Grundriss eines Hauses: Wohnzimmer, Esszimmer, Küche, Büro, Treppenaufgang

Grundriss eines Hauses: Küche mit Insel, Essbereich, Wohnzimmer, Treppenhaus, Schlafzimmer, Bad.

Grundriss eines Hauses: Küche, offener Wohnbereich, Arbeits-/Gästezimmer, Flur, Treppe, Garderobe.
 
P

Panama17

Mensch, da hast du dir ja echt Arbeit gemacht, vielen Dank!! Ich konnte mir das leider noch nicht am Rechner anschauen, und aufm Handy wirkt das nicht. Mach ich morgen !
 
L

Legurit

Zu deinem letzten Grundriss im grünen Forum: finde ich gut, würde ihn aber 1 m kürzen (so das Büro, Bad, Kinderzimmer etwas kleiner werden). Würde das ganze etwas stimmiger machen finde ich.
 
P

Panama17

Hier zur Info der erste Entwurf.

Unsere Änderungswünsche waren:
- weniger Stufen zum Eingang, Haus weniger tief um mehr Garten zu haben, weniger Flur, größere Küche, Schlafzimmer nicht als Durchgangszimmer.


2D-Hausgrundriss mit Zimmern, Wänden und Türen als detaillierte Layout-Zeichnung


2D-Hausgrundriss mit detaillierter Raumaufteilung, Türen und Fenstern
 
M

Manu1976

Hab mir den Entwurf auch mal angesehen und mir gefällt er so auch ganz gut. Würde das Haus auch nicht kleiner machen, wenn es auf das Grundstück und ins Budget passt. Sonst wären die Kinderzimmers meiner Meinung nach für dieses Haus zu klein.
 
Zuletzt aktualisiert 18.12.2025
Im Forum Grundrissplanung / Grundstücksplanung gibt es 2552 Themen mit insgesamt 88520 Beiträgen


Ähnliche Themen zu Ideen zu Entwurf für Einfamilienhaus mit Keller
Nr.ErgebnisBeiträge
1Grundriss erster Entwurf - Meinungen erwünscht - Seite 221
2Entwurf Grundriss Bungalow Meinungen - Seite 422
3Unser Grundriss-Entwurf, eure Meinungen 20
4Entwurf Einfamilienhaus mit Garage/Carport - bitte um Bewertung 22
5Grundriss Halboffene Küche mit großem Essbereich - Detailfragen 12
6Grundriss-Entwurf Stadtvilla Feedback - Seite 213
7Feedback zur Ikea-Küche - Seite 9167
8Planung unseres Einfamilienhaus - Was meint ihr zum Entwurf? - Seite 656
9Einfamilienhaus als Reihenmittelhaus an Hanglage - Entwurf - Seite 318
10Erster Entwurf Einfamilienhaus 150m² mit Keller 38
11Grundriss-Entwurf Stadtvilla mit Doppelgarage - Seite 238
12Haus-Entwurf Einfamilienhaus - Zukünftig als Zweifamilienhaus trennbar - Seite 572
131. Entwurf Grundriss Einfamilienhaus 150 qm 50
14Erster Entwurf des Grundrisses für 150m2 Haus 31
15Erster Entwurf Grundriss Einfamilienhaus (ca. 200qm) - Bitte um Feedback 46
16Meinungen zu unserem Grundriss Entwurf erwünscht - Seite 670
17Bitte schaut kritisch über unseren Grundriss-Entwurf 13
18Allererster Grundriss-Entwurf des Erdgeschosses - Seite 42267
19Grundrissplanung / Entwurf Einfamilienhaus Flachdach mit Doppelgarage 87
20Entwurf für ein Einfamilienhaus mit 160-180qm - Verbesserungsvorschläge? - Seite 7122

Oben