Hausbau - Ratgeber
Bauherrenhilfe
- Bauherrenhilfe vor Vertragsabschluss
-- Warum einen unabhängigen Baubetreuer?
-- Vertragsgrundlagen
-- Bausumme
-- Zahlungsplan zur Kostenkontrolle
-- Pflichten des Bauherren vor Vertragsabschluss
-- Unterlagen beim Hausbau vor Vertragsabschluss
- Bauherrenhilfe nach Vertragsabschluss
-- Bauantrag bei Behörden
-- Bau-Genehmigungsverfahren bei Baubehörden
-- Bauspezifische Versicherungen
-- Bauzeitenplan
-- Baubeginn - die Letzten Pflichten der Bauherrschaft
- Bauherrenhilfe während der Bauzeit
- Gewährleistungsansprüche
- Bauabnahme
Baufinanzierung
- Baufinanzierung - Allgemeine Fragen
- Kreditarten
- Kredit-Konditionen
- Bausparen
- Staatliche Förderungen
- Verkehrswert
- Haushaltsrechnung und Bonität
Hausbau Planung
- Haustypen
- Hausbau Vorbereitungsarbeiten
- Das Baugrundstück
- Baugrund beim Hausbau
- Baurecht
- Gebäudeschutz
- Erdarbeiten und Wasserhaltung
- Stützmauern
- Einfriedung
- Untergeschoss
- Kanalisation
- Tragende Elemente
- Nichttragende Innenwände
- Fundation / Fundament
- Deckenkonstruktionen
- Dächer
- Kaminanlagen
- Treppen Rampen Leitern
- Dachbeläge und Spengler
- Fenster
- Sonnen und Wetterschutz
- Aussenputze
- Einbauten, Küchen, Türen
- Bodenbeläge und Unterlagsböden
- Parkett
- Gips, Wand, Decke
Haustechnik und Energie
- Heiztechnik
- Lüftung und Klimatechnik
- Sanitärtechnik
- Elektrotechnik
- Erneuerbare Energie
Whirlpools / Jacuzzi
Hausbau Magazin
- Baufinanzierung trotz Krise?
- Das Blockhaus
- Moderne Dämmstoffe im Vergleich
- Erker Vor- und Nachteile
- Glasflächen beim Hausbau
- Günstig ein Haus Bauen
- Mediterraner Hausbaustil
- Mehrgenerationenhaus
- Moderne Architektur
- Gartengestaltung leicht gemacht
- Traditioneller Ziegelbau
- Villa als höchster Traum
- Im Eigenheim Ruhestand geniessen
- Altbau sanieren
- Kauf einer Holzgarage
- Immobilienmakler
- Arbeitshandschuhe für den Winter
- Zuhause verschönern
- Outdoor-Plissees
- Schlafzimmer planen
- Terrassenüberdachung
- Wohngebäudeversicherung
- Zaunarten und Eigenschaften
- Hauseingang gestalten
- Der perfekte Grundriss
- Sparsamer heizen im Altbau
- Einfamilienhaus smart finanzieren
- Planung einer PV-Anlage
- Neues Haus
- Immobilienfinanzierung
- Installation einer Photovoltaikanlage
- Asbest erkennen und entfernen
- Gartenpflege im Frühling – worauf achten
- Sauna im Fokus - Wellness zuhause
- Erfolgreich vermieten
- Die perfekte Winterbekleidung
- Das Niedrigenergiehaus
- Der April und seine Stürme
- Architektonische Vielfalt
- Ökologisch und nachhaltig bauen
- Das perfekte Schlafzimmer
- Nachhaltige Energieversorgung
- Zukunftsorientiert bauen
- Nachhaltigkeit beim Hausbau
- Tiny Houses
- Wärmepumpen als nachhaltige Heizvariante
- Maßgeschneiderten Kleiderschrank
- Der richtige Baukredit
- Ratgeber für erfolgreichen Hausbau
- Haus als Altersvorsorge
Do-it-yourself Anleitungen
- Verlegeanleitung für Bodenbeläge und Parkett
- Bodenbeläge und Parkett reinigen und pflegen
- Malerarbeiten am Haus
- Garten Tipps
- Umzug und Reinigung

ᐅ Grundriss Einfamilienhaus 1 Vollgeschoss Technik und Tageslicht

Erstellt am: 22.07.24 08:21
K
klabauter8614
K
klabauter8614
22.07.24 08:21
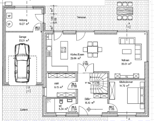
Hallo, ich würde gerne Feedback versammeln für den Grundriss, um den Entwurf zu fixieren. Schnitte und Höhen haben wir nicht, ansonsten sind alle Zeichnungen im Anhang (Haus im Lageplan schematisch). Danke

Bebauungsplan/Einschränkungen
Größe des Grundstücks: 473
Hang: nein
Grundflächenzahl: 0,4
Geschossflächenzahl
Baufenster, Baulinie und -grenze
Randbebauung
Anzahl Stellplatz: maximal 2 ohne Garage
Geschossigkeit: 1 Vollgeschoss
Dachform: Satteldach
Stilrichtung
Ausrichtung: Dach NNO - SSW
Maximale Höhen/Begrenzungen: Traufhöhe 4,2m, Firsthöhe 9,5m.
weitere Vorgaben: nur regenerative Energieträger, Muldenversickerung

Anforderungen der Bauherren
Stilrichtung, Dachform, Gebäudetyp
Keller, Geschosse: ohne Keller (GW bei 1m Tiefe), 1 Vollgeschoss
Anzahl der Personen, Alter: 4, 40-40-7-2J
Raumbedarf im EG, OG: EG Gästezimmer, OG Büro.
Büro: Familiennutzung oder Homeoffice? Homeoffice
Schlafgäste pro Jahr: Jede Woche 2 Nächte ein Elternteil (auch noch für die nächsten Jahre), Schwiegereltern alle Jahre mehrere Wochen
offene oder geschlossene Architektur
konservativ oder moderne Bauweise
offene Küche, Kochinsel: Halb offen (Schiebetür), Kochinsel
Anzahl Essplätze: fest 6, erweiterbar
Kamin: nein
Musik/Stereowand: nein
Balkon, Dachterrasse: nein
Garage, Carport: Garage
Nutzgarten, Treibhaus: Kräutergarten
weitere Wünsche/Besonderheiten/Tagesablauf, gern auch Begründungen, warum dieses oder das nicht sein soll

Hausentwurf
Von wem stammt die Planung:
-Synergie Architekt + Bauherr, 4. Entwurf jetzt
Was gefällt besonders? Warum? Gästezimmer und WC + Dusche, ähnliche Konstruktion bereits jetzt, funktioniert (ist zwar ein Bett gezeichnet, ist aber Schlafsofa), Büro im Norden, KZ Größe mehr als ausreichend, Garderobe am Eingang, WZ hell, WM+TR im OG.
Was gefällt nicht? Warum?
- Hauswirtschaftsraum ist zur Hälfte nicht nutzbar durch den Einschub der Garderobe (welche eigentlich sinnvoll ist) und damit zu klein, Speicher muss aus Garage in die thermische Hülle in den Hauswirtschaftsraum, Innengerät könnte da bleiben. Kontrollierte-Wohnraumlüftung müsste auch noch in den Hauswirtschaftsraum. Mögliche Lösung: Küche nach hinten vergrößern und Hauswirtschaftsraum entsprechend erweitern. Haus wird dadurch aber noch größer... Andere Lösung bis jetzt nicht thematisiert.
- Treppe zu steil, Architekt schlägt jetzt 17,2/26 vor. Das wäre dann wohl grenzwertig Schrittmaß.
- Tageslicht in den Kinderzimmern könnte wenig sein durch die Fensterausrichtung West und ~12,5% Fensterfläche/Raumgröße, müsste man sich vielleicht in einer Simulation angucken. Velux würde das nicht viel verbessern, nur eine Gaube und dann kleinere Fenster im Giebel.
- So wir die Kücheninsel gezeichnet ist, passt es mir nicht, zu enger Durchgang vom Hauswirtschaftsraum. Müsste auf die andere Seite und die Spüle + Fenster nach links.
- Im Schlafzimmer und KZ müssten noch Klimaanlagen hin, aber das sieht so nicht praktikabel aus mit Fenstern und Schränken.
- Dusche im OG an der Schräge, muss nicht sein. Ist aber ein untergeordneter Punkt.
- Oberlicht Gäste-WC nicht auf Kopfhöhe, etwas höher, ebenfalls Kleinigkeit
- Tür Bad OG sollte nach außen öffnen
- Fehlt noch Stauraum unter der Treppe
- Wand in Garage muss nicht sein


Preisschätzung laut Architekt/Planer: kA
Persönliches Preislimit fürs Haus, inkl. Ausstattung: 650k
favorisierte Heiztechnik: Luftwärmepumpe

Wenn Ihr verzichten müsst, auf welche Details/Ausbauten
-könnt Ihr verzichten: Ankleide
-könnt Ihr nicht verzichten: Büro, GZ

Warum ist der Entwurf so geworden, wie er jetzt ist?
Eigener Entwurf auf Basis von Raumbedarf und Gegenentwurf Architekt weiterentwickelt

Was macht ihn in Euren Augen besonders gut oder schlecht?
Wichtigsten Punkte zu klären sind Hauswirtschaftsraum + Technik und Tageslicht.
Grundriss des Erdgeschosses mit Küche, Wohnen/Essen, Garage, Terrasse und Garten.

Grundriss Obergeschoss: Schlafzimmer, Bad, Flur, Ankleide, Kind 1, Kind 2, Büro.

Zwei Hausansichten: Nord-West mit Giebeldach; Nord-Ost mit Garage und moderner Fassade.

Zwei Hausansichten: Südost- und Südwest-Ansicht mit Garten, Bäumen und Fenstern.

Dachgeschoss: Speicher 26,92 m², Treppe, zwei Dachfenster, umlaufende Dachkante.

Detailplan einer Straßengestaltung mit roter Fahrbahn, Gehwegen, Parkflächen und Grünanlagen.
N
nordanney
22.07.24 11:00
klabauter8614 schrieb:

Persönliches Preislimit fürs Haus, inkl. Ausstattung: 650k
Budget überdenken. Ist ein sehr großes Haus mit Garage für einen schmalen Taler.

Für Grundrisse sind andere zuständig.
Y
ypg
22.07.24 20:18
klabauter8614 schrieb:

Hauswirtschaftsraum ist zur Hälfte nicht nutzbar durch den Einschub der Garderobe (welche eigentlich sinnvoll ist) und damit zu klein
Nee, der Hauswirtschaftsraum ist nicht nutzbar wegen der zwei Türen.
Was soll dnen da rein?
Und warum eine Tür, wenn doch die Eingangstür genau daneben liegt?
Y
ypg
22.07.24 22:51
Je mehr ich drauf schaue, desto verwinkelter finde ich den Zugang zum Allraum. Dafür ist mir dann das Sofa dann doch gefühlt zu weit weg.
HAR ist viel zu klein für Deine Multifunktion. Und der Allraum ist alles zu langgezogen.
hier mal mein Vorschlag, allerdings nur als Skizze zu sehen. Die Treppe müsste vergrößert werden und gespiegelt, die Pappwände angepasst.
Grundriss eines Hauses mit HAR, WC und Treppe; Zimmer 1 45.9 m², Zimmer 2 18.3 m².

Grundriss eines Gebäudes mit Zimmern 2–8 und Flächenangaben in m².
K
K a t j a
23.07.24 05:29
ypg schrieb:

Je mehr ich drauf schaue, desto verwinkelter finde ich den Zugang zum Allraum. Dafür ist mir dann das Sofa dann doch gefühlt zu weit weg.
HAR ist viel zu klein für Deine Multifunktion. Und der Allraum ist alles zu langgezogen.
hier mal mein Vorschlag, allerdings nur als Skizze zu sehen. Die Treppe müsste vergrößert werden und gespiegelt, die Pappwände angepasst.
Bin voll bei Dir. Was mich am Ausgangsentwurf am meisten stört ist diese wenig einladende Diele. Man kommt rein und geht in ein dunkles Loch mit Treppe. Der Ausweg liegt verwinkelt, eng und unscheinbar um die Ecke.

Deine Skizze ist dagegen schon besser. Ich würde ihn noch drehen und spiegeln, bis der Eingang wieder Planlinks liegt. Möglicherweise dann noch die Treppe austauschen, um einfacher alle Räume im EG zu erschließen.
Y
ypg
23.07.24 10:16
K a t j a schrieb:

Ich würde ihn noch drehen und spiegeln, bis der Eingang wieder Planlinks liegt.
So fing ich an.
Allerdings ist oben nur ein kleines Platzfenster für die Treppe. Und so meidet man auch oben wirre Gänge.
Es war auch immer die Treppe im EG im Weg.
hauswirtschaftsraumtreppegarageentwurfarchitektvollgeschossdachformkellerraumbedarfgästezimmer