Grundriss Einfamilienhaus 1 Vollgeschoss Technik und Tageslicht

4,90 Stern(e) 12 Votes
Zuletzt aktualisiert 19.11.2025
Sie befinden sich auf der Seite 28 der Diskussion zum Thema: Grundriss Einfamilienhaus 1 Vollgeschoss Technik und Tageslicht
>> Zum 1. Beitrag <<

K

klabauter8614

Du beziehst Dich vermutlich auf meinen Vorschlag firstoffener Kinderzimmer mit Spiel/Schlaf-Baumhausebene. Wer will da Fenster putzen ?
Derselbe, der oben in der Spitze die Spinnweben etc wegmacht. Ich dachte an ein Dachflächenfenster, nicht im Giebel, dass dann etwas über der 2. Ebene angebracht wird. Da kommt man als Erwachsener wohl dran.
 
11ant

11ant

Naja am Endresultat sieht man es nicht, daher kann ich dir folgen. Es waren ja andere Sachen abgesprochen, wie zum z.B. Technik im Haus und die Treppe von #27, alternativ die Vierteldrehung erst weiter oben und die Treppe hinter der Tür zum GZ anfangen lassen. Da wussten wir aber nicht, ob das mit der Länge etc hinhaut.
Ich kann also nur spekulieren, warum die letzte Version so aussieht, und vielleicht hat der Urlaub diese Woche da mitgeholfen.
Ich muss also bis nächste Woche warten, um die Beweggründe für die nicht beachteten Änderungen zu kennen.
Endresultat ist hier ein großes Wort für den Status Quo des Herumirrens. Du sollst nicht spekulieren oder warten, sondern Dich durchsetzen. Der König der Tiere ist nicht die Maus, auch wenn sie im WDR größer ist als der blaue 11ant.
Ich dachte an ein Dachflächenfenster, nicht im Giebel, dass dann etwas über der 2. Ebene angebracht wird. Da kommt man als Erwachsener wohl dran.
Na dann zeichne das mal ein - aber erst ins Endresultat, hihi.
 
K

klabauter8614

Habe ich, und wieder dem Zeichner erklärt, und mittlerweile auch die fertige Zeichnung bekommen. Kompromiss ist die Treppe geworden, die hat in 17 cm Höhe nicht gepasst, daher 18 cm, aber die bessere Variante finde ich. Die Tür vom Flur in den Hauswirtschaftsraum sollte eigentlich auch nicht sein, aber das ist auf dieser Zeichnung zu verschmerzen. Kleiner Wermutstropfen: Die lichte Höhe ist gleich geblieben, das geht schon in Ordnung.
Auf Basis dieses Entwurfes wird der Bauantrag gestellt. Bin mal gespannt, ob wir die weitere Planung wirklich mit diesem Büro machen wollen.
Erdgeschoss Grundriss mit Garage, Küche, Wohnen und Terrasse

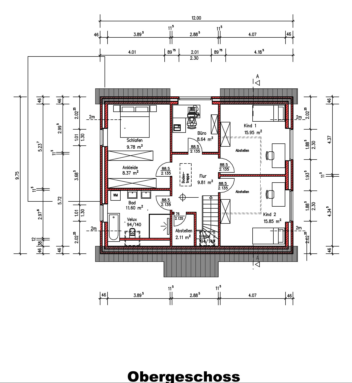
Grundriss Obergeschoss: Schlafzimmer, Ankleide, Bad, Flur, Büro, zwei Kinderzimmer, Abstellräume.

Dachgeschoss-Grundriss: Speicher 16,89 m², Abstellflächen, Luftraum

Schnitt A-A durch ein Haus: Dachboden, Treppe, Gästezimmer und Wohnen.

Vier Fassaden eines zweistöckigen Bruchstein-Hauses mit grauem Dach und Garten.
 
11ant

11ant

Die Tür vom Flur in den Hauswirtschaftsraum sollte eigentlich auch nicht sein,
Möchtest Du lieber mit der im OG anfallenden Wäsche durch das Wohnzimmer laufen?
Auf Basis dieses Entwurfes wird der Bauantrag gestellt.
Ja, mach´ den Sack jetzt mal zu - auch Pareto geht da mit.
Bin mal gespannt, ob wir die weitere Planung wirklich mit diesem Büro machen wollen.
Du weißt ja, 3+5=8. Und mein Credo "niemals anstatt Ausschreibung zum GU".
 
K

klabauter8614

Möchtest Du lieber mit der im OG anfallenden Wäsche durch das Wohnzimmer laufen?
Versteh ich nicht, Waschmaschine ist auch im OG. Warum sollte ich mit der Wäsche nach unten in den Hauswirtschaftsraum?

Du weißt ja, 3+5=8. Und mein Credo "niemals anstatt Ausschreibung zum GU".
Ja wäre schon sinnvoll, mit demselben Planer weiter die 5 zu machen. Bleibt allerdings die Vorausahnung, dass dieselben Schludrigkeiten auch da wieder einfliessen. Im Gegenzug ist es dann wieder schwierig, die 5 mit einem anderen zu machen, der hiervor überhaupt nicht involviert war. Naja erstmal den Rest vom Bauantrag durchkriegen.
 
11ant

11ant

Versteh ich nicht, Waschmaschine ist auch im OG. Warum sollte ich mit der Wäsche nach unten in den Hauswirtschaftsraum?
Wo trocknest und bügelst Du ?
Ja wäre schon sinnvoll, mit demselben Planer weiter die 5 zu machen. Bleibt allerdings die Vorausahnung, dass dieselben Schludrigkeiten auch da wieder einfliessen. Im Gegenzug ist es dann wieder schwierig, die 5 mit einem anderen zu machen, der hiervor überhaupt nicht involviert war.
Mit einem Schluderjan macht man garkeine gute Leistungsphase 5, allerdings. Wer soll überhaupt die zweite Halbzeit machen, und wo soll der Stab übergeben werden ?
Naja erstmal den Rest vom Bauantrag durchkriegen.
Welchen Rest ?
 
Zuletzt aktualisiert 19.11.2025
Im Forum Grundrissplanung / Grundstücksplanung gibt es 2536 Themen mit insgesamt 87981 Beiträgen


Ähnliche Themen zu Grundriss Einfamilienhaus 1 Vollgeschoss Technik und Tageslicht
Nr.ErgebnisBeiträge
1Fitness-Ecke im Hauswirtschaftsraum? 27
2 2 Vollgeschosse, Durchgang Garage, Hauswirtschaftsraum unter Treppe 25
3Technik / Hauswirtschaftsraum im OG Meinungen? 27
4Zusätzlicher Hauswirtschaftsraum im OG für Waschmaschine etc. 13
5Fußbodenheizung auch im Technikraum / Hauswirtschaftsraum - Seite 319
6Reicht der Hauswirtschaftsraum auch als Abstellkammer aus? 22
7Heizungsanlage passt nicht wie geplant in den Hauswirtschaftsraum 27
8Schallschutztür im Hauswirtschaftsraum notwendig? Erfahrungen? 22
9Hauswirtschaftsraum streichen - Welche Farbe? Latexfarbe? - Seite 216
10Schrank für Hauswirtschaftsraum 21
11Leitungsführung vom Hauswirtschaftsraum zum Bad 23
12Wie Hauswirtschaftsraum im Keller sinnvoll in die thermische Hülle? 15
13Hausanschlusssäule im Garten vs. Hausanschluss direkt im Hauswirtschaftsraum 35
14Hauswirtschaftsraum mit Gipsputz streichen - Welche Farbe? 20
15CAT Kabel im Hauswirtschaftsraum - nicht gecrimpt? - Seite 545
16Zugang von der Garage in den Hauswirtschaftsraum 49
17Ikea Pax Hauswirtschaftsraum/Waschküche System? - Was habt ihr? 64
18Kleinstmögliches Fenster für Lüftung Hauswirtschaftsraum 22
19Ideen Wäsche trocknen Hauswirtschaftsraum 20
20Hauswirtschaftsraum vorstreichen - frischer Estrich 10

Oben